萝卜点评,万事通说房事!

今天重点推荐的公寓新盘,位于新加坡东部第16区,毗邻著名的东海岸休闲公园,永久地契,近地铁,学区内有好学校。
除了这三大硬件条件之外,这个公寓新盘所在的碧湾(Bayshore)区域,是新加坡即将重点开发的滨海住宅新区,政府已经制定初步发展计划,前景可期,升值潜力巨大。
广告这个永久地契新盘的名称,就是Sea Pavilion Residences。

Sea Pavilion Residences楼盘于今年五月推出市场,主打的三室一厅户型单位,定价在159-165万新币之间,以它所在的地段和永久类型地契来说,性价比很高。
下面的文章篇幅里,我会全面介绍这个东海岸新盘的细节,以供参考。

楼盘距离兴建中的碧湾地铁站 (D出口)约350米,步行5分钟距离。
发展商在考虑连通一条小路,从公寓侧门直接通往A出口(上图虚线),这会进一步缩短步行到地铁站的距离。
公寓附近的碧湾公园里,有个长廊走道 (Bayshore Park Underpass),直接通往东海岸公园(见下图)。
广告到了周末,家庭大小成员可以悠闲漫步,从家门口一路散步到海岸线,大人迎著海风骑脚踏车,小孩子在儿童游乐场玩耍,玩好了,再去餐厅吃个晚饭回家。

下面的区域地图,看起来更全面一些。
打星的公寓地点,距离碧湾地铁站约350米。从碧湾地铁站出行,地铁直达滨海湾,丹戎巴葛金融区,和乌节路商业区。家里有车就更方便了,从ECP高速公路开往市区,12分钟车程直达CBD。
淡马锡小学距离公寓500米左右,这是一间东部非常不错的小学。淡马锡中学和淡马锡初级学院也距离公寓不远。新加坡的家庭休闲胜地:东海岸公园,近在咫尺。

筹划中的东海岸碧湾区,现在还是一大片绿地。
未来几年,政府将陆续开发这块60公顷的土地。预计推出的滨海住宅单位包括私宅和组屋,数量达12500个。
广告2017年10月本地新闻这样写道:“碧湾区的主要特色是全长一公里的碧湾大道,街道两旁将设有多家商店和咖啡座,成为居民交流休闲的好去处。”

?市区重建局构想图

?
图片来自《联合早报》
项目发展商豪利控股(Oxley Holding),是本地著名发展商,新交所上市公司。旗下产业横跨全球,在英国,澳大利亚,中国和东南亚区域都有住宅类和商业房产投资。
2017年5月,豪利控股通过集体出售 (En bloc) 方式,买下了这块位于东海岸上段的永久地契地皮,并在一年之后,于今年五月推出市场。
Sea Pavilion Residences属于小型楼盘,占地1292平米,设计兴建一栋5层精品小楼,总共24个一卧到四卧的精品公寓单位。
广告小区一楼设计兴建了泳池,水力按摩池,健身房,烧烤台等设施,并在顶楼设计了休憩室和天际花园等,总计超过20种公寓设施。
项目预计2023年底前竣工。届时,兴建中的碧湾地铁站也将建成投入使用。




下图的两室一厅户型,面积62平米(667平方尺),2楼定价124万1千新币,最后一间。
广告
顶楼的两卧跃层复式户型,两室一厅+家庭房,面积106平米(1141平方尺),楼下客卧,楼上主卧+家庭房,定价176万8千新币,最后一间。

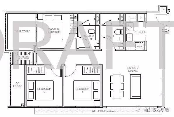
三室一厅两卫户型,面积84平米(904平方尺),2楼定价159万1千新币。3楼160万1千新币。

新加坡的房市,来自政府的官方推动力是非常明显的。
前几年裕廊区的发展,最近巴耶利峇区域的快速发展,都证实了这一点。
巴耶利峇地铁站旁边的新公寓,已经卖到了2000新币的惊人尺价。三年之前有谁想得到?
广告现在,碧湾滨海住宅新区的规划发展也初步开始了。
等到新区建成之后,预计将大幅推动区域房价,令周边房产收益。
尤其需要注意的是,新区的大片住宅全是99年地契,永久地契的稀缺性会更加突出。
Sea Pavilion Residences的地皮是发展商通过集体出售 (En bloc) 买下来的,谁知道以后会不会集体出售第二次呢。
有兴趣的买家,可以联系我进一步了解碧湾滨海住宅新区的区域规划,并参观样板示范间。
感谢阅读萝卜点评,祝大家周末愉快!

彭威
新加坡万事通房产专栏作者
(特别声明:以上文章内容仅代表作者本人观点,不代表新浪看点观点或立场。如有关于作品内容、版权或其它问题请于作品发布后的30日内与新浪看点联系。)
如果觉得我的文章对您有用,请随意打赏。你的支持将鼓励我继续创作!