萝卜点评,万事通说房事!
大家好,今天重点介绍的公寓新盘,位于东海岸区域,于五月推出市场。
萝卜曾经于六月初推荐过一次,今天再次重点推荐,因为这个性价比极高的楼盘,它就!要!卖!完!了!

位于新加坡东部第16区的Sea Pavilion Residences楼盘,毗邻著名的东海岸公园,同时满足三大硬件条件:
广告? 永久地契
? 近地铁
? 学区内有好学校
此外,这个公寓新盘所在的碧湾(Bayshore)区域,是新加坡即将重点开发的滨海住宅新区,政府已经制定初步发展计划,前景可期,升值潜力巨大。
Sea Pavilion Residences的三室一厅户型,定价在159-162万新币之间,价位极具吸引力,现在还有最后5间,欲购从速。
下面的文章篇幅里,我会全面介绍这个新盘的细节,以供参考。

?上图是楼盘的具体位置地图
距离兴建中的碧湾地铁站 (D出口)约350米,步行5分钟距离。
发展商在考虑连通一条小路,从公寓侧门直接通往A出口(上图虚线),这会进一步缩短步行到地铁站的距离。

区域地图看起来更全面。
广告
打星的公寓地点,距离碧湾地铁站约350米。
从碧湾地铁站出行,汤申线地铁直达滨海湾,丹戎巴葛金融区和乌节路商业区。
家里有车就更方便了,从ECP高速公路开往市区,12分钟车程直达CBD。
学校方面,淡马锡小学(Temasek Primary)距离公寓500米左右,这是一间东部非常不错的小学。
淡马锡中学和淡马锡初级学院也距离公寓不远。

新加坡的家庭休闲胜地:东海岸公园,近在咫尺。

筹划中的东海岸碧湾区,现在还是一大片绿地。
广告未来几年,政府将陆续开发这块60公顷的土地。预计推出的滨海住宅单位包括私宅和组屋,数量达12500个。
2017年10月本地新闻这样写道:
“碧湾区的主要特色是全长一公里的碧湾大道,街道两旁将设有多家商店和咖啡座,成为居民交流休闲的好去处。”

市区重建局构想图

?图片来自《联合早报》
项目发展商豪利控股(Oxley Holding),是本地著名发展商,新交所上市公司。
Sea Pavilion Residences属于小型楼盘,占地1292平米,设计兴建一栋5层精品小楼,总共24个一卧到四卧的精品公寓单位。
小区一楼设计兴建了泳池,水力按摩池,健身房,烧烤台等设施,并在顶楼设计了休憩室和天际花园等多种公寓设施。
广告项目预计2023年底前竣工。
届时,兴建中的碧湾地铁站也将建成投入使用。




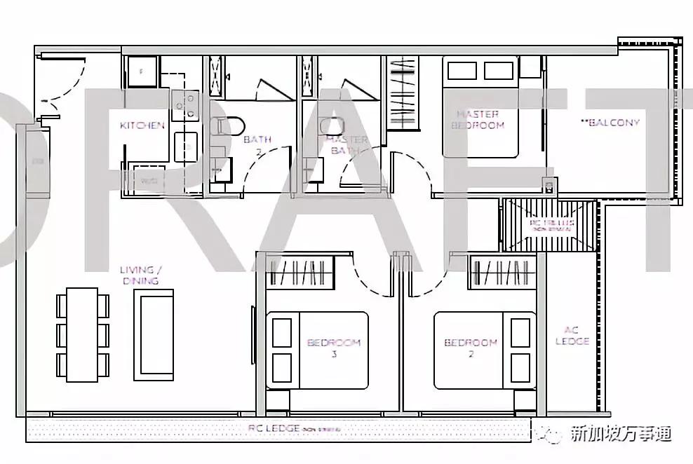
下图的三室一厅两卫户型,面积84平米(904平方尺),2楼定价159万1千新币,3楼160万1千新币,4楼定价161万2千新币。最后三间。
广告
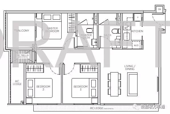
下图的三室一厅镜像户型,最后一间,2楼定价161万2千新币。

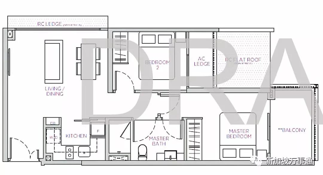
下图的三室一厅两卫户型,面积81平米(872平方尺),最后一间,2楼定价159万1千新币。

除了最后5间三卧户型以外,还有最后1间两室一厅户型待售。
面积62平米(667平方尺),2楼定价124万1千新币。
广告
文章的最后,萝卜再次提一下碧湾住宅新区的规划发展,对周边的潜在影响。
政府规划对房价的推动力,最近的例子,可以参考东部的巴耶利峇区域。
原本平平无奇的巴耶利峇区域,被政府列入重点发展规划之后,短暂三年脱胎换骨。今年,巴耶利峇地铁站对面的某99年地契公寓,卖到了2000新币每尺的惊人尺价。
早几年前,谁可以想像的到。
碧湾新区目前已经开始初步规划。建成之后,超过一万户的现代滨水大型住宅区,将带来旺热人气和充足的房产关注热度。
值得注意的一点是,新区住宅全部是99年地契。
下图是规划中的碧湾新区。

拥有永久地契,同时又靠近地铁和好学校的Sea Pavilion Residences,在当前的市场来说,可以说是一个性价比极高的选择。
有兴趣的买家,可以联系我进一步了解碧湾滨海住宅新区的区域规划,并参观样板示范间。
感谢阅读萝卜点评。
广告
彭威
新加坡万事通房产专栏作者
如果觉得我的文章对您有用,请随意打赏。你的支持将鼓励我继续创作!