
项目介绍
靠近地铁站
紫线兀里地铁站 / Woodleigh MRT
占地面积
19,547平方米
房型
1房、2房、3房、4房、5房
发展商
CEL UNQIUE DEVELOPMENT PTE LTD
广告预计交房时间
2022年
总共单位
805个
配套公寓设施
51项
楼层
6栋14~15层
参考价格:1房79.3万起,2房104.7万起,3房146.2万起,4房209.8万起, 5房279.1万起
点评发展商定价:
由于7月5号政府的新降温措施,发展商定价低于预期的1900-2000/平方英尺,现在1房单价$1713/英尺起,2房的单价$1692/英尺,比预计价格低$200-300/平方英尺,更具体的讲,拿2房635平方英尺拿计算,相当于帮买家节省了新币12.7-19万,三房预计更多。个人认为发展商的定价很有吸引力,值得有希望买房的朋友进场。试想如果没有政府最近公布的降温措施,预计定价1900~2000/平方英尺是意料之中的事情。
项目已于7月5号开盘,第一期开盘已经卖出接近50%的单位,发展商决定7月16号开始关闭样板房等以后再开放,二期开盘价格不确定,不过预计价格会上涨。这个周末要看房的朋友不要错过,尽快加我微信约看房时间。
项目介绍:
地理位置:Parc Colonial项目比邻紫线兀里地铁站,2分钟步行到地铁站,1站地铁到实龙岗地铁站,5站地铁到总统府所在地的多美歌地铁站,只需10分钟地铁。项目靠近CTE,PIE,KPE高速公路入口,方便驾车前往全岛各地。
广告比达达利新镇的开发,由新加坡政府MasterPlan规划蓝图重点打造的比达达利住宅新区,计划建造新的商场Woodleigh Mall和人工湖,由于地点靠近市区,新的组屋推出市场是就引起热购,新组屋采用垃圾回收系统,探讨共赏单车和共赏汽车的可能性,据说每个4房室组屋(3个房间)有高达12个申请者,不到9%的中签率,可见比达达利新镇这地点的火热程度。
教育方面,学校包括ST Andrew 小学/中学/初级学院,1公里内有知名的海星小学,海星中学,还有四德中学,大巴窑的培群小学等。国际学校方面,小区隔壁就现代化的美国史丹福国际学校,同时靠近澳洲国际学校,小孩可以2个月到18岁,从幼儿园直接就读到高中,租赁需求强劲。

商量林立,生活便利,有在新加坡的商场Woodleigh Mall,还有一站实龙岗地铁的NEX MALL,波东巴西地铁站有即将开业的The Poiz Centre商场,3站地铁到达花拉公园地铁的City Square Mall,靠近新的比达达利新组屋区和已有的旧组屋区,咖啡店,邻里小店,水果摊,诊所,面包店,湿巴刹(菜市场),生活配套设施齐全,满足家庭生活方面需求。
广告
项目漂亮图片大放送




广告
户型点评:
1房户型,43平方米/463平方英尺,开放式厨房,实用格局,带有储物空间,价格79.3万起

2房普通型,56平方米/603平方英尺,主人房可以直通阳台,2个房间由客厅隔开,有隐私。价格104.7万起

2房豪华型,63平方米/678平方英尺,每个房间可放双人床,适合小家庭住

3房普通型,87平方米/936平方英尺,主人房可以放大双人床,带小阳台挺特别,普通房可以放双人床。价格146.2万起
广告
3房豪华型,101平方米/1087平方英尺,主人房可以放大双人床,带小阳台挺特别,普通房可以放双人床。

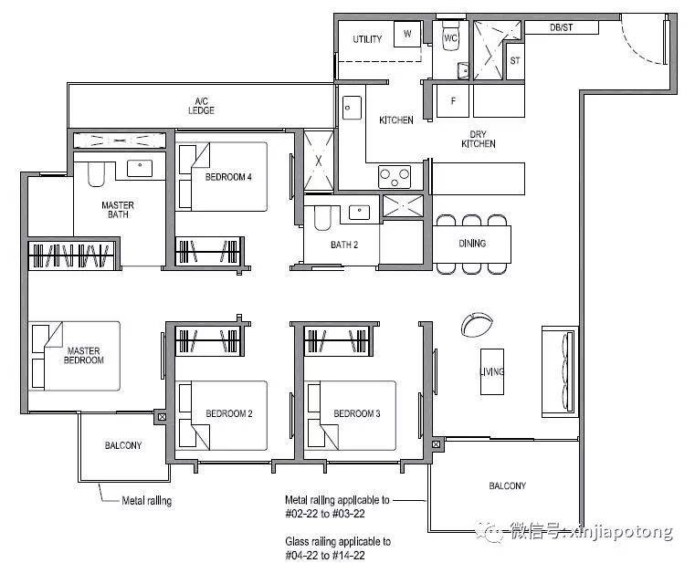
4房户型,110平方米/1184平方英尺,厨房分干湿两部分,2个主人房带卫生间,价格为209.8万起

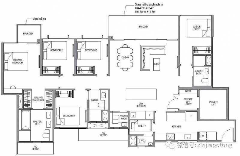
5房户型,159平方米/1711平方英尺,看起来像高档项目大平层设计,大客厅,厨房分干湿两部分,左右两侧2个主人房带卫生间,价格279.1万起
广告
作者个人简历:
2002年拿新加坡政府奖学金来新加坡深造,已经定居新加坡15年多,熟悉中国和新加坡的国情,现任职于新加坡股票交易所SGX上市企业,新加坡最大的地产公司之一ERA地产公司担任高级营销总监,从事房屋经纪行业8年多,已经完成数百宗房地产交易,成交的房屋价值高达新币上亿元,服务过数百位中高档客户,广受客户们好评。包括企业家,企业高管,中小型公司老板,房地产发展商,新移民,教授,医生等等。
熟悉私人公寓,商业地产,组屋的交易流程,全面了解房屋贷款,协助顾客办理好贷款,律师办理房产相关手续等,提供新加坡任何公寓楼盘和商业地产买卖投资服务,买私宅无任何经纪费用。
感谢各位客户朋友的支持,本人在公司多次获得顶级销售奖,提供诚意十足,细心周到的为客户服务,所以收到客户们的广泛好评,服务好任何客户是我的最重要原则,欢迎买家或卖家联系我。
如果觉得我的文章对您有用,请随意打赏。你的支持将鼓励我继续创作!