SCDA新加坡两个最新豪宅

哈咯,大家好!我是Joo。
SCDA如今已是豪宅的代名词,在创始人曾仕干先生的带领下,他们的设计作品爱马仕首个公寓不仅跻身全球最贵豪宅,更成为四季、柏悦、悦榕庄、华尔道夫争相合作的设计对象。
最近SCDA新加坡两大豪宅项目,Amber park、The riviere重磅发布!一起来看SCDA如何推动新加坡豪宅新趋势!
01
Amber Park

Amber Park(琥珀公园)是一个备受期待的豪宅项目,琥珀公园曾经是东海岸的标志,CDL地产集团看中了土地的价值,邀请著名设计事务所SCDA完成Amber Park的建筑与室内设计,其中还包括景观顾问。

屋顶规划图
我们都知道新加坡以绿色建筑为长,在这个项目中,最为期待则是屋顶公园,它的存在将“海与天空连为一色”。
三栋塔楼通过屋顶花园衔接为一个整体,更将屋顶打造为一个社区中心!


塔楼甲板创意与新加坡著名金沙酒店不谋而合,通过塔楼间的衔接,将天空景观重新塑造!


屋顶社区中心
在屋顶的设计中,SCDA将原本依赖于土地的生活方式上移,天台跑步、健身,这样的生活方式成为了“Amber Park”的价值符号!

天台600米慢跑跑道

天台健身房
在豪宅的设计中,曾仕干先生强调:“设计师标签、高级品牌、昂贵材质所必不能完全体现奢华空间”,真正的奢华属于“建筑、室内与景观的无缝结合”,它具有完整性、和谐性的美!

关于屋顶生活方式的尝试,正是践行了SCDA的设计语言!


天台的无边泳池
Amber Park层高22层,其中第22层是空中花园!共开设了525个住宅单位。实际占地面积共19,851㎡。

一层花园规划图
每一个豪宅都有一个值得关注的入口,在Amber Park的设计中入口的语言呈递进式。
豪宅入口
泳池也不再是单个的个体,它的存在将一楼的景观串联成一个整体!

豪宅入口景观

泳池旁的休息区

泳池旁的休息区,原生态的设计感,空间内外没有隔断,仅用透光的格栅分割空间各个区域。


原生态的设计感

在Amber Park的豪宅设计中,SCDA还完成了室内营造,高级灰的设计语言践行着“光与影”的设计理念。


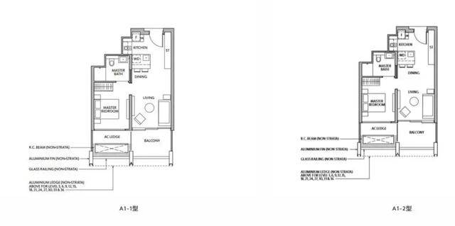
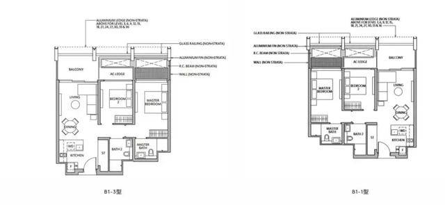
一起来看,豪宅的套房平面图
1卧套房

2卧套房



3卧套房

4卧套房


5卧套房

Penhouse

02
The Riviere

Riviere是一个罕见的混合开发项目,两座36层高的住宅楼、服务式公寓和3大仓库形成一个整体。

FCL新加坡最大的房地产公司,邀请了世界级新加坡本土事务所SCDA完成整个项目的塑造,这里原先是克拉码头最负盛名的zouk俱乐部!
创意表现

空中规划

项目总规划
热带气候的新加坡,SCDA将格栅用作幕墙的设计元素,将原有的建筑外又包裹了一层新的木饰面!。


木饰面幕墙
木饰面幕墙可以调节日照对于室内温度的影响,左右摆动的设计细节,减弱阳光的直射,并将室内的隐私性大大提高。

左右摆动的木格栅
木格栅元素不仅仅运用于建筑的外立面,它作为一个贯穿始终的元素也体现在室内设计的营造中!

豪宅的入户大堂
豪宅的入户大堂,以及内部的阅读区,都有木格栅元素的出现,与水景的结合也相当优雅。

大堂内的阅读区
空中泳池
SCDA的室内一直也是业界争相学习的标杆,在The Riviere的室内表现中,可用“惊艳”二字形容,内敛的精致感自有一股雍容华贵的气质。



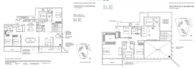
一起来看豪宅内平面图
1卧

2卧
3卧

4卧(penhouse)
如果觉得我的文章对您有用,请随意打赏。你的支持将鼓励我继续创作!