
豪华公寓
Le Nouvel Ardmore
坐落于新加坡阿莫园区的顶级豪宅 Le Nouvel Ardmore 嘉峰豪庭是新加坡数一数二的公寓大楼。
楼高33层,拥有 43 间豪华公寓,面积 377㎡和 486㎡,售价 2100万美金起

它是由建筑大师让·努维尔倾力打造的首个亚洲高端住宅项目。

让·努维尔 Jean Nouvel
他在设计中结合新加坡的城市特色,在纯净、简约的白色垂直线上加入绿植景观带,创造性的将大自然与建筑融为一体。

公寓大堂

建筑外观
建筑外立面呈网格状,在玻璃幕墙外装有折叠式遮阳板,达到最大化采光




总平面图
室内设计由新加坡-日籍设计师 Koichiro Ikebuchi 操刀,他在 2004 年成立了自己的工作室 Atelier Ikebuchi。

室内延续了建筑的纯白色调,开放的客餐厅当中点缀著代表自然的暖黄与草木绿。


白色高光的橱柜面板营造素雅的环境,厨房电器选用 Miele智能厨具电器


更衣间则采用深色的木饰面

复式户型有着挑空设计的阳台拥有绝佳采光和通风

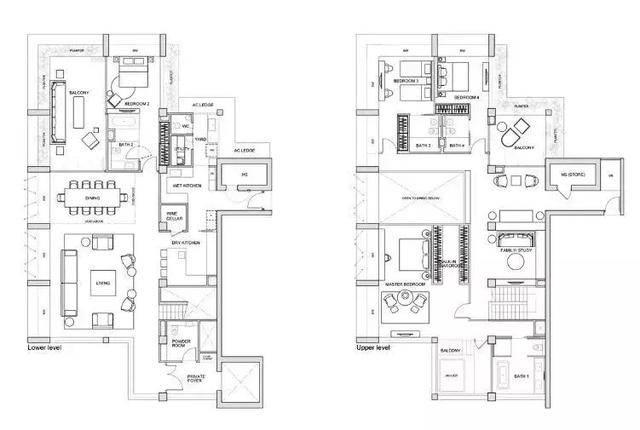
V1t房型平面图

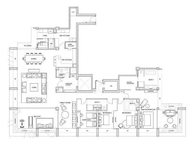
S1房型平面图
让·努维尔认为住宅应该“为人而筑”,在景观最好的26、27层布置了空中泳池、健身房、水疗馆及私人餐厅,可在享受城市天际美景的同时,举办各种社交聚会。




超高挑空的公寓楼用立柱与绿植形成虚实结合的开阔空间,在泳池水面的映衬下,更显自然宜人

26楼的天空泳池

大楼底部的户外泳池长 50米,四周种满绿植,和大厅里的喷泉造景交相呼应,为住户创造了广阔宁静的景观体验。



简洁的外观更容易创造经典,它的视觉美感和实用性都堪称典范。

项目信息、图片来源于官网:
https://lenouvelardmore.com.sg/gallery/
//
负责编辑丨Lilith
如果觉得我的文章对您有用,请随意打赏。你的支持将鼓励我继续创作!