新加坡的住宅区多数都已非常成熟,地铁和公交车网络覆蓋使得交通便利,区域性的大型购物中心也让住宅区生活非常方便。和其他国家相比,新加坡的住宅区充满着大大小小各种超市,餐馆,生活起来真的是十分方便。小编这里的住宅区泛指非中央地段,也就是新加坡的OCR和RCR区。而相比市中心的楼盘,非中央区的楼盘价格也更加诱人,很多地方也非常安静,祥和舒适。
下面就由小编给大家介绍几个既交通方便,周围也方便购物、用餐的楼盘吧!性价比非常高,价格可观,不要错过哦!
1. Jadescape 顺福轩
产权:99年
发展商:青建地产
占地面积:3.7万平方米
单位数:1206住宅 + 6商铺
房型:1居室~5居室
预计完工:2022年
地理位置:Ang Mo Kio/Bishan/Thomson
邻近地铁:Marymount 玛丽蒙

顺福轩可算是今年下半年的重磅大楼盘了,尤其是在印花税上调之后,依然浩浩荡荡的宣传造势,这跟它坐落在新加坡岛中心Thomson区并且距离地铁2分钟的步行距离有着必然的联系。顺福轩所处地段碧山、宏茂桥及汤申区是新加坡非常成熟的中心地段,仅仅在中央商业区的稍北方向。当这个楼盘建成后,它将是Marymount地铁边最新且最大的楼盘,步行去地铁的距离将和碧山著名的Sky Vue,Sky Habitat不相伯仲。未来还会有新的地铁站(汤申线)建成在其步行距离10分钟之内。
这一带成熟住宅区非常安静惬意,步行距离2分钟能到顺福熟食中心,价格便宜且接地气。向往高级商场的话可以去Junction 8, Thomson Plaza及AMK Hub这些大型购物中心,都在周边。购物,电影,休闲,餐饮都近在咫尺。喜欢运动和大自然的朋友更加有福啦,可以去著名的麦里芝蓄水池慢跑、野餐,就在楼盘的西边而已。



同时这个新项目也是学区房,附近有著名的光洋小学,德义小学,城静小学等。大名鼎鼎的莱佛士初级学院也是走路数分可到。这也是购房的朋友需要留意的地方。

至于风水问题也不需要担心,已经有人研究过!不过在这里我就不多做阐述,有兴趣的朋友可以向我咨询更多。

至于项目本身,是一个7栋组成的大项目,楼高最高是23层。每户都会有一个免费停车位。这个项目也会配备智能家居,智能管家系统,届时您将可以用手机操作控制家里的家居和电器,包括大门、电灯、空调等等,这在新加坡也是属于非常前卫的。

本楼盘于开卖当天就卖出了300套的好成绩,想过来售楼处参观请同我预约!开盘之后平均尺价稳定在16xx新币,比之前行业内预估的要低,现在开始售卖第二期,已涨价至17xx新币左右。
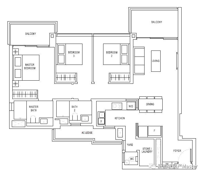
下面是户型。
一居室86.7万新币起。其中有一个为长者们专门打造的“黄金年华”AG户型,厕所里面安有扶手扶架,让老年人在上洗手间的时候能够更加方便。很适合买一套在您隔壁专门给父母养老,49平,户型图:

两居室114万新币起。下图是两室一厅两卫,72平。

三居室141万新币起。下图是三室一厅两卫,107平。

更大户型,更多户型图请像我索取!
2. JUI Residences
产权:永久!
发展商:Tiara Land Pte Ltd
占地面积:3.1万平方尺
单位数:117住宅单位
房型:1居室~3居室
预计完工:2022年中
地理位置:文庆/波东巴西
邻近地铁:文庆/波东巴西

Jui Residences之前是政府保护的历史保留建筑,前身是新中国汽水公司的老牌汽水厂,因为有重要的历史文化价值,充满一代人的回忆,直到16年底才被马来西亚的Selangor Dredging收购,打造成新公寓。因为傍依著加冷河(Kallang River),所以取名JUI Residences。

楼盘本身就很靠近市中心,属于新加坡中心区域的永久地契楼盘。步行七分钟可到达波东巴西地铁,10分钟到文庆地铁。驾车人士出公寓转个弯500米就可以上CTE,PIE高速,极其方便。出公寓到了实龙岗路有很多餐厅和小超市,大型餐厅或超市也在文庆地铁,或者去波东巴西的The Venue Shoppes,The Poiz Centre等,生活非常方便。

附近校区有明智小学,宏文小学,圣安德鲁初级学院,史丹福美国国际学校等。同时这一带也是非常受学生欢迎的租房区域,因为通过地铁或者打车可以很方便的去市中心的学校,这一片区租房经常都是供不应求。用来投资的朋友可以不用担心租房的问题!


楼盘多数单位都是南北朝向,泳池面向河边,享受自然美景。永久产权现在有折扣,竟然平均尺价在16xx新币!售楼处开放给公众参观,有兴趣可向我提前预约。推荐户型:
一居室,40平。81万新币起。最后一套。

两居室,61平。两居室最低是114万新币起,最后五套。
三居室,83平。三居室最低是145万新币起,也即将售罄,尺价是$16xx新币。
3. Coco Palms 椰林景
产权:99年
发展商:Hong Realty Pte Ltd
占地面积:4.1万平方米
单位数:950住宅单位
剩余房型:4居室~5居室
预计完工:2018已完工
地理位置:东部
邻近地铁:Pasir Ris/Tampines

椰林景处于Pasir Ris区,在新加坡的东部。步行五分钟就可以到巴西立地铁,十分钟车程即可到达机场。一共12栋,最高16层,已售完大部分单位,只剩下4-5房,严格来讲只剩下最后6套,18年刚刚完工。
仅400米距离的巴西立地铁站那边还有公车总站和白沙购物中心,可以说是生活交通都方便,应有尽有。驾车去市中心比如乌节也是20分钟车程。附近小学有伊莱雅园小学、云海小学、洛阳小学等近10个小学,百分之百的学区房。


平均尺价1250新元,四房 117平,162万起:

五房,162平,261万起:
4. Parc Botannia 翠林苑
产权:99年
发展商:Fernvale Green Pte Ltd
占地面积:1.7万平方米
单位数:735住宅单位
剩余房型:1居室~5居室
预计完工:2021年初
地理位置:东北部
邻近地铁:Sengkang盛港

Parc Botannia翠林苑是位于盛港的全新楼盘,隔壁的峰景苑当年以极快的速度卖完,而这个就是在峰景苑旁边的姐妹楼盘!下楼就到轻轨站,步行十分钟或者一站轻轨就可以到达大型商场Seletar Mall,餐厅超市电影院应有尽有。楼盘周围绿化带丰富,空气清新。这一带的楼盘,价格也是非常大的优势,这种条件的楼盘以目前的价格在新加坡已经是很难找到,也很难说未来不会涨价,预购从速了。
一共四栋,22层楼高。现有直降高至45,000的特别优惠!只剩下部分两居室和三居室!两房93万起,三房111万起。学区房,附近有康林小学,丰伟小学等。

小区泳池健身房等设施齐全,户型设计好,尺价低至1200新元,平均尺价13xx新元。
户型图如下:


5. Affinity at Serangoon (安菲尼迪)
产权:99年
发展商:Oxley Serangoon Pte Ltd
占地面积:2.7万平方米
单位数:1052住宅单位
剩余房型:1居室~5居室
预计完工:2022-2023
地理位置:东北部
邻近地铁:Serangoon实龙岗

Affinity at Serangoon由鼎鼎大名的开发商Oxley豪利控股所开发。属于实龙岗区少有的大型楼盘,包含1052个住宅单位和5个商铺单位。项目包括7栋14层高、2栋3层高和1栋2层高的建筑组成,小区非常大。
周边其他住宅多是有地别墅和政府组屋,可比性低,这让这个楼盘的竞争力大大增加。公寓配套设施非常齐全共88个,包括50米的健身泳池、休闲娱乐泳池、SPA、健身房、空中烧烤台。交房标准为精装修,并送一个车位。房屋布局合理,厨房采用中式、西式理念设计,配置大牌Grohe的装饰以及Bosch品牌的电器。
位置临近的地铁站有实龙岗站,碧山站,后港站等三大交通枢纽环绕,通往乌节,牛车水,克拉码头等热门地带十分方便。这些地铁站本身也是大型购物中心,超市、影院、美食,潮流服饰应有尽有。从楼盘步行数分钟可到实龙岗花园,非常出名的美食聚集地,新加坡晚餐和夜宵的热门去处。开车人士也非常方便,仅需17分钟可达乌节路等中心地段。
同时也是重点学区房:1公里内名校有新加坡前十的乐赛小学,也有其他中华小学、新民小学,圣婴女小等。

重大消息:政府确认未来建造新的地铁站,距楼盘距离仅步行5分钟;这使得这个楼盘将来不仅仅是重点学区房,还会是地铁房,新的地铁线直通机场,连接至岛中心,将来会有很多潜在租客和买家看中我们的楼盘!现在以无地铁的价格购买,以后以地铁房的价格卖出,想想也是绝佳的投资选项!
急速热卖中!尺价低至12xx新元,平均尺价15xx,现还有1-4房可供选择,有兴趣的买家请联系我索取户型图!
===============================
(注:价格以发展商当日售价为准)
结语
小编本篇共为大家介绍了5个楼盘。这些都是热卖楼盘,一些已经接近售罄,有兴趣在新加坡投资或长期居留的买家请不要犹豫,为了减缓印花税上涨的冲击,部分楼盘及单位现在还有5%折扣或类似优惠,优惠随时会结束。赶紧联系我吧!
如果觉得我的文章对您有用,请随意打赏。你的支持将鼓励我继续创作!