两室一厅户型,是投资型买家和自住型买家都会关注的一个户型。对于刚需买家来说,两室一厅户型满足了小型家庭的自住需求。
对于投资型买家来说,两室一厅户型可以出租给情侣,三口之家,或者两三个朋友合租。租客覆蓋面广,出租回报率高。
正因为同时覆蓋了投资和自住需求,两室一厅小公寓,通常是一个楼盘最好卖的户型。
市面上综合条件比较好,价位也合适的两室一厅公寓,一般走得很快。
比如说市区珊顿道的 V on Shenton 楼盘,核心武吉知马区的 Leedon Residences,乌节路地区的 Twin Peaks , 中部碧山区的 Thomson Impressions , 东部淡滨尼区的 The Santorini,阿裕尼区的 Tre residences,这些小编觉得不错也曾经介绍过的楼盘, 两室一厅的单位都早早没有了。
如果一个楼盘的两房户型卖不动,通常要么是户型设计有问题,空间浪费太多,布局不合理,要么是朝向不好,西晒,靠近高速公路太吵,要么定价太贵,这些硬伤。
如果想买到各方面条件都不错,价格也称心合意的两房,一种办法是去盯刚开盘不久的新盘,选择比较多。这种就是要等挺久,通常要两年半到3年以后才能拿钥匙。
还有一种办法是找大型楼盘。八九百户乃至于上千户的大盘,两房单位没这么快卖完,可以从容的选择。
今天这篇文章里,我会集中推荐一批最近市面上高性价比的两室一厅户型公寓。价位基本集中在90万-130万之间。
全岛东西南北中,全方位介绍,多图放送!
按照惯例,来一张全岛邮区图镇楼。

SophiaHills 苏菲雅山庄
楼盘简介

地图实景

把 Sophia Hills 放在第一个介绍,是因为这个盘的两室一厅单位太符合标题了,这是目前市面上性价比最高的楼盘之一。
地点位于市中心核心地段,乌节路的尽头,购物中心和各种商业大楼密布,旁边不远就是总统府。距离最近的多美歌地铁站是三条地铁线的交汇处。
新加坡管理大学(SMU)的校园离此不远,学校职工和学生可以提供大量的租客来源。
Plaza Singapura 这样的大型购物中心就在家门口。
优越的地理位置以外,最关键的是它的价位,两室一厅一卫单位113万起,两卧双钥匙单位133万起。
这是市中心地段的新盘能看到的最好价位了。




左边的两室一厅一卫户型,面积53平米(570平方尺)
右边的两房双钥匙单位户型,面积65平米(700平方尺)

Sims Urban Oasis盛世名园

楼盘简介

地图实景

Sims Urban Oasis 楼盘,位于新加坡东部阿裕尼地铁站的北上方,这里属于传统居民区,距离阿裕尼地铁站约350米。
从公寓出来,过个马路,往南走过一个学校就到地铁站了。走快点用不了5分钟。
从阿裕尼地铁站出发,三站地铁到 Bugis 商业区,四站地铁到 City Hall 市中心, 出行非常便利。
如果开车出行的话,新加坡几个中心区域,包括乌节路,传统CBD地区,滨海湾金融新区,都在六七公里距离,10分钟车程范围内。
Sims Urban Oasis 的一大卖点,就是靠近市中心的地理位置。
它的另一大卖点就是价格了。平均尺价在1350上
下。
两个卖点综合成一句话,就是:比它位置好的盘都比它贵,比它便宜的盘位置都没它好。
同样是一个性价比高的公寓楼盘。
Sims Urban Oasis 是超过一千户的超大型楼盘,总共设计了八栋高楼。小区设计包括了奥林匹克泳池,戏水池,水力按摩池,健身房,烧烤台,禅意花园等多达55种设施。
值得一提的是19楼的空中花园,可以直接观赏滨海湾风景线。
小区里专门设置了幼儿园和6个商铺,满足住户们的日常需求。



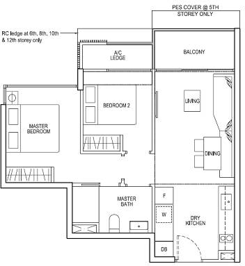
下图的两室一厅+书房户型,面积62平米(667平方尺),南北朝向,泳池景观,14楼97万6千起。还剩最后2间。

North Park Residences
楼盘简介

地图实景

North Park Residences 位于义顺地铁站对面,是北部少见的大型综合发展项目— North Point City 商住综合项目的住宅部分。
North Point City 综合发展项目建成之后,将整合现在的纳福坊购物中心,开设超过500间的商铺和餐厅,大型食阁,社区花园,幼儿园,银行,以及公共图书馆,生活极度便利。
各大公共运输设施也将实现无缝连接。North Park Residences 的住户可以通过地下通道,三分钟直达义顺地铁站和全新的综合冷气巴士转换站。
North Park Residences 本身是一个920户的超大型楼盘,建有12栋10层小高楼,占地4万平米。
公寓设施多达88种,包括了为孩子们设置的探险湾;提供水上健身,瀑布池等各种设施的娱乐湾;提供各种聚会设施的欢聚庭;以及园林和水景庭院等等,应有尽有。




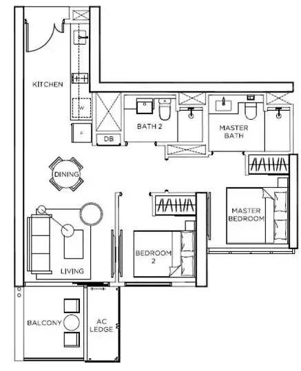
下图的两室一厅一卫户型,面积58平米(624平方尺),还有最后3间,7楼定价89万9千。

两室一厅两卫户型,两房少见的封闭式厨房设计,面积70平米(753平方尺),还有最后4间,5楼定价107万2千。

Gem Residences

楼盘简介

地图实景
位于中部大巴窑地区的 Gem Residence 楼盘,距离最近的布莱德地铁站约400米,大巴窑地铁站约800米。
大巴窑地区是本地的大热门居住地。这里靠近市区,交通便捷。从大巴窑出发,三站地铁5分钟到乌节路,五站地铁10分钟到多美歌市中心。
这一带是建国第一批组屋兴建的地区,已经得到充分的开发,周边遍布著大量的食阁,咖啡座,超市和便利店,居住生活极度便利,附近比较新的组屋已经卖到了80万的高价。
大巴窑地区的空置地皮所剩不多,住宅主要是组屋,公寓数量稀少。Gem Residences 是大巴窑地区7年来唯一的新公寓项目。
Gem Residences 楼盘由两栋37层和38层超高楼组成。全部的单位南北朝向,向北的高楼能看到麦里芝蓄水池风景,向南的高楼可以远眺市区滨海湾和金沙风景。
Gem Residences 提供大量的公寓服务和设施,24小时礼宾服务,免费医生门诊服务,天台的体育吧台,天台花园,宠物泳池,瑜伽和烹饪课程,满足不同家庭各种各样的需求。
学校方面,培群小学在公寓一公里范围,莱佛士女子学校的新校区选址在布莱德地铁站对面,2019年即将迁入。



Gem Residences 的两卧户型现在还剩7间。
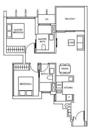
下图的两室一厅两卫户型,面积63平米(678平方尺),108万起。

Commonwealth Towers
楼盘简介

地图实景

Commonwealth Towers 这个楼盘的重点只有一句话,发展商在促销!
同样的户型,不同楼层一口价。35楼以上的超高层两卧单位128万8千起。
Commonwealth Towers 位于新加坡中南部第三邮区,过条街就到了女皇镇地铁站(Queenstown)。
从女皇镇方向,往东去市区CBD,东北方向去乌节路,往南去Vivo City商城和圣淘沙,东南方向去滨海湾金融新区。
都在十分钟交通圈范围。
Commonwealth Towers 占地1万2千平米,小区设计兴建两栋43层的超高楼建筑,总共845个单位。各类公寓设施超过了50种。
住家附近的宜家商场和女皇镇购物中心,可以满足日常生活需要。如果想要去远一点,10分钟车程直达新加坡最大的VivoCity购物中心和圣淘沙岛。



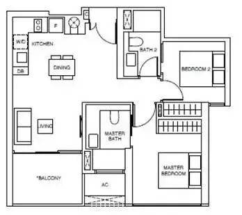
下图的两室一厅两卫户型,面积65平米(700平方尺)
下图的两室一厅两卫户型,厨房可封闭,面积70平米(753平方尺)

Highline Residences

楼盘简介

地图实景

Highline Residences 位于新加坡中南部的中峇鲁地区,属于中高端类型公寓。楼盘距离中峇鲁地铁站约250米,步行三分钟。距离兴建中的Havelock地铁站约520米。
中峇鲁是新加坡最早的城区之一。随着时代的发展,大量的咖啡座,酒吧,书店,餐厅和精品店出现在这个老城区,新潮流和老建筑结合在一起,带着怀旧的气息,散发出浓浓的文艺范儿。
2012年,中峇鲁被评为全球最有风格的50个街区之一,是东南亚唯一上榜的街区。
这里也是旅居的外来人才青睐的热门居住地点。

Highline Residences的整体设计包括了两栋36层的超高楼,一栋21层的小高层,以及四栋4层的小楼。总共拥有500个公寓单位,预计2018年底前兴建完成。
小区设施分布在底楼,5楼,22楼和36楼,包括了奥林匹克标准泳池,蝴蝶园,秋千园,香料园,都市农场,空中健身房,儿童戏水池,流水瀑布,顶楼会所,等超过四十种公寓设施。
其中五楼长达180米的绿色步道令人印象深刻。



下图的两室一厅户型,面积59平米(635平方尺),28楼售价135万起。

本篇集中介绍的几个楼盘,各自有各自的独特之处,都是小编自己觉得性价比不错的项目。
市场上其实还有一些相当好的楼盘,设计一流,地点也好,没有列入推荐,主要还是价格因素。
比如说位于红山区的 Alex Residences 楼盘,造型酷似金沙酒店的无边泳池,去年11月我曾经重点推荐过,当时还有二十多楼的单位,130万左右,这个价位还可以。现在只剩下30楼以上的超高楼单位,定价超过了140万,价位就不太适合了。
又比如说乌节路区域的 Gramercy Park 楼盘,去年的最佳豪华公寓大奖得主,今年新推出了南楼的两室一厅公寓待售,但是定位在豪宅市场,适合口袋很深,又特别中意这个楼盘设计,希望买来自住的买家。
房产最大的魅力,就在于每一个楼盘,具体到每一个公寓单位,都是不同的。别人喜欢的,不见得自己家喜欢。适合自己家情况的,也不一定适合别人家。
找到最合适的,才是最好的。
希望每个人都能找到合适自己的梦想家园。
如果觉得我的文章对您有用,请随意打赏。你的支持将鼓励我继续创作!