第二中央商业区将集商业活动、住宅、休闲、绿意于一体。这里为您推荐比邻这个商业区的豪华住所,御峰(Whistler Grand)公寓。该项目位于新加坡第D05邮区/金文泰区的West Coast Vale(西海岸谷),属于新加坡的西区,是西部的核心地带。
御峰公寓占地地约19,592平方米(210,887平方尺),拥有99年地契。御峰公寓由著名发展商城市发展集团开发,有质量保证,每个单元均是经过精心设计的。公寓将建造2栋36层楼高的建筑,提供716套私宅单位和2间商铺。户型包括1-5卧室及阁楼单元,面积介于41-225平方米(441-2422平方尺)。其中三卧室和四卧室还推出双钥匙单元。
这是一个大型公寓项目,设施完善,傲立群雄,拥有班丹蓄水池和武吉知马自然保护区美丽全景,设有6个会所和60多项包括悬臂式健身房和攀岩墙等休闲娱乐健身设施,第24层拥有景观休息厅、空中餐厅与宽敞的露台。公寓距离名校南华小学只有800米,是名副其实的学区房。公寓紧靠裕廊第二中央商业区,紧邻Clementi Mall、Westgate、JEM和IMM等大型购物商场,增值潜能大。

御峰楼盘新卖点

Whistler Grand
靠近名校南华小学(800米),教育资源丰富;
紧邻Clementi Mall、Westgate、JEM和IMM等大型购物商场;
紧靠裕廊第二中央商业区,增值潜能大;
傲立群雄,拥有班丹蓄水池和武吉知马自然保护区美丽全景;
由著名发展商城市发展开发,有质量保证;
6个会所和60多项包括悬臂式健身房和攀岩墙等休闲娱乐建身设施;
超长游泳池(88米),享尽泳池乐趣;
第24层拥有景观休息厅、空中餐厅与宽敞的露台;
选择多样化,有1-5卧室和双钥匙单元供选择;
采用先进的智能家居设备;
高质量的建材和品牌家私设备;

规划中的裕廊创新区
紧邻商业中心,购物美食相随

Whistler Grand
御峰(Whistler Grand)位于第D05邮区的West Coast Vale(西海岸谷),属于新加坡的西区,规划在金文泰(Clementi)地区,是西部的核心地带。
御峰公寓距离未来的班丹蓄水池地铁站(Pandan Reservoir MRT Station)约1公里,步行就可抵达,由此可前往裕廊东,并通往全岛各地。御峰附近100米范围内还有多趟巴士服务,如巴士路线201、197、198、154和97等,通往全岛多个地段。
御峰公寓的驾车人士可通过附近的亚逸拉惹高速公路(AYE),连接中央高速公路(CTE),前往全岛各地。驾车人士只需12分车程就可抵达中央商业区和金融中心,13分钟抵达繁华的乌节路购物商圈。因此无论是公共运输,还是自驾出行都非常便利。

御峰公寓效果图

御峰公寓比邻第二中央商业区

御峰公寓附近的购物娱乐场所
御峰靠近Newest公寓购物商场,这里有141个商铺单位包括超市,是餐饮、娱乐、购物的的好去处。
御锋也靠近金文泰购物中心(Clementi Mall)以及裕廊东市中心的多个商场,如IMM商场、裕廊东广场 (JEM)、BigBox、西城(Westgate)和裕冰坊(JCube)等。
御峰居民在附近也能找到许多熟食中心,如新加坡小有名气的亚逸拉惹熟食中心(Ayer Rajah Food Centre)、大牌37A德漫花园路巴刹与熟食中心(37A Teban Gardens Road Market and Food Centre)、大牌502西海岸熟食中心(502 West Coast Drive Market Centre)和大牌448金文泰3道的熟食中心(448 Clementi Ave 3 Market and Food Centre)等,让您大饱口福。
御峰南华比邻,拥抱教育科技

Whistler Grand
御峰居民有一个非常令人羡慕的优势,那就是孩子的教育。许多父母希望自己的孩子不能输在起跑线上而想方设法将孩子送到名校上小学。
御峰附近有两所距离只有800米的小学南华小学和启发小学。南华小学是新加坡数一数二的小学,是少数几个开设天才班课程的学校。而启发小学也小有名气,曾经是全国小六会考状元的发源地。
除了小学,公寓也靠近一些中学,如立才中学(Commonwealth Secondary School)、金文泰林中学(Clementi Town Secondary School)和东林中学 (Tanglin Secondary School)以及日本人学校(中学)(The Japanese Secondary School)等。

御峰公寓附近的名校南华小学
御峰公寓位于西部,距离新加坡的两所最著名大学新加坡国立大学和南洋理工大学也不远,附近的公寓中,许多单元均被大学的教职员工购得或出租给这些大学的教职员工和在读本科生和研究生。公寓距离纬壹高科技园区也不远。总体而言,这里是高科技人才的聚集地,是拥抱教育科技的阵地。

御峰公寓附近的其它教育机构
全景公寓、绿意盎然、拥抱自然

Whistler Grand
御峰双塔楼楼高36层,傲立群雄,将班丹蓄水池与武吉知马自然保护区的美景尽收眼底。您的家旁就是一条河道,通往班丹蓄水池。带着家人,骑着自行车,沿着河道,环绕无边无际的水池;或者划著小船,沿河而钓,那是何等的悠闲、何等的惬意;您甚至可以高歌一曲,与大自然畅饮。
御峰的设计及其地理位置营造出轻松愉悦的居住氛围。玻璃窗衬有一个带红色的灰色幕墙,沿着建筑而下,外观采用当代纹理设计修饰,让您尽情体验精致宁静的生活。这是一片绿洲,是西海岸的一部杰作,是人们无不羡慕的完美家居!
水天一色的御峰公寓
御峰公寓是松弛身心的理想居所

Whistler Grand
御峰源于英文Whistler Grand。Whistler(惠斯勒)是加拿大的一个旅游胜地,是2010冬季奥运会的举办地。惠斯勒坐落在壮观的海岸山脉中,两座雄伟的山脉环抱着一个生机勃勃的度假村,是世界上最好的山地自行车公园,也是徒步旅行好去处。公寓以此命名旨在公寓居民也可享受惠斯勒般的度假村生活。
御峰为此不惜代价建造超过60项休闲设施并设6个会所,让居民的日常休闲、健身、娱乐生活放在首位,让居民享受惠斯勒般的度假村生活。如居民们可以到令人心旷神怡的泳池健身、或到豪华露营场地搭帐篷露营过夜,而孩子们可在探险区的攀岩墙、水上飞狐及儿童探险池玩乐,度过美好童年!
特别值得一提的是,在第24层,公寓建造了一个天宇体验区,居民可以在这里享受更高层次的生活,如可以在景观休息厅欣赏无遮挡风光,在空中餐厅享受美食,与朋友家人度过美好的一天。而在公寓的第30层还建造了星际区,让您和您的家人观测天文景观,探索美妙的星空。

御峰公寓的超长泳池(88米)
御峰公寓智能家居新体验

Whistler Grand
御峰公寓采用先进的Gateway智能家居系统。每个单元都将安装一套可平行及倾斜移动的具有夜视功能的摄像机,并与手机应用程序连接,进行远程监控及摄像机操控。居民可以通过手机以音控等方式远程监控家中发生的事情,并遥控大门的开启和关闭。公寓也提供智能语音助手,具有日程提醒、播放音乐、音控智能家居设备、提供新闻与天气预报等信息。公寓也提供智能数码锁,居民可通过出入卡、密码、钥匙及手机应用程序开关门锁。居家空调也可通过手机应用程序远程遥控开关及控制温度。公寓也提供智能照明遥控系统,通过手机应用远程遥控家中智能灯光的开关和亮度。真可谓,现代家居,轻松遥控,安全便利。
投资潜能分析

Whistler Grand
在购买御峰公寓之前,买家一定会考虑御峰公寓是否具有增值潜能。投资潜能分析至少应包括位置潜能、价格定位和租金回报。先来分析御峰公寓的地理位置。御峰公寓位于西部的金文泰区,距离开发中的第二中央商业区只有约五分钟的车程。这个距离就相当于丹戎巴葛前往第一中央商业区的距离。从这点上看,御峰公寓的增值潜能的可预期的。
我们再来分析御峰公寓的价位潜能。御峰公寓在政府售地计划中出价4亿7240万新元,这相当于容积率每平方尺S$800元的价位。与之具有一定可比性的Normanton Park获得整体重建,容积率每平方尺S$969元。另一栋获整体重建的West Park公寓的容积率每平方尺S$850元。还有一栋是Brookvale Park整体重建项目,容积率每平方尺S$932元。这些项目的容积率每平方尺价位均高于御峰公寓,可见该公寓具有较大的投资潜能。
最后来分析一下租金回报。租金回报也与公寓的地理位置有关。御峰公寓与第二中央商业区的距离相当于丹戎巴葛前往第一中央商业区的距离。也就是说,御峰公寓的租金回报将会随着第二中央商业区的建设逐步提高。另外,御峰公寓距离新加坡国立大学和南洋理工大学以及纬壹科技园均不太远,御峰公寓的超完备设施及无遮挡的景观将极大吸引这些高端专业人士租住,也将进一步提升御峰公寓的租金回报率和投资潜能。

御峰公寓的智能家居系统

御峰公寓的智能家居系统
户型设计和雅居欣赏

Whistler Grand
御峰公寓由实力相当雄厚的本地开发商城市发展集团(City Developments Limited,CDL)开发。CDL是一家全球领先的房地产运营公司,在29个国家和地区拥有103个分支机构。该集团在新加坡交易所上市,是市值最大的公司之一。CDL已经开发了超过43,000套住房,并在全球拥有超过1800万平方英尺的可出租面积。御峰公寓占地约19,592平方米(210,887平方尺),拥有99年地契。
御峰公寓的每一套单元均是经过精心设计的。就连储藏室的门厅都配备镜子。主卧室还配备衣饰柜及步入式衣橱。厨房设备更是齐全,如有名牌Bosch抽油烟机、炉灶、烤箱及冰箱等,还有Bosch洗衣烘干机、主浴室内的Duravit与Grohe等品牌的装备与配件等,让您的家居上档次、高品位。
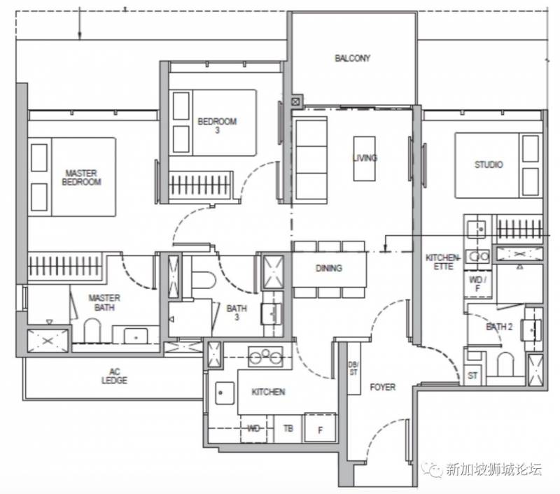
御峰公寓将建造2栋36层楼高的建筑,提供716个私宅单位和2间商铺。户型包括69套一卧室、69套一卧室+书房、165套两卧室、105套两卧室+书房、140套三卧室、35套三卧室+双钥匙、66套四卧室、31套四卧室+双钥匙、34套五卧室和2套五卧室阁楼单元,面积介于41-225平方米(441-2422平方尺)。

御峰公寓的室内设计
01
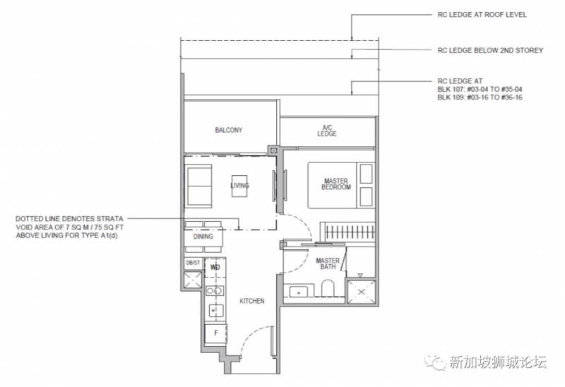
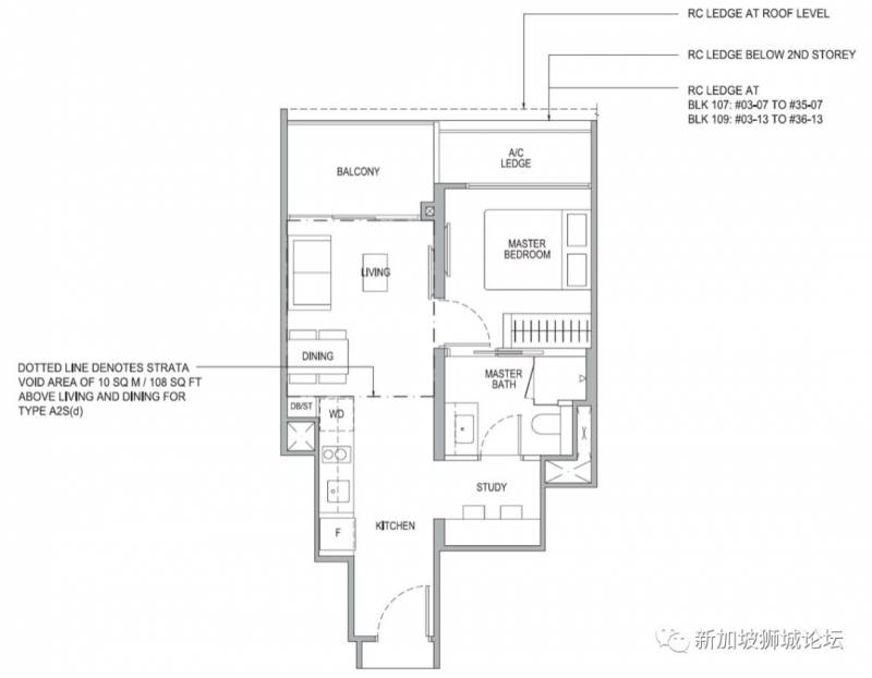
一卧室,套内面积41-48平方米(441-517平方尺),整套售价从S$681,210元起。特点是户型方正,布局合理,采用开放式厨房,节省空间。客厅与餐厅共享空间,客厅还配备阳台,房间配备衣柜。这样的户型非常适合单身人士或新婚家庭以及相应的专业人士。

御峰公寓的一卧室户型图
02
一卧室+书房,套内面积47-57平方米(506-614平方尺),整套售价从S$718,470元起。特点也是户型方正,布局合理,采用开放式厨房,节省空间。客厅与餐厅共享空间,客厅还配备阳台,房间配备衣柜。这样的户型非常适合单身人士、新婚家庭、或有一个年幼孩子的夫妇以及相应的专业人士。
御峰公寓的一卧室+书房户型图
03
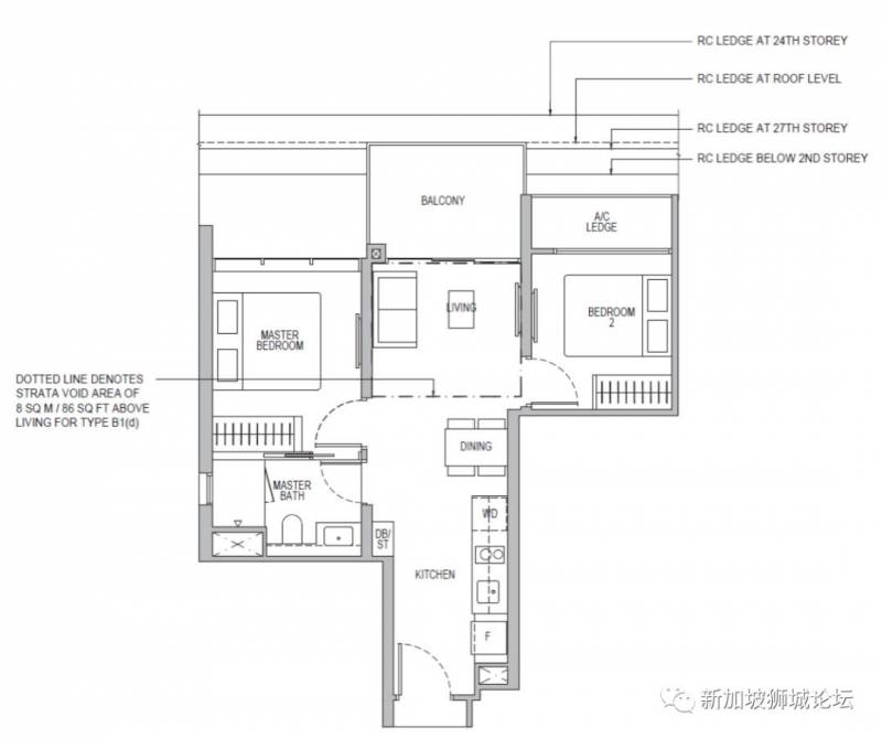
二卧室,套内面积56-65平方米(603- 700平方尺),整套售价从S$811,620元起。特点也是户型方正,布局合理,采用开放式厨房,只配备一个卫生间,节省空间。客厅与餐厅共享空间,客厅还配备阳台。所有二卧室的两个房间均可放置双人床,并配备内置衣柜。这样的户型非常适合新婚家庭、有一个孩子的家庭、与父母同住的夫妇以及相应的专业人士。

御峰公寓的二卧室户型图
04
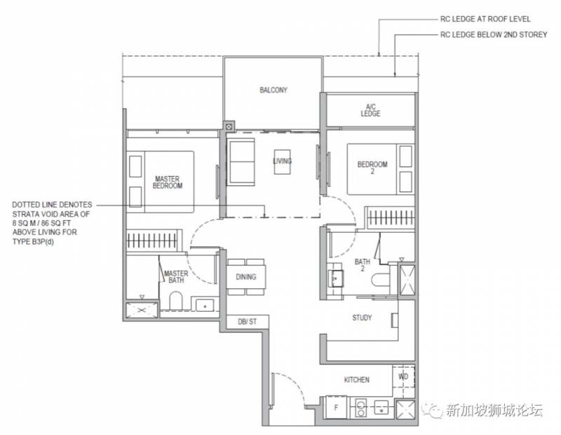
二卧室+书房,套内面积71-79平方米(764-850平方尺),整套售价从S$1,012,500元起。特点也是户型方正,布局合理,采用开放式厨房,节省空间。客厅与餐厅共享空间,客厅还配备阳台。这个户型提供2个卫生间,所有二卧室的两个房间均可放置双人床,并配备内置衣柜。这样的户型非常适合新婚家庭、有一二个孩子的家庭、与父母同住的夫妇以及相应的专业人士。

御峰公寓的二卧室+书房户型图
05
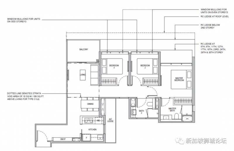
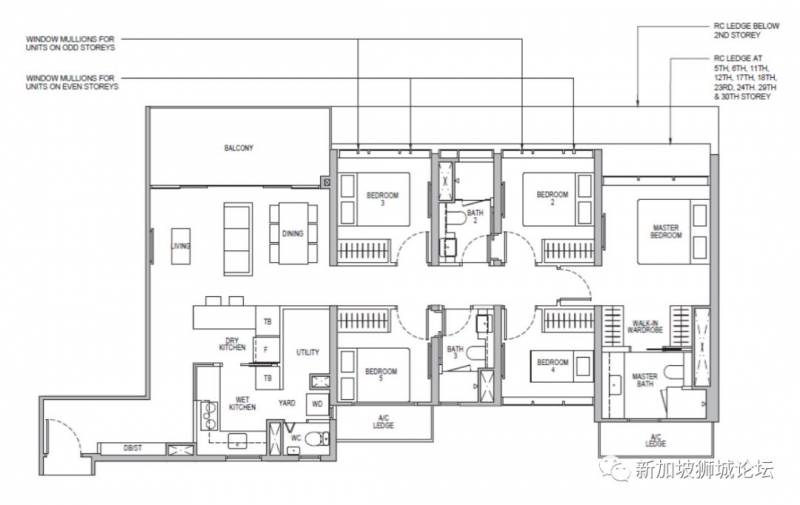
三卧室,套内面积89-109平方米(958-1173平方尺),整套售价从S$1,217,430元起。特点也是户型方正,布局合理。厨房相对独立。客厅与餐厅由过道隔开,客厅还配备阳台。所有的三卧室的三个房间均较宽敞,可放置双人床,并配备内置衣柜。这样的户型非常适合有二个孩子的家庭或与父母同住以及相应的专业人士。

06
三卧室+双钥匙,套内面积92-102平方米(990-1098平方尺),整套售价从S$1,263,600元起。特点也是户型方正,布局合理。一进门便是双钥匙设计,两扇门,其中一个通往两卧室套间,另一扇门通往一卧室。一卧室单元包括厨房、卫生间和卧室。二卧室部分客厅与餐厅由过道隔开,客厅还配备阳台。厨房相对独立。所有的三卧室的三个房间均较宽敞,可放置双人床,并配备内置衣柜。这样的户型非常适合有一二个孩子的家庭、或与父母同住、或出租其中一套以赚取额外收入的家庭以及相应的专业人士。
御峰公寓的三卧室户型图
07
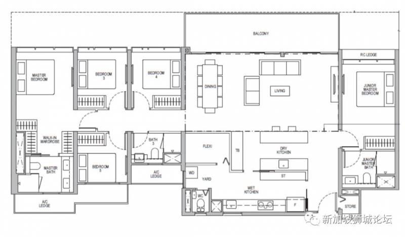
四卧室,套内面积119-136平方米(1281-1464平方尺),整套售价从S$1,587,600元起。特点也是户型方正,布局合理。干湿厨房分开,妈妈们一定喜欢。客厅与餐厅共享空间,并一起配备一个大阳台。所有的四卧室的其中三个房间均较宽敞,可放置双人床,并配备内置衣柜,主人房还配备步入式衣柜。这样的户型非常适合有三个或以上孩子的家庭及多代同堂家庭以及相应的专业人士家庭。

御峰公寓的四卧室户型图
08
四卧室+双钥匙,套内面积118-128平方米(1270-1378平方尺),整套售价从S$1,589,220元起。特点也是户型方正,布局合理。一进门便是双钥匙设计,两扇门,其中一个通往三卧室套间,另一扇门通往一卧室。一卧室单元包括厨房、卫生间和卧室。三卧室部分客厅与餐厅由过道隔开,客厅还配备阳台。厨房相对独立。所有的四卧室的四个房间均较宽敞,可放置双人床,并配备内置衣柜。这样的户型非常适合有二三个孩子的家庭、或与父母同住、或出租其中一套以赚取额外收入的家庭以及相应的专业人士。

御峰公寓的四卧室+双钥匙户型图
09
五卧室,套内面积134平方米(1442平方尺),整套售价从S$1,810,350元起。特点也是户型方正,布局合理。干湿厨房分开,妈妈们一定喜欢。客厅与餐厅共享空间,并一起拥有一个大阳台。所有的五卧室的其中四个房间均较宽敞,可放置双人床,并配备内置衣柜。这样的户型非常适合有三个或以上孩子的家庭及多代同堂家庭以及相应的专业人士家庭。

御峰公寓的五卧室户型图
10
五卧室阁楼,套内面积206-225平方米(2217-2422平方尺),整套售价从S$3,321,000元起。特点也是户型方正,布局合理。干湿厨房分开,并相对独立,空间也宽敞,妈妈们一定喜欢。客厅与餐厅共享空间,并一起拥有一个大阳台。阁楼单元拥有一个主人房和一个准主人房,均配备独立卫生间。所有的五卧室的五个房间均较宽敞,可放置双人床,并配备内置衣柜,主人房还配备步入式衣柜。这样的户型非常适合有三个或以上孩子的家庭及多代同堂家庭以及相应的专业人士家庭。
御峰公寓的五卧室阁楼户型图
御峰公寓,两栋36层楼高的双塔建筑,将屹立于西部广饶的班丹蓄水池旁,拥有武吉知马自然保护区的美丽全景。
这是新加坡的Whistler(惠斯勒),御峰不惜代价建造超过60项休闲设施并设6个会所,将居民的日常休闲、健身、娱乐生活放在首位,让居民享受惠斯勒般的度假村生活。
御峰公寓采用优质建材,一流的品牌家私,先进的Gateway智能家居系统。真可谓,现代家居,豪华气派、智能遥控、安全便利,只在手指间。
御峰公寓比邻第二中央商业区,相当于丹戎巴葛前往第一中央商业区的距离,再加上发展商定的价位相对合理,60多万就可买一套公寓,而且是靠近亚洲著名大学和高科技园区的豪华公寓,巨大的增值潜能不言而语。有报道说,新加坡房市的小阳春又来了,抓住机会,联系吴洲团队,享受贵宾咨询服务。

如果觉得我的文章对您有用,请随意打赏。你的支持将鼓励我继续创作!