
2018年开盘的第一个新楼盘,预计是2018年新楼盘项目中价格最低的楼盘,所以有兴趣买房的朋友尽快加我微信哦。
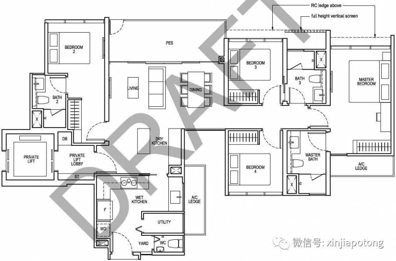
荟景嘉园TheTapestry总共861个单位,占地面积多达2万多平方米,由7栋15层的单位组成,户型包括有1房,2房,2+书房,3房,4房,4房双钥匙,5房双钥匙+书房,下面会详细介绍户型。
广告参考价格:1房61万起,1+书房69.1万起,2房78.8万起,3房113.5万起,4房167.1万起
项目要点:
Ø 位于新加坡配套成熟住宅社区——东部CBD淡滨尼
Ø 项目拥有超50多项公寓配套设施,长达100米的游泳池
Ø 新加坡最大的发展商之一城市发展有限公司打造项目,品质保证
Ø 著名建筑设计团队ADDP与新加坡大型承包商WOH HUP共同打造;
Ø 2018年新加坡首个大型公寓项目
Ø 大部分单位为南北朝向,户型设计方正,采光极佳,实用为主
Ø 4房和5房单位直接私人电梯入户
Ø 配备智能家居系统,引领国际家居时尚潮流
Ø 建筑设计与绿色环保相结合,荣获“绿色建筑标志白金奖”
生活便利,购物选择丰富
淡滨尼作为东部的商业中心,作为东部成熟的住宅区,大型购物商场林立,包括淡滨尼商场Tampines Mall,世纪广场Century Square,淡滨尼1号商场Tampines 1,如果需要买家具或者生活类产品,可以去宜家在新加坡的最大旗舰店,需要买电器或者电子产品时,可以选择去Courts,还有一个大型超市Giant,里面的东西品种齐全,吃喝玩乐选择丰富。
广告
著名发展商城市发展公司打造
来聊聊项目的发展商,城市发展公司新加坡最大型的发展商之一,已经有54年项目开发折扣,开发的项目在全球26个国家97个不同地点,在新加坡参与高档住宅、中档住宅、大众化住宅,同时新加坡最大的商业地产持有者之一,旗下拥有大型商场,办公室,酒店,服务型公寓等。大型发展商打造的项目,品质保证,让您买得放心。

淡滨尼为新加坡东部美食天堂
喜欢美食的朋友,可以去Good Year海鲜村,他家的店门口经常排长队,推荐的食物包括辣椒螃蟹、娘惹式酸辣亚参鱼头、咸蛋鱼皮等。可以去淡滨尼中心Tampines Hub品尝泰国美食,我就不一一列举了。

周围学府众多
小学这块附近有名校圣希尔达小学,还有培青小学,Junyuan小学,Eastview小学等。中学包括圣希尔达中学,淡滨尼中学,Junyuan中学等。公寓附近有淡马溪理工学院(大专学府),淡滨尼初级学院(高中),还有在四美一带的新加坡科技大学STUD。国际学校有东南亚联合世界学院UWC, 从公寓只需步行约5分钟就可以到达。
广告
政府也计划将淡滨尼发展为东部区域就业中心,旨在把工作机会带到住宅区,减少上班时在交通方面花费的时间。东部商业园和工业区发展迅速,包括淡滨尼芯片园区、樟宜商业园、淡滨尼工业园、洛阳工业区、加上樟宜机场在扩建的第五搭客大厦,将为附近居民提供大量的就业机会。

每户单位都采用智能家居系统
每个单位采用智能家居系统,装有智能控制器,备有摄像功能和声控系统。包括一个大门感应器,一个智能电子锁,一个可控灯光,两个空调控制,一个智能语音助手。当您在外面时也可以知道家里的情况通过手机App, 让每位业主享受惬意现代感十足的智能家居生活,还有提供贴心的管家服务。为您生活带来便利。
广告
公寓配套设施
公寓提供52种配套设施,包括100米长的大型游泳池,还有一个标准的50米的游泳池,网球场,健身房,小孩的探险玩耍区,小孩泳池,一个可容纳100个小孩的托儿所。
免费提供一年的巴士去淡滨尼地铁站,满足业主的交通方面需求。
小区图片大放送



广告



一房到四房户型图介绍:
1房,41平方米/441平方英尺,价格61万起

1+书房,44平方米/474平方英尺, 价格69.1万起
广告
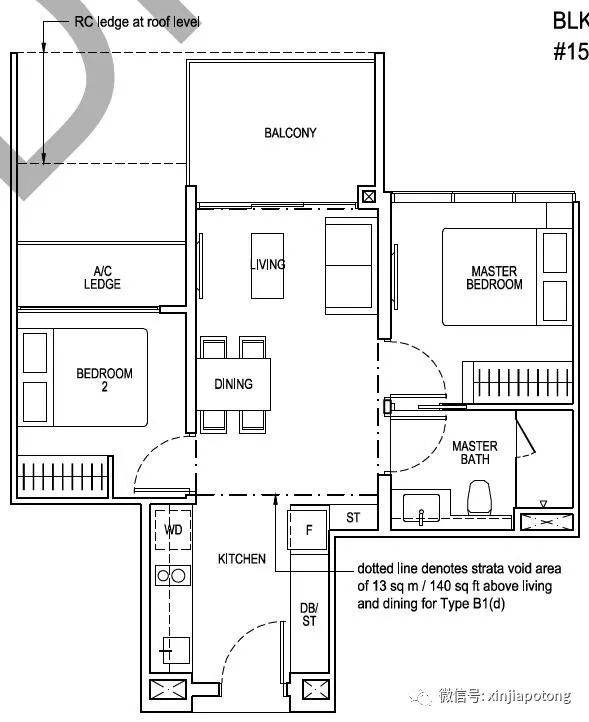
2房,56平方米/603平方英尺, 价格78.8万起

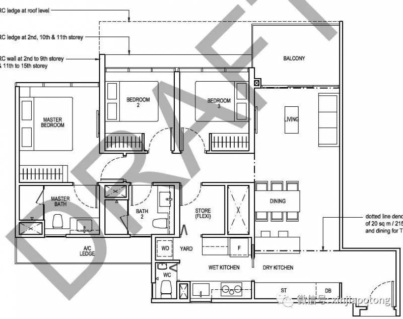
3房普通型,91平方米/990平方英尺, 价格113.5万起

3房豪华型,102平方米/1130平方英尺, 价格134.4万起

4房豪华型,133平方米/1432平方英尺, 价格167.1万起
广告
作者个人简历:
2002年拿新加坡政府奖学金来新加坡深造,已经定居新加坡15年多,熟悉中国和新加坡的国情,现任职于新加坡股票交易所SGX上市企业,新加坡最大的地产公司之一ERA地产公司担任高级营销总监,从事房屋经纪行业8年多,已经完成数百宗房地产交易,成交的房屋价值高达新币上亿元,服务过数百位中高档客户,广受客户们好评。包括企业家,企业高管,中小型公司老板,房地产发展商,新移民,教授,医生等等。
熟悉私人公寓,商业地产,组屋的交易流程,全面了解房屋贷款,协助顾客办理好贷款,律师办理房产相关手续等,提供新加坡任何公寓楼盘和商业地产买卖投资服务,买私宅无任何经纪费用。
感谢各位客户朋友的支持,本人在公司多次获得顶级销售奖,提供诚意十足,细心周到的为客户服务,所以收到客户们的广泛好评,服务好任何客户是我的最重要原则,欢迎买家或卖家联系我。
如果觉得我的文章对您有用,请随意打赏。你的支持将鼓励我继续创作!