
欧美建筑不同于其它地区建筑,独特的历史文化都会影响建筑色彩,每个细节的差距都是非常关键的。建筑网小编就欧美建筑和大家介绍一下。欧式风格强调以华丽的装饰、浓烈的色彩、精美的造型达到雍容华贵的装饰效果。具体内容如下:
广告欧美建筑基本包括哥特式建筑,巴洛克建筑,法国古典主义建筑,古罗马建筑,古典复兴建筑,罗曼建筑,文艺复兴,浪漫主义,折衷主义。喷泉、罗马柱、雕塑、尖塔、八角房这些都是欧式建筑的典型标志。
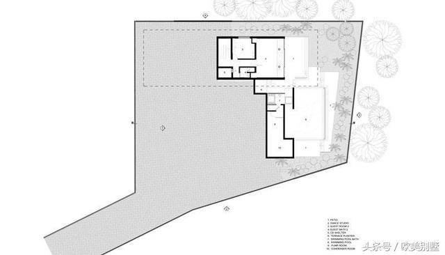
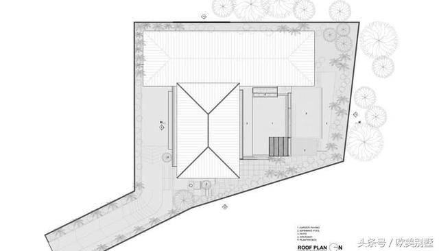
由AR43 建筑师设计, 位于新加坡的异国情调的国家。这所房子被设计为身体、心灵和灵魂的撤退。这幢房子的茂密植被对其目前的建筑结构有很大的影响。客户要求一个放松的生活空间, 一个拥抱自然的避风港, 并使它的一部分。房子由一个主要的体积, 一个大亭, 房子的主要空间, 而支撑翼垂直于这个展馆的房子更私人空间。在东部和西区的大悬伸保护下, 房子被遮挡在严酷的热带太阳下。


广告




广告




广告




广告
如果觉得我的文章对您有用,请随意打赏。你的支持将鼓励我继续创作!