
乌节路新的项目登场,圣汤姆斯8号地处尊贵的第9邮区,中央核心区CCR, 占地面积大,为永久地契项目,靠近River Valley Road那一带,闹中取静的市区,由2栋楼组成,总共250个单位.现在发展商先放出77个单位对外销售,有兴趣其他单位的买家可以交支票提交申请。
广告
靠近乌节路购物商圈,如商场义安城,董厦Tangs,Ion @Orchard,[email protected],ISETAN,威士玛Wisma,乌节路购物街是全球10大购物街之一,喜欢购物的朋友必去之地,也是很多来自国外游客必经之地,什么名牌包包,名牌手表,香水,珠宝,名牌服饰等,应有尽有!

重点是项目已经交房,不需要等待建房时间,可以办好手续后马上入住哦。
发展商是Bukit Sembawang Pte Ltd,新加坡本地有实力的家族,可以任性的先垫资建好,等项目完工后再出售,打造的高档项目包括在乌节路一带巴德申路的PatersonSuites,Paterson Collection,新加坡最贵的住宅项目之一[email protected] 就在巴德申路上,还有The Vermont @ Cairnhill,还有参与有地住宅开发。
广告
先来聊聊发展商在乌节路一带买地的价格,2018年4月,发展商SC Global以$2377/平方英尺买入CuscadenRoad占地约5722平方米的地段,SC Global公司主要是开发高档优质项目,预计开盘价格自然会高。如果以发展商要赚10%,估计卖价要$3300/平方英尺,如果发展商要赚20%,预计卖价要$3600/平方英尺,注意该地为99年地契哦。

家里就可以享受漂亮的滨海湾夜景,有没有爽极了!
广告

游泳池景观,独特弧形设计


最近发展商推出延迟付款计划DPS,协助买家
买家只需支付首付,就可以拿钥匙入住或者租出去,在12个月或者24个月内,无贷款月供。显著的好处拉长付款的时间线,对买家现金流压力大大降低。
总共有四种付款计划,总有一款符合您需求
第一种叫居住支付计划,买家给1%定金,发展商给OTP,3周内执行购买权,交19%房款,剩余的80%可以等到24个月后交或者2020年10月30号之前(参考最早的日期)
广告第二种叫延迟付款计划,买家给1%定金,发展商给OTP,3周内给9%的房款执行购买权,剩余的90%可以等到12个月后或者2019年10月31号前(参考最早的日期)
第三种为预留支付计划,买家给10%定金,剩余的90%可以等到12个月后个月后或者2019年10月31号前(参考最早的日期)
第四种为正常付款计划,买家给1%定金,3周内交9%房款执行购买权,执行购买权后12周完成手续,交90%房款(现金+银行贷款)
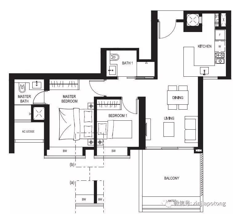
户型图介绍:
1房,41平方米/441平方英尺,适合单身或情侣住,价格145.7万新币起

2房,51平方米/549平方英尺,价格179.9万新币起

2房,75平方米/807平方英尺,价格255.3万新币起
广告
3房,107平方米/1152平方英尺,价格为346.9万起

3房,121平方米/1302平方英尺,大客厅,超大的主卧带浴缸,高楼单位享受漂亮景观,价格为398.4万起

作者个人简历:
2002年拿新加坡政府奖学金来新加坡深造,已经定居新加坡15年多,熟悉中国和新加坡的国情,现任职于新加坡股票交易所SGX上市企业,新加坡最大的地产公司之一ERA地产公司担任高级营销总监,从事房屋经纪行业8年多,已经完成数百宗房地产交易,成交的房屋价值高达新币上亿元,服务过数百位中高档客户,广受客户们好评。包括企业家,企业高管,中小型公司老板,房地产发展商,新移民,教授,医生等等。
广告熟悉私人公寓,商业地产,组屋的交易流程,全面了解房屋贷款,协助顾客办理好贷款,律师办理房产相关手续等,提供新加坡任何公寓楼盘和商业地产买卖投资服务,买私宅无任何经纪费用。
买卖房产是专业的事情,专业的事情找专业的经纪做。
感谢各位客户朋友的支持,本人在公司多次获得顶级销售奖,提供诚意十足,细心周到的为客户服务,所以收到客户们的广泛好评,服务好任何客户是我的最重要原则,欢迎买家或卖家联系我。
微信号:297264931 电话:65-91525858

如果觉得我的文章对您有用,请随意打赏。你的支持将鼓励我继续创作!