与广阔无垠的自然相比,城市之中,人们的居住空间相当有限。只有足够宽广的空间,才能容纳人们对美好生活的向往。一间房子,承载着一家人的幸福格局,装着当下的生活、未来的期盼。
The Garden Residences,一处生长在花园里的家。社区打造多种户型格局,满足不同住户需求;无论是三口之家还是三代同堂,全家人的理想生活在这里幸福绽放。
温暖的家,藏着秀美风光
当一家人在客厅里休憩时,窗外的美丽风景映入眼帘;清风入堂,感受欢笑与阳光同行,让家的各个角落充满爱的温馨。大自然的温暖,映射著亲情的温度。
广告
大户型格局,家庭生活更从容
The Garden Residences用生活品质考量居住空间,营造舒适自然的居家体验。3房、5房大户型格局可以容纳大家族生活所需,装下每个家庭成员的生活志趣。

55项社区配套,足不出户的美好
在The Garden Residences,每天都可以体验不同的休闲设施,包括游泳池、水疗馆、温泉、健身走道、24小时健身房、宠物专属空间等,无论夫妻、小孩、父母….足不出户就能感受生活的美好。
广告
向往的生活,恰在繁华中心
The Garden Residences所在的区域居住氛围浓厚,周边生活配套设施丰富、便捷,毗邻chomp chomp 美食中心、实龙岗花园巴刹、NEX购物商场等成熟的购物中心和美食中心,尽享舒适、便利生活。


TGR 样板间实景图鉴赏
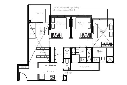
3+书房户型图

3+书房样板间实景图
广告


3+书房户型视频

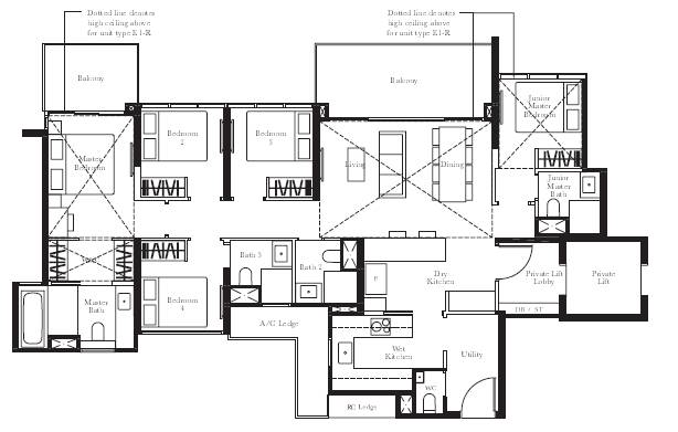
5房户型图

5房样板间实景图
广告


5房户型视频
项目信息
项目名:嘉和馨苑
地址:新加坡第十九邮区后港区—实龙岗北1道
总套数:613套单位(1栋14层和4栋15层的楼组成)
户型:1卧房—5卧房
面积:450平方尺—1,981平方尺
容积率:2.5
交房日期:2021年
地契:99年

发帖时间: 新加坡永泰亚洲
如果觉得我的文章对您有用,请随意打赏。你的支持将鼓励我继续创作!