“Music is liquid architecture;
Architecture is frozen music.”
---Johann Wolfgang von Goethe
“音乐是流动的建筑,
建筑则是凝固的乐章。”
---歌德
精神集大成者:Neem Tree 生活的智慧,享受家庭、生活文化、与大自然的乐趣
物质集大成者:Neem Tree 极致的配置,永久地契、现房入住、无限优势的喜悦

高屋建瓴、傲视群雄
追求卓越者习惯于仰视至高,
在尊崇荣耀中方可称居上层。
成就伟业者享受于自由奔放,
在悠然自得中才能证明远见。
Neem Tree 是由Aylesbury Pte Ltd开发的豪华公寓。Neem Tree为永久地契产权,位于30 Jalan Kemaman,共有84个单位,单位包括1房至3房和阁楼单位,面积从39平方米到124平方米不等。占地面积大约1615.46平方米。它是属于中央区的第12邮区。

Neem Tree凭依鲜明的酒店式豪宅风格,低消耗、高品质的宏大手笔,Neem Tree开启马里士他(Balestier)地区高端公寓的标榜力量,凝汇地标性建筑的象征意义与区域影响力的核心能量,作为拥有永久地契的豪华公寓,Neem Tree蕴蓄了该地区高端公寓的辉煌前景。

历史悠久、优势天成
历史积淀城市的神韵,文化镶嵌生活的态度。
许多优势是天然流淌的,许多成就是地脉统贯的。
--Neem Tree。
19世纪三四十年代,马里士他地区(Balestier)是美国第一任领事约瑟夫马里士他(Joseph Balestier)所开垦的甘蔗种植园,如今它已转变为一个多姿多彩的社区,随处可见不同社群和各类宗教信徒所建立的地标。马里士他路还拥有许多历史建筑物,包括具有殖民地风格的别墅,传统店屋和庙宇。
从Neem Tree步行6分钟,即是“晚晴园·孙中山南洋纪念馆”。这栋殖民地时期的别墅曾经是孙中山先生设于南洋的同盟会总部。这栋历史古迹内的展览厅展示了海外华侨支持1911年辛亥革命运动的事迹。
晚晴园不远处便是缅甸玉佛寺。缅甸玉佛寺在现代建筑的基础上体现了缅甸传统建筑风格之美,玉佛寺的天花板和柱子上的花饰是缅甸艺术的另一种体现;寺内二楼的栏杆来头也不小,据说栏杆的样式是仿照缅甸文化古城曼德勒的皇宫建造的。此外,缅甸境内的佛寺建筑多数是平房,新加坡的玉佛寺则有四层楼高;在缅甸境外的佛寺几乎都是由其他建筑物改建而成,玉佛寺则是一砖一瓦从零开始,是缅甸境外最雄伟的缅甸寺庙,这里供奉缅甸以外最大的大理石佛像。

身居Neem Tree,本身就是在见证历史。因为马里士他路是多个时代建筑风格荟萃之地。从老虎出没,后来的甘蔗种植园,孙中山在晚晴园策划辛亥革命;藤业大本营,马来电影拍摄片厂,到今天车水马龙,私人公寓林立,灯饰店与肉骨茶店密集的社区。这些年来马里士他路发展得很快,可喜的是许多传统元素并没因此而消失。
20世纪30年代马来亚树胶种植业蓬勃,许多新加坡商人也发了财。一些商人便在其屋业上极尽奢华,加上西式的装饰元素,如古雅的图案、威尼斯拱门、巴洛克叶饰、动物意象等。马里士他路许多店屋是特别的“新加坡巴洛克建筑风格”,它们设计别具一格,装饰图案有龙、蝙蝠,店屋中间的柱子上还雕有锡克守门人。丰富的人文色彩展示出中西及本土文化交融的奥妙。

Neem Tree凭依鲜明的酒店式豪宅风格,低消耗、高品质的宏大手笔,Neem Tree开启马里士他(Balestier)地区高端公寓的标榜力量,凝汇地标性建筑的象征意义与区域影响力的核心能量,作为拥有永久地契的豪华公寓,Neem Tree蕴蓄了该地区高端公寓的辉煌前景。
黄金区位、艺术乐章
有一种表情远远比满足更经典,审视根基时即已注定优雅的风向。Neem Tree,源于丰沛的根须。
经纬交错中,时间考证著效率,速度始终回避的是淤塞。先机炙点只因为周边交通的便捷,只因为地段的绝版。
Neem Tree,抛离拥挤与蹩脚的烦乱,畅达天下。Neem Tree 距离大巴窑地铁站约800米,步行8分钟就可到达。驾车人士到中央商务区和金融中心只需要7分钟车程,5分钟车程即可抵达繁华的乌节路购物区。此外,Neem Tree 很靠近新加坡中央高速公路(CTE)和新加坡泛岛快速路(PIE),住户可通过快速公路非常方便的到达新加坡全岛。

马里士他大厦(Balestier Plaza) 、中山广场(Zhongshan Mall)、邵氏商业大厦 (Shaw Plaza) 、诺维娜广场(Novena Square)、大华广场(United Square)等都是 Neem Tree 住户的绝佳购物选择。熟食中心的选择也很多,如黄埔通道巴刹与熟食中心、Toa Payoh Vista巴刹、白桥巴刹与熟食中心以及纽顿熟食中心等。

Neem Tree住户只需5分钟步行即到达大巴窑感官公园(Toa Payoh Sensory),该园是建屋发展局耗资350万元兴建,是本地首个按照人类各个感官分成五大区块,让公众可通过视觉、听觉、嗅觉、味觉和触觉体验大自然魅力的公园。走进这个占地约1.1公顷面积的园区,Neem Tree的住户可以触摸里面的植物,感觉不同植物的质感;或是靠近人造水景,倾听潺潺流水声;视觉区将栽种五颜六色的植物为主,而嗅觉区和味觉区则会栽种果树和芬芳的植物,如班兰叶、叻沙叶、罗勒(basil)和白姜等,让Neem Tree的住户走一趟色香味俱全的感官之旅。

Neem Tree 靠近有很多学校,如博理小学、圣约瑟书院学校(圣迈克校园)、圣婴女子中学(大巴窑)、宏文学校、擎青学校、公立培群学校、英华学校〔小学〕、华苑小校、大智小学、玛丽蒙女子小学、圣安德烈小学、明智小学、博理中学、圣婴女子中学(大巴窑)、明智中学、大智中学、英华学校(巴克路)、培德中校和光洋中学。其中宏文学校和博理小学均在Neem Tree一公里范围内。公教初院和圣安德烈初院也离Neem Tree不远。

生活
卓越领跑、品质生活
卓越同超越相距一字,品质同品位自成因果。超越的趋势起点于品质,醇酿的生活源自精心的雕琢。Neem Tree,上层人士鉴赏不尽的美味佳酿。

营造多配套、绿景观的优质社区是Neem Tree居家生活模式的核心理念,2层豪华泳池、roof烧烤亭、按摩浴缸、户外健身区等设施一应俱全,这里提倡居住社区人与人、人与自然之间的交流,沟通并营造业主互动的居家文化,延伸“家”的亲情概念。
Neem Tree周边建筑密度低、楼层矮,身居Neem Tree,高屋建瓴,享受被人仰视的感觉。

品位感、安全感、舒适感精彩编织上层生活,Neem Tree,文化、尊荣、儒雅,厚淀积蕴的品位之城--正统高贵的建筑设计血统、格调幽新的景观环境、周到入微的一流社区配套环境呈现完全崭新的高端姿态。

舒适是生活的终极理想,尊崇人生,舒适、惬意的环境是基础。Neem Tree远可观城,近可赏花,融洽、和谐的社区氛围更能享受自由、轻松、尊贵的上层生活。
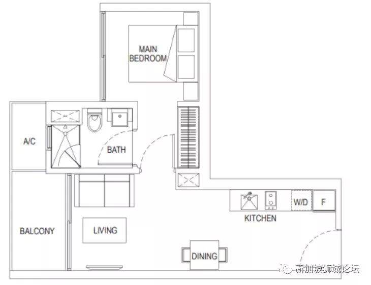
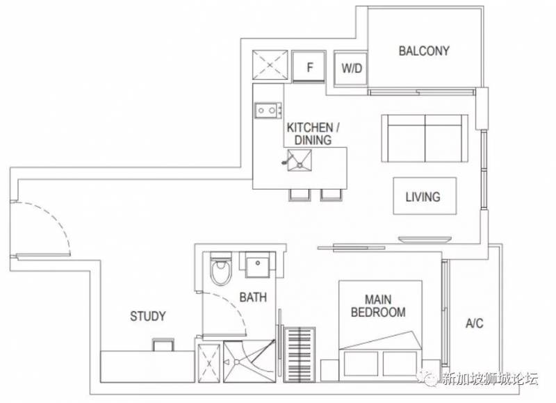
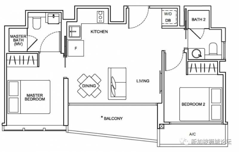
Neem Tree共有84个单位
1:
一卧室
套内面积为42平方米/452平方尺
价格91万新元起

2: 1学习室+1卧室户型
套内面积为47平方米/506平方尺
价格97.1335万新元起

3: 2卧室+学习室户型
套内面积为66平方米/710平方尺
价格121.3767万新元起

4: 三卧室户型
套内面积为76平方米/818平方尺
价格136.285万新元起
5: Penthouse双钥匙双卧室跃层户型
套内面积为88平方米/947平方尺
价格162.793万新元起


6: Penthouse三卧室跃层户型
套内面积为124平方米/1335平方尺
价格222.3606万新元起

7: Penthouse双钥匙三卧室跃层户型
套内面积为108平方米/1163平方尺
价格195.4953万新元起


小 结
层次与阶级是由自己规划的,抉择完全取决于观念,思想才是永不更改的方向。现房出售,拎包即住,无限便捷,黄金区位,永久地契,租住俱佳。

政府执照号:R009913B
如果觉得我的文章对您有用,请随意打赏。你的支持将鼓励我继续创作!