
小户型稀缺——投资者可望而不可即
新加坡被称作“花园城市”,经济发达,房价稳,是理想的置业投资目的地。新加坡的房产由于精装修、永久产权、无公摊面积等众多优势秒杀国内房产。但是对于许多热衷于小户型的投资者而言,往往是“可望而不可言”——小户型房产项目太少,往往一经开盘便被当地人抢购一空。
广告为何小户型如此受欢迎?其一,新加坡当地年长者希望有自己的小天地,不与子女同住,自己又不需要太大的空间;其二,越来越多的学生前往新加坡留学并定居,以及为数众多的国际企业派遣员工前往新加坡工作,一个功能齐全的小户型单位将是最佳的选择;其三,最大的特点及优点就是总价较低,大大缓解了投资者的经济压力,而且有些小户型的空间经过设计师的巧妙设计,极大地提高了室内的利用率。
国浩(Sims)盛世名园,新加坡小户型需求者的福音
华人天下网宗旨为:只对接精品项目,新项目盛世名园是由国浩集团打造的位于平和与宁静的大自然城市边缘地带的占地2.4公顷公寓。共有1024套,多种户型的组合(从一室到四室),可以满足多种人的成活方式,不管是家庭组合、年轻人还是单身人士。本项目给小户型需求者带了福音,其中一房和两房的比例占到了63.1%,占据绝对的数量优势。精心设计的室内空间为客户提供了不一样的灵活性,最大限度地满足了客户对于空间的需求。在19层的空中花园,可以为客户提供一个全景的滨海湾视野。
广告
盛世名园全景图
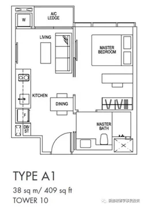
Sims现推出的1房式单位面积为38平方米起,由于新加坡并无公摊面积,加上Sims这一小户型的高效内部空间规划,没有一点浪费的空间,无阳台,无飘窗,无防空壕,户型方方正正,使得空间看起来远超过45平方米。
国浩(Sims)盛世名园,你没有理由拒绝
不能拒绝理由之一、最大限度得利用空间面积
新加坡公寓无公摊,但是对于小户型来说阳台、飘窗、植物槽和空调架无疑成了浪费空间的所在。Sims的第一期推出的一房单位可倒好,没阳台,没飘窗,没植物槽,只有空调架。室外空调架做成了一个可晾衣服的地方,还配有室外晾衣架,而晾衣架旁边就是可置放洗衣机和烘干机的地方,隐藏在一个壁橱内,一分空间一分钱都不浪费。这卫生间的设计更加独特,采用双入口式,在保证房主隐私的同时,考虑到客人使用的需求。卫生间的门为推拉门,不占空间。

不能拒绝理由之二:交通极其便利
步行五分钟可达阿裕尼地铁站,政府大厦地铁站也只是4站路远;通过泛岛高速公路(PIE),加冷巴耶利峇高速公路(KPE)以及尼浩大道,便捷到达新加坡各处;10分钟车程可达中央商务区,15分钟可达樟宜国际机场,沿途是目前发展最热门的地区如,新加坡第四大公立大学、新加坡科技设计大学、樟宜珠宝中心、樟宜国际机场4号航站楼、5号航站楼等;5分钟车程,到达新加坡体育城,一座您想体验各种世界级的体育运动以及各种休闲和娱乐活动 的理想去处。
广告
不能拒绝理由之三:教育方便

不能拒绝理由之四、设施齐全

不能拒绝理由之四、设施齐全
Sims是这一区域内唯一一个占地规模大且设施如此齐全的房产项目,小区里50多项生活配套设施——两个50米长的泳池,专门的儿童游乐园,会所,内设商铺,烧烤台。健身房等等,绝对全面、便利,甚至还有个托儿所!小区19楼还有一个空中花园,在那里可以直接看到Sports Hub(新加坡体育城)的国庆烟花!
广告
位于19楼的空中花园

9个精心设计的户外活动区块,超过50项配套设施
不能拒绝理由之五、巨大的发展潜力
位于新加坡政府规划的战略要地,在2014年的集群式发展规划中有即将建成的巴耶利峇副中心城市,加冷沿河区,以及 芽笼士乃大厦,给您提供各种投资机遇。巴耶利峇空军基地的重新安置,腾出了大量的空地为未来发展新的地产项目。
此外,据新加坡《商业时报》的全岛租金收益调查显示,从2013第2季至2014第2季,Sims所在的14区还是见涨了2.8%。作为投资来讲,该区域的公寓单位租金回报率是相对稳定的,整个新加坡的小户型单位在租赁市场和转售市场也是相当吃香的,所以无论从租金回报还是资本收益来讲,Sims对于喜欢小户型的投资者是个不错的选择。
广告也欢迎各位朋友前往我们公司咨询
目前我的新加坡电话是65 8650 7264之后换这个电话65 9861 8509,因为这个电话好记一点。给您带来不便请您谅解,微信【jason-liu0065】。谢谢!!!
如果觉得我的文章对您有用,请随意打赏。你的支持将鼓励我继续创作!