新加坡的豪宅市场分投资品和消费品,他们有这些区别:
-投资品入场价格低,很容易转售盈利出场,即使在整体市场低增长的阶段,仍然为投资人带来可观的回报。而消费品入场价格高,只能自住很难转售出场 (只有在市场暴涨的情况才能为投资者带来回报)。举例过去已经被证明的典型豪宅消费品:The Marq, Scotts Square, Cliveden at Grange, St Regis Residences etc (懂豪宅的人,一定知道我在讲什么)
- 消费品多,而投资品非常稀少。事实上新加坡地产市场增长平稳缓慢,很少有中国市场的单边暴涨。我有见过投资人2007年投资的新加坡豪宅,12年后的今天,投资仍然亏损;也有投资人同样时间入场,如今价格早已翻倍 - 这就是新加坡市场!
- 消费品会一直反复出现在媒体里,而投资品很少出现在媒体!
今天介绍一个豪宅市场稀有的投资品:
价格秒杀所有的同类产品,
这才是投资品!
关于价格与价值,下面有三点判断:

紧临未来乌节路楼王!
价格仅仅楼王一半!
新加坡城市发展局2019规划白皮书刚刚出炉,一个大的亮点就是,Ion附近的空地将与Ion一起成为新加坡的新地标,就如纽约时代广场!
伴随2021年乌节路地铁站的延伸站(Thomson Line)建好,地铁上盖处,政府规划为容积率5.6以上的大型项目, 一个新类似Ion的高层豪宅+购物中心的综合体。这个未来99年地契的新豪宅,售价预计将是新币4000psf以上(至少会高过Ion上面,十年前建的Orchard Residences),猜猜他隔壁的永久产权的土地价值会是多少呢?

乌节路- Ion


美国曼哈顿时代广场
TIMES SQUARE

乌节路附近新盘豪宅均价都在3000psf以上,
高出30%以上。
例如:99年的OUE Twin Peaks, 尾盘都成交3000psf以上,永久公寓 格美华庭(Gramercy Park), 银峰(New Futura),Boulevard 88 都成交到3200psf以上。而在2013-2014高峰时期,很多永久豪宅在是4000psf以上,如下图所示!


如果给你一个机会, 打折30%,以单价2300psf的机会,投资更好的地点的永久豪宅,你要犹豫什么?
一个稀有的机会,以几乎低于土地成本价格,
买到豪华公寓。
如果你是一个长期持有者,不算楼本身,这块楼王旁边,永久土地的当前价值,最保守最保守是至少2300psf!竟然可以用低于纯土地成本的价格,买到豪华公寓,这样的机会非常非常稀少,转瞬即逝,一犹豫就没有了。

Compare land price 其他附近的土地价格
Pacific Mansion:1900psf
Anderson Road:2253psf
Park House:2910psf
Cuscaden Road (99年):2377psf
现在揭开项目细节:
Paterson Suites — 开启高端精致的生活
核心优越的地理位置
步行即可至乌节地铁站,和乌节路商业街。紧邻乌节路,坐拥多个新加坡最顶级购物中心:ION Orchard,高岛屋百货Takashimaya,和百利宫,世界城购物中心等,几乎所有品牌专卖店,各式美食,和多处五星级酒店。坐享尊贵的俱乐部:东陵俱乐部和美国俱乐部。附近还有休闲的好去处:新加坡植物园和福康宁公园。

精心周全的社区规划
绿意环绕的园林景观,让您沉醉其中!
全方位的休闲设施和贴心的设计,为您创造了不同的功能区域以迎合不同的社交需求。为了营造健康活跃的社区生活,Paterson Suites内建有奥林匹克长度游泳池、综合性健身房、桑拿房、开阔的草坪、烧烤亭台和供左邻右里交流互动的生活休闲空间。




周边配套设施完善
PatersonSuites周边的金融、行政、购物、医疗等诸多设施一应俱全。尤其是教育方面:名校与国际学校遍布周围,满足您全方位的生活需求。周边有多所国际学校,如:紧邻ISS国际学校;距离立化小学1公里以内。


楼盘基本信息
开发商:Bukit Sembawang View Pte Ltd
项目地址:55, 57 Paterson Road
邮区:9
地契:永久产权
完工日期:2010年竣工
楼盘总面积:16,879平方米
总单位数:102
楼层:2栋22层高层单位
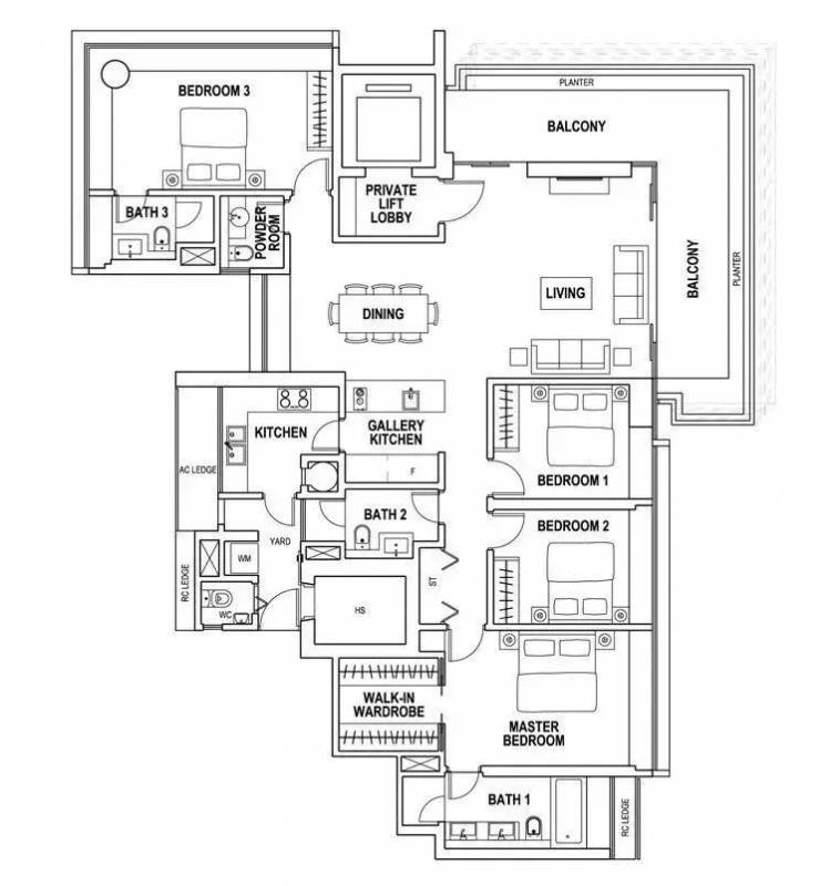
户型图:

更多图片:





在这里,坐享您梦寐以求的一切:都市的魅力,心仪的奢侈品,高品位的休闲,以及最重要的—隐私与宁静。
作者介绍

冯舟 Kevin Feng:新加坡豪宅市场数据透析派,专注豪宅和商业地产投资12年,是博纳集团董事,精英队总监和集团慈善大使,也是业内豪宅成交数量最高的经纪之一。秉承真诚,真实,看本质的原则,Kevin深得众多地产投资者长期的信任,多次荣获销售冠军,包括2018年博纳集团Propnex PNG的销售冠军。公众号“Kevin说地产”,与您分享各地投资见闻,广交朋友,广结善缘。期待有缘与您相遇,给您真实的市场,透彻的分析和精准的投资建议。
接受新加坡总统哈莉玛颁奖 2018年8月

接受新加坡财政部长王瑞杰先生颁奖 2019年3月
>> 请搜索并关注 “Kevin说地产” 或者 KevinFengSG,收到《2019新加坡地产投资白皮书》,深入的地产周期和数据分析,带您透视新加坡地产!

新加坡最大地产上市公司
博纳集团

有温度的一站式服务
冯舟 Kevin Feng
区域董事(District Director)
主营业务:豪宅,商业地产和投资
HP:+65 82009297
www.KevinFengSG.com
微信号:KevinFengSG
公众号:Kevin说地产
博纳产业精英队,聚集业内高信誉的行业精英,提供行业最高水准的房地产一站式服务,具体业务包括新盘代理,豪宅代理,地产投资顾问和财务分析等。
(图文由博纳产业中文精英队提供)
如果觉得我的文章对您有用,请随意打赏。你的支持将鼓励我继续创作!