不知从何时起,新加坡变了
城市环境变得更好了
政策变得更贴心了
最重要的是
国家变得更有钱了!
前有狂砸17亿新元,打造惊艳世界的“天空之城”
后又壕甩90亿新元,扩建圣淘沙名胜世界和滨海湾金沙!
这是要让世界眼红的节奏啊!
这也意味着,接下来的每一天
你睁眼看到的新加坡或许已经不是昨天的模样了
每天都有新的变化发生
毕竟这数百亿的建设效果还是很显著的
尤其是住在圣淘沙名胜世界和滨海湾金沙的朋友们
一定要注意啦!
来提前感受一下看一看你今后的生活条件~
/忍住,不酸/
滨海湾金沙再建高楼

据联合早报报道
可容纳一万五千人!
以后可在这里观赏世界级演出
瞬间燃爆全场!

同时,新楼将增添拥有约1000间客房的豪华酒店与会展场地
扩充预计资金达45亿新元!
不仅拥有360度全景游泳池设备的天台花园
还有顶尖餐馆
将新加坡美景尽收眼底!
简直不要太酷!
圣淘沙名胜世界再拓新景点

据联合早报报道,
圣淘沙名胜世界的环球影城将增添新景点Minon Park,
而且风靡全球的“小小兵”将入驻这个主题乐园!
兵迷们福利来啦~

这项价值45亿新元,超过16万4000平方米的新景点与休闲娱乐设施
预计从明年起开工,2025年全面完工!
在新的主题区里
不仅可以和小黄人一起狂欢
还有马里奥兄弟带你重温顶蘑菇的乐趣!

你以为这就完事了?
别急,惊喜还在后头呢!
环球影城内将增设Super Nintendo World主题区
走进任天堂的游戏世界,开启探险之旅!

除此之外,名胜世界的S.E.A海洋馆也将迎来扩充计划
结合海事博物馆空间,将建成全新的新加坡海洋馆
据说新扩充后的海洋馆,比原来的S.E.A海洋馆大了整整三倍!
这意味着以后能看到更多的海洋生物!

玩累了,当然就要找个地方栖脚啦
这当然有考虑到
名胜世界计划新建的Waterfront Lifestyle Complex会有两家新酒店
可另外添加1100间客房
这一下吃喝玩乐住就全包了~
住在这附近的人,以后还能去滨水步道散步,玩乐
简直一应俱全

看完金沙和圣淘沙两地的未来发展建设
是不是心急眼红的
恨不得把家都搬来这里!
只能说,住在这附近的人也太幸福了吧!
而且按这样的发展趋势来看
附近的房子绝对一扫而光,未来还会暴涨
无论是自己住还是做投资
都是双赢的选择

不过,现在还不算太晚
在金沙和名胜世界附近刚好有两个楼盘
现在不下手,更待何时呢~
一起来看看吧!

Marina One Residences是一家屡获殊荣的豪华开发项目,位于世界上最具标志性和最受追捧的地点之一 - 滨海湾。此综合地段拥有众多备受推崇的零售和餐饮选择,以及1,042个高端豪华住宅单元。
位于其中心的Green Heart花园为The Marina One Residences提供了一个热带宁静和美丽的气氛。位于Marina One Residences的居民能够享受各类娱乐,餐饮和购物选择。
Marina One Residences地理位置优越,方便客人搭乘地铁和公路网络,方便客人快速轻松地前往岛屿的其他地方。

这座楼最大的优势,不仅毗邻金沙!
周边环境更是无敌!
拥有自己的的热带天堂 - “绿色心脏”
而且这65,000平方英尺的生物多样性花园
拥有自己的13.2米高的瀑布
以及140,000平方英尺的零售,生活方式和餐饮空间
许多高端品牌已经入驻
包括Virgin Active,Cold Storage,日本餐厅Teppei Syokudo以及以Cookhouse为特色的Koufu经营的美食广场
这么完美的小区
来看看它的户型吧~

主力户型
1A户型 1室 700平方英尺 / 65平方米
新币 S$1,760,000起

2G户型
2室 980平方英尺 / 91平方米
新币 S$2,490,000起

2B+S户型
2室 1141平方英尺 / 106平方米
新币 S$3,039,010起
3A+S户型
3室 1561平方英尺 / 145平方米
新币 S$3,570,000起

4B户型
4室 2034平方英尺 / 189平方米
新币 S$5,350,000起

详情
楼盘名称:Marina One Residences
开发商:M+S Pte. Ltd
产权:99年
实现年份:2017年
单元数目:1042
起始总价:新币 S$1,760,000
每平方英尺起始:新币 S$2,1xx



该楼盘介绍:
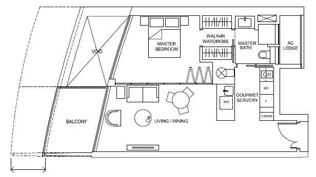
Martin Modern位于River Valley地区8 Martin Place的9邮区,S237992。Martin Modern是一个令人感觉舒适的楼盘,拥有宽敞的2、3或4间室的公寓,占地面积171,534.8平方英尺。
Martin Modern拥有两座30层高的建筑,有450个单元,每个单元都有现代化的设施。可方便地通往许多配套设施,主要道路和优质学校。
Martin Modern靠近somerset地铁站
附近有很多美食以及咖啡馆,

如Cafe at Martin Road,Chopsuey Café,The Book Café等
附近还有一些优秀的学校,
如River Valley Primary School,Anglo-Chinese Junior School,Alexandra Primary,Zhangde Primary,Margaret's Primary School。
1千米以内的学校:
立化小学(River Valley Primary School)
2千米以内的学校:
英华学校(经禧)(Anglo-Chinese School (Junior))
圣玛格烈小学(St. Margaret's Primary SchooL)
Alexandra Primary School
Zhangde Primary School
Cantonment Primary School
这么好的房子,户型怎么样呢?
一起来看看吧!

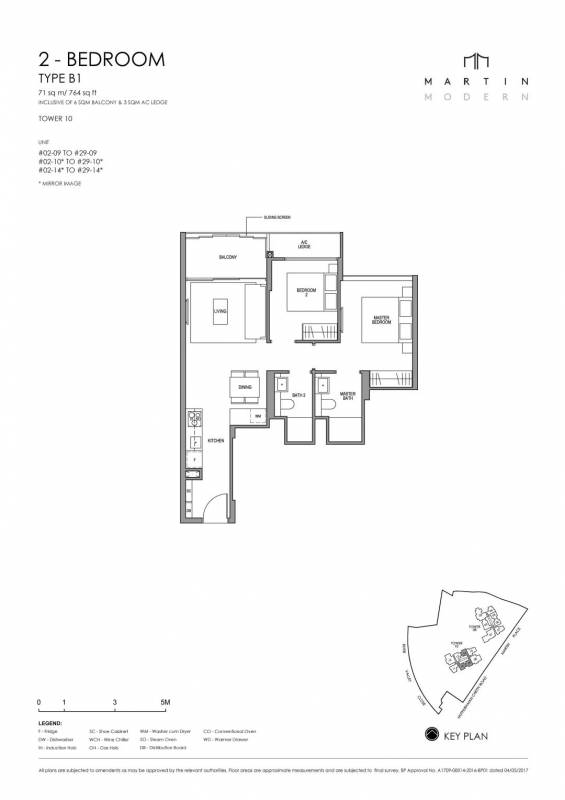
主力户型
B1户型 2室 764平方英尺 / 71平方米
新币S$2,080,220起
直降新币8.7万
新币S$1,993,000起

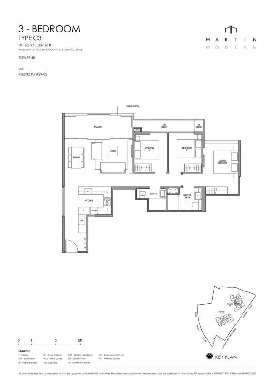
C3户型
3室 1087平方英尺 / 101平方米
新币S$3,173,000起

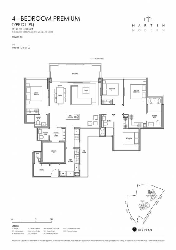
D1(PL)户型
4室 1733方英尺 / 161平方米
新币S$4,755,000起
直降新币13万
新币S$4,624,000起

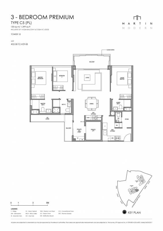
户型 3室
1399平方英尺 / 130平方米
新币 S$ 3,678,000起
直降新币5万
新币S$3,626,000起

详情
公寓名称:Martin Modern
开发商:First Bedok Land Pte Ltd (Guocoland)
产权: 99年
预计交钥匙时间:2020
楼层数目:30
单元数目:450
每平方英尺起始:新币S$2,637
起始总价:新币S$1,976,209
这么多好房子
哪一套才是你最心仪的呢~
喜欢就赶紧联系我们的特约作者吧
好地段加好设施
或许你再多犹豫一秒
房子就是别人的啦~
特约房产作者-李娜Lina

高级市场营销董事(Senior Marketing Director )
主营业务:商业,豪宅和投资
HP:+65 8720 4343 / 9653 3422
EMAIL: [email protected]
个人简介
特约新加坡房地产顾问:李娜,毕业于新加坡,专注房地产投资多年年,善长数据分析和投资。我乐意为您分享更多新加坡房地产投资经验和心得。目前就职于新加坡最大的房产公司ERA 的市场营销董事一职,对房地产事业非常热爱,了解和熟悉新加坡房地产的销售和交易流程,交易过上千种买卖,深受顾客好评。
欢迎扫描二维码
或添加我的微信ID: 564353899.
或拨打电话:96533422/87204343


新加坡地产上市公司 ERA集团
作为一名ERA团队精英,诚信待人,以多年新加坡投资经验给您提供行业高水准的房地产一站式服务,业务包括新楼盘投资,豪宅买卖,投资建议和财务分析等
如果觉得我的文章对您有用,请随意打赏。你的支持将鼓励我继续创作!