聚宝园公寓(Treasure At Tampines)
聚宝园是新加坡少有的,也是东部
第一个超大型公寓项目,设施齐全
提供128种便利设施和社交空间等
公寓步行范围内拥有四美等3个地铁站,配备免费巴士来往淡滨尼和樟宜机场,四周拥有大量休闲娱乐、购物用餐等设施,如Eastpoint Mall、Tampines Mall、 Tampines 1和Our Tampines Hub等。
公寓连结多条主干道和高速路如泛岛高速公路(PIE),加冷-巴耶利峇高速公路(KPE)、淡滨尼高速公路(TPE)和东海岸公园大道(ECP),交通便利。
公寓附近教育资源丰富,一公里范围内有幼儿园8所、小学7所、中学2所,也靠近新加坡科技设计大学,是典型的学区房。
公寓由著名发展商开发,有信誉和质量保障。该公寓可能是2019年在价位上最具竞争优势的项目,附近拥有大量的就业资源,租金回报潜力高。
茫茫宇宙中,地球是渺小的。然而渺小的地球却坚强地存活了50亿年,养育著充满智慧的人类,他们在许多国家打造著属于自己的家园。在负有盛名的花园城市新加坡,正在庆祝开埠200周年。200周年,对地球而言又是多么的短暂,然而,正是在这200年间,新加坡从无到有、从荒芜到繁华,一栋栋建筑拔地而起,向人们叙述著国家成长的故事,呈现着人类的文明进步。
在200年的新加坡历史中,淡滨尼这个地名已经191岁了,来源于鹊肾树,是当时的主要树种,现在的淡滨尼联合宫的庭院内还保存了两棵淡滨尼树。
离联合宫不远处就是近年来建成的淡滨尼天地,其背后便可看到“世界人居奖”纪念雕塑。该奖项由联合国于1991年颁发,意在表彰新加坡在淡滨尼市镇规划过程中所作的贡献。远近闻名的淡滨尼圆巴刹及熟食中心也在附件。该中心于1983年开业,是周边居民进行社交聚会、品尝本地美食的主要场所。而距离园巴刹不到1公里处,是中等入息公寓淡滨尼阁Tampines Court的旧址。
该公寓已于前年以9亿7000万元成功集体出售
成为十年来最大宗的集体出售项目
如今,崭新的项目即将呈现在眼前,
为淡滨尼悠久而又光辉的历史添上新装,
等待心仪的主人创造新的历史。
盛大杰作、超值经典、世纪典范、铭记史册
新加坡少有的、也是东部第一个超大型公寓项目,设施齐全;
是淡滨尼第D18邮区划时代的杰作;
名副其实的聚宝公寓,Treasure convenience(方便)、Treasure time(省时)、Treasure growth(增值);
附近商场林立,如Eastpoint Mall、Tampines Mall、 Tampines 1和Our Tampines Hub等;
一公里范围内有幼儿园8所、小学7所、中学2所,是典型的学区房;
29栋2,203套1-5卧房单位供选择,总有一款适合您;
心型公寓、精心雕刻、专业呈现、想你所需;
由公园连道轻松步行至东西线四美地铁站;
著名发展商开发,有信誉和质量保障;
现代智能家居装备,感受现代新型生活;
位于成熟社区,租金回报率高;
价位合理、超值享受。
聚宝园公寓效果图
东部盛典、强势登场、绝佳位置、便利环绕
作为一个岛国的新加坡,土地资源极为珍贵,政府精心规划每寸土地的用途。推出一个可建造2,200多套公寓单元的项目是一件罕见的事,这样的公寓一定家喻户晓。作为居民,坐计程车或朋友聚会时就可以自豪地说,我家就在“聚宝园”,轻松搞定。
这座超大型公寓项目位于东部第D18邮区淡滨尼11街(Tampines Street 11),就在淡滨尼尚育民众联络所(Tampines Changkat Community Centre)的对面。
聚宝园四周步行范围内有三个地铁站
此外,公寓附近100米范围内还有巴士站供居民使用。驾车人士可通过淡滨尼2道(Tampines Avenue 2)及泛岛高速公路(PIE),连接到加冷-巴耶利峇高速公路(KPE)、淡滨尼高速公路(TPE)和东海岸公园大道(ECP)。驾车只需约25分钟即可抵达乌节路商圈和中央商业区(CBD)。
聚宝园公寓位于四美地铁站附近
聚宝园居民还可享用公寓提供的巴士服务
来往淡滨尼地铁站和樟宜机场
这样,公寓居民不但可以去附近的商场,如东福坊(Eastpoint Mall),还可通往淡滨尼市中心(Tampines Central)的多家商场,如Tampines Mall、Century Square和Tampines One等。
居民还可以到附近的淡滨尼11街大牌137的圆巴刹与熟食中心(Blk 137 Tampines Street 11 Market and Food Centre)、位于淡滨尼天地(Our Tampines Hub)的熟食中心和勿洛北4街大牌85 巴刹与熟食中心(Blk 85 Bedok North Street 4 Market and Food Centre)等享用美食。

夜幕中的聚宝园公寓
聚宝园公寓SPA亭
公寓巴士星耀樟宜
居民还可乘坐公寓巴士达到位于新加坡樟宜机场第一航站楼的星耀樟宜,享受那里的购物休闲、住宿餐饮、景观花园等。
据报道,星耀樟宜把大自然带入室内,营造出新加坡规模最大的室内花园,提供一个绿意盎然的休闲场所,让游客们沉浸在一系列有声有色的独特巧思,以及无限的感官体验与惊喜创意之中。
星耀樟宜设有多个室内游乐设施,包括天空之网、迷宫世界、奇幻滑梯、森林谷、雨漩涡、星空花园、天悬桥、塑形树与花奔园、云雾缭绕的碗状活动区、樟宜机场数码互动体验馆等。居民还可登上五层楼高的森林谷、欣赏星空花园(Canopy Park)、感受天空之网、迷宫世界和奇幻滑梯等。

聚宝园公寓附近的购物中心
书声朗朗、育人圣地、聚宝教育、无以伦比
作为一个拥有2,200多套的超大型公寓,教育资源是首要的考量因素之一。聚宝园位于一个相当成熟的市镇,教育资源非常丰富。年轻夫妇也许关心幼儿园教育。聚宝园附近1公里范围的幼儿园就有8家,其中的6家在500米范围内。孩子上小学的父母也有很多选择。聚宝园附近的公立学校非常多。
如1公里范围内的小学就有7所:
包括树仁小学(Angsana Primary School)、
尚育小学(Changkat Primary School)、
崇正学校(Chongzheng Primary School)、
淡滨尼小学(Tampines Primary School)、
育民小学(Yumin Primary School)、
东景小学(East View Primary School)
和俊源小学(Junyuan Primary School)等。
两公里范围内的中学有12所:
包括名校德明中学 (Dunman Secondary School)
以及淡滨尼中学(Tampines Secondary School)、
尚育中学(Changkat Changi Secondary School)、
思励中学(Pasir Ris Secondary School)
和圣安东尼女校中学(Saint Anthony’s Canossian Secondary School)等。
公寓附近还有:
淡滨尼初级学院(Tampines Junior College)、
淡马锡理工学院(Temasek Polytechnic)
和新加坡的第四所公立大学,新加坡科技设计大学(Singapore University of Technology and Design)等,满足不同年龄层居民的需求。

聚宝园公寓附近教育资源丰富

超凡社区、聚宝聚情、想你所想、精益求精
聚宝园由著名发展商森联集团有限公司(Sim Lian Group Limited)开发。森联集团是新加坡的知名企业,拥有广泛的住宅,商业,工业,零售和综合开发项目组合。该公司四十多年来一直为新加坡创造家园,在建筑专业领域屡获殊荣,获得出色的业绩记录。森联集团自2009年至2013年连续五年跻身新加坡百强品牌之列,2015和2016年被BCI Asia评为新加坡十大开发商,并在新加坡交易所主板上市。
聚宝园诚聘著名建筑师Design Link Architects Pte Ltd主刀设计。该建筑师设计过多个家喻户晓的住宅项目,如Martin Place Residences、Hillion Mall and Residences、RiverSails、A Treasure Trove和The Sixth Avenue Residences等,让人们留下深刻印象。

聚宝园公寓的海洋游乐场
这个超大型公寓取名聚宝园,意指拥有丰富的财富和您所珍视的一切,包括最有价值的生活空间和欢快庆典。在舒适的空间中生活,探索和成长。沉浸在生活的丰富性中,幸福、希望和爱的种子永放光彩,记忆永恒。宁静而美丽的家园,在精心设计装备精良的套房和广阔的园景中闪闪发光。
聚宝园公寓的入口

聚宝园公寓俱乐部
公寓最大限度地使用玻璃,将明亮和光线带入生活空间。在开发过程中提供各种各样的生活方式选择。如提供128种包括游泳池、Spa、24小时开放的健身房、瑜伽室、社交空间等,可满足各种业主的需求。宽敞高效的布局,最大限度地提高舒适度和空间享受。公寓也选择伊莱克斯和汉斯格雅时尚优质的家居配件。智能社区技术提供安全通道,可在地下室和1层楼的电梯大堂,预订俱乐部内的指定区域和娱乐设施。

聚宝园公寓24小时健身房
每个单元均布局合理、宽敞,配备现代化的设施,以及一流的配件和家具,带来精致的家居生活,以提供便利的生活体验。项目提供1-5卧室不同类型的单元以满足不同的需求。有些单元配备额外房间,居民可将之转换为书房,办公室或客房等,自由支配。有效的平面设计为居民提供方正有效、宽敞,可以彻底优化的生活空间。生活在聚宝园,您就是主角,您可以掌控一切,感受生活、感受亲情、感受爱情,体验从未体验的聚宝生活。

聚宝园公寓的游泳池

聚宝园公寓的游乐场

智能生活、数码体验、手指之间、掌控未来
聚宝园公寓采用现代化的智能家居系统,让您的生活智能化、数码化,轻松安全指点生活、感受生活。这个系统包括采用数码锁,让居家生活更安全更便利。智能家居系统也可以遥控居家空调开关和温度,让您回到清凉舒适的家。居家智能系统还包括通过手机来遥控贵客的来访以及居家递送服务,更加方便快捷。
聚宝园公寓的智能家居系统
公寓还配备智能社区系统。每位居民均可安装社区智能手机应用程序。通过这个程序,您可以预定便利设施和场所。您可以通过这个系统通知您的朋友或访客从侧门或正门进入公寓或您家。您也可以使用社区的WiFi网络服务,进入24小时无间断的健身房和洗车位预定。您也可以利用这个程序查看附近的巴士到点时间。公寓还设有包裹收集站,居民也可利用这个应用程序在方便的时间段收取包裹。此外,公寓还配备来往淡滨尼地铁站和樟宜机场的免费穿梭巴士,居民可以利用该应用程序查看穿梭巴士的时间表。
总之,聚宝园的生活是
智能的、数码的、安全的、高效的

超低售价、保值增值、抓住机遇、感受聚宝
过去几年,掀起了另一波的集体出售热,再加上政府售地计划,2019年市场上将有大批的新项目开盘,这些新开盘的项目分布在全岛16个邮区。这些项目的售价很大因素取决于该项目的地皮价位。2017年下半年,开发商从集体出售和政府售地计划中获得了至少17个住宅地皮的开发权,这些地皮的售价如何呢?这些地段的每平方尺容积率(psf ppr)从S$676到S$1960不等。而最低价位的就是聚宝园了,这充分说明了该公寓在价位上的优势。
聚宝园是东部第一个超大型项目,而迄今为止,在第D18邮区,只有4栋新公寓推出,它们是Coco Palms、Alps Residences、The Tapestry和Casa Al Mare。这些公寓合起来只剩下大约300套未售出。它们的平均单价分别为每平方尺S$1241、S$1174、S$1384和S$1540。最低售价是:
一卧室从S$61.8万起,
二卧室从S$79.8万起,
三卧室从S$108万起,
四卧室从S$162万起,
五卧室从S$215万起。
让我们在看看目前被普遍认为在价位上最具竞争力的5栋新公寓,它们是The Jovell、The Alps Residences、Riverfront Residences、Le Quest和The Tapestry。其中The Jovell公寓售价最低,一至三卧室的售价分别为S$58.8万、S$78.5万和S$101.8万。从目前聚宝园的预估价位看,聚宝园的售价将具有更高的竞争力。
事实上,聚宝园的每平方尺容积率
与即将推出的4栋执行公管公寓EC项目的相当
这些EC项目包括Tampines EC、Sumang EC、Canberra EC和 Anchorvale EC,它们的每平方尺容积率分别为S$578、S$583、S$558和S$576。而聚宝园的每平方尺容积率也只有S$676。
可见,聚宝园的售价可能是2019年推出项目中最具竞争力的一个,也预示其未来的投资回报将更高。
租金回报率
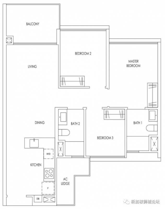
户型设计和雅居欣赏
聚宝园占地60,283平方米(648,880平方尺),拥有99年地契。将建造29栋12层高建筑,提供231个一卧室、738个两卧室、761个三卧室、363个四卧室和110个五卧室,合2,203个单位。面积介于43-160平方米(463-1722平方尺)。
一卧室
套内面积43-45平方米(463-484平方尺)
整套售价从S$64.2万新元起
有些还配备一个书房。特点是户型方方正正,布局合理,采用开放式厨房,无浪费空间,客厅与餐厅共享空间,客厅还配备阳台。客厅与卧室的大小可由居民自由调整或完全无需隔开,从而增加了宽敞感。这样的户型非常适合夫妻情侣享受二人世界,以及专业人士和学生。除了自住,也适合出租给高端专业人士。

二卧室
套内面积54平方米(581平方尺)
至63平方米(678平方尺)
整套售价从75万新元起
特点是户型方方正正,布局合理,无浪费空间,客厅配备阳台。两个卧室均配备衣柜,共用一个卫生间。这样的户型非常适合夫妻情侣享受二人世界,也很适合有个小孩的夫妻,以及专业人士和学生。除了自住,也适合出租给高端专业人士。

三卧室
套内面积76-101平方米(818-1,087平方尺)
整套售价从98.5万元起
共同特点是,户型方方正正,所有房间均配备内置衣柜。厨房相对独立,餐厅与客厅共享空间,客厅配备阳台。这种房型特别适合有2个小孩的夫妻,以及专业人士和学生,以及出租给相关高端专业人士。
四卧室
套内面积115-124平方米(1238-1,335平方尺)
整套售价从98.5万元起
四卧室户型方方正正,所有房间均配备内置衣柜。厨房相对独立,还有储藏间,餐厅与客厅共享空间,客厅和其中一间普通房配备阳台。这种房型特别适合有3个小孩的夫妻,或与父母同住的家庭以及出租给相关高端专业人士。

五卧室
套内面积155-160平方米(1,668-1,722平方尺)
整套售价从98.5万元起
五卧室户型方方正正,所有房间均配备内置衣柜。厨房相对独立,还有储藏间及小庭院。餐厅与客厅共配备阳台。这种房型特别适合有3个或以上小孩的夫妻,或与父母同住的大家庭以及出租给相关高端专业人士。
小 结
这里为您介绍了一栋新加坡东部最大型的99年地契公寓。该公寓的建造将成为新加坡的新地标,是否希望成为新地标的拥有者?
该公寓设施齐全,拥有128个便利设施,满足居民的各种需求。公寓也采用先进的现代智能家居和智能社区系统,让生活更加舒适便利。公寓户型多样化,内部设施高档齐全,安静优雅。
该公寓由集体出售公寓重建而成,土地价位相对较低,其售价将是2019年推出的新公寓中最具竞争力的。公寓又靠近东部开发区以及樟宜商业园,升值潜能大,租金回报率也有保障。
总之,该公寓是名副其实的聚宝公寓,
Treasure convenience(方便)、
Treasure time(省时)、
Treasure growth(增值),
是个难得一遇的好公寓,值得投资,值得拥有。不妨拿起电话,联系我们,享受贵宾服务和优惠折扣。
如果觉得我的文章对您有用,请随意打赏。你的支持将鼓励我继续创作!