Treasure @ Tampines 聚宝园(D18邮区 淡滨尼)
新币 S$ 585,000起
最新&爆款,1室,2室,3室,4室及更大,D18,99年,100万以下,100-125万,150-200万
版权所有 翻版必究
简介:
Treasure @ tampines 位于130 Tampines Street 11, S521130。拥有29栋12层,包括1室,2室,3室,4室及更大,共2203个单位,99年产权。
淡滨尼聚宝园
一个开启幸福故事的百宝箱,在这里,每一个爱的瞬间都将被珍视,并持续不断地为这里的人们创造美好的回忆。
淡滨尼聚宝园对称性的现代建筑矗立在美轮美奂的精致花园和绿荫环绕的花草树木中,在这里可以享受各式各样的生活方式。它拥有128间公寓设施,有一至五间卧室的房源可供选择。来淡滨尼聚宝园感受家的温馨,许多珍贵的时刻等待着您。



新加坡邮区分布图:
概况:
楼盘名称:
Treasure @ Tampines
开发商:
Sim Lian (Treasure) Pte. Ltd
产权:99年
预计交钥匙时间:2023年
单位数量:2203
楼层数量:12
起始总价:新币 S$585,000每平方英尺起始:新币S$1,124
开发商简介
Sim Lian Land
森联地产是森联集团旗下的子公司,拥有超过40年的卓越发展历程。该集团作为住宅发展及建筑集团的知名开发商,享有良好声誉,拥有以优越地理位置,优质工艺及高效空间规划为核心基础的广泛发展项目。
森联集团著名的房地产开发项目有:Lincoln Residences, Rochelle at Newton, Viz at Holland, Hillion Residences, Clover by the Park, The Pearl at Mount Faber, A Treasure Trove and Waterview。
精湛的工艺和精加工、专注于复杂细节以及精心设计是森联集团坚持提供优质住宅的准则。 凭借这些森联品牌的独特标志,森联集团在2015年和2016年被BCI Asia评为新加坡十大开发商之一。
森联开发有限公司是森联控股的子公司。 森联控股成立于1996年,其发展包括商业办公楼,零售商场,商业空间和私人住宅开发项目。
该公司业务覆蓋新加坡和澳大利亚,目前正寻求向其他市场和资产类别多元化。森联控股开发的一些标志性项目有裕廊湖区的Vision Exchange,武吉班让的Hillion Mall和Hillion Residences。其他投资资产包括布里斯班和墨尔本的办公楼。
森联控股致力于为用户创造价值,并以为用户开发现代且高效的空间而深感自豪。森联控股不断努力提高产品质量和服务质量,并一直坚持为客户创造价值。


卖点:
Treasure @ tampines 聚宝园是一个现代和当代建筑,它广泛使用玻璃材料,将亮度和阳光带入生活空间。公寓拥有128个优良的设施,满足业主的各种需求。它具有精心的规划和高效的布局,将最大限度地提高舒适度和享受体验。地下室,电梯,安全通道,住宅区的大厅,俱乐部会所内的指定区域和娱乐设施都将安装智能社区系统,使您享受尊贵的高科技智能体验。
将享受多彩的生活带回家
豪华的入口为宽敞、广阔的住宅区营造浓厚的欢迎氛围,在这里您拥有享受私人独家住宅的特权。
探索华丽的聚宝园俱乐部
聚宝园令人印象深刻的是它的俱乐部。在这里,大家欢聚一堂,享受俱乐部提供的服务。当夜幕降临,花园周围的精致灯饰和豪华的室内设计完美搭配,营造出私人俱乐部的独特氛围。
128个令人心动的设施等著您
聚宝园豪挥超6公顷面积,为所有人提供了应有尽有的设施。
设施合理地遍布整个小区,每个区域都会提供一系列的设施来满足您的爱好。每个转角都有惊喜等待着您。
在聚宝园俱乐部,每一天都是一个庆祝活动,经过专门设计,这里将为您的聚会营造出完美舒适的环境。
在这里为您的孩子举办一场生日聚会,让孩子和他们的朋友们一起构想创造出新的奇遇和刺激,享受无尽的乐趣。
激励自己、保持健康
在聚宝园俱乐部实现您的健身目标,健身房设施配备齐全,能够俯瞰风景宜人的游泳池。闲暇时光来打一场网球,学一项新运动,通过有氧运动锻炼来获得永久的健康。
双倍的乐趣,双倍的幸福
期待您和孩子参与到聚宝园的孩童游乐场所,一起来激发孩子的想像力和好奇心。这里有两个小型游泳池,两个令人兴奋的滑梯,两个主题游乐场和蹦床庭院。让孩子沉浸在欢乐的游乐世界,尽情享受刺激的肾上腺素,在舒适的聚宝园里享受美好的家庭时光。
放松身心,时光倒流,新生活力
在主题游乐场周边设有餐厅和烧烤馆,您可以在郁葱、温馨的氛围中,享用一顿丰盛的家庭晚餐。欢聚泳池畔举办让您及家人朋友心满意足的盛宴。这里还有都市农场和芳香花园,为您提供健康农场主题餐桌晚餐。
在属于您的私人会所放松身心
在安静的环境中恢复活力,放松身心。 或在按摩浴缸、水疗中心和温泉池中尽情享受,或在宁静的吊床上度过一个田园诗歌般的下午,或在瑜伽垫上享受安静舒适的时光。家是您平静心态、身体充电的地方。
随处可得的宝藏
淡滨尼聚宝园位置便利,方便您享受东部所提供的一切设施。
聚宝园周边覆蓋购物、餐饮、娱乐、体育、休闲、学校、医疗保健场所,近距离可达商业区和樟宜国际机场。
绝佳的连接点
临近东西线和市区线的五个地铁站,让您畅游全岛。 未来的跨岛线 (Cross Island Line)也将会提供更多便利,距离巴西立巴士转换站(Pasir Ris Interchange Station)仅一站路程,可直通泛岛高速公路,直达市中心。
生活的中心
淡滨尼聚宝园坐落在淡滨尼极具吸引力又成熟的房地产市场内,享有无与伦比的便利,毗邻淡滨尼地区中心(Tampines Regional Center),您需要的一切从超市,潮流趋向到美食都在这里。
更多精彩有待发现
对于家庭来说,淡滨尼聚宝园拥有难得的地址位置。在这里,一家人可以观看最新电影,活跃在淡滨尼民众设施综合站(Our Tampines Hub),在淡滨尼国家图书馆(Tampines Regional Library)里尽情阅读,或在购物中心品尝下午茶。
触手可得的当地美食、日常必需品
漫步到淡滨尼园巴刹(Tampines Round Market and Food Centre),就可享用新加坡有名的小贩食品,购买附近最新鲜的杂货。
近在咫尺的时尚咖啡馆、美食
约上三两好友,在附近热门的咖啡馆中尽情享受令人垂涎的美食。
在世界上最好的机场,感受终极理想生活
星耀樟宜(Jewel Changi Airport)将于2019年上半年开放,将为家庭提供更多有趣的生活。这座10层高的“理想生活目的地”将容纳280多个国际、本土零售和食品供您选择,拥有世界最高的40米室内瀑布,21700平方米的室内花园和充满世界级游乐景点的游乐园,为年轻人和拥有童心的您提供绝佳游玩场所。
将工作和学校带近您家周围
让生活、工作和娱乐离家更近,淡滨尼聚宝园靠近航空枢纽和生气蓬勃的商业园区,蕴藏着丰富的投资机会。
您的孩子可选择就读附近的知名学校,涵盖从小学到大专院校和国际学校
从大自然的风光中发现快乐
探索、体验、享受。被所有触手可及的户外美景吸引。
为充满活力的生活方式做好全面准备
或享受生机盎然的绿植和宁静的环境,或通过广阔的公园连接网络探索大自然的奇观,或沉浸在水上滑梯和海上运动的刺激中。这里为每个人提供丰富多样的选择。
珍惜和爱的人在一起的时光
回家吧,回到维系和发展良好家庭关系的地方。您位于淡滨尼聚宝园的梦想之家是帮您建立纽带和创造珍贵回忆的地方。
在您和您爱的人共同的生活空间里,所有的房间都是经过精心设计,并配有优质设施,您可以和您爱的人一起珍惜生活空间中的点滴生活乐趣。
欢迎回家,您在淡滨尼聚宝园的家。
1公里内学校
Angsana Primary School
Changkat Primary School
Chongzheng Primary School
Junyuan Primary School
Tampines Primary School
Yumin Primary School
2公里内学校
East Spring Primary School
Gongshang Primary School
Red Swastika School
St. Anthony's Canossian Primary School
St. Hilda's Primary School
Tampines North Primary School
户型分布:
户型
面积(平方英尺)单位数量1室4631871室+书房484442室581-6142652室高级657-6781602室+书房6783133室818-947473室高级1012-10873444室1238-12701764室高级1270-13671875室高级1668-1722110
主力户型:





1室
新币 S$ 585,000起
A1户型 1室 463平方英尺/43平方米
25%首付:S$ 146,250 / 75%贷款:S$ 438,750
30年贷款,2%利息,月供:S$
1,622
1室+书房
新币 S$ 683,880起
A2S户型 1室+书房 484平方英尺/45平方米
25%首付:S$ 170,970 / 75%贷款:S$ 512,910
30年贷款,2%利息,月供:S$
1,896

2室
新币 S$ 750,000起
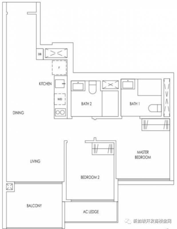
B1户型 2室 581平方英尺/54平方米
25%首付:S$ 187,500 / 75%贷款:S$ 562,500
30年贷款,2%利息,月供:S$
2,079

2室
新币 S$
B3户型 2室 614平方英尺/57平方米
25%首付:S$ / 75%贷款:S$
30年贷款,2%利息,月供:S$

2室高级
新币 S$ 845,000起
B4P户型 2室高级 657平方英尺/61平方米
25%首付:S$ 211,250 / 75%贷款:S$ 633,750
30年贷款,2%利息,月供:S$
2,342

2室高级
新币 S$
B5P户型 2室高级 678平方英尺/63平方米
25%首付:S$ / 75%贷款:S$
30年贷款,2%利息,月供:S$
2室+书房
新币 S$ 913,600起
B7S户型 2室+书房 678平方英尺/63平方米
25%首付:S$ 228,400 / 75%贷款:S$ 685,200
30年贷款,2%利息,月供:S$
2,533

3室
新币 S$ 985,000起
C1户型 3室 818平方英尺/76平方米
25%首付:S$ 246,250 / 75%贷款:S$ 738,750
30年贷款,2%利息,月供:S$
2,731
3室高级
新币 S$ 1,245,000起
C8P户型 3室高级 1012平方英尺/94平方米
25%首付:S$ 311,250 / 75%贷款:S$ 933,750
30年贷款,2%利息,月供:S$
3,451

4室
新币 S$ 1,485,000起
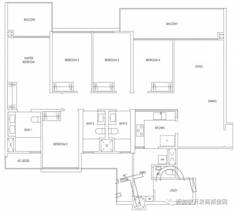
D1户型 4室 1238平方英尺/115平方米
25%首付:S$ 371,250 / 75%贷款:S$ 1,113,750
30年贷款,2%利息,月供:S$
4,117

4室高级
新币 S$
D4P户型 4室高级 1281平方英尺/119平方米
25%首付:S$ / 75%贷款:S$
30年贷款,2%利息,月供:S$

5室
新币 S$ 1,875,000
E1户型 5室 1668平方英尺/155平方米
25%首付:S$ 468,750/ 75%贷款:S$ 1,406,250
30年贷款,2%利息,月供:S$
5,198

版权所有 翻版必究
置业顾问
VIVIEN TAN
电话: +65 96689494
微信:Vivien9494
长按二维码加我微信

在桌面浏览器输入以下网址即可浏览本页内容
http://vt96689494.sg.qybee.com
长按二维码关注公众号:新加坡开发商楼盘网
如果觉得我的文章对您有用,请随意打赏。你的支持将鼓励我继续创作!