近高文地铁大型私人公寓,悦湖苑1房67.8万起,多达128项公寓设施

项目简介:
The Florence Residence(悦湖苑)是一个99年产权公寓,由9栋18层建筑组成,发展商为龙光地产,占地面积为35882平方米,总共有1410个住宅单位,在新加坡为大型私人公寓,户型有1房,1+书房,2房,2+书房,3房,4房,5房,预计2023年初交房
参考价格:(价格为新币)
1房67.8万起,1+书房73.8万起
2房87.7万起 2+书房100.9万起
3房125.4万起,4房171.2万起
地理位置,悦湖苑位于成熟的高文住宅区,周围美食林立,约8分钟可步行到高文地铁站,6分钟步行到后港地铁站,未来开通环岛线会通过后港地铁站,只需1个地铁站栋实龙港地铁转换站(黄线和紫线地铁)和巴士转换站,距离后港体育中心仅有几步之遥,您可以步行去后港体育中心进行常规体育锻炼,如打羽毛球,桌球,游泳等等,保持健康生活。

优质教育资源,名校圣婴小学HoLy Innocents’Primary在一公里内,还有新民小学Xin Min Primary , 其中圣婴小学(男女混校)是本地名校,SAP特选学校之一。中学这块有圣婴中学,实龙岗中学,国际学校方面,约12-15分钟车程即可到达澳洲国际学校,美国史丹福国际学校,全面满足您小孩入学方面需求。
完善的公寓配套设施,买私人公寓不止买房子本身,配套设施是否够多是重要指标。悦湖苑主打“俱乐部共管公寓”Club Condo概念,多达12个各具特色的俱乐部,128个匠心打造的公寓配套设施,提供2年免费休闲活动与课程如健身、瑜伽、和烹饪等等,龙岗地铁只需董事庄总形容悦湖苑居住生活有如“地中海俱乐部”般,让住户足不出户,也能在公寓内度假。公寓设施如长达80米游泳池、健身房、篮球场、桌球角、小孩玩耍区、沙袋练习区、烧烤区等等。

周围商场林立,生活便利,参考下图,只需1站地铁到达东北部最大型商场Nex Mall,3站地铁到碧山地铁Junction9商场,4站地铁到达Paya Lebar Sqaure广场,8站地铁到达克拉码头的新加坡著名的夜生活圈(酒吧,餐馆等),7站地铁达到多美歌的Singapura Plaza商场,8站地铁到达市中心所在地的乌节路购物街。
样板房图片供参考:




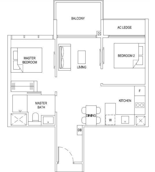
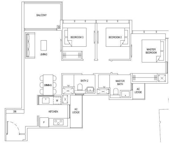
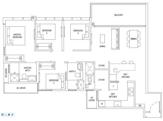
户型图介绍:
1房户型,45平方米,484平方英尺,价格67.8万新币起

1+书房户型,49平方米,527平方英尺,价格73.5万新币起

2房户型,59平方米,635平方英尺,哑铃式设计,价格73.5万新币起

2房优质户型,67平方米,721平方英尺,带封闭式厨房,价格100.4万新币起
2+书房户型,70平方米,753平方英尺,带封闭式厨房,价格103.3万新币起

3房户型,86平方米,926平方英尺,带封闭式厨房,价格125.4万新币起,还有面积大点的三房94-95平方米的

4房户型,118平方米,1270平方英尺,带干湿双厨房,价格171万新币起

4房豪华户型,129平方米,1389平方英尺,带干湿双厨房,带大主人房和小主人房,价格192.1万新币起
漂亮图片大放送:










若您对新加坡任何房产感兴趣,请免费咨询我们的特约房产经纪人张琼/Linda,开发商直接代理销售团队,买公寓无任何中介费用,协助客户办理买房银行贷款,买房产业托管一条龙服务。
如果您喜欢这边文章,请分享在你的朋友圈或转发您需要的朋友,谢谢!
微信号:zhangqiong046456 电话:65-93397258
如果您想了解更多房产类信息,房产政策等干货
可以关注公众号:新加坡通 (微信号:xinjiapotong)
作者个人简历:
房产作者张琼(Linda),新加坡最大房产经纪公司Huttons市场部高级董事,拥有丰富的房产行业经验,已入行热爱的房地产行业约8年.全心全意为客户考虑,致力于协助国人新加坡置业,秉著细心周到的服务态度,以客户利益为出发点,诚信待人。服务过数百位中高档客户,广受客户们好评。包括企业家,企业高管,中小型公司老板,新移民,房地产发展商老板等等。
一个电话过来就了解全岛各地段的项目,总有一款适合您!不跟买家收取中介费,专车接送看房,公司代理全岛各地项目
为什么选择我?本人对市场项目很熟悉,可以更加专业帮您找到适合的单位,节省你看房所需花的时间,可以带您看全岛各地的项目,只选适合您的好项目.
协助您办理银行贷款(外国人可贷款),房屋推荐,律师咨询等,值得客户信赖的房屋经纪人。总以专业的眼光推荐适合客户需求的房屋项目,始终客户优先.
如果觉得我的文章对您有用,请随意打赏。你的支持将鼓励我继续创作!