
楼盘基本信息介绍:
坐落在尊贵的第11邮区(诺维娜/Novena),地理位置优越,新加坡的第9,10,11邮区属于高档邮区,大多数豪宅项目坐落在这3个邮区, 该项目为永久地契项目,占地约18674平方英尺,总共71个单位,1栋19层高,有2卧室,2卧室和3卧室户型,项目预计在2022年11月交房。
广告参考价格:2卧室156.6万起,2卧室+客房185.7万起,3卧室211.7万起 (价格单位为新币)
7分钟即可步行到诺维娜Novena地铁站,只需2站地铁到达乌节路地铁站/Orchard MRT,4站地铁到总统府所在的多美歌地铁站/Dhobby Ghoat MRT,6战地铁到港湾地铁站/Harbourfront MRT,7站地铁到中央商业区所在地的滨海湾一带,方便周末时间带家人孩子们一起去圣淘沙岛(Sentosa)游玩,请参考下图,可以高速公路泛岛高速PIE、CTE、KPE,ECP高速到达全岛各地。

· 子女教育方面,靠近受欢迎的政府学校和国际学校,CHIJ小学(大巴窑区),ACS Junior School英华美学校,花拉公园小学,ST Margaret小学,圣约瑟书院中学Saint Joseph’s Instition Junior,宏文学校等,请参考下图
广告
方便步行到靠近的大型购物商场,像Novena Square,UnitedSquare,[email protected],Square 2商场,包括大型超市,小孩的补习中心,托儿所,餐馆,快餐店,银行分行,便利店都有,生活极为便利,全方面满足您生活上的需求

众所周知,诺维娜Novena是新加坡政府大力打造的最大医疗保健中心和未来医疗卫生城,更一步扩大Novena未来的健康城,著名陈笃生医院,伊丽莎白医院(Mount Elizabeth),莱佛士医院都在这一带,到达莱佛士医院只需12分钟车程,有超过1万名医生在这里工作,其中很大一部分是来自国外医术高超的专科医生,还有护士等医疗相关专业人士,潜在的租客需求,势必带来房产增值
广告
驾车8分钟就可到达新加坡著名的乌节路购物街,8分钟车程到新达城,12分钟车程到达滨海湾金沙赌场,15分钟车程到达新加坡南边的大型商场怡丰城Vivocity.

样板房和项目效果图片大放送:


广告




户型和价格介绍:
2卧室户型,55平方米,带阳台,开放式厨房,每个房间都可以放双人床,布局紧凑,但格局分布合理,价格156.6万新币起
广告
2卧室户型,61平方米,带阳台,开放式厨房,每个房间都可以放双人床,布局紧凑,格局分布合理,价格168.1万新币起

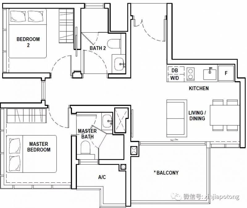
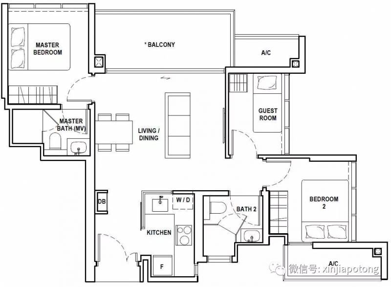
2卧室+客房户型,74平方米,带封闭式厨房,中间为大客厅和长阳台,每个房间都可以放双人床,价格185万新币起

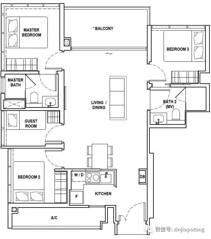
3卧室户型,87平方米,带封闭式厨房,中间为大客厅和长阳台,每个房间都可以放双人床,价格211.7万新币起

广告
如果觉得我的文章对您有用,请随意打赏。你的支持将鼓励我继续创作!