设计公司:ONG&ONG
位置:新加坡
类型:剧院 文化建筑
Gateway Theatre是栖息在红山中心的多功能展演剧院,它以观者体验和社会参与为建筑主旨,服务于社会大众。剧院的正立面向Bukit Merah大街开放,穿行在街道上的人们可以在此驻足停留,感受与城市生活的亲密融合。
建筑外貌
广告

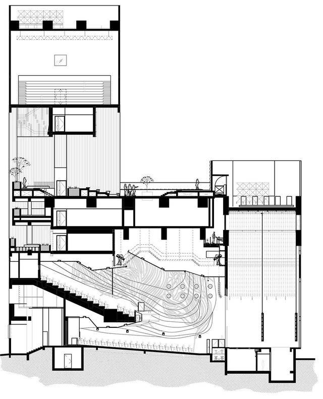
除剧院必备的演出场地外,人流导向和交通梳理也是建筑的设计重点。不同于以往的公共空间设计,Gateway Theatre强调了展演空间与社区环境之间的交流。建筑各层独立规划,且布局各自分明,为观众的体验和参与创造了条件。
演出大厅


交通空间
广告
相互交叠的景观营造由上之下连成一片,缓和了枯燥单调的大体量建筑空间。此外,位于六层的户外花园,将绿色引入建筑,也将建筑与城市景观融为一体。从空间布局来说,该剧院是可以同时容纳多场演出的公共活动空间。从功能上看,配套的景观规划将建筑还原于城市之中,建筑、景观和城市在此处交融。
交叠的户外景观


位于六层的花园

广告



夜色景观

广告
平面图

剖面图
如果觉得我的文章对您有用,请随意打赏。你的支持将鼓励我继续创作!