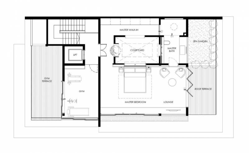
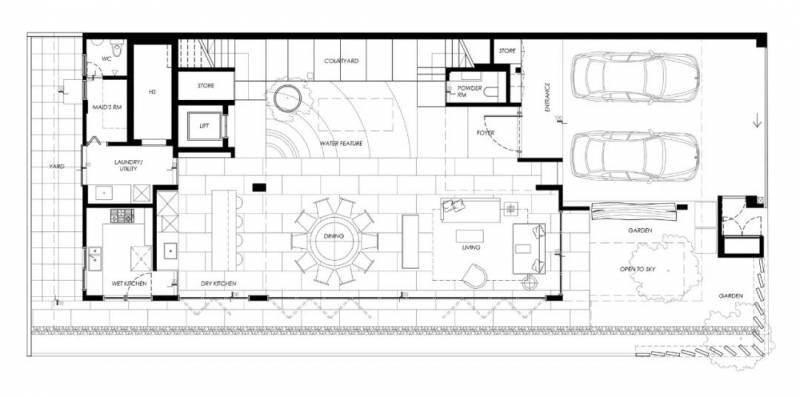
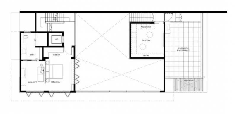
Clifton山谷别墅是位于新加坡的一栋独立的私人住宅项目,由Freight Architects设计,其具体设计理念是在一个紧凑的场地内建造一个内部开放的住宅。
主要的设计思路是在一个小地块上创造一个空间感较大的住宅,且必须是一个热带住宅。设计师的方法是把生活空间想像成一个有遮蔽的户外空间,让业主感觉就像生活在花园里。为了营造一种空间感,设计师采用了简单的空间营造的手法,比如编排入口顺序,引导人们穿过一个压缩的入口,然后进入到一个带有池塘的双层层高的生活空间。
广告设计师在入口的正上方置入了一个“黑匣子”电影室,给人一种压缩的入口的感觉。一个卧室夹层被放置在面向住宅后方的位置,以创造一个双层感的生活空间。池塘上方也成为卧室的的中央“呼吸井”。所有卧室都放在竖井周围并在竖井中开窗,即使在卧室中也能实现交叉通风。在新加坡,半独立式住宅的中心通常是黑暗的,因为一般被共用墙挡住了。通过创造一个空气管道,室内的热空气被向外排出,并创造了一个交叉通风系统。中庭的天井有一个玻璃滑动天窗,下雨时天窗会自动关闭。


广告




广告




广告




广告




广告
如果觉得我的文章对您有用,请随意打赏。你的支持将鼓励我继续创作!