新加坡摩天豪宅即将登入世界排行榜

Wallich Residence 华利世家 (D02 邮区 丹戎巴葛)
新币 S$2,039,150起
(准)现房,豪宅,最新&爆款,1室,2室,3室,4室,4室及更大,D02,99年产权
版权所有,翻版必究
简介:
华利世家坐落于丹戎巴葛(3 Wallich Street Singapore - 078882),尽享其带来的无限工作、生活、娱乐机遇。该地区已聚集的大型机构与公司包括新加坡金融管理局、证券投资者协会(新加坡)、新加坡政府投资公司、麦士威会堂等。这不仅吸引其他同级别跨国公司来此办公,同时也对那些想加入这一精英地域的小公司具有非凡的吸引力 。
相较中央商业区其他位置,丹戎巴葛人口居住区更为广阔。约有住宅单位8,600 间,居民32,500 人。得益于稳定、庞大的人口基数,该地区生机勃勃,即使在下班之余抑 或周末时段,仍然繁华热闹。丹戎巴葛周边地区也尽为休闲娱乐好去处。毗邻的达 士敦山、安详山、柏城街均聚集了各类流行酒吧、餐厅、咖啡馆;其他名胜如红点设计博物馆将带领游客领略国际设计的最新潮流。
该地区四通八达、出行便利,经滨海高速(Marina Coastal Expressway)、亚逸拉惹高速(Ayer Rajah Expressway)等主要高速公路可方便抵达城市各处。距樟宜机场16分钟车程,距滨海湾和乌节路仅4分钟和8分钟车程。华利世家居民还可直接乘坐地铁,丹戎巴葛地铁站就位于丹戎巴葛中心下方。
以上众多优势将促使中央商业区中心就此转移 丹戎巴葛必将成为中央商业区的新中心。



新加坡邮区:
概况:
楼盘名称:Wallich Residence
开发商:Belmeth Pte Ltd, Guston Pte Ltd, Perfect Eagle Pte Ltd
产权:99年
完成年份:2017年
单位数量:181
卖点:
历史传承
位于华利街的华利世家,得名于丹麦杰出外科医师、植物学家Nathaniel Wallich,他的杰出贡献使新加坡获得“花园城市”的美誉。
Wallich 医生及其好友Sir Stamford Raffles(现代新加坡创始人)对新加坡地区丰富的动植物群怀有浓厚兴趣。1822年,两人更是建立“植物实验园”,即新加坡植物园前身,该园被列入联合国教科文组织世界遗产目录。
华利世家的设计理念充分秉承Wallich医生对植物及自然的热爱,并将植物主题融入公共区域和景观之中。该项目中有多种植物引自Wallich 医生的植物实验园。工作人员制服也包含同一主题的设计元素。作为Wallich 理念的坚守者,华利世家彰显出自然和环境在建造世界最著名绿色都市中的重要作用。
华利世家坚守自然、 环境可持续发展 至上的设计理念,已跻身未来绿色建筑之列。丹戎巴葛中心获得新加坡建设局(BCA)绿色建筑标志(白金)奖,和能源与环境设计认证(LEED)CS金预认证。华利世家更是获得(BCA)绿色建筑标志(超金)奖。华利世家将古老丹戎巴葛公园的现有绿色植物纳入其中,为此地的办公人士和居民提供了舒适的环境。

位于39 层至64 层的华利世家是新加坡最高的住宅单位。它包括181个奢华私宅单位,其中包含一至四卧房单位、4套顶层豪宅、1套超级顶层豪宅。每套住宅均采用无可挑剔的顶级建筑装饰材料,彰显出华利世家的独特美学理念。此外,大厦设有四个专属的配套设施楼层,包括酒店服务标准的华利礼宾服务部、令人惊叹的无边际泳池(39层)、私人图书馆(52层)和拥有屏息美景的观景台(62 层)。华利世家是如此独一无二,不仅拥有一览城市美景的无敌高度,还为其居民提供绝无仅有的生活享受。


除了Wallich Residence所在的优越地理位置以及其周围众多的酒吧和餐厅,同时毗邻日益流行的Duxton Hill,Club Street和Ang Siang Hill。 Wallich Residences坐落在新加坡全岛最高的建筑内,并且充分利用它的高度。作为181间豪华公寓的主人,都可以从特别建造的观景台上鸟瞰整个城市的壮丽景色。 并且从其巨大的无边泳池可以眺望180米外的大海。绝对在享受的同时,彰显尊贵!
1公里以内的学校
康达小学(Cantonment Primary School)
2公里以内的学校
圣婴女校(客乐)(CHIJ (Kellock))
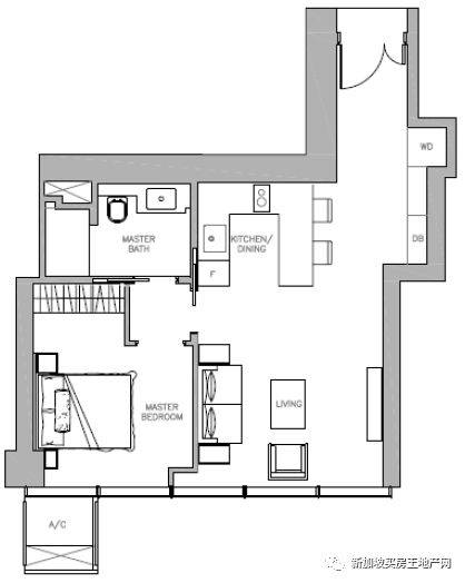
户型分布:
主力户型:
A1-4户型 1室 646平方英尺 / 60平方米
新币 S$2,480,000起

A1-5户型 1室 614平方英尺 / 57平方米
新币 S$2,039,150起

A1-6户型 1室 646平方英尺 / 60平方米
新币 S$2,480,000起

A2-1户型 2室 861平方英尺 / 80平方米

B2-2户型 2室 915平方英尺 / 85平方米
新币 S$3,560,650起
直降新币S$85,250
现价新币S$3,475,400起

B2-1户型 2室 958平方英尺 / 89平方米

C2-1户型 2室+书房 1259平方英尺 / 117平方米
新币 S$6,627,450起
A3-4户型 3室 1098平方英尺 / 102平方米
新币 S$3,737,450起
直降新币S$243,830
现价新币S$3,493,620起

A3-5户型 3室 1098平方英尺 / 102平方米
新币 S$3,737,450起
直降新币S$243,830
现价新币S$3,493,620起
A3-1户型 3室 1313平方英尺 / 122平方米
新币 S$5,080,000起
直降新币S$934,859
现价新币S$4,145,141起

A3-1户型 3室 1313平方英尺 / 122平方米
新币 S$5,080,000起
直降新币S$934,859
现价新币S$4,145,141起
B3-1户型 3室 1195平方英尺 / 111平方米
新币 S$4,630,800起

B4-1户型 4室 1658平方英尺 / 154平方米
新币 S$6,350,350起
直降新币S$70,350
现价新币S$6,280,000起
#43-07 3室 1744平方英尺 / 162平方米
新币 S$5,197,120
#44-07 3室 1722平方英尺 / 160平方米
新币 S$5,161,000起
#46-07 3室 1701平方英尺 / 158平方米
新币 S$5,238,000起
#47-07 3室 1679平方英尺 / 156平方米
新币 S$5,270,000起
#40-10 3室 1787平方英尺 / 166平方米
新币 S$5,539,700起
#41-10 3室 1765平方英尺 / 164平方米
新币 S$5,668,000起
#42-10 3室 1755平方英尺 / 163平方米
新币 S$5,703,750起
#45-10 3室 1711平方英尺 / 159平方米
新币 S$5,920,060起
C4-1户型 4室 1991平方英尺 / 185平方米
新币 S$8,888,888起
C4-2-61户型 4室+书房 1981平方英尺 / 184平方米

#58-03 4室 + 书房 2034平方英尺 / 189平方米
新币 S$8,400,420起
#59-03 4室 + 书房 2013平方英尺 / 187平方米
新币 S$8,374,080起
阁楼户型 4室 3509平方英尺 / 326平方米
新币 S$17,200,600起

豪华阁楼户型 5室 21108平方英尺 / 1962平方米
如果觉得我的文章对您有用,请随意打赏。你的支持将鼓励我继续创作!