开盘在即,王者传奇
我即经典,一个社区神话
---悦湖苑
演绎国际生活,独享尊贵气派。
一个社区神话,宛如身处英伦。
在悦湖苑,这已是生活的本然。
倾心打造的国际化生态社区,让居住于世界同步。
成功来自梦想,卓越源于不断超越。
悦湖苑,把您的居住梦想变成生活现实。
张驰有度,浪漫人生。在繁忙的工作之余,您总需要一个空间,让身心放松。每逢假期,很多新加坡人会选择出国旅行,但对于身居悦湖苑(The Florence Residences)的您而言,却能选择足以替代国外,且更具特色的尊贵的休闲场所,那就是游弋在悦湖苑内的十多家各具特色、设备齐全的顶尖大型俱乐部群中,尽享完全您的舒适空间。

位于第19区(高文区)的悦湖苑,是由屡获殊荣的香港发展商“龙光地产”(Logan Property)全新推出的优质私人公寓。悦湖苑倡导俱乐部会所生活方式,让生活宛如度假。

悦湖苑土地面积约36161平方米,容积率为2.8,由于占地面积庞大,使得龙光地产有机会发挥更多元化的公寓概念,创造前所未见的俱乐部公寓生活体验。悦湖苑除了有1410个奢华公寓单位,还有12家引领狮城的优质俱乐部:悦湖俱乐部(THE CLUBHOUSE)、悦湖弯(ARRIVAL CLUB)、养悦俱乐部(WELLNESS CLUB)、水悦俱乐部(HYDROTHERAPY CLUB)、岛悦俱乐部(ISLAND CLUB)、健悦俱乐部(YOUTH & FITNESS CLUB)、喜悦俱乐部(PASSION CLUB)、花悦俱乐部(GARDEN CLUB)、食悦俱乐部(GOURMET CLUB)、悠悦俱乐部(TRANQUILITY CLUB)、儿童水悦俱乐部(KIDS’AQUA CLUB)、童悦俱乐部(KIDS’ PLAY CLUB)。此外,悦湖苑还提供各类免费居家课程,如健身、瑜伽、烹饪与烘焙课程,以及插花工作坊等,满足居民的不同兴趣和需求。

哈佛大学昆虫学家威尔逊(E.O.Wilson)提倡出一种“Biophilia”的概念,意即热爱生活和亲近生命。他认为人类从大自然演化出来,对自然环境及动植物,有天生的好感。

悦湖苑的景观设计灵感便来自于威尔逊的理念,悦湖苑注重自然与现代生活的完美融合、以及人与自然的和谐互动。每当夜幕低垂时,游泳池会与四周的现代化建筑和树木在风中交相辉映,树影婆娑如星辰坠入大海,整体画面就像一件熠熠生辉的艺术珍品,让你瞬间感觉栖身于大自然的舒畅。
如果您喜欢种植花草,花悦俱乐部的香草园想必是您最喜欢的角落。您可随时驻足了解您所精心栽培的花草每天茁壮成长,或跟插花工作坊的同学交流心得。喜欢骑脚踏车的住户,一定会喜欢悦湖苑喜悦俱乐部专为脚踏车族而准备的设施,例如脚踏车族聚集地(Biker’s Hangout)和歇息亭(Biker’s Pavilion)。

喜欢运动的住户,还可以享受各类体育活动的乐趣,包括水悦俱乐部的水中脚踏车和跑步机,养悦俱乐部的太极拳和瑜伽课程,以及在健悦俱乐部带拳袋的搏击场里练拳。运动过后,要放松身体的话,您可到水悦俱乐部的日式温泉或养悦俱乐部的保健盐池泡澡。现代人见识广阔,对生活空间要求更高。所以悦湖苑既有各类新设施,也从软件着手,提供为期两年的免费课程,如舞蹈班、烹饪班、Zumba课程、以及儿童演艺和古典音乐班等。
在悦湖苑,每天都是新鲜感受,一切喜欢的课程及工作坊也近在眼前;让您亲自体验梦寐以求的时尚活动,绝对让您焕发青春,秀出精彩。另外,悦湖苑设施和活动适合全各年龄层需求。像它专为幼儿和孩童设立童悦俱乐部、内有蹦床、吊床、冒险岛屿和幼儿嬉戏区等,提供孩童空间和平台去释放他们的能量和创意。

从地理位置上看,悦湖苑无疑也是今年最具投资价值的私宅项目之一。因为这个项目位于备受买家欢迎的成熟住宅区,附近有多种美食选择,又靠近地铁站和连接主要快速公路。它周围还有许多名校及繁忙商业及工业城。新加坡政府刚刚宣布,第八条地铁线“环岛线”(Cross Island Line)将衔接后港、德福等地区,而悦湖苑步行6分钟就可达未来的环岛线地铁站。同时悦湖苑离东北线的高文地铁站也仅8分钟步行距离。悦湖苑也是本地极少数同时由两个地铁站提供服务的市郊私宅项目,预料这两个地铁站能为悦湖苑带来强大“地铁效应”,推高项目的增值潜能。悦湖苑还毗邻主要高速公路如中央快速公路(CTE)、加冷-巴耶利峇快速公路(KPE)、淡滨尼快速公路(TPE)和泛岛快速公路(PIE)等。另外,该地区正进行一些改善交通的工程项目,包括建立一个综合交通枢纽,连接后港各个地区。随着这些项目的发展,悦湖苑地区交通将更为便利通畅。

在新加坡东北部,高文区私宅交易向来活跃,而它吸引买家的一个原因,就是这地区充满活力,并提供许多便利设施。在购物、餐饮和休闲方面,悦湖苑住户可以步行到不远处的后港市镇去。那里共有3间商场;后港购物坊(Hougang Mall)、港脚坊(Kang Kar Mall)和The Midtown。这些商场里有许多商铺、餐饮店和超市。悦湖苑也靠近高文城(Kovan City),那里是受高文居民欢迎的邻里购物区。高文城那有心邻坊(Heartland Mall)也设有高文巴刹与熟食中心。住户可以在那里买到新鲜的水果、蔬菜和肉类。此外,熟食中心也有非常多的著名熟食摊位,提供住户许多美味的本地美食。住户从悦湖苑搭一个地铁站就能到达NEX购物中心,那里也是新加坡东北区的一间大型购物商场。
在教育方面,悦湖苑周围可以说是名校林立,圣婴小学,蒙福小学和新民小学等都在1公里范围内,较远的则有乐赛小学。项目附近也有国际学校如DPS国际学校、澳洲国际学校和汇佳学校新加坡分校等。

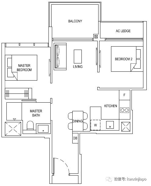
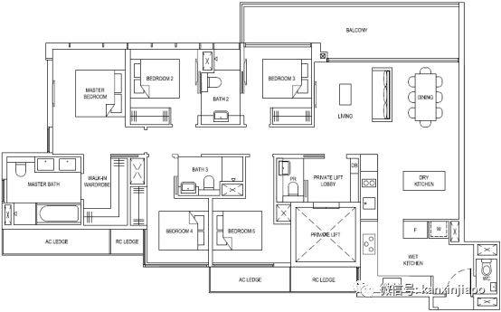
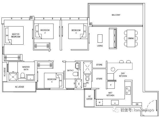
悦湖苑不单拥有众多便利设施,每个单位的设计也富含巧思,大气简约的室内设计彰显质感,让房间每一处显得明亮温润,仿佛带有安抚心灵的神奇魔力。悦湖苑整个项目共有九栋住宅楼,均属于99年地契,它们大多南北朝向,减低烈阳西照。而且单位大多面对周围低楼层有地住宅区,或对面的后港体育场,或游泳池景观等,使居民能欣赏到无遮挡风景。悦湖苑单位配备优质厨具,浴室用具和配件,当中一些单位还提供一般只有顶级豪华私宅才配备的高端厨房品牌如Grohe、Roca和Electrolux等。所有单位也会提供智能家居功能设备,其中有智能家居网关,配搭设置在单位出入口的数码摄像头和电子锁。悦湖苑共有1410个单位,户型包括216个一卧房单位,72个一卧加书房单位,556个两卧房单位,52个两卧加书房单位,386个三卧房单位,80个四卧房单位和48个五卧房单位。单位面积介于44平方米至178平方米,其中:
1. 一卧房单位,套内面积44平方米/474平方尺起,价格67.8万新元起。

2. 两卧房单位,套内面积58平方米/624平方尺起。

3. 三卧房单位,套内面积83平方米/893平方尺起。

4. 四卧房单位,套内面积118平方米/1270平方尺起。
5. 五卧房单位,套内面积155平方米/1668平方尺起。

衡量生命厚度的坐标不是时间,
而在于是否体验到更多美好的事物。

悦湖苑有让您放松身心的悠闲空间,有匠心打造完善设施,更创造了超凡俱乐部体验,让您纵享公寓奢华。闲坐悦湖弯(ARRIVAL CLUB),看孩子姗姗学步;岛悦俱乐部(ISLAND CLUB)一隅,心情如行云悠悠淡淡;在花悦俱乐部(GARDEN CLUB),往来的是与您一样对美和品味的追求不曾妥协的邻人……在这,常感觉时间不够,实在有太多的美好让人沉醉。
悦湖苑,让吴洲带您发现顶尖居住生活的真谛!
金牌经纪人/吴洲
添加吴洲微信,免费实时获取新加坡所有
楼盘最新价格和解答房产疑问。
· 我是谁
吴洲:任职于新交所上市企业 ERA担任高级营销总监,金牌房产经纪人(新加坡IEA房地产经纪协会2013/2014 年度金奖得主),他从业9年,专业买卖全岛各区产业,秉承专业诚信,事无巨细的工匠精神理念,迄今成交完的产业总市值以数亿新币计算,服务过数百位中高端客户满意置业,为中国客户和新移民的首选金牌经纪人,欢迎买家/卖家联系吴洲团队。
· 我们是谁
我们的金牌团队是一个源自地产,海外身份规划,全球资产配置,律师和金融系统中最靠谱一个跨行团队组合,团队高度专注中国市场,数百高净值客户共同见证使用,给您绝对靠谱的专业服务。
联系吴洲:
微信:peterwu99
手机:(+65) 88 139 139
在线看房:www.kangongyu.com
如果觉得我的文章对您有用,请随意打赏。你的支持将鼓励我继续创作!