
优雅,居于浮华之上
一个城市的珍藏
顺福轩(Jadescape)
建筑是有价的,
上风上水、和谐共生是无价的。
缘起顺福路,顺福轩从大地珍藏到城市珍藏,重新定义了精品公寓,完成了一次出色的演绎。
作为物质符号的豪宅勋章,它已超脱传统地产开发视野。
不再是简单的“建筑+园林”,而是声望、是格局、是价值取向。
顺福轩已经上升到代表一个区域的高度,是20区的划时代大作。
名家手笔:日本丹下都市建筑设计(Tange Associate)操刀设计
上风上水:镜像水系设计,小区宛如玉如意
黄金区位:地处第20 邮区,新加坡核心地带,名校林立
绝佳风景,绿意环绕:与徒步圣地麦里芝蓄水池为邻,内外兼修,社区与自然融为一体
经典设计:智能家居,引领狮城潮流
品质改善 价值尊贵
在稀缺资源中传承建筑价值,在稀缺资源中孕育生活态度。
高贵血统,驰骋繁华与园林之上,承传启合,巨匠造物,
经典大作才是城市真正的勋章。
青建集团是中国AAA级企业,也是中国500强企业之一。
母公司创立于1952年,业务范围涵盖工程承包,扩大至地产开发、国际工程、进出口贸易、工程设计、监理、咨询以及建筑材料生产销售和物业管理等领域。
青建集团于1999年登陆新加坡,从分包商做起,2004年起做总承包商,承接数个位于盛港和榜鹅的组屋建造工程。
2008年,青建在新加坡成立青建地产(南洋)集团,开始进军房地产开发领域。

青建地产本次花重金请到了重量级设计单位--日本丹下都市建筑设计(Tange Associate),该公司由丹下健三先生在1961年创立,丹下健三是世界知名建筑师,1987年第9届普利策克奖得主。
他是战后日本经济腾飞时期活跃起来的代表建筑师,影响了黑川纪章、槙文彦、矶崎新等一代日本建筑师。
丹下健三之子丹下宪孝在世界建筑圈同样享有极高的知名度,丹下宪孝的著名作品包括日本富士电视台、太子酒店、BMW意大利总部大楼等。
他设计的东京新宿Mode学园Cocoon Tower,曾获得有“建筑界奥斯卡”之称的安波利斯摩天大楼奖。
他在新加坡主导的设计包括One Raffles Place Tower 2,UOB Plaza以及Orchard Gateway等大型项目。

上风上水,如意进家
玉如意寓意吉祥如意,一种象征祥瑞的器物,头灵芝形或云形,柄微曲。
玉如意在中国古代宫廷生活中扮演着非常重要的角色。每逢重大节庆日,王公大臣和各地官员都要进献玉如意。
作为吉祥物,每逢新皇即位、皇帝大婚、皇帝生日的时候,玉如意更成为不可缺少的礼物——皇帝登基,大臣要进献“如意”,祝贺新政大吉大利,万事如意。
玉如意一直为贵族人士所青睐,又依赖佛教僧侣所推动,所以大大提升了如意的地位。
以至于在魏晋、隋唐时期,所塑造的菩萨形象也发生了改变,代表智慧与义理的文殊菩萨手中所执的正是一把如意。由此,玉如意便成为象征吉祥美好及思辨睿智的符号。
顺福轩的英文为Jadescape,本身就有“玉山水/玉景”之意,所以顺福轩的小区设计刻意遵循“吉祥如意”的风水理念,宛如一把玉如意摆放在社区之中。
不仅如此,丹下宪孝还巧妙的将“麦里芝蓄水池”镜像到小区水系设计中,使得整个小区宛如皇家宫廷般吉祥美好。


黄金区位,无以伦比
繁华近,山水静。几分钟穿梭世界,繁华自然自由切换,传统成熟社区,距离地铁站仅200 米。
一线贯通的驰骋,几回谈笑的距离,一路收藏丰盛景致。身在喧嚣的都市,忽而已是淡漠繁华天地宽。
顺福轩位于碧山--汤申区域的2-16顺福路(Shunfu Road),占地面积 36985.7 平方米。
其前身是Shunfu Ville,在 2016 年 5 月的时候被青建集团$638百万的价格买下,这是在 2017年集体出售风潮之前,因此地价成本便宜,仅每平方英尺$747,与2017和2018年动辄每平方英尺$1000+的项目比起来,非常有竞争力!
交通便利 品质生活
顺福轩交通十分便利,距离黄线玛丽蒙(Marymount)仅仅 200米,走路即刻就到,锦上添花的是,玛丽蒙地铁站在地下,这样不仅能够享受到距离地铁站近的便利,还不受到噪音干扰。
此外,项目距离预计2023 年完工的汤申上段(Upper Thomson Road)地铁站也只有 650 米,5站地铁就能到达繁华的乌节路!
顺福轩所在的碧山--汤申区域属于成熟社区,周边生活配套都已经十分完善,食阁,超市,幼儿园应有尽有;大型商场有Junction 8, Thomson Plaza,Ang Mo Kio Hub等;新加坡最出名的高尔夫球场Singapore Island Country Club也在附近。

咫尺名校 书香环绕
顺福轩周边可谓名校云集,教育资源丰富:一公里内有著名的公教小学(Catholic High School Primary),这是新加坡9所提供天才班(GEP)的小学之一;
除此之外,2公里之内还有爱同和国专长老会小学。
另外,鼎鼎大名的莱福士初级学院也在附近,2019年后,莱福士女中也将会搬来这一带。

园林为界 繁华为径
绝佳风景,绿意环绕,社区内外,融于一体对城市的尊敬,对自然的叹服,雕琢并升华为世代传承的荣望。
麦里芝蓄水池在新加坡这个缺乏淡水的岛国,是一种极其独特的存在。它是新加坡第一个蓄水池,至今已有百年历史。
它也是唯一位于全岛正中心的大片水域,加上周围的自然保护区,麦里芝被誉为“新加坡的绿肺”,因此,麦里芝蓄水池被称为新加坡的徒步圣地。
身居顺福轩,每日都可以过来享受这别致的水景,摇曳多姿的绿树,温柔拂面的清风,在繁忙的都市生活中找回那轻松、舒适的自然气息。
清早起来,您在小径上漫步,天空是由枝叶组成的巨大绿盖,不时的缓缓飘落几片数叶,在风中旋转,感觉原始森林的古朴之美,虬曲的枝干相互缠绕、错落,为您组成一幅幅奇妙的图画。
丹下宪孝非常善于将别致的建筑与环境有机地结合,麦里芝蓄水池旁的顺福轩自然也不会列外。
顺福轩整体色调偏于自然的沉静,选用了红褐色的桃心木色,与新加坡常见的浅色公寓略显不同。

丹下宪孝研习狮城本土人情世故,在布局形态、空间尺度和环境氛围注重景观、朝向、舒适等人性化因素和营造宜人的社区环境。
楼与楼之间利用水系与绿色植被作为区隔,在观赏绿野情趣的同时也为您保证了私密性。
顺福轩园区内设有游泳池、休憩花园、屋苑会所、24小时安保、健身中心、烧烤区、小型运动场、儿童游乐场、网球场、篮球场、慢跑径等,每一处设施不仅仅拥有其基本的功能,同时也是整个社区画卷中不可分割的一部分艺术元素。

智能家具,引领潮流
除了精致的颜色细节外,在建筑格局方面也别具心裁。从远处看,顺福轩就是城市中常见的高楼。
但如果渐渐靠近,颜色将这里与外界分开。再走近些,形态各异的阳台让整个建筑变得趣意盎然。
七座塔楼交错排列,每栋建筑都有自己的特色,创造了许多有趣的角落和小空间。
您无法从任何一个位置看到整体的景观,但却能找到属于自己的那一方天地。

多种户型 99年地契
顺福轩为99年地契,由7座现代化高层建筑组成,其中5座为23层,另外两座为22层和21层,合计1206户住宅单元,以及6个店面单位。
户型面积设计明显大于其他新楼盘,户型方正以实用为主,没有浪费的面积,户型从1卧室到5卧室以及Penthouse一应俱全:
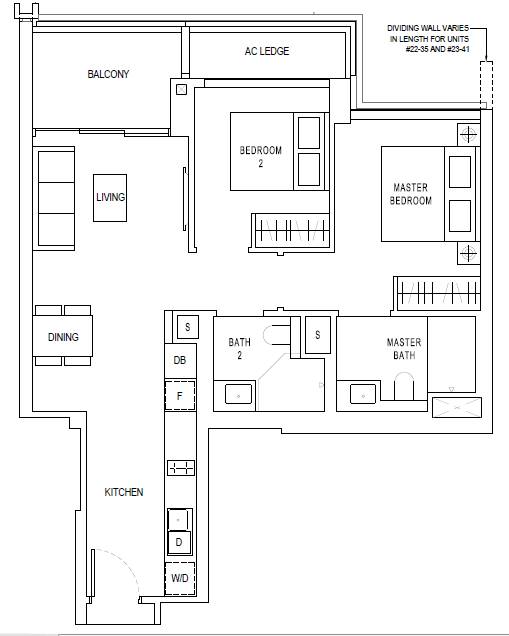
01
一房户型,面积为49平方米/527英尺
在一房室单位中算面积较大户型,中规中矩
02
两房户型,面积为71平方米/764英尺
连普通房都有9平方米,主卧加卫生间更是有19平方米,完全可以媲美其他公寓三房的主卧面积。

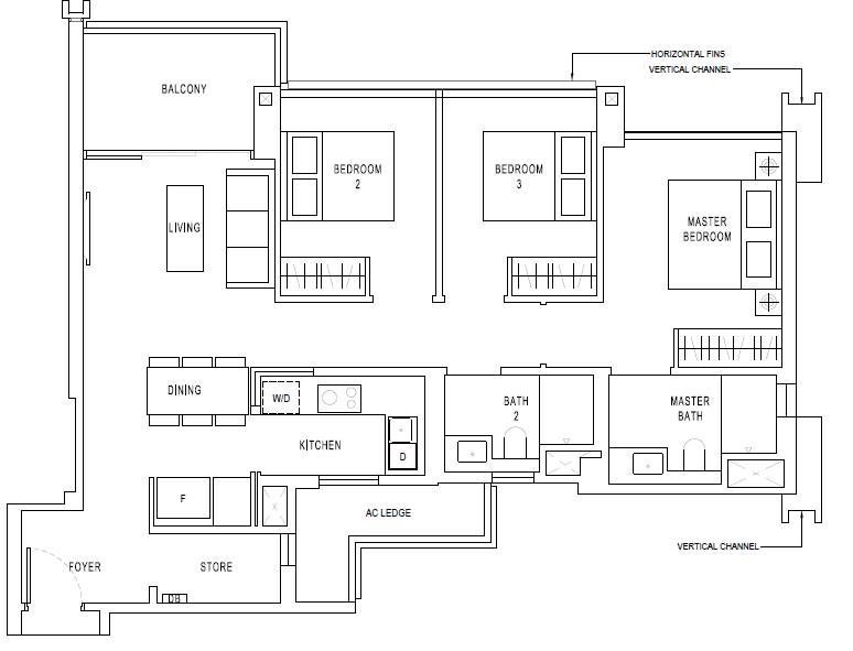
03
三房户型,面积为94平方米/1012英尺
普通房都有10平方米,大于一般新楼盘普通房的8平方米,相当实用。

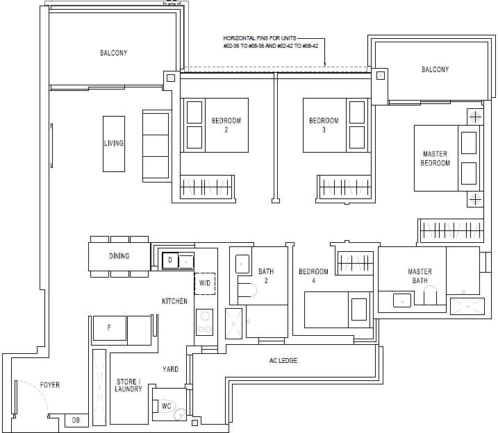
04
四房户型,面积为117平方米/1259英尺
配置大阳台,主卧自带衣帽间,面积多达25平方米

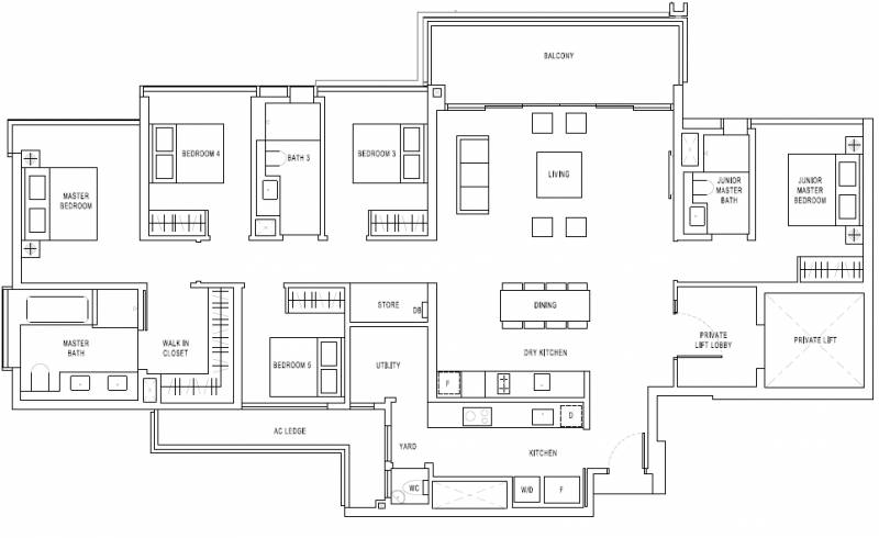
05
五房户型,面积为195平方米/2099英尺
客厅多达57平方米,主卧和卫生间面积多达33平方米,自带衣帽间,大平层大户型设计,经典实用。

06
Penthouse户型待定

随着科技的发展,智能设备已经渐渐开始走进人们生活的方方面面。顺福轩引领潮流,采用智能家居系统,旨在给您提供一个全新的智能时代居家体验。
入住顺福轩,您只需通过一个手机或平板电脑的App即可即时控制家里的智能化安全服务、电子门锁、智能化屋内灯光与窗帘、智能空调等一系列智能应用设备。
顺福轩还根据乐龄者的需求,推出63个“金标”(The Gold Standard)单位。这些单位装备各类乐龄设施,例如卧床设有监测体温和心跳的检测带,让住户查看他的睡眠质量。
除了智能家居系统,顺福轩还是首个采用智能住宅管理系统的住宅项目,可探测和迅速修理灯泡烧坏或水管漏水等问题。

豪宅品质,成就了顺福轩历久弥新的品质魅力,不因时光的流逝而褪色。
建筑与自然完美和谐,水系与花卉交叉有序。强调足不出户体验丰富的视觉层次和丰厚的生活享受,这也正是“家”的理想境界,
一个恢弘大气和高远境界,一个印证居住荣耀的境界,注定了顺福轩将成为狮城的豪宅勋章,注定了顺福轩从诞生之日起就牵引著狮城精英阶层们的灼热目光,也注定了它将推动新加坡地产跃升于世界名宅之林!
顺福轩期待与您共同见证这荣耀时刻!

如果觉得我的文章对您有用,请随意打赏。你的支持将鼓励我继续创作!