“中国取消公摊面积”
这个重磅消息
瞬间刷爆了朋友圈

也瞬间荣登了
当天的热搜
引发了国内小伙伴
强烈关注
大家不禁含泪仰天长啸

擦干你的眼泪,这事儿啊
你怕是有什么误会
可没那么简单!
取消公摊面积?最新解读!
咱先来看看消息来源:
2月18日公示的文件
住房和城乡建设部公布
的一项新规征求意见稿显示
“住宅建筑应以套内使用面积进行交易。”

引发了强烈的关注,被解读为:
“中国取消公摊面积”
其实,这是被大家
错误理解了!

新华社,央视纷纷辟谣
最新解读
1、这份文件是意见稿,是征求意见的状态,还没有真的实施。
2、征求意见稿,征求的是对一项工程建设标准规范的意见,约束对象是住宅项目的建设单位。
3、在购房时,还有各种其他法规的约束,一个《住宅项目规范征求意见稿》并不能代表所有。
4、意见稿中表示“住宅建筑应以套内使用面积进行交易”,并不等于取消公摊,现行的《商品房销售管理办法》早有规定。
说白了就是,不管是以什么来计算
只不过是计算方式的改变
对取消公摊等
对多交少交物业费、取暖费
房价等并没有直接关系

无论大家有多想要
告别“公摊”
对这份意见稿的理解
确实是不准确的!
一言难尽的“公摊面积”
很多椰友在新加坡待久了
不太了解这个“公摊面积”
简直是中国小伙伴心中的“痛”
也就是传说中
“买100平米房子只得70平米”
换算成真金白银的话
“买100万房子,只得70万?”
商品房的建筑面积—套内建筑面积=
公摊
面积

公摊给电梯,管道井等不说
还有值班警卫室!
而且物业费,取暖费等
都是按照这个面积算?
怪不得大家会一直“诟病”了
“公摊面积”哪来的?
1.
网友怎么说?
“国际上基本都是按套内面积计算房价?为何我们计算房价、物业费等,都要包括占比颇高的公摊面积?”
2.
新华社也发文质疑
也发文质疑“公摊面积”,《“公摊面积伤民”矛盾亟待求解》,《买100平米得70平米:公摊面积7大乱象》等,引发网友的热议!

3.
到底谁的锅?
公摊面积开发商说多少就是多少,公摊面积的具体比例,国家出台的《商品房销售面积计算及公用建筑面积分摊规则》里并没有强制性规定,只明确其比例由合同当事人来进行具体的约定。
公摊面积计算方式缺乏标准,一般都是各地自己决定,这也就直接导致了部分不良开发商在计算公摊面积的时候不是以一个公允的规则来计价。

说白了,就是公摊面积缺少标准、管理混乱。
其实,除了公摊面积
《住宅项目规范》中也有一些内容
同样,甚至更加值得关注
表达了很多小伙伴公摊外的一些
诉求和渴求
新建住宅要全装修交付
告别毛坯房
四层楼以上应安装电梯
告别爬楼梯
住宅使用年限不能低于50年
告别漏水房

美好的期许能否实现?
感觉还是已经
迈出了一大步

新加坡房产又如何?
同样是花钱买房子
在新加坡买房
又是什么画风?

新加坡和深圳房价大致持平
1
购买面积
中国习惯用平方米(也称平方米)
新加坡都是平方英尺
1平方米约10.8平方英尺
100平方米约1080平方英尺
新加坡购买的房子面积是按
套内面积计算的
没有所谓公摊的概念
1080平方英尺就是得100平!

*注意:新加坡阳台面积、空调主机放置面积和有没有飘窗等,这些均按全面积计算。
2
没有毛坯房
新加坡也没水泥style毛坯房
公共组屋的期房入住
基本的装修已经完成

公寓更不用说了
都是精品装修拎包入住
很多精品公寓还有软装修
几乎全都是成品房交付

3
房屋设施
新加坡从1990年开始
政府要求新建楼房的
电梯必须每层都要停
从2001年3月,又开始了对老楼房改造
90年代以前所建的也不放过
全面达到“层层有电梯”的要求

新加坡公寓设施更齐全
网球场,游泳池,健身房
多功能厅都是标配



其他不同之处
大家也感受一样

说了这么多
新加坡房产到底如何
又有哪些项目搞促销活动?
今天就来盘点一波~
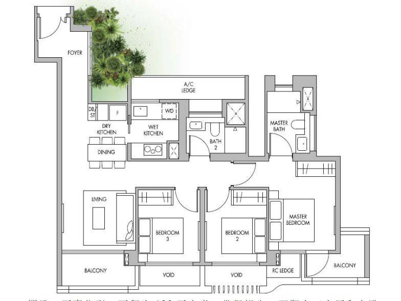
Affinity @ Serangoon
首先推荐的第一个选手---Affinity @ Serangoon

基本信息:
总共单位
1052户和5间店铺
占地面积
约27583平方米/2.75公顷
公寓设施
多达88项公寓设施
户型
1-4房和联排别墅单位
楼层
7栋14层高层单位和2-3层的联排别墅
交房时间:
预计2022年交房
发展商
豪利集团和联明集团等
地契
99年
参考价格:
发展商给所有单位5%额外印花税折扣,如果以160万新币计算,可节省高达8万新币。
1卧室70.1万起,1+书房77.6万起,普通2卧室99.1万起,优质2卧室112.4万起,3卧室121.5万起,优质3卧室155.8万起,4卧室208万起,联排别墅225万起
这项目最近销售很火爆,成为新楼盘中的爆款。因为政府宣布跨岛地铁线的实龙岗北地铁就在该项目附近,距离不到500米,步行约5分钟即可到达,还有新加坡排名前十的名校乐赛小学(Rosyth School)在一公里范围内,有小孩入学需求的家长们可以关注下这个项目,和我预约看房时间哦~

完善的公寓配套设施,项目多达88项公寓设施,包括会所、50米的游泳池、休闲娱乐泳池、室内健身房、室外健身角、水下健身器材、SPA、空中烧烤区BBQ、多功能活动室、聚会草坪、水景花园、空中花园等等,完善的配套公寓设施让你在劳累的上班之后彻底放松自己,周末带小孩足不出户就可以在小区内玩耍,让您的远离城市的喧嚣,静心享受生活的美好。
夜色下的公寓全景
公寓俱乐部会所和游泳池

公寓户外用餐角落

Martin Modern
推荐的第二个选手---第9邮区的玛庭豪苑Martin Modern

发展商现在给2房到4房户型额外5%折扣,优惠幅度在10-24.5万新币范围不等,数量有限,促销活动可能随时取消,有兴趣的朋友尽快和我约时间哦~
玛庭豪苑位于新加坡第9邮区黄金地段,乌节路商圈,周围豪宅林立,是最受投资者欢迎的地区,是市区最畅销的高档项目之一,也是小编喜欢的高档项目之一,无论从户型设计、小区绿化设计、房子用料等方面,我都觉得是一流的。


由专做高档项目为主的国浩房地产(Guocoland)打造,国浩房地产里面绝对有做豪宅项目的基因/DNA,位于马丁广场和里峇峇利之间。

总占地面积接近16000平方米,在寸土寸金的第9邮区绝对属于面积大的地块,打造450个单位,分为南,北楼2栋30层单位,有2房到4房豪华户型,连最小2卧室的户型面积71平方米/764平方英尺,最大的4卧式单位面积高达167平方米/1798平方英尺。

户型面积比一般新项目同户型面积都大,户型设计棒,面积利用率高,住起来绝对爽,爽,爽!离地面挑高10米,让您的房子有居高临下的感觉哦。

2卧室,73平方米,开放式厨房,每个房间可以放双人床,价格$199.3万起,多5%优惠价格189.3万起

3卧室豪华型,131平方米/1421平方英尺,自带私人电梯,尽显尊贵,厨房分为干湿两部分,宽敞的客厅.除了大主人房,左侧还有小主人房哦,价格379.6万起

4卧室豪华型D1, 161平方米/1733平方英尺,自带私人电梯直接入户,舒适的主卧卫生间带浴缸,厨房为干,湿两部分,3个房间在右侧,另外一个小主人房在房子的左侧(自带浴室),如果碰上有亲戚朋友过来玩,可以灵活安排小主人房当客房用哦.价格为462.4万新币起

Tre Ver
推荐第三个选手-波东巴西的Tre Ver
项目亮点
(1) 靠近St Andrew School小学在一公里内,男孩家长们的福音
(2) 靠近美国史丹福国际学校/ Stamford International School
(3) 新加坡著名发展商华业集团UOL打造项目
(4) 只需约8分钟步行到波东巴西地铁站
(5)生活极为便利,实龙岗的大型商场NEX Mall,新开商场The Poiz Centre,还有新建中商场Woodleigh Mall
(6) 丰富的公寓配套设施和绿化率高, 知名设计公司WOHA参与设计
(7) 享受漂亮的河景或者游泳池景观
(8) 地处新加坡中部,方便通过PIE/CTE等到达全岛各处
(9)价格优势,只需单价15XX/英尺起,性价比高

项目基本信息:
地理位置
波东巴西1道/ Potong Pasir Ave 1
土地面积
约18710平方米
总单位/房型
729套,1-4卧室
楼层
3栋20层,2 栋19层,4栋7层
地契
99年
最近地铁:
波东巴西地铁站/Potong Pasir MRT
预计交房日期
2022年8月
新年抽奖送红包活动中:
价格直降抽中的红包数目,从3888-6888不等,包抽中,最少3888,红包数量有限,有兴趣朋友请您尽快约我看房时间。



一卧一厅户型,适合单身或年轻情侣,面积为46平方米,价格为74.4万新币起

两卧一厅户型,面积为60平方米,河景和游泳池朝向,厕所居然带窗口,厨房安装一扇门就可以改为封闭式,价格98万新币起

三卧一厅标准型,面积为94平方米,无保姆房,河景朝向,价格153.8万新币起

四卧一厅豪华型,面积为128平方米,带保姆房,双阳台(客厅和主卧室),河景和游泳池朝向,价格215.4万新币起

作者介绍
若您对新加坡任何房产感兴趣,请免费咨询我们的特约房产经纪人张琼/Linda,开发商直接代理销售团队,买公寓无任何中介费用,协助客户办理买房银行贷款,买房产业托管一条龙服务。
如果椰友们有兴趣买公寓
可以联系linda
微信号:zhangqiong046456
电话:93397258
作者介绍 张琼(Linda),新加坡最大房产经纪公司Huttons市场部高级董事,公司代理全岛各地项目,拥有丰富的房产行业经验,已经加入热爱的房地产行业7年多.全心全意为客户考虑,以客户利益为出发点,诚信待人,服务过包括新移民,企业家,商人等,广泛获得客户好评。不跟买家收取中介费,专车接送看房,公司代理全岛各地项目。一个电话过来就了解全岛各地段的项目,总有一款适合您!
协助您办理银行贷款(外国人可贷款),房屋推荐,律师咨询等
值得客户信赖的房屋经纪人。
总以专业的眼光推荐适合客户需求的房屋项目,始终客户优先.
欢迎需要买房或者卖房的朋友添加我的微信号(扫描以下二维码)

如果觉得我的文章对您有用,请随意打赏。你的支持将鼓励我继续创作!