Nyon私人公寓位于新加坡第D15邮区的丹戎加东(Tanjong Katong),属于新加坡的东区,占地约2,639平方米(28,406平方尺),临海而居,几乎所有的单元均为海景房。
Nyon私人公寓拥有永久地契,钻石般永恒发光。公寓位于市区边缘,3分钟步行至丹戎加东地铁站(Tanjong Katong MRT),周边购物娱乐设施齐全,美食唾手可得,如附近的加东购物中心(Katong Shopping Centre)、加东村(Katong Village)、奥迪安加东(The Odeon Katong)、百汇广场(Parkway Parade)和I12加东(I12 Katong)等。
Nyon私人公寓也靠近熟食中心如Marine Parade Central Market and Food Centre等。附近教育资源丰富,名校林立,满足给年龄段居民要求,如一公里范围内就有丹绒加东小学(Tanjong Katong Primary School),还有道南小学(Tao Nan Primary School)和圣婴女子小学(加东)(CHIJ (Katong) Primary School)和德明政府中学(Dunman High School)等。
Nyon私人公寓由著名发展商新加坡老字号建筑公司和合(Woh Hup)旗下的子公司Aurum Land开发,将建造1栋18层楼高建筑,提供28套一卧室、15套两卧室一卫生间、7套两卧室双钥匙、14套两卧室两个卫生间和28套三卧室,合92套单位,面积介于44-150平方米(474-1614平方尺)。该公寓配备智能家居,让生活更美好便利,部分单位拥有双钥匙,自住出租两不误,价格合理,升值潜能大。
引 言
人们说“万物生长靠太阳,雨露滋润禾苗壮”,又说“鱼儿离不开水,花儿离不开香”。是的,水是生命的源泉,没有水也就没有了灵性。
山清水秀养育涓涓细流,
涓涓细流汇成江河湖泊,
江河湖泊终成河川大海。
千百年来,有着无数的文人墨客赞美着江河雨露之美妙,塑造著无数永恒而又刻骨铭心之杰作。而临海而居,是许多现代人梦寐以求的目标。
清晨,
在轻轻的海浪声中唤醒,看着窗外蔚蓝的天空,湛蓝的大海,沏上一杯咖啡,静静品尝,感受人与自然的和谐,是何等的惬意!
午后,
坐在阳台,香茗一杯,远眺波光粼粼之大海,享受透过玻璃的暖阳,拥抱大海。
夜晚,
海上明月相伴,感受“海上生明月,天涯共此时”意境,体会亲情,感恩生活。
“上善若水,水善万物而不争”,
依水而居,上风上水,乃吉祥之住宅。
水是财气的象征,水聚明堂为吉,能够临水而居,对事业、对生活都有着很好寓意。建筑设计师们也对山水、江河和大海情有独钟,建造出一栋又一栋临水、临海的杰作。而临海公寓,更是其中的宠儿。这里为您隆重介绍一栋名副其实的临海公寓,Nyon公寓。该公寓位于东海岸,一个向来受本地和外国买家青睐的滨海地段。
Nyon临海公寓效果图
公 寓 干 货
永久地契新楼盘,钻石般永恒发光;
位于东海岸,属海景私宅;
位于市区边缘,属代表中档公寓的其他中央区(RCR)公寓,价格合理,升值潜能大;
由著名发展商开发,有信誉和质量保障;
3分钟步行丹戎加东地铁站(Tanjong Katong MRT);
周边购物娱乐设施齐全,美食唾手可得;
教育资源丰富,名校林立,满足给年龄段居民要求;
双钥匙单元,自住出租两不误;
智能家居让生活更美好便利;
品牌设施,高端享受;
靠近东海岸公寓,享受滨海生活。

Nyon临海公寓距离丹戎加东(Tanjong Katong)地铁站只有130米
位 置 剖 析
Nyon公寓位于新加坡第D15邮区的丹戎加东(Tanjong Katong),属于新加坡东区的安珀路12号(12 Amber Road)。公寓位于私人住宅地段,如周围还有三个私宅项目,琥珀斯公寓(Amber Skye)、统一大厦(King’s Mansion)和16号安珀(16 @ Amber),宁静舒适,绿意盎然。公寓的位置非常优越,距离正在建设中的丹戎加东地铁站(Tanjong Katong MRT)不到200米,只有3分钟步行距离。经由此地铁站可直达珊顿道(Shenton Way)、乌节路(Orchard Road)以及未来新柔地铁(Johor Bahru-Singapore Rapid Transit System)的终点站兀兰北地铁站(Woodlands North MRT)。公寓200米范围内还有巴士路线36、36A、36B和48路等,协助居民出行。驾车人士可从东海岸公园大道(ECP),直通到滨海高速公路(MCE)和加冷-巴耶利峇高速公路(KPE)。9分钟抵达樟宜机场、11分钟至樟宜商业园、12分钟抵达滨海湾、15分钟到达抵达乌节商业圈、19分钟抵达纬壹科技园。

Nyon临海公寓交通便利
公寓附近一公里范围内的购物商场包括加东购物中心(Katong Shopping Centre)、加东村(Katong Village)、奥迪安加东(The Odeon Katong)、百汇广场(Parkway Parade)和I12加东(I12 Katong)等,这些商场内还设有NTUC平价超市、巨人超市和冷藏超市等。项目附近也有众多主要的熟食中心如马林百列中心大牌84巴刹与熟食中心(Blk 84 Marine Parade Central Market and Food Centre)、德明熟食中心(Dunman Food Centre)、热兰巴株大牌4A巴刹与熟食中心(Blk 4A Jalan Batu Market and Food Centre)等,满足居民的味蕾。
Nyon临海公寓四周设施齐全
学 区 房 产
Nyon公寓是一个地地道道的学区房。公寓附近1公里范围内的幼儿园就有5家。一公里范围内的小学有丹绒加东小学(Tanjong Katong Primary School);名校道南小学(Tao Nan Primary School)以及圣婴女子小学(加东)(CHIJ (Katong) Primary School)和海格女子小学(Haig Girls’ Primary School)也在附近。附近的中学有德明政府中学(Dunman High School)、中正总校(Chung Cheng High School (Main))和丹绒加东中学(Tanjong Katong Secondary School)等。项目500米范围内还有国际学校采士华国际学校(东区校园)(Chatsworth International School (East Campus))和加拿大国际学校(丹绒加东校园)(Canadian International School (Tanjong Katong Campus))等。这样,附近的教育资源可为各年龄层的公寓居民提供全方位的服务。

Nyon临海公寓四周教育资源丰富
楼 盘 特 色
Nyon公寓由著名发展商新加坡老字号建筑公司和合(Woh Hup)旗下的子公司Aurum Land开发。和合控股从事工业和民用建筑行业90多年,而Aurum Land是一家成立近40年精品房产开发商。他们开发的项目包括Macdonald House、Centerpoint、World Trade Center(现为Harbourfront)和Clifford Pier(现为The Fullerton Bay Hotel)等,最近开发的项目包括Marina Bay Suites、Reflections at Keppel Bay和The Interlace等,从中可知其强大的开发实力。
东海岸是峇峇娘惹(Preranakan)文化的发祥地之一。Kampong Amber位于东海岸和琥珀路之间,原本就是一个马来甘榜村庄,这是一个在20世纪40年代和50年代多元文化蓬勃发展的地方,村民包括来自中国、印度和马来西亚等,他们可以融洽相处。发展商从中获得灵感,将公寓命名为Nyon,来源于娘惹“Nyonya”,是对女性的尊重、爱戴、及肯定她们对社会的贡献。Nyon公寓以娘惹传统文化为基石,结合令人惊叹的现代化设计,以人为本,现代舒适,将珍贵的文化遗产以奢侈、高端的形式展现出来。

Nyon临海公寓入口

Nyon临海公寓入口一角

Nyon临海公寓社交场所

Nyon临海公寓游泳池
公寓共建18层,其中1和14层为公共设施,为居民提供游泳池、海景瞭望台、空中餐厅等公共设施。第一楼是家庭聚会的好去处,孩子可在泳池嘻嘻,大人们在俱乐部聊天或去烧烤。第十四楼设有配备空中厨房的、可容纳18人聚餐的葡萄酒餐厅,居民们可以在这里品尝美酒、欣赏日落、瞭望一望无际的大海。

Nyon临海公寓夜景
公寓采用品牌高档材质建造,如博世(BOSCH)、GESSI、LAUFEN和Chrome的厨房、卫浴设备等。整栋公寓展现出高雅的文化品位、现代高端的设计以及豪华舒适的空间,结合东海岸一望无际的大海景观,营造一个休闲娱乐的高档场所。
智 能 家 居
公寓提供Gateway智能家居系统,这个系统利用最新的物联网(IOT)和移动通讯技术及其在房地产和社区管理方面的深厚专业知识,实现智能家居和智能社区服务。在这个智能系统中,每个单元都安装有IP摄像头和智能锁。居民只需用智能卡或个人密码即可进入您可爱的新家。智能家居也装备了相应的手机应用程序,一键搞定,随心所欲,一切都在掌控之间。
公寓不但提供智能家居系统,也提供智能包裹接收系统,如POPSTATION。这样,居民可以在任何时刻收到来自世界各地的包裹,包括网上订购物品。真正做到一机在手,一键搞定。

Nyon临海公寓空中餐厅
升 值 潜 力
公寓的升值潜能是买家较为关心的热点之一。这与公寓本身的地理位置、地契类型以及出租回报率等有关。Nyon公寓距离地铁站只有不到200米,四周设施齐全、教育资源丰富,具备进一步升值的潜在条件。
我们再来与周边公寓作一比较分析。Nyon周边可比较公寓包括The Seaview(2008年TOP)、One Amber(2010年TOP)和The Cape(2014年TOP)。屋龄已11年的The Seaview的成交价已达每平方尺S$2099新元,而已5年屋龄的The Cape已达每平方尺S$2,226新元。从这点看,购买Nyon公寓是有升值潜力的。
我们再来比较在建的两个新项目Amber 45和Amber Skyve。它们的成交价已分别达到每平方尺S$2,573和S$2,397新元。由此可见,Nyon公寓具有价格优势。
Nyon临海公寓空中餐厅
另外,Nyon公寓附近还有其它4辐地段已列入整体重建计划。它们是Parkway Mansion、Amber Park、Albracca (One Mayer)和Nanak Mansions。它们的每平方尺容积率(psf ppr)分别为新币S$1,536、S$1,515、S$1,409和S$1,429,均比Nyon公寓(S$1,268)的高许多。这样,预计这4栋公寓的销售价均会比Nyon公寓的高。这也从另一个角度说明Nyon公寓的增值潜能。

夜幕下的Nyon临海公寓空中餐厅

Nyon临海公寓一角
雅 居 欣 赏
Nyon公寓属中小型项目,让居民享用低密度居住环境而又拥有相对齐全的配套设施。公寓提供28一卧室、36个两卧室(包括7个两卧室双钥匙)和28个三卧室单元。

Nyon临海公寓的客厅和餐厅
一卧室,套内面积44平方米(474平方尺),整套售价从S$1,200,000元起。特点是户型方方正正,布局合理,采用开放式厨房,无浪费空间,客厅与餐厅共享空间,客厅与主卧室共享阳台。这样的户型非常适合夫妻情侣享受二人世界,以及专业人士和学生。除了自住,也适合出租给高端专业人士。

Nyon临海公寓的一卧室平面结构图
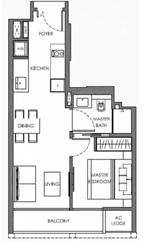
二卧室,套内面积67-85平方米(720-915平方尺),整套售价从S$1,700,000元起。特点也是户型方正,布局合理,采用开放式厨房,无浪费空间,客厅与餐厅共享空间,客厅与主卧室共享阳台。两个房间均可放置双人床,配备橱柜。这样的户型非常适合夫妻情侣享受二人世界,或拥有一个孩子的家庭,也适合出租给相应的高端专业人士和学生。

Nyon临海公寓的二卧室平面结构图
三卧室,套内面积98平方米(1055平方尺)至150平方米(16平方尺),整套售价从S$2,600,000元起。Nyon公寓的三卧室最小面积为98平方米,户型方正,布局合理,三个房间均可放置双人床。采用开放式厨房,无浪费空间,客厅与餐厅共享空间,客厅还配备阳台。这样的户型非常适合有一到两个孩子的家庭,或希望与父母同住的家庭及相应的专业人士。

Nyon临海公寓的三卧室平面结构图
小 结
Nyon是位于东海岸的永久地契海景公寓,新的地铁线投入使用后,3分钟步行至地铁站。
Nyon公寓乃吉祥之住宅,可尽享蔚蓝的天空,湛蓝的大海,感受人与自然的和谐。水是财气的象征,能够临水而居,对事业、对生活都有着很好寓意。
东海岸是峇峇娘惹(Preranakan)文化的发祥地之一,公寓以娘惹传统文化为基石,结合令人惊叹的现代化设计,以人为本,现代舒适,将珍贵的文化遗产以奢侈、高端的形式展现出来。
公寓配备空中葡萄酒餐厅,居民可以在这里品尝美酒、欣赏日落、瞭望一望无际的大海。公寓采用品牌高档材质建造,展现高雅的文化品位、现代高端的设计以及豪华舒适的空间,营造一个休闲娱乐的高档场所。
价格合理,升值潜能大,是东海岸值得投资的房产项目。感兴趣的朋友,请拿起手中电话,享受专业的房产专家服务,购买心仪的公寓。
如果觉得我的文章对您有用,请随意打赏。你的支持将鼓励我继续创作!