
丽思卡尔顿公寓
The Ritz Carlton Residences
丽思卡尔顿公寓共58套住宅,这个私宅楼地处城市腹地。项目位于新加坡高档的第9区,属于核心中央区,是永久产权。丽思卡尔顿公寓是东南亚唯一一栋由豪华连锁酒店管理并配备工作人员的独立住宅楼。
该大楼开发商高鸿置地(KOP Properties)的首席执行长苏巴曼(Leny Suparman)说,这座36层的公寓楼于2011年8月完工,坐落在新加坡名流聚居之地──经禧路(Cairnhill Road),与这个城市国家的主要购物区乌节路(Orchard Road)仅隔两条街。热闹繁华的乌节路商圈步行5分钟即可到达,丰富多样的购物、餐饮及娱乐场所近在咫尺。
地址:经禧路65号(乌节路)
发展商:高鸿集团
地契:永久
预计完工:即刻入住
总面积:约5482平方米
总单位数:58套住宅单位
户型:
3卧:263平方米
4卧:284平方米
阁楼:332平方米
豪华阁楼:604平方米
丽思卡尔顿公寓的建筑公司为Eco-Id Design Consultancy Pte Ltd。该公司于1996年成立于新加坡,致力于建筑整体设计、策划及室内设计的全方位设计公司。其早期的设计比赛作品曾在英国皇家建筑师协会和伦敦的皇家艺术学院展览。其所设计的知名项目包括位于曼谷的著名六星级大都会酒店,和位于马尔代夫的首个W水疗度假酒店(Starwood 集团)。Eco-Id同时也在策划位于泰国苏梅岛的Conrad酒店,以及在曼谷的一个豪华湖滨住宅项目(Hyde公园)。

丽思卡尔顿公寓
The Ritz Carlton Residences
丽思卡尔顿公寓,其精美的构造和出众的设施, 结
合久负盛名的丽思卡尔顿尊贵服务, 极力为奢华生
活诠释新标准。
业主专享:
- 服务总监随时提供规划咨询
- 代客泊车
- 24小时礼宾服务
- 咖啡吧(24小时提供咖啡和茶水)
- 免费早餐和下午茶
- 丽思卡尔顿酒店预定
应业主要求可提供的其他服务:
- 家政服务
- 洗衣服务
- 儿童看护服务
- 加长豪华房车服务
- 公寓内或指定地点承办宴席服务
- 活动策划/管理

丽思卡尔顿公寓
The Ritz Carlton Residences
丽思卡尔顿公寓的大楼建在一个斜坡上,和同样大小的住宅相比,这套公寓的视野更为开阔。曾参与香港丽思卡尔顿酒店设计的LTW装饰设计有限公司为这座大楼进行了室内设计。它大量使用了中性色调和木、石之类的天然材料。其精美的构造和出众的设施,结合久负盛名的丽思卡尔顿尊贵服务,极力为奢华生活诠释新标准。

丽思卡尔顿公寓
The Ritz Carlton Residences
厨房和餐厅之间由一扇单向可视玻璃滑动门隔开,便于帮佣在厨房中看到餐厅的情形。厨房中配置了劳斯莱斯(Sub-Zero)冰箱、德国博德宝(Poggenpohl)厨柜和德国美诺(Miele) 牌厨房电器等设备。主卧为L形,铺着带人字形图案的美国白色橡木地板。主卧配套卫生间中最昂贵的特色是一整块由手工瓷砖压制成的墙面,价值2.5万新加坡元(折合人民币约12.5万元)。卫生间内还装有来自日本东陶(Toto)卫浴的日式自动马桶。

丽思卡尔顿公寓
The Ritz Carlton Residences
大楼的主电梯装饰有包鸵鸟皮的涂漆镶板,并且必须通过指纹识别或输入密码才能进入。高鸿置地称,这是全新加坡最贵的电梯。这栋公寓楼内的小区设施供分成4层楼,底楼设施有网球场、花园凉亭、25米游泳池、按摩浴池、儿童戏水池、多功能娱乐区、儿童乐园和一个通往主路的迷宫花园。4楼空中会所有34米室内游泳池、温水按摩水疗池、室内/室外健身房、桑拿房、瑜伽区和水上健身区。14楼空中会所有阅览室、游戏区和咖啡吧。24楼空中会所有美食厨房、酒吧和酒窖以及可以容纳60人座位的多功能区。
远东商业中心(Far East Plaza) 、百丽宫(The Paragon)、幸运大厦(Lucky Plaza) 、先得坊(Centrepoint) 文华购物廊(Mandarin Gallery) 和诗家董百货公司(Tangs)等等的购物商场给予丽思卡尔顿公寓的住户无限的购物乐趣。美食方面有纽顿熟食中心、竹脚市场( Tekka Market)和中峇鲁的锡安河畔食阁等等都是很好的选择。纽顿熟食中心又名“纽顿圈”,是新加坡传奇熟食中心之一,让众多本地居民和外地游客流连忘返。
丽思卡尔顿公寓靠近的学校有英华学校(经禧)、圣玛格烈小校、圣约瑟书院学校(圣迈克校园)、华苑小校、立化小学、新加坡女子小学、莱佛士女子中学、英华学校(巴克路)、新加坡女子学校和博理中校等等。公教初级学院也离丽思卡尔顿公寓不远,公初是约17所天主教中学的附属初院。在强调学业成绩的同时,不忘注重学生的心灵发展,提供了一般学校较少有的宗教教育、伦理及学生发展课程等。
底楼设施

- 网球场 - 迷宫花园 - 花园凉亭

- 25m游泳池 - 按摩浴池 - 儿童戏水池
- 多功能娱乐区 - 儿童乐园
大堂
- 楼高6.8米
- 各单元的专属电梯门廊
- 3层地下车库(135个车位)
- 24小时安全防护报警系统
四楼空中会所

- 34米室内游泳池
- 温水按摩水疗池
- 室内/室外健身房
- 桑拿房
- 瑜伽区
- 水上健身区
十四楼空中会所

- 阅览室 - 游戏区 - 咖啡吧
二十四楼空中会所

- 多功能区 - 美食厨房 - 酒吧和酒窖
(60人座位, 100站位)
客厅

- 层高(3.1m / 10 ft)
- 板切磨光石灰岩地板,以及抛光磨边石灰岩窗台
- 美国路创品牌照明/空调/热水器系统
餐厅/厨房

- 板切磨光石灰岩地板和窗台
- 专业设计的单向镜子门
- 德国POGGENPOHL品牌厨房系统,花岗岩台面
- 美国Sub-Zero电冰箱 - 德国MIELE顶级厨房用具
卧室

- 层高(3.1m / 10 ft)
- 人字图形白橡木地板
- 意大利B&B品牌,配有除湿机的内置衣柜(白橡木实木衣柜门)
卫浴间

洗漱间
- 抛光石灰岩地板
- 大理石梳妆台
- 日本Toto品牌漱洗用具和智能坐浴盆
主卧浴室
- 金砂石(大理石)梳妆台面,地板及墙壁
- 白大理石淋浴墙
- Ann-Sacks 风格装饰墙
- 日本Toto品牌漱洗用具和智能坐浴盆
- 德国Dornbracht洁具
其他浴室
- 抛光石灰岩地板
- Silver dragon大理石梳妆台
- 美国科勒品牌漱洗用具
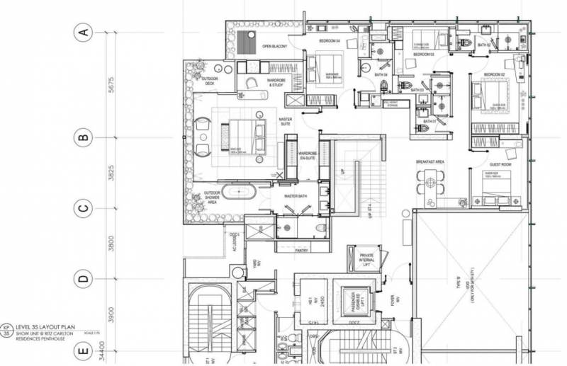
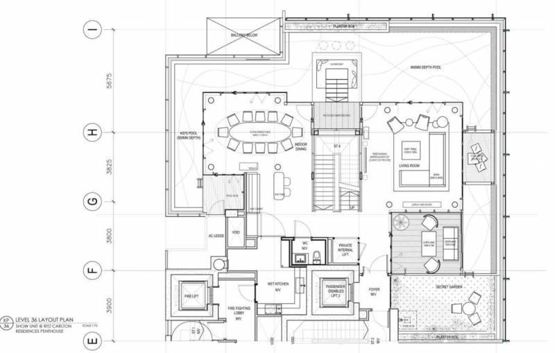
丽思卡尔顿公寓
The Ritz Carlton Residences
平面图




如果觉得我的文章对您有用,请随意打赏。你的支持将鼓励我继续创作!