独家:园上之园,绝版地段!
低调奢装豪宅,现已入市!
结庐在人境,而无车马喧。
问君何能尔,心远地自偏。
采菊东篱下,悠然见南山。
山气日夕佳,飞鸟相与还。
此中有真意,欲辩已忘言。
---晋·陶渊明·《饮酒二十首》
有高度
才低调
陶渊明笔下那种平和淡泊的心境氛围,
只有真正的名仕巨富才能心领神会、视为知己。
Nim Collection公寓,
100米宽的宏茂桥Linear公园贯彻整个社区,
真正的园上之园。

由美国南加州兰乔圣菲(Rancho Santa Fe)建筑风格演绎而来的Nim Collection公寓,不像古典式豪宅那样复刻与张扬,没有任何刻意与炫耀的形式,惟有质朴纯粹、充满手工与时间痕迹的建筑语汇,仿佛在平静中述说一段悠长久远的的历史,一个意味深长的传奇、一种阅尽辉煌的人生。
所谓兰乔圣菲风格,简而言之,是加州早期的西班牙传教士风格。因为加州在属于墨西哥时,首先被西班牙殖民,在殖民早期,最先进入加州的传教士在传教的同时,也把当时西班牙宗教建筑和民居的风格带到了加州。兰乔圣菲风格特点除了保持了西班牙建筑坡屋顶、梯田式房屋及一些典型的符号外,还加入了宗教建筑古朴、宁静的特点。
风云间隙,何妨放下一切,让思想尽情随波逐流。Nim Collection里珍藏着100米宽的宏茂桥Linear公园,它经历著这块土地百年的风雨和阳光,沉淀著醇厚的人文意蕴,就连上方飘渺的空气都充满着时间的味道。生态美学的自然气息,绝非人工的景致可以相提并论。草坡自然延伸,植物自由生长,摇动的青草、飞舞的蝴蝶,大大小小的自然景致,处处流淌著荡漾的情趣。

来自W Architects Pte Ltd的莫玮玮成功将兰乔圣菲建筑风格植入Nim Collection。莫玮玮是本地著名建筑设计师,他参与了新加坡许多具有独特性和开拓性的建筑项目,其中包括Morley Road House和The Oliv公寓等。他还积极参与公共和文化项目,如Lee Kong Chian自然历史博物馆,维多利亚剧院和音乐厅的开创性翻新工作,鉴于他对新加坡建筑行业设计的贡献,政府2007年授予其总统设计奖。
莫玮玮的建筑设计具有一种独特的气质,他总是能够将他对新加坡本地和世界各地建筑风格的理解应用到现代城市建筑设计中。这种设计风格同样体现于Nim Collection中。Nim Collection不仅具有独特的外观,同时还有舒适的居住空间。这些反映了设计师的信念,即形式与功能同样重要。精心制作的空间和细节的微妙,以完美的画卷展现在每位屋主面前。

地王打造的精品
正是价值所在
2018年私宅市场交易如火如荼,但有地住宅交易相对较少。刚刚投入市场的Nim Collection就是为数不多的新有地住宅项目。Nim Collection由万国公司(Bukit Sembawang)发展,位于尼敏路(Nim Road),在宏茂桥5道旁,属于99年地契,共有98个单位。项目交通便利,可连接中央快速公路(CTE)和淡滨尼高速公路(TPE)等,也靠近宏茂桥、杨厝港和万国地铁站。附近的购物中心有Greenwich V、宏茂桥城(AMK Hub)和水滨坊(Waterway Point)等。Nim Collection距离未来的实里达区域中心很近,这里未来将成为东北部商业枢纽。
万国公司成立于1911年,由已故富商李光前和他的李氏家族所掌控。公司原本从事橡胶种植业,在榜鹅路和杨厝港路一带拥有一大片称为万国园的橡胶园地。由于该公司有大片橡胶园,且在其他国家发展橡胶业,当地华人便为它取名“万国”,即“多国”的意思。
1916年,万国拥有的橡胶园面积约5073公顷(约5000万平方米),占新加坡橡胶园面积的26.5%,是新加坡最大园主。1947年,为吸引更多人到万国园,万国公司开始把部分土地卖给村民。到了1950年代,李光前把手头上的橡胶园分阶段改建为有地住宅单位。当时,万国公司拥有的土地约1600万平方米,相当于新加坡土地面积的2.7%。随着政府的征地,加上自身也从橡胶园业转而进行房地产开发,万国公司的土地在1960年代后又继续减少。如今新加坡土地稀缺,如果拥有大片发展土地,便可说是坐拥金山,万国公司拥有超过280万平方米的永久地契或999年地契地皮,当中有四分之三还未发展,它仍是实至名归的新加坡地主之王。
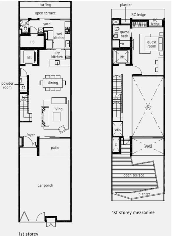
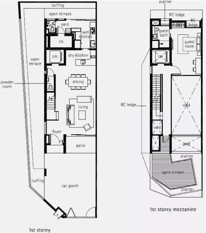
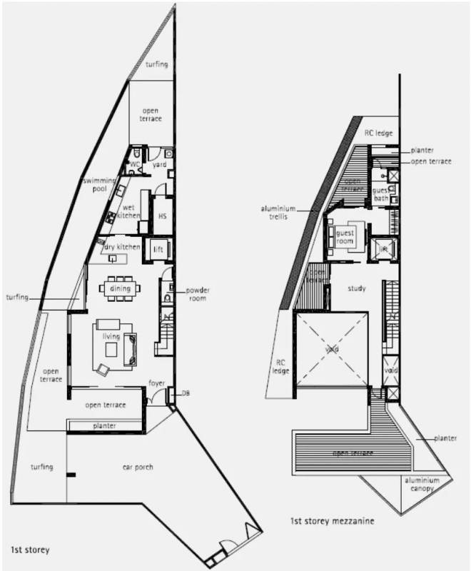
Nim Collection建有中间排屋(Intermediate Terrace)、角头排屋(Corner Terrance)、洋房(Detached)和半独立式洋房(Semi-detached House)四种单位。
Nim Collection代表了新一代有地住宅,为精明和富有的买家提供有别于常规的独特有地住宅设计。Nim Collection每个单位都拥有宽敞客厅和高挑天花板。莫玮玮为Nim Collection的四层和三层露台房屋带来独创性设计,巧妙的将不同的高度、空间、视野、楼层与户外连接,使得自然光线可以照耀到单位的每一个角落,住户可以享受到私密性与公共空间的完美平衡,满足多代人生活在一起的需求。无论是完美的室内设计和高品质的装潢,还是独特的空间几何形状设计,以及多层花园的布置,莫玮玮将实里达(Seletar)地区特色全部融入到了Nim Collection项目中。

宽敞明亮的豪宅,单体入户的私人电梯,自家独享的私人泳池,低调的奢华,正是Nim Collection的价值所在。

无论主人房与儿童房,大空间同样是Nim Collection所重视的。

Nim Collection不仅房间设计优美,价格也同样合理。其中:
1.中间排屋(Intermediate Terrace),套内面积395平方米起,价格276.8万元起

2.角头排屋(Corner Terrance),套内面积390平方米起,价格316.8万元起。


3.半独立式洋房(Semi-detached House),套内面积504平方米起,价格383万元起。

4.独立洋房(Detached),套内面积554平方米起,价格468万元起。



坐拥绿色生态,稳居城市规划前沿
无以伦比的绝版地段
房产的资本增值和租金高回报兼得。Nim Collection项目不仅仅被100米宽的宏茂桥Linear公园贯彻整个社区,屋主同样可以去附近实里达水库(Seletar Reservoir)或榜鹅水道公园(Punggol Waterway Park)享受愉快的休闲时光,这里可以划皮划艇、骑自行车或欣赏美景。显然,世外桃源般的优美环境对别墅类豪宅而言是重要的潜在升值因素之一。
此外,实里达航空园区(Seletar Aerospace Park)就在项目附近,Nim Collection将享受未来Seletar区域中心的所有优势,这里是新加坡第四个区域发展中心。作为生活在新加坡北部和东北部人们的主要商业中心,这里将发展成为一个充满活力的经济集中点。
与实里达地区中心一起蓬勃发展的还有实里达航空园区的第3阶段开发,这里预计将为高端专业人员创造10000个就业机会,为了继续扩大在航空领域的发展,包括欧洲直升机公司,劳斯莱斯集团和ST航空航天等行业巨头已经率先进驻该区域。无疑,Nim Collection将拥有强大的高端租户群体,使得Nim Collection的每位屋主获得极高的租金回报。

甘榜精神的
完美传承
放下名利与地位,忘掉尊贵与虚荣。Nim Collection是原味甘榜精神的延伸,当然也是家的延伸。Nim Collection虽由多重院落组成,但却并不阻碍邻里之间的交流。这里,没有任何金碧辉煌,只有阳光、花草、艺术与健谈的邻居,最适合在风云际会的间隙邂逅知已之士,享受阅尽奢华后的淡泊与闲情。甘榜精神似乎洋溢在Nim Collection的每一寸土地上,对饮一杯茶,清酌一杯酒,一股浓浓的人情味应运而生……
在这里,一切情感建立在人与人亲切交流的基础上,而并非古铜味上。这就是Nim Collection,甘榜精神的完美传承之地,尊贵的您,想加入吗?
如果觉得我的文章对您有用,请随意打赏。你的支持将鼓励我继续创作!