很多人都抱怨说
新加坡的新建的组屋HDB
跟以前比楼层变高了
面积变小了……

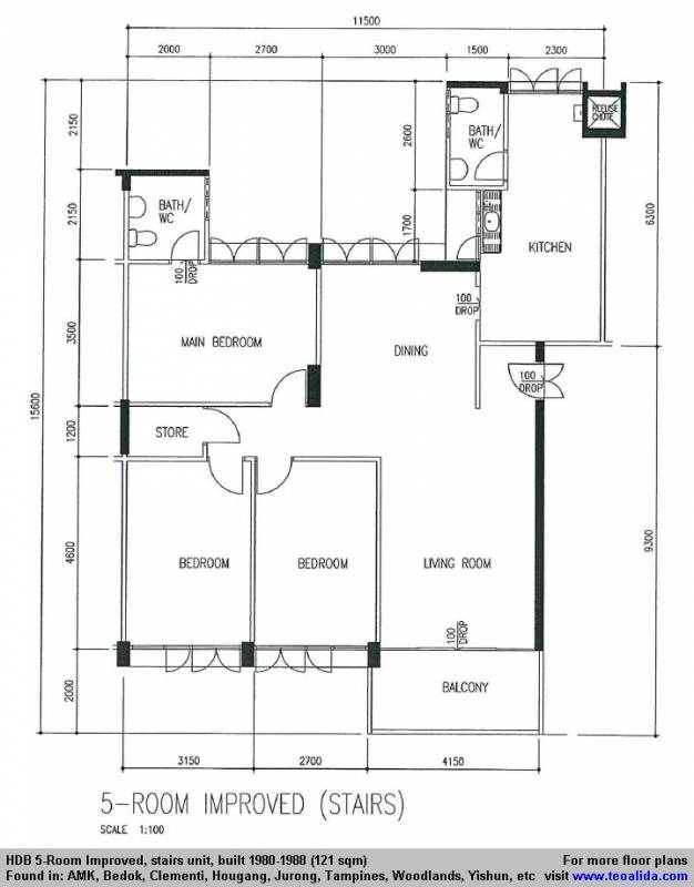
就拿以前的5房式组屋来说
长这个样子
1980-1988年建造的
5-room improved组屋单位
有121平方米
但是到现在最新的组屋申请
五房式已经缩水到
110-113平方米左右

(其实套内面积110平也不小了)
总之跟以前比面积变小了
而且新加坡新组屋的户型
越来越有规律
所以可以根据这些
简单易行的原则来进行装修
让你的组屋瞬间变大

墙面使用浅色
浅色让室内空间显得比较大
深色在墙面上存在感太强
则会让室内显得拥挤

这和人穿衣服是一个道理
深色的显瘦
浅色的显胖

而且一般组屋天花板都是白色
浅色的墙面可以让
墙壁和天花板融为一体


竖条纹装饰
这里又要拿衣服举例了
竖条纹的衣服让人显得瘦高
家里放一些竖条纹的
装饰也能有拉长空间的效果

比如说竖条纹的地毯

或者一面墙用竖条纹的墙纸

深色天花板
这是一个很大胆的建议
一般没有人会把天花板涂颜色

但是在很多设计师的作品中
深色天花板的确
可以创造出纵深

让你有种天花板离得比较远
家里的层高比较高的错觉

利用大镜子
镜子是个好东西
不但可以用来检查仪容
在装修上也大有可为

一整面墙的镜子
可以把房间空间放大一倍
如果觉得白色镜子太刺眼
也可以选择灰色或者
其他较为黯淡颜色的镜子
在光线不佳的角落里
也可以利用镜子装饰
靠反射带来一些光亮和层次


精简装饰品
很多人喜欢在墙面上挂很多照片
或者好几幅画
看起来比较杂乱
其实效果比不上挂一副稍大
但是有存在感的画

装饰品也是同理
预期在家具上摆满各种小玩意
不如尝试只放一两样吸引人的装饰
让整个房间显得简洁
空间自然就显大了

分散而充足的光源
大家逛宜家的时候
有没有发现
同样面积的宜家样板房
为什么看起来比较大比较温馨

其实秘诀就在于照明
样板房里面的除了天花板的顶灯
一定会有台灯或者地灯
有时候还有壁灯和装饰小灯

当光源超过3个的时候
整个房间没有黑暗角落
空间显得明亮而且有层次
善用单色调
另一个房间显大的
装饰秘诀是使用单一色调
颜色太多的后果就是
视觉上杂乱
眼睛不知道放哪里

无论是硬装或者软装
都应该注意房间配色
最好不要超过3种

和精简装饰品的道理一样
这个时候“少即是多”

留出空间
这里特指家具和地板之间
选择带腿的家具
特别是细腿家具
家具和地板之间的空间
会让整个房间显得更通透
仿佛会呼吸一样
进而显得面积比较大

所以可以多留些预算
投资在好的家具上面

让自然光进来
这是一条绝对免费的贴士

大家都知道同样面积的房间
大窗户和小窗户的
视觉效果差很大
大窗户的房间显得大多了
既然我们没办法改变窗户大小
那就多采用窗帘和百叶窗
减少对窗户的遮挡

让更多光线进来
整个房间的空间比较明亮
室外风景也让房间面积显得更大

使用多功能家具
多功能家具有一石二鸟的效果
在减少家具数量的同时
也能兼顾功能,两不误

例如我们可以选择
收纳型的茶几
减少客厅的收纳柜
在不长住人的客房里
选择使用沙发床
平时是个不占地方的小沙发
来人了也可以打开睡
这里的人力成本很高
在新加坡装修要花多少钱?
据有关机构统计
新加坡平均装修费为
51000新币
不同的房屋类型
不同的房屋构造
不同的装修公司
装修花费也不尽相同
一套4室的组屋(90平米左右)
装修价格在4.88万新至11万新
平均装修价格为5.3万新
这还只是平均花费
房型、面积、新旧程度、风格
都让这笔开销变得不确定

资料来源:www.99.co
装修成本怎么算
新加坡装修房子的成本
大致包括材料费用+人工
和中国不一样
新加坡的人工非常高
要占到总成本的60-70%
所以在设计上走极简风
善用上面十个小贴士
能让你的房子变得大方美观
最重要的是可以省钱~

如果觉得我的文章对您有用,请随意打赏。你的支持将鼓励我继续创作!