此项目位于公共私人混合的高层住宅区内,旨在展示高居住密度的公寓也可以十分舒适。社区生活的丰富性和可持续性也是设计的主题。此项目全部的公共区域都面对公众开放。设计的革新点在于公共空间,外部区域和共享空间交织在一起在成群的塔楼中穿拆错落的出现,从地面层到顶层中穿梭自如。


公共外部区域和共享空间交织在一起在成群的塔楼中穿拆错落的出现
此天空之城包含80个公寓,每一户公寓都可共享带有遮挡的社区露台花园。其目的是促进居民的互动交流,使之成为日常生活的一部分。每个居民都可以从电梯到家门口的这段路上穿过或俯瞰花园以问候自己的邻居,或是和邻居在这里闲聊,小孩子们也可以把这里当做玩耍的游乐场。

建筑夜景



每一户公寓都可共享带有遮挡的社区露台花园

每个居民都可以从电梯到家门口的这段路上穿过或俯瞰花园
高层中的共享阳台 – 外部区域和共享空间交织在一起在成群的塔楼中穿拆错落的出现
其余的社区空间有沿着线性公共花园的广场,花园两侧是鳞次栉比的超市、咖啡店、小商店和儿童设施。社区公共客厅是一个双层阳台空间,其使用位于地面层,坐在客厅中可以俯瞰公园的景观。婚葬礼堂,健身娱乐中心,草坪和一些小场地沿着一个150米长的沼泽池排列。屋顶天空花园24小时开放,光伏阵列的亭子下方有一条400米长的慢跑道。



沿着线性公共花园的广场,花园两侧是鳞次栉比的超市、咖啡店、小商店和儿童设施


社区公共客厅是一个双层阳台空间,其使用位于地面层,坐在客厅中可以俯瞰公园的景观

亭子

24小时开放的屋顶天空花园
场地的历史也表达了在这栋如艺术品的建筑中。一名当地艺术家曾记录了该社区的变化特点,这件绘画作品呈现在了建筑的预制墙上。建筑运用蓝色玻璃的设计元素,让人们回想起福建方言中的“Lam Po Lay”,意为蓝色玻璃区,是老一代公共住宅使用蓝色窗户的区域。参天的老雨树被保留下来与景观有机结合。


记录了该社区的变化特点的绘画作品呈现在了建筑的预制墙上
建筑包含了不同尺寸的3种公寓户型。无柱无梁的空间使平面布置灵活多变,减少了空间浪费,并可适应多种家庭需求和不同的生活方式,如家庭办公或是阁楼客厅。也为未来的多样化发展提供了必要条件。

建筑内部

开放,通风的设计使所有公寓都有着极佳的自然通风,建筑包含多种多样的布局,光影颜色也变化多端
作为新加坡最高的第一栋公共住宅,建筑获得了白金绿色标志,其采用了被动式的设计策略,自然光照亮了大厅,台阶和入口步道,自然通风也穿堂而过。开放,通风的设计使所有公寓都有着极佳的自然通风,且大部分公寓都不用安装空调。屋顶上配备有光伏发电系统。该建筑完全采用预浇制和预构建的建造方式,减少了浪费,避免了错误。该设计通过重新布置各个单元,创造了多种多样的布局,光影颜色也变化多端。
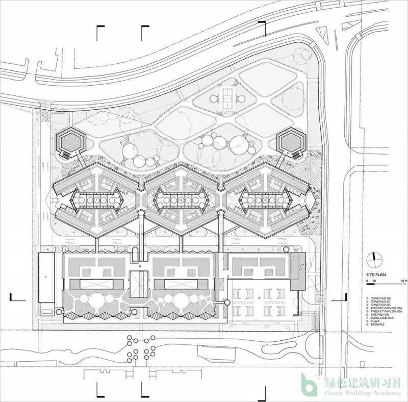
总平面




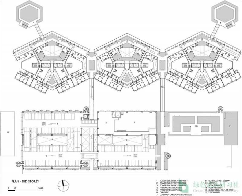
平面图

剖面图


立面图
如果觉得我的文章对您有用,请随意打赏。你的支持将鼓励我继续创作!