
项目亮点:
(1) 靠近名校St AndrewSchool,小学在一公里内,男孩家长们的福音
(2) 靠近美国史丹福国际学校/ StamfordInternational School
(3) 新加坡著名发展商华业集团UOL打造项目
(4) 约8分钟步行到波东巴西地铁站,地铁站新开商场The Poiz Centre
(5) 丰富的公寓配套设施和绿化率高
(6) 享受漂亮的河景或者游泳池景观
项目基本信息:
地理位置
波东巴西1道/ Potong Pasir Ave 1
土地面积
约18710平方米
总单位
729套
楼层
3栋20层,2 栋19层,4栋7层
地契
99年
最近地铁:
波东巴西地铁站/Potong Pasir MRT
预计交房日期
2022年8月
新年优惠,只限到2月底:
价格直降抽中的红包数目,从3888-12888不等,包抽中,最少3888,下面列出的单位,价格可以降红包数额的双倍

地理位置,项目位于新加坡中部第13邮区,波东巴西一带,离地铁站约580米距离,步行约8分钟就可到达波东巴西地铁站。由于地处新加坡中部,方便上PIE和CTE高速公路,所以方便到达全岛各处,驾车前往新加坡市中心乌节路只需12分钟,到中央商业区约13分钟。

丰富的教育资源,项目周围就有ST Andrew小学,ST Andrew中学和ST Andrew初级学院,小学到高中全部搞定,还有四德小学,四德女子中学,海星小学,海星中学。国际学校这块,附近有美国史丹福国际学校,2站地铁的罗龙泉地铁站有澳洲国际学校,全面满足您小孩教育这块的需求。

漂亮的园林规划,游泳池区有像“度假村”似的设计,不出家门,就可享受度假式体验。建筑师打造以多种绿色植物包裹小区,整个建筑外围都有很多绿色植物包裹(参考下面图片)。
空中花园有不同品种的花草树木,部分单位前厅区有自带绿色植物区,从建筑的图片可以看出,整个建筑物都被不同花草植物包裹着,让您忙碌一天工作后回到家时彻底放松下来,好让您好好休息.

智能家居系统,每户单位安装智能电子锁,智能遥控空调,可以到家之前通过手机应用程序打开空调,让您回家就感觉房子凉爽,可以通过手机预订公寓设施,智能自行车上锁和自行车租赁等。

发展商良好的记录,华业集团UOL有个完整的项目开发记录,品质保证,让您买得放心。最近几年开发的项目如The Clement Canopy, Archipelago, Thomson Three,豪宅项目如乌节路一带的Nassim Park Residence等。

漂亮图片大放送:






户型和价格介绍:
一室一厅户型,适合单身或年轻情侣,面积为47平方米,价格为72.8万新币起

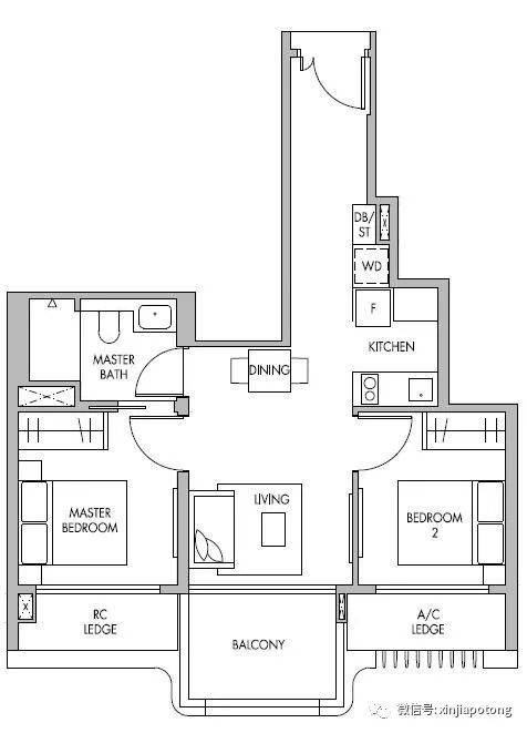
两室一厅户型,面积为57平方米,河景和游泳池朝向,厕所居然带窗口,厨房安装一扇门就可以改为封闭式,价格98万新币起

三室一厅标准型,面积为94平方米,无保姆房,河景朝向,价格153.8万新币起

三室一厅豪华型,面积为98平方米,南北通透实用房型,厨房后面带小阳台,价格159.2万新币起

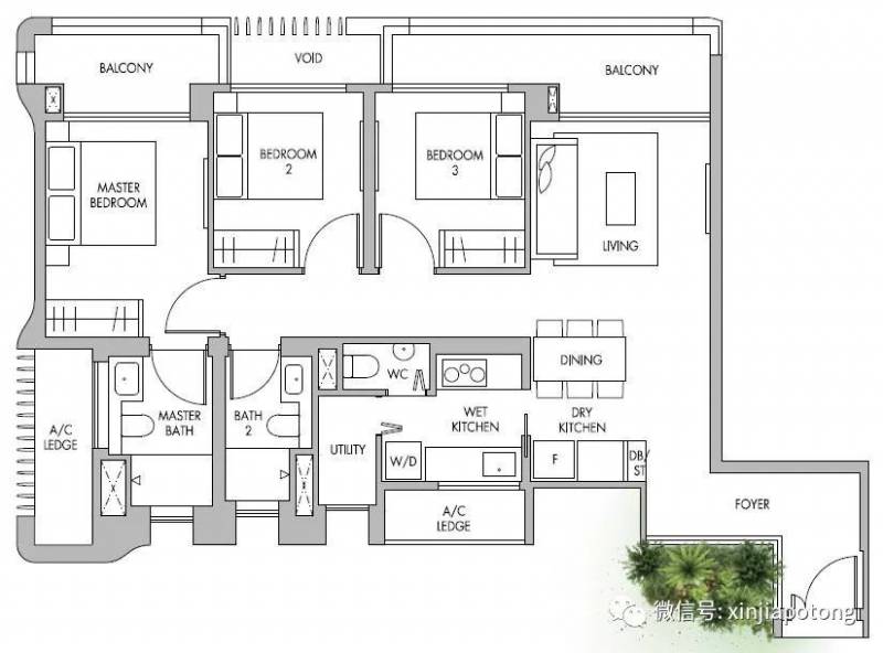
三室一厅豪华型,面积为103平方米,带保姆房,双阳台(客厅和主卧室),河景和游泳池朝向,价格169万新币起
三室一厅豪华型,面积为102平方米,带保姆房,大阳台,河景和游泳池朝向,价格165.6万新币起

四室一厅豪华型,面积为128平方米,带保姆房,双阳台(客厅和主卧室),河景和游泳池朝向,价格215.4万新币起

样板房图片:


作者个人简历:
2002年拿新加坡政府奖学金来新加坡深造,已经定居新加坡15年多,熟悉中国和新加坡的国情,现任职于新加坡股票交易所SGX上市企业,新加坡最大的地产公司之一ERA地产公司担任高级营销总监,从事房屋经纪行业8年多,已经完成数百宗房地产交易,成交的房屋价值高达新币上亿元,服务过数百位中高档客户,广受客户们好评。包括企业家,企业高管,中小型公司老板,房地产发展商,新移民,教授,医生等等。
熟悉私人公寓,商业地产,组屋的交易流程,全面了解房屋贷款,协助顾客办理好贷款,律师办理房产相关手续等,提供新加坡任何公寓楼盘和商业地产买卖投资服务,买私宅无任何经纪费用。
感谢各位客户朋友的支持,本人在公司多次获得顶级销售奖,提供诚意十足,细心周到的为客户服务,所以收到客户们的广泛好评,服务好任何客户是我的最重要原则,欢迎买家或卖家联系我。
微信号:297264931 电话:65-91525858

发帖时间: 新加坡通
如果觉得我的文章对您有用,请随意打赏。你的支持将鼓励我继续创作!