听说这是新加坡首例公寓设计?
一个连接三座住宅大楼的顶层休闲区,设有慢跑道?
她在哪里?

位于东海岸的永久地契新项目安珀苑(Amber Park)正式开盘对公众销售。安珀苑由城市发展(CDL)和丰地产(Hong Realty)携手发展。发展商早前以9亿零670万元标得安珀园,比预示价高出近20%,当时刷新永久地契房地产集体出售价格纪录。城市发展也是旧安珀苑的发展商。该地段土地面积约19850平方米,容积率为2.8,是属于永久地契。
广告
欧洲学术出版业巨头爱思唯尔(Elsevier)的《健康与居住地》杂志(Health & Place)刊登过这样一篇研究---住在海岸附近可以给人们带来额外的好处,让身体更健康。

一项新的研究分析了英格兰超过4800万人的信息,住得越靠近海岸的人们,在过去的一年中身体健康状况越良好。此项调研,研究人员已经考虑了其它可能存在的健康因素,如年龄、性别、社会经济地位以及他们居住的附近是否有公园或其他绿地。
在离海岸半英里(约0.8千米)内的地方,报告自己身体健康状况良好的人数,比居住在离海岸30英里(约48.3千米)以外的高出了1%。即使这是很小的影响,但当扩大到整个人口基数时,将对公众健康起到重大的影响。
广告
“亲近海洋可能对我们的身体产生了一些影响”,“海洋的气味和海浪的声音是很美妙的补品。” 安珀苑(Amber Park),就是给您提供补品的金色圣杯!

安珀苑位于第15区的东海岸区(East Coast),是属于新加坡的东区。项目的地段是在安珀路(Amber Road)和安珀花园(Amber Gardens)的中间。安珀苑的位置靠近东海岸公园,几分钟车程可抵达市区和机场,还有正在建设的地铁线和未来的发展,项目的地段有丰富的文化遗产和许多餐饮设施,地点十分优越。
项目包括3栋21层高的建筑(22层为空中花园)。安珀苑有一个连接三座住宅大楼的顶层休闲区,设有慢跑道,为新加坡本地首见。安珀苑总地段面积约19850平方米,住宅大楼仅占35%,其余作为设施与园景之用。
广告
安珀苑位置优越:
在休闲购物方面
安珀苑附近名校林立
安珀苑的绿化设计令人赏心悦目
安珀苑的配套设施极其完善,亭台楼阁、游泳池、戏水池、烧烤台、儿童乐园、森林小径等设施一应俱全,屋顶的运动跑道设计更是新加坡首列,可谓天工开物,别具特色。
安珀苑的单位设计同样匠心独具
共有592套私宅单位,拥有的户型包括
114个一卧加书房单位,
82个两卧房单位,
120个两卧加书房单位,
101个三卧房单位,
74个四卧房单位,
57个四卧加书房单位,
40个五卧房单位和4个阁楼单位。
单位面积介于43平方米至474平方米。其中:
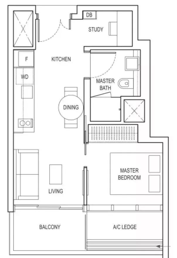
01
一卧室加书房单位
室内面积43平方米/ 463平方尺,价格110万新币起
广告
02
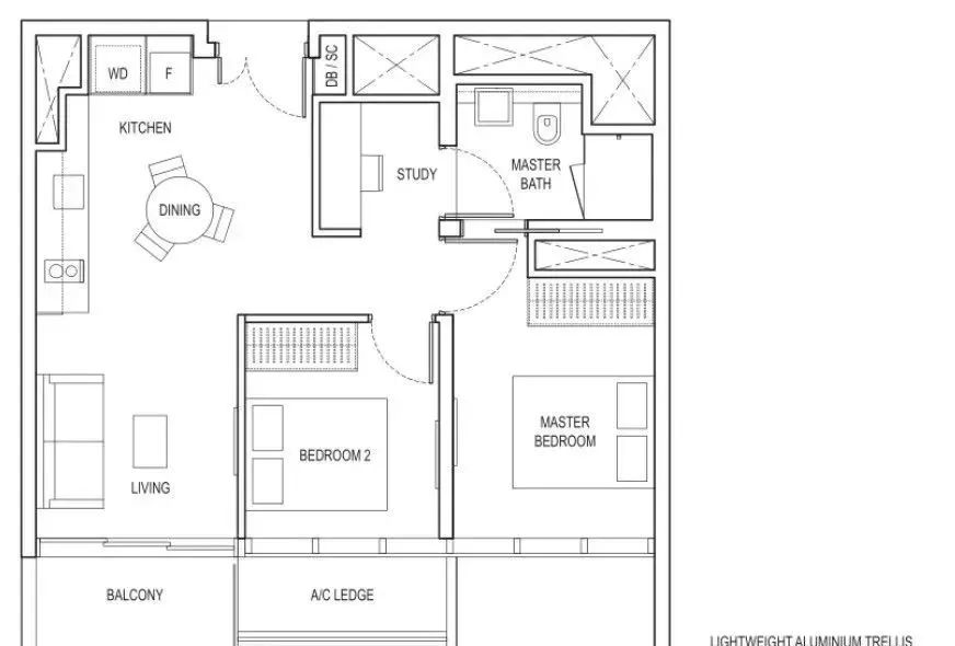
两卧室单位
室内面积65平方米/ 700平方尺,价格163万新币起

03
两卧室加学习室单位
室内面积63平方米/ 678平方尺,价格165万新币起

04
三卧室单位
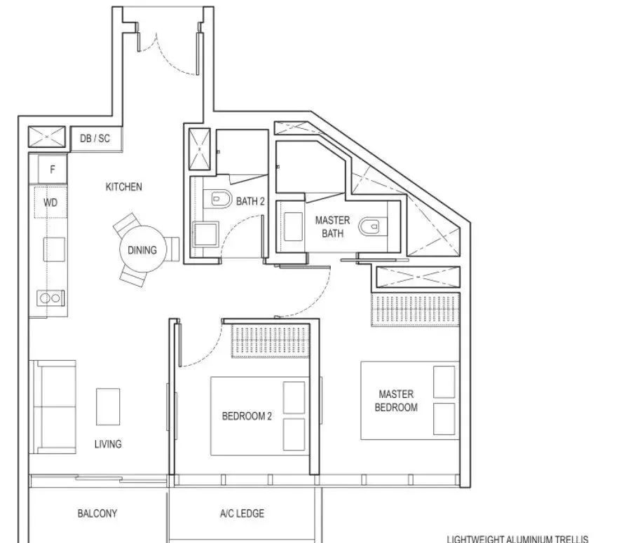
室内面积88平方米/ 947平方尺,价格220万新币起

05
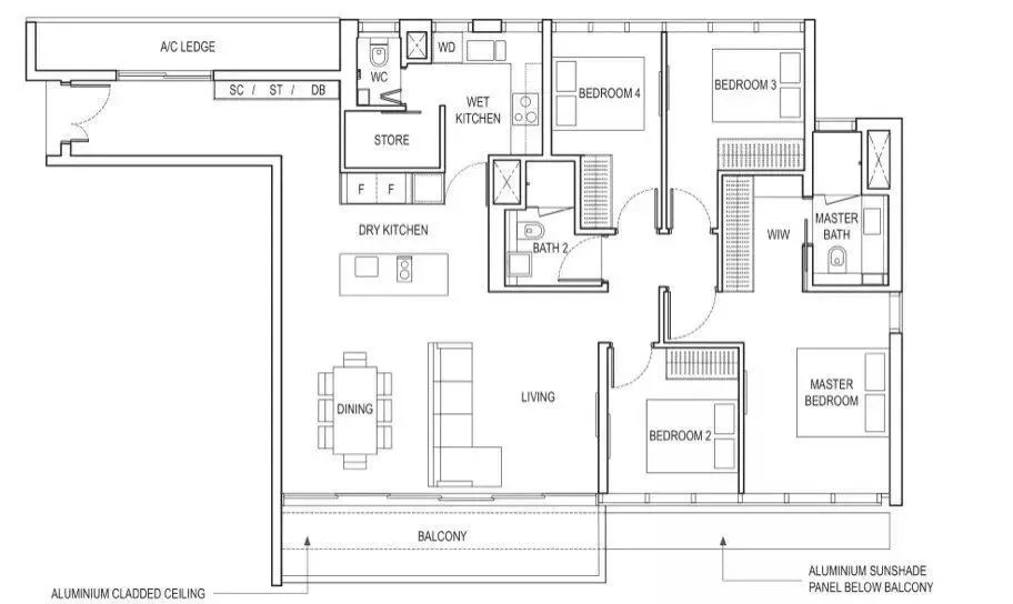
四卧室单位
室内面积146平方米/ 1572平方尺,价格360万新币起
广告
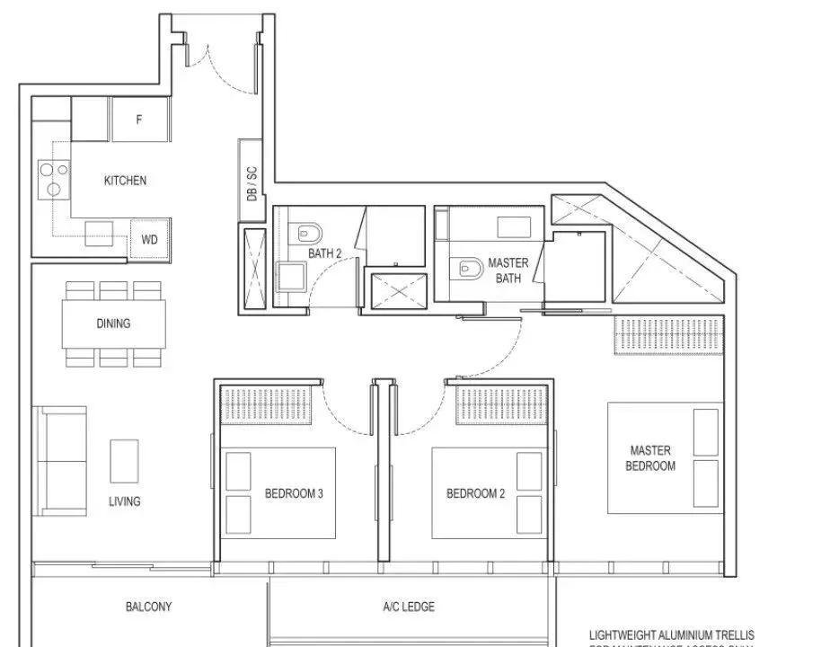
06
五卧室单位
室内面积190平方米/ 2045平方尺,价格500万新币起

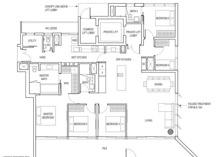
07
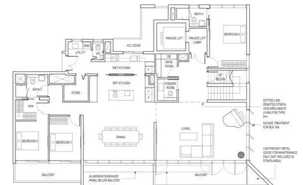
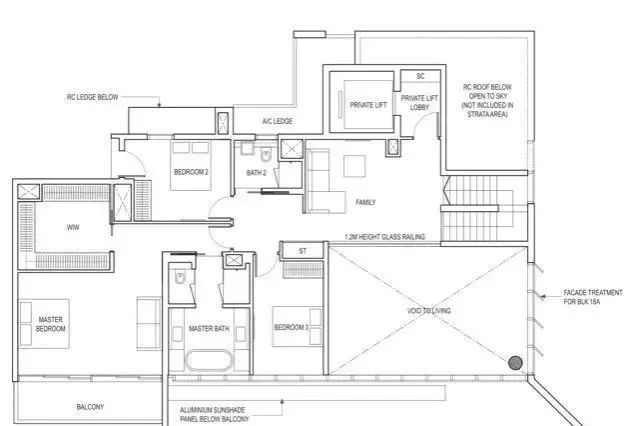
六卧室单位(penthouse)
室内面积408平方米/ 4392平方尺,价格待公布。
(附图为楼下和楼上)


小 结
新加坡国立大学发布的整体房地产价格指数(NUS SRPI)显示,3月份的非有地私宅整体转售价格指数为152.6,环比起0.1%;2月则跌0.4%。新加坡非有地私宅整体转售价格扭转六个月的跌势,在上个月转而上扬。
广告如今房价已经逆势上扬,安珀苑这类永久地契、高配海景豪宅价格势必持续走高,无论是欣然入住还是理财投资,现在入手一套安珀苑公寓正是绝佳时机!
相信睿智的您一定不会错过
这个千载难逢的好机会
如果觉得我的文章对您有用,请随意打赏。你的支持将鼓励我继续创作!