RV Altitude私人公寓位于新加坡第D09邮区,里峇峇利(River Valley)344号。该公寓位于核心中央区的黄金地段,一向是富人名人的首选居住地之一。
RV Altitude公寓占地约2,675平方米(28,793平方尺),拥有永久地契。公寓由著名发展商乐斯太平洋控股(Roxy-Pacific Holdings)旗下的子公司RH Capital Two Pte Ltd开发。
RV Altitude公寓将建造1栋21层楼高建筑,提供100个两卧房单位和40个两卧房双钥匙单位,合140个单元,面积介于441-635平方尺(41-59平方米)。
该公寓距离索美塞地铁站(Somerset MRT)约600米,走路6分钟抵达,距离将在2021年开通的汤申-东海岸线的大世界地铁站(Great World MRT)只有400米。
公寓四周教育资源丰富,1公里范围内的名校有立化小学等。住户只需步行约4分钟就可以抵达世界城(Great World City),居民也可以步行到新加坡最大的购物区,乌节路购物天堂;公寓也靠近熟食中心如锡安路熟食中心(Zion Road Food Centre))等,是购物、休闲、美食的好去处。
RV Altitude公寓
高瞻远瞩、放眼世界、匠心独具、
地秀天成,品牌云集、高端豪华。
引 言
新加坡D09邮区位于新加坡中部,包括经禧、乌节、里峇峇利、基里尼、欧思礼等路段。里峇峇利(River Valley)区位于核心中央区,地处乌节林荫道以北,新加坡河以南,自1830年代起一直是不少欧洲及中国商人所喜爱的区域,是新加坡名人富人聚集的地方。
新加坡名人陈金声于1824年在新加坡创办金声公司;1844年,与陈笃生合作创办陈笃生医院。陈金声还独资建造新加坡河的金声桥,铺设金声路。新加坡当时的政府为表彰这位华社领袖的杰出贡献建造了陈金声喷泉塔。陈金声先生的孙儿陈若锦的大宅Panglima Prang于1982年拆卸之前,曾是新加坡留存最久的住屋,现址为永安苑(Yong An Park),距离里峇峇利大约1公里。而里峇峇利距离福康宁山大约1公里。
有一个传说,从前,新加坡发生了有史以来最严重的大旱灾,原因并不是老天爷不下雨,而是雨水被一只巨兽吸干了。这只巨兽居住在福康宁山,山上住了一位百多岁的智慧老人,他帮助山下的一位英勇无比、胆识过人的年轻人阿旺最终除掉了这只怪兽,而怪兽的头就位于里峇峇利。如今的新加坡风调雨顺、国泰民安,不但拥有高效率而廉洁的政府、世界一流的医疗教育体系,还是最宜居的城市之一,吸引了来自世界各地的人士来新加坡旅游、学习和定居。
这里为您介绍位于里峇峇利高档住宅区的一栋永久地契公寓RV Altitude,让感兴趣的朋友只需新币S$131万即可享受超级富豪待遇。
豪 宅 概 况
RV Altitude私人公寓位于新加坡第D09邮区的里峇峇利(River Valley)。该公寓距离索美塞地铁站(Somerset MRT)约600米,走路6分钟抵达,距离将在2021年开通的汤申-东海岸线的大世界地铁站(Great World MRT)只有400米。
公寓四周教育资源丰富,1公里范围内就有小学名校立化小学(River Valley Primary School)。住户只需步行约4分钟就可以到达集店面、国际餐馆、电影院、食阁以及超市的世界城(Great World City),居民也可以步行到新加坡最大的购物区,乌节路购物天堂。公寓也靠近熟食中心如锡安路熟食中心(Zion Road Food Centre))等,是休闲、娱乐和享用美食的好去处。
RV Altitude公寓由著名发展商新加坡乐斯太平洋控股(Roxy-Pacific Holdings)旗下的子公司RH Capital Two Pte Ltd开发,该公寓拥有永久地契,占地约2,675平方米(28,793平方尺),将建造1栋21层楼高建筑,提供100个两卧房单位和40个两卧房双钥匙单位,合140个单元,面积介于441-635平方尺(41-59平方米)。

RV Altitude公寓的效果图
豪 宅 精 华
位于黄金核心中央区,价值连城;
与富豪为伍,与日月同心,守相爱,见真情,美丽永恒;
永久地契新楼盘,钻石般永恒发光;
由著名发展商开发,有信誉和质量保障;
几分钟步行至美塞地铁站(Somerset MRT)和未来的大世界地铁站(Great World MRT);
周边购物娱乐设施齐全,美食唾手可得;
名校林立,教育资源丰富;
位于新加坡河畔,畅想历史,享受良宵;
双钥匙单元,自住出租两不误;
智能家居可根据居民需求自我提升。

RV Altitude公寓的游泳池
豪 宅 位 置
RV Altitude位于第D09邮区核心中央区的里峇峇利(River Valley)路344号。该项目就在The Verv @ RV(The Verv @ RV公寓)和威尔马楼(Wilmer House)的中间,对面就是历史悠久的永安苑(Yong An Park)。
从该公寓只需步行6分钟就能抵达美塞地铁站(Somerset MRT,600米)和未来的大世界地铁站(Great World MRT,400米)。大世界地铁站可直接连接到未来新柔快铁(Johor Bahru–Singapore Rapid Transit System)新加坡总站的兀兰北地铁站(Woodlands North MRT)。
驾车人士只需几分钟就可以到达乌节路(Orchard Road),10分钟车程前往中央商业区(CBD),也仅通过附近的中央高速公路(CTE),抵达全岛各地。附近200米范围内还有多趟巴士供乘坐,如32、54、139、195、NR6和NR7等。

RV Altitude公寓位于第D09邮区,地理位置优越
RV Altitude公寓附近也是美食、购物和娱乐的理想场所。
如步行几分钟即可抵达世界城(Great World City),这里有许多零售店面、国际餐馆、电影院、食阁以及超市等。
居民也可以步行到新加坡最大的购物区,乌节路购物天堂,如Cathay Cineleisure Orchard(600米)、Ngee Ann City(700米)、[email protected] (700米)、Mandarin Gallery(700米)、Orchard Shopping Centre(700米)、Orchard Gateway(700米)、Orchard Central(800米)等,感受时尚、享受名牌、满足您的购买欲。
公寓附近也有许多聚集本地美食的熟食中心如锡安路熟食中心(Zion Road Food Centre)和惹兰固哥大牌1号熟食中心(Blk 1 Jalan Kukoh Food Centre)等,让您流连忘返。

优 质 教 育
RV Altitude公寓四周教育资源丰富,是一个地道的学区房。
公寓附近1公里范围内的幼儿园就有5家。
一公里范围内的小学有名校立化小学(River Valley Primary School),较远一点名校还有英华小学(Anglo Chinese Junior School)等。
附近的中学有莱佛士女子中学(Raffles Girls’ Secondary School等。杜克-新加坡国立大学医学院(Duke-NUS Graduate Medical School Singapore)、南洋艺术学院(Nanyang Academy of Fine Arts)和新加坡管理大学(Singapore Management University)也在附近。
这样,附近的教育资源可为各年龄层的公寓居民提供幼儿园、小学、中学和大学等全方位的服务,解决您的后顾之忧。
RV Altitude公寓1公里范围内的名校立化小学
豪 宅 特 色
RV Altitude公寓,顾名思义就是河谷高地。豪宅拥有在新加坡属罕见的海拔高度和一个宁静的避风港。居住在这个独一无二的豪宅,您将饱览一个全新的视野,感觉真正的盛世和奢侈生活,永久产权让这样的生活得以永恒。

RV Altitude公寓的入口
RV Altitude坐落在众多豪宅的城市中心地带,矗立在河流与山谷之中,设计师依此自然地貌设计,让豪宅坐落在山高风清的景观之中。豪宅郁郁葱葱,被精心挑选的松树及各类花草树木簇拥,水声涔涔,甚是仙境。豪宅楼高21层,为城市天际线增添了美感,享受更新鲜的空气和迷人的日出日落。
豪宅设计天成,又匠心独具,让您的每一寸土地绽放光彩。您可以徜徉在灵活舒适的空间,尽情享受将书房转变为卧室的特权和乐趣,休息的地方也可以让您高枕无忧,您可以将您喜爱的地方整齐地存放在良好的储物空间或衣柜中,与您的优雅生活空间完美融合。

RV Altitude公寓的餐厅一角

RV Altitude公寓一角


RV Altitude公寓的餐厅和厨房
公寓建造注重质量和空间设计,采用品牌产品,并建造多达29类便利设施,如游泳池、水上健身区、空中健身区、烧烤亭、室内健身房等,分布于一楼、二楼和顶楼,满足不同年龄层公寓居民的各种需求。
豪宅由乐斯太平洋控股(Roxy-Pacific Holdings)旗下的子公司RH Capital Two Pte Ltd开发。该公司在亚太地区的业绩可追溯至1967年,是一家老牌公司,于2008年3月12日起在新交所主板上市。该集团主要从事住宅及商业物业的开发及销售。自2013年以来,房地产开发、房地产投资和酒店所有权三大主要业务已扩展到新加坡以外的国家,如马来西亚,澳大利亚,泰国,日本和马尔代夫等,是一家值得信赖的开发商,有质量保障。

RV Altitude公寓的洗手间

RV Altitude公寓的主卧室
RV Altitude公寓的普通房
智 能 家 居
在这个工作生活越来越智能化的年代,豪宅的设计自然离不开智能家居的无缝整合。在RV Altitude,每个单元都配备先进的网关系统,具有平移和倾斜摄像头,具有运动检测、夜视、视频录制、双向音频功能和警报通知系统,每一位居民都可安全、舒适地控制您的家。值得一提的是,豪宅配备的系统还可以依据您的个体化需求扩展、升级,以满足不同住户对居家智能系统的不同需求。

RV Altitude公寓的智能家居
投 资 潜 能
无论您购买的公寓是自住还是出租,房产的升值潜力是购房者重点关心的问题之一。升值潜能是受多方因素影响的,包括房产的地点、地契类型、出租回报率等。RV Altitude公寓位于第D09邮区的黄金地段,历史成交价表明,该地段的升值潜能比其它邮区的总体平均来得高。如2003年,新加坡私宅的平均尺价约为S$550,D09邮区的平均尺价约为S$750。到了2018年,总体均价上升至约S$1450,上升164%;而D09邮区的平均尺价已上升到约为S$2430,上升224%,明显高于平均。RV Altitude公寓拥有永久地契,历史成交价表明,永久地契的公寓比99年地契公寓价格波动更小,投资收益更稳定。
我们再来分析一下5栋可比较公寓的成交价。这5栋公寓分别是8 Hullet、8 Saint Thomas、One Draycott、Martin Modern和RV Altitude。这5栋公寓均位于第D09邮区,它们均为期房。除了Martin Modern为99地契,其余均为永久地契。Martin Modern公寓距离地铁站比RV Altitude公寓远100至200米,地理位置比RV Altitude逊色,销售尺价较低。其余3栋公寓8 Hullet、8 Saint Thomas和One Draycott的平均尺价均已超过新币S$3000。相对而言,目前RV Altitude的平均尺价为新币S$2900,从这方面看,预计RV Altitude公寓的升值潜能将可能更大。另外,RV Altitude公寓私宅名校林立,有紧靠地铁站和购物中心,出租回报率可望达到较高水平,进而提升该项目的投资潜力。
雅 居 欣 赏
RV Altitude公寓属中小型项目,提供140套单元,让居民享用低密度居住环境而又拥有相对齐全的配套设施。公寓提供100套2卧室及40套2卧室双钥匙单元。
舒适二卧室(Cosy),套内面积41平方米(441平方尺),整套售价从S$1,310,000元起。
特点是户型方方正正,两个房间均可放置双人床。采用开放式厨房,无浪费空间,厨房与餐厅共享空间,客厅配备阳台。这样的户型非常适合夫妻情侣享受二人世界或有一个孩子的家庭,以及专业人士和学生。除了自住,也适合出租给高端专业人士。

RV Altitude公寓的舒适二卧室平面结构图
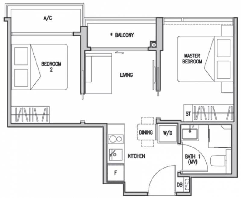
高级二卧室(Premium),套内面积53平方米(570平方尺)至58平方米(624平方尺),整套售价从S$1,540,000元起。
特点也是户型方方正正,布局合理,两个房间均可放置双人床。采用开放式厨房,无浪费空间,客厅与餐厅共享空间,客厅与普通房配备阳台。这样的户型非常适合夫妻情侣享受二人世界或有一个孩子的家庭,以及专业人士和学生,或出租给相应的高端专业人士。

RV Altitude公寓的高级二卧室平面结构图
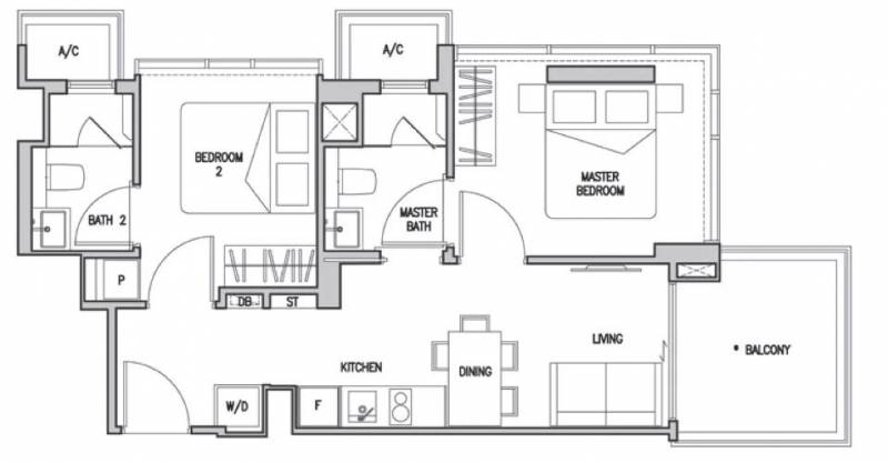
双钥匙二卧室,套内面积58平方米(624平方尺)至59平方米(635平方尺),整套售价从S$1,750,000元起。
此双钥匙套房由一套一室一厅和一套一卧房+独立卫生间组成。由共享大门进入后独立进入各自的套间。特点也是户型方方正正,布局合理,两个房间均可放置双人床。采用开放式厨房,无浪费空间,客厅与餐厅共享空间,客厅配备阳台。这样的户型非常适合夫妻情侣享受二人世界的同时出租一间套间,也适合夫妻情侣与父母同住。

RV Altitude公寓的双钥匙二卧室平面结构图
小 结
RV Altitude公寓,意即河谷高地,
在较高海拔处的一个宁静避风港。
这座永久地契的豪宅
坐落在城市中心地带,矗立在河流与山谷之中,
郁郁葱葱,水声涔涔,甚是仙境。
豪宅设计天成,又匠心独具,
让您的每一寸土地绽放光彩。
您可以徜徉在灵活舒适的空间,
尽情享受大自然的美景。
公寓建造注重质量和空间设计,
采用品牌产品,并建造多达29类便利设施,
如游泳池、水上健身区、空中健身区、
烧烤亭、室内健身房等,
满足不同年龄层公寓居民的各种需求。
公寓居住密度适中,还拥有双钥匙单元。
同时,公寓也采用先进的智能家居系统,
让您的生活数码化、智能化、便利化,
并可根据居民的具体需求作不同类型的升级。
公寓拥有永久地契,交通极为方便、
四周教育资源丰富,增值潜能大。
该公寓与其它可比项目相比,价位也明显较低,
进而有进一步升值的较大潜能。
朋友们,目前正值新加坡房产价位的低谷期,
果断拿起手中电话,联系我们,
享受VIP级专业咨询与服务,
购买称心如意的新家。
如果觉得我的文章对您有用,请随意打赏。你的支持将鼓励我继续创作!