
简介:
RV Altitude是一个永久产权的公寓,位于344 River Valley Rd, S238385,由RH Capital Two Pte开发。RV Altitude包括1栋21层楼共140个住宅单位。它将于2022年竣工。
点击这里,查看地图

新加坡邮区分布图:

概况:
楼盘名称:RV Altitude
开发商:RH Capital Two Pte
产权:永久
完成年份:2022年
单位数量:140
楼层数量:21
起始总价:新币 S$ 1,310,000起



卖点:
RV Altitude公寓地理位置优越,交通便利,靠近313地铁站,并临近River Valley Road,无论搭乘地铁还是驾车出行都能够带来便利。
RV Altitude公寓附近有购物中心和超市,如[email protected],乌节路购物中心等,为居民提供各种便利设施,如杂货店和零售商店,银行,餐馆等。
2公里以内学校:
Gan Eng Seng School
Raffles Girls' School (Secondary)
Outram Secondary School


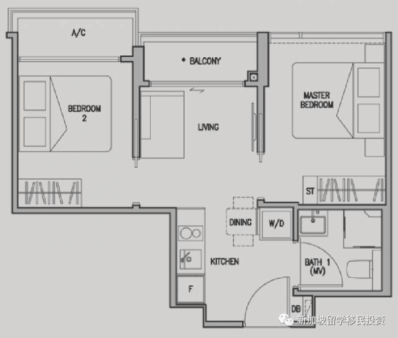
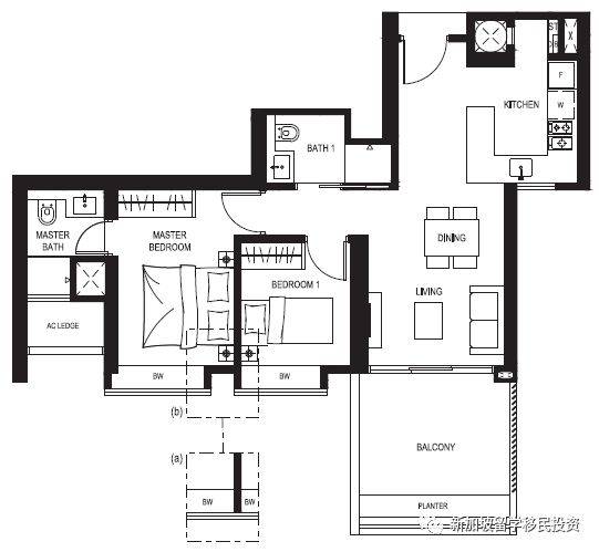
主力户型:

A户型 2室 441平方英尺 / 41平方米
新币S$1,310,000起

B1户型 2室 Premium 570平方英尺 / 53平方米
新币S$1,540,000起

B2户型 2室 Premium 603平方英尺 / 56平方米

B3户型 2室 Premium 624平方英尺 / 58平方米

C1户型 2室 双钥匙 624平方英尺 / 58平方米
新币S$1,750,000起
C2户型 2室 双钥匙 635平方英尺 / 59平方米




8 St Thomas (D09 邮区 乌节路)
最新&爆款,价格洼地,(准)现房,1室,2室,3室,4室及更大,双钥匙,D09,125-150万,150-200万,200-250万,250-300万,300-400万,豪宅,永久产权
简介:
8 St Thomas是一个永久产权的住宅开发项目,位于第09邮区的8 St Thomas Walk。这个开发项目包括2个公寓楼,总共250个单元。 单位面积从441平方英尺至1,744平方英尺不等,有1室单位至最多4室单位。
8 St Thomas 融合设计与美学的时尚建筑风格,彰显出建筑师对完美的追求。坐落在新加坡核心中央区域,毗邻乌节路顶尖购物商圈,享受无与伦比的城市天际线景观。


新加坡邮区分布:

概况:
楼盘名称:8 St Thomas
开发商:Bukit Sembawang Estates Limited
产权:永久
完成年份:已竣工
楼层数量:N/A
单位数量:250
起始总价:新币S$1,416,000
每平方英尺起始:新币S$2,865起
卖点:
公寓提供的部分设施包括:
游泳池
健身角
网球场
阳光甲板
健身房
功能房
花园烧烤亭
儿童游乐场

公寓附近设施和景点:
公寓距离位于南北线的Somerset(NS23)索美塞地铁站约有5分钟车程,而距离Great World(TE15)世界城地铁站约有5分钟步行路程。 该公寓可通过River Valley Road在St Thomas Walk进入,通过转入Killiney Road,很容易到达乌节路。
此公寓靠近Comcentre,Great World City世界城,Somerset 313等购物中心
1公里内学校:
River Vally Primary School
2公里内学校:
Alexandra Primary School
Anglo-Chinese School (Junior)
St. Margaret's Primary School
Zhangde Primary School
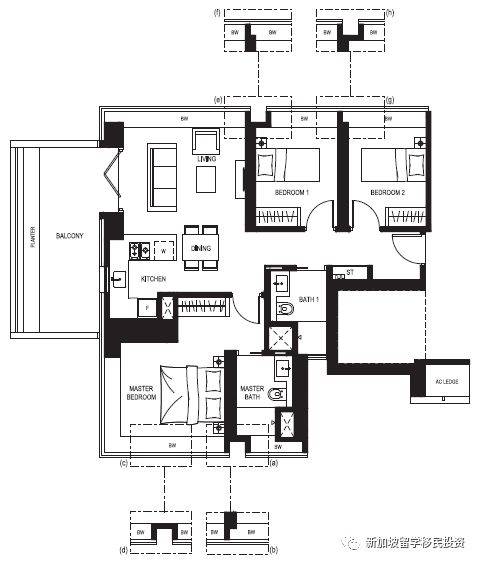
主力户型:

A4户型 1室 441平方英尺 / 41平方米
新币S$1,416,000起

A1户型 1室 506平方英尺 / 47平方米
新币S$1,650,000起
直降新币S$127,000
新币S$1,523,000起

B5户型 2室 549平方英尺 / 51平方米
新币S$1,761,000起

B2户型 2室 807平方英尺 / 75平方米
新币S$2,499,000起
B1户型 2室 872平方英尺 / 75平方米
新币S$2,733,000起
直降新币S$135,000
新币S$2,598,000起

B3户型 2室 1,044平方英尺 / 97平方米
新币S$2,864,000起

C3户型 3室 1,141平方英尺 / 106平方米
新币S$3,378,000起

C2户型 3室 1,152平方英尺 / 107平方米
新币S$3,550,000起
直降新币S$81,000
新币S$3,469,000起

C1户型 3室 1,302平方英尺 / 121平方米
新币S$3,964,000起

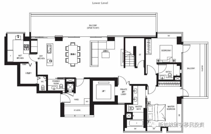
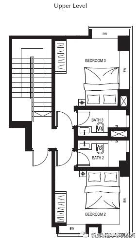
D1B户型 4室 1,744平方英尺 / 162平方米
新币S$5,421,000起

D2A户型 4室 1,755平方英尺 / 163平方米
新币S$5,600,000起
DK1户型 4室 双钥匙 1,690平方英尺 / 157平方米
新币S$5,208,000起

PH2户型 Penthouse 2,659平方英尺 / 247平方米
新币S$10,888,888

【新成项目】攫取生活内涵,彰显尊贵身份——乌节路银峰楼盘
New Futura (银峰)位于第9区的乌节区(Orchard),是属于新加坡的中央区也是新加坡最高尚的住宅。这里疏于新加坡的黄金地也是房地产投资热点之一。地段的所处地段占地约8,086平方米,是属于永久地契。

New Futura (银峰),别具一格的阔绰私宅,毗邻全球最著名的购物街之一,乌节路而建。秉承城市发展集团(CDL)的严格作风精心筑就,由屡获奖项的建筑师 Skidmore, Owings & Merrill LLP (SOM)设计。曲线型的36层双子塔建筑注定将成为新加坡永垂不朽的地标,它不只是战利品,更是家族投资中的一颗明珠。私享专权,为卓越人士量身定制,纵情享受,代代相传 。

项目专注于每一个细节。您会在地下停车库里找到250多个停车位,甚至发现为顶级豪车专门加宽或加长的停车位,细微之处,方显体贴。多层热带景观花园里,无边际泳池、休闲水床和银峰会所坐落其间。银峰会所白天是凉爽的栖息地,夜晚便成为私密的聚会场所。为完善银峰的生活服务,住户礼宾服务部可为您提供贴心的个性化服务,满足您的生活需求。从私人电梯入户,带有宽阔阳台的客厅及饭厅即印入眼帘。每个单位都有优雅精致的大理石地板铺就,部分单位更有大气的挑高层高单位,视野开阔,全面提升您的生活体验。您可根据所需,选择2、3、4卧室单位。若您对“空中别墅”满怀憧憬,豪华顶层跃层单位的私人泳池将是您徜徉的港湾。单位面积介于102平方英米至728平方英米。

New Futura (银峰)距离索美塞地铁站(Somerset MRT Station)约500米,步行几分钟就可到达。他们也可以步行到大世界地铁站(Great World MRT)。该地铁站也只里New Futura (银峰)约600 米。New Futura (银峰)想到新加坡任何角落都非常方便。驾车人士也只需约8分钟车程就能到达中央商业区(CBD)。附近的主要道路也可以轻易通往中央高速公路(CTE)和泛岛高速公路(PIE)。
位于乌节路的住宅非常方便,租户只需步行几分钟就可到达新加坡最大的购物区。那里的商场非常多,也提供了无数的零售、餐饮和娱乐设施。住户可以尽情享受到各式各样不同的的购物体验和各国际的美食。住在New Futura (银峰)可是非常方便。
银峰附近高校林立。靠近New Futura (银峰)的公立学校有立化小学(River Valley Primary School)、圣玛格烈小学(St Margaret Primary School)、英华学校附小 (Anglo-Chinese Junior School)、彰德小学 (Zhangde Primary School)、欧南中学(Outram Secondary School)、颜永成中学(Gan Eng Seng Secondary School)和莱佛士女子中学(Raffles Girls’ Secondary School)、ISS国际学校(ISS International School)、采士华国际学校(Chatsworth International School)和伊顿国际学校(Eton House International School)。






新成顾问公司正在不断完善服务内容,拓展业务渠道,人性化地为客户量身打造全套解决方案。针对不同客户的需求,我们推出了圣基茨护照移民项目、塞浦路斯护照移民项目、新加坡移民项目等,十多年来积累了大量成功案例。如果您认为本篇文章对您起到帮助,请关注我们的微信公众号。也欢迎各位朋友前往我们公司咨询移民、留学、投资等事项。
如果觉得我的文章对您有用,请随意打赏。你的支持将鼓励我继续创作!