The Navian (D14 邮区 友诺士)
简介:
The Navian位于D14区178 Jln Eunos, Singapore 415816,它由48个单位组成,高6层。它由开发商Roxy-Pacific Holdings Limited开发。
新加坡邮区分布:
概况:
公寓名称:The Navian
开发商:Roxy-Pacific Holdings Limited
产权:永久
预计交钥匙时间:2021年
单位数量:48
起始总价:新币 S$1,457,000
每平方英尺起始:新币 S$1,612
卖点:
The Navian提供地面停车场和游泳池等公共设施。
该公寓附近有多个购物中心,靠近巴耶利巴广场和丹绒加东购物中心。
1公里内学校:
EUNOS PRIMARY SCHOOL
MAHA BODHI SCHOOL
TELOK KURAU PRIMARY SCHOOL
2公里内学校:
DAMAI PRIMARY SCHOOL
HAIG GIRLS' SCHOOL
ST. STEPHEN'S SCHOOL
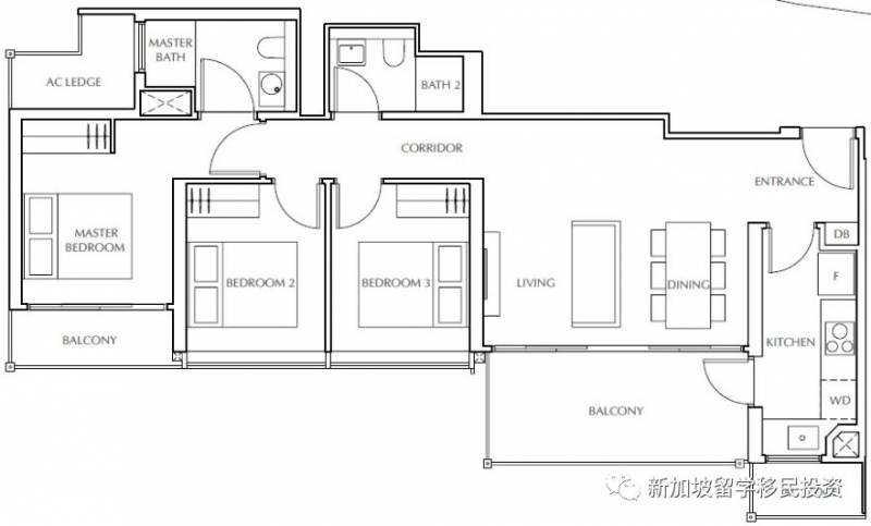
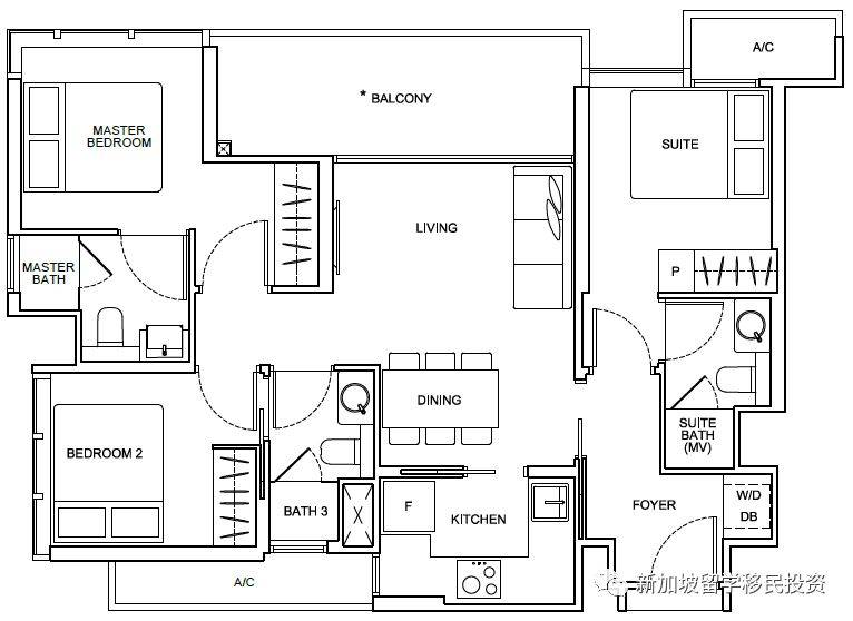
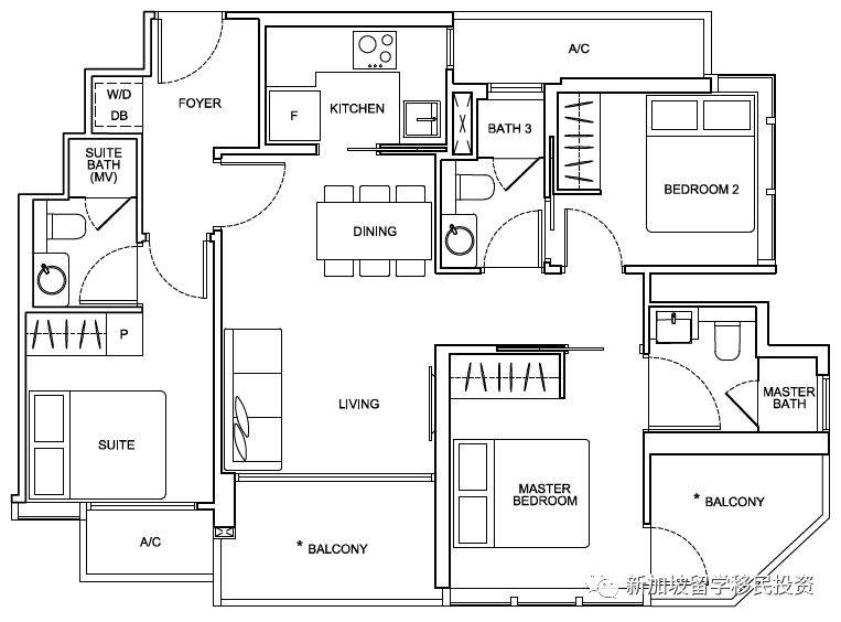
户型分布:

主力户型:
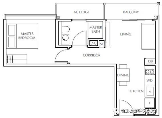
B2户型 4室 904平方英尺 / 84平方米
新币S$ 1,457,000起
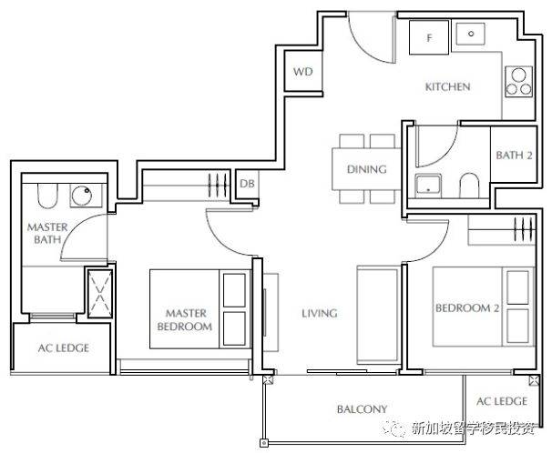
B3户型 4室 893平方英尺 / 83平方米
新币 S$ 1,481,000起

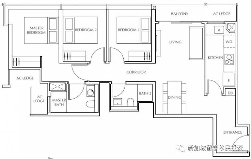
B4户型 4室 904平方英尺 / 84平方米
新币 S$ 1,482,000

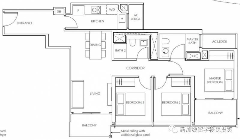
B5户型 4室 926平方英尺 / 86平方米
新币 S$1,534,000起

Jui Residences 水(D12邮区 波东巴西)
最新&爆款,1室,2室,3室,D12,100万以下,100-125万,125-150万,150-200万,永久产权
简介:
Jui Residences位于实龙岗 1177 Serangoon Road, Singapore 328231。
该公寓有1栋18层楼高的永久产权住宅单位,总共117个单元。 公寓单位面积从431平方英尺到1001平方英尺不等,户型分为有1间卧室至最多3间卧室。
新加坡邮区分布:

概况:
楼盘名称:Jui Residences
开发商:Tiara Land Pte Ltd
产权:永久
完成年份:2022
楼层数量:18
单位数量:117
起始总价:新币S$719,000起
每平方英尺起始:新币S$1,712起
卖点:
公寓提供的部分设施包括:
游泳池
健身房
阳光甲板
功能房
花园烧烤亭
儿童游乐场
公寓附近设施和景点:
Jui Residences靠近几所著名学校,包括Cedar Primary School, Cedar Girls’ Secondary School, 培群公立学校,圣安德鲁初级学院,史丹福美国国际学校等。
Jui Residences靠近加冷巴西地铁站,也可通过实龙岗路和高速公路进入。
Jui Residences附近有几所购物中心和休闲场所,比如The Venue Shoppes, The Poiz Centre, and Potong Pasir Community Club。
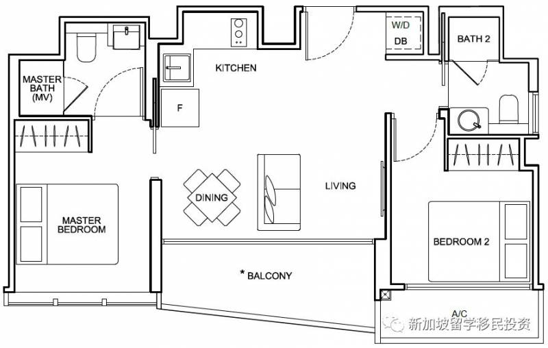
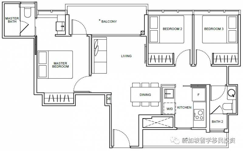
户型分布:
户型 面积(平方英尺) 单位数量 1室 A1 431 13 1室 A2 463 13 2室 B1 657 13 2室 B2 700 13 2室 B3 710 13 3室 C1 883 13 3室 C2 893 13 3室 C3 947 13 3室 C4 1001 13
1公里内学校:
Bendemeer Primary School
St. Andrew's Junior School
2公里内学校:
Canossa Catholic Primary School
Cedar Primary School
First Toa Payoh Primary School
Hong Wen School
Pei Chun Public School
主力户型:
A2户型 1室 463平方英尺 / 43平方米
新币S$819,000起

A1户型 1室 431平方英尺 / 40平方米
新币S$719,000起 (售罄)

B2户型 2室 700平方英尺 / 65平方米
新币S$1,190,000起

B3户型 2室 710平方英尺 / 66平方米
新币S$1,207,000起

B1户型 2室 657平方英尺 / 61平方米
新币S$1,128,000起

C2户型 3室 893平方英尺 / 83平方米
新币S$1,451,000起

C1户型 3室 883平方英尺 / 82平方米
新币S$1,435,000起
C3户型 3室 947平方英尺 / 88平方米
新币S$1,601,000起

C4户型 3室 1001平方英尺 / 93平方米
新币S$1,708,000起

Arena Residences (D14邮区 国家体育场)
最新&爆款,永久产权,D14邮区,2室,3室,双钥匙,100万以下,100-125万,125-150万,150-200万
简介:
Arena Residences位于中部地区14区,6 Guillemard Ln, Singapore 399874。住宅拥有98个单位,占地面积25,601平方英尺,约2,380平方米。为永久产权。
新加坡邮区分布:


概况:
楼盘名称:Arena Residences
开发商:RH Guillemard Pte Ltd
产权:永久
完成年份:2022
楼层数量:14
单位数量:98
起始总价:新币S$982,000起
每平方英尺起始:新币S$1,766起
卖点:
公寓提供的部分设施包括:
游泳池
健身房
阳光甲板
健身角
功能房
花园烧烤亭
儿童游乐场
瑜伽花园

交通便利- 5分钟步行到Mountbatten地铁站,5分钟车程到市区和滨海湾中心。距离KONG HWA PRIMARY和GEYLANG METHODIST只有1公里。
美食天堂- 周围有当地美食和著名的餐馆 - 旧机场美食中心,加冷湿货市场和美食中心,麦当劳,肯德基,long beach海鲜。
购物中心 - 靠近Kallang休闲公园购物中心,Kallang Wave 购物中心,Paya Lebar 广场,Singpost 购物中心,Tanjong Katong 购物中心,One KM,City Plaza,Suntec City。

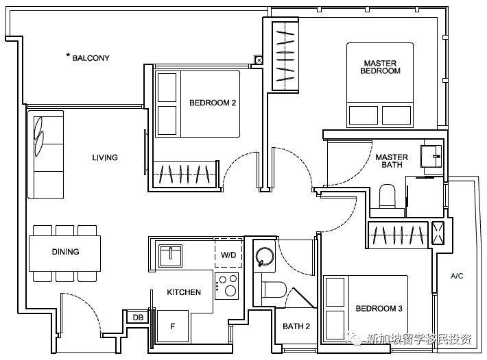
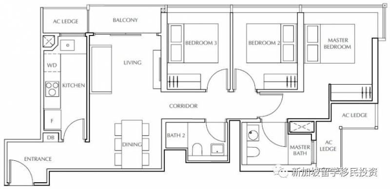
户型分布:

1公里以内的学校:
Geylang Methodist Primary School
Geylang Methodist Secondary School
Kong Hwa School
2公里以内的学校:
Canossa Catholic Primary School
Broadric Secondary School
Chung Cheng High School Main
James Cook University
主力户型:
A1户型 2室 549平方英尺 / 51平方米
新币S$1,013,000起

B1户型 2室 603平方英尺 / 56平方米
新币S$1,103,000起

B2户型 2室 603平方英尺 / 56平方米
新币S$1,103,000起
C1户型 3室 807平方英尺 / 75平方米
新币S$1,460,000起

C2户型 3室 818平方英尺 / 76平方米
新币S$1,429,000起

C3-DK双钥匙户型 3室 883平方英尺 / 82平方米
新币S$1,613,000起

C4-DK双钥匙户型 3室 893平方英尺 / 83平方米
新币S$1,577,000起
如果觉得我的文章对您有用,请随意打赏。你的支持将鼓励我继续创作!