Daintree Residence私人公寓位于新加坡第D21邮区,道德路(Toh Tuck Road)5号。
该公寓位于市区边缘,代表中档公寓的其他中央区(RCR)住宅,既靠近市区,而价格又明显低于核心中央区。
Daintree Residence公寓占地约201,511平方尺(18,721平方米),拥有99年地契。
公寓由著名发展商实达集团(SP Setia)开发,由甲艺建筑设计院(ADDP Architects LLP)高级建筑师设计。
Daintree Residence公寓将建造12栋5层楼高建筑,合327个面积介于517-1658平方尺(48-154平方米)的1-4卧室私宅单位。
该公寓紧邻滨海市区地铁线(Downtown line)的美世界地铁站(Beauty World MRT),走路6分钟抵达。
公寓四周教育资源丰富,1公里范围内的小学就有2所包括名校培华小学。
公寓靠近武吉知马巴刹与熟食中心(Bukit Timah Market and Food Centre)、美世界商场(Beauty World Plaza)、美世界中心(Beauty World Centre)和武吉知马购物中心(Bukit Timah Shopping Centre)等,是休闲、娱乐和享用美食的好去处。
Daintree Residence公寓由顶级建筑师设计,可谓居山水如画,藏仙境于心,秉地秀天成,终完美呈现。
引言
曾几何时,人们厌倦了贫困的农村生活,向往城市的繁华。
然而喧嚣的城市又给许多人带来无尽的烦恼,现代人又开始回归自然。
乡村情节是都市人对农庄宁静生活的渴望,然而,又有多少人愿意回到便利设施极大受限的原貌村落?
网上盛传一个笑话,说是一个土豪的理想是等再奋斗几年,去农村买个农家院、养点鸡鸭鹅狗猪、种点花草、春天挖野菜、夏天钓钓鱼、秋天扒包米、冬天扫扫雪,没事的时候约几个朋友斗斗地主、喝点小酒、吹吹牛,过上美好的农村生活;
而这种生活就是许多留守农村的普通百姓的生活。
但事实上,不同于普通百姓的田园农耕生活,土豪的农庄生活是一个升级版,结合了农庄的宁静和城市的便利设施。
这个升级版的住宅环境是现代城市居民追求的目标。
在新加坡,土地资源极度贫乏,是名副其实的奢侈品,如何在这样的环境下开发具现代城市生活便利的世外桃源呢?
这里为您介绍一个宁静、豪华、现代化、数码化的土豪级新楼盘,Daintree Residence公寓。
这个楼盘位于武吉知马上段绝佳优选地段,环境非常宁静。
Daintree Residence拥有现代化、数码化的智能家居系统,只需轻轻点击手机按钮,便利生活就展现在您的眼前。
可谓居山水如画,藏仙境于心,秉地秀天成,终完美呈现。
下面就为您细细道来。
楼盘概况
Daintree Residence私人公寓位于新加坡第D21邮区,道德路(Toh Tuck Road)5号。
该公寓距离滨海市区地铁线(Downtown line)的美世界地铁站(Beauty World MRT)650米,走路6分钟抵达,四周教育资源丰富,1公里范围内的小学就有2所包括名校培华小学。
公寓靠近武吉知马巴刹与熟食中心(Bukit Timah Market and Food Centre)、美世界商场(Beauty World Plaza)、美世界中心(Beauty World Centre)和武吉知马购物中心(Bukit Timah Shopping Centre)等,是休闲、娱乐和享用美食的好去处。
Daintree Residence公寓是,占地约201,511平方尺(18,721平方米),拥有99年地契。
公寓由著名发展商实达集团(SP Setia)开发,由甲艺建筑设计院(ADDP Architects LLP)高级建筑师设计。
Daintree Residence公寓将建造12栋5层楼高建筑,合327个面积介于517-1658平方尺(48-154平方米)的1-4卧室私宅单位。

楼盘精华
位于武吉知马低密私人住宅区,宁静舒适;
位于市区边缘,属代表中档公寓的其他中央区(RCR)公寓;
6分钟步行至滨海市区线的美世界(Beauty World)地铁站;
名校林立,是名副其实的学区房;
欣赏武吉知马山(Bukit Timah Hill)的全景
公寓设施多达50多项,包括山谷和雨林俱乐部、网球场、按摩浴缸、树顶散步走道,以及50米长的休闲游泳池等;
公寓采用现代智能家居系统,让生活数码化、智能化;
由屡获国际奖项的著名发展商实达集团开发,有信誉和质量保障;
附近购物商城林立,是休闲、娱乐和享用美食的好去处;
靠近3个自然公园(武吉知马、武吉巴督和奶牛场自然公园),享受绿色生活。


楼盘位置
Daintree Residence 位于第D21区的道德路(Toh Tuck Road)。
这个地段位于武吉知马上段绝佳高档私宅地段,环境非常宁静,四周均为私人住宅区。
从该公寓只需步行6分钟就能抵达滨海市区线美世界地铁站(Beauty World MRT),由此可直通滨海湾金融中心。
由该地铁站乘搭4个站就可抵达植物园地铁转换站(Botanic Gardens MRT),由此可转搭地铁环线(Circle MRT Line)。
驾车人士可利用附近的泛岛高速公路(PIE)、亚逸拉惹高速公路(AYE)、克兰芝高速公路(KJE)和武吉知马高速公路(BKE)。
Daintree Residence 的居民只需驾车15分钟的路程就能抵达中央商业区(CBD)、圣淘沙、怡丰城和金融区。附近100米范围内还有巴士站,居民可乘搭77和173等路线抵达多个地点。

Daintree Residence附近也是美食、购物和娱乐的理想场所。
如步行六七分钟即可享受拥有悠久历史的武吉知马巴刹与熟食中心(Bukit Timah Market and Food Centre)的各种美食。
熟食中心还有湿巴刹,在那里可以买到新鲜的蔬菜、水果和肉类。熟食中心旁边还有好几个商场,如美世界商场(Beauty World Plaza)、美世界中心(Beauty World Centre)和武吉知马购物中心(Bukit Timah Shopping Centre)等,的确是美食、购物和娱乐的好去处。

教育资源
Daintree Residence 公寓是一个地道的学区房。
公寓附近1公里范围内的幼儿园就有6家。
一公里范围内的小学有武吉知马小学(Bukit Timah Primary School)和培华小学(Pei Hwa Presbyterian Primary School)等。
附近的中学有美以美女子中学(Methodist Girls’ School (Secondary))和尤素夫依萨中学(Yusof Ishak Secondary School)等。
附近一两公里范围内还有义安理工学院(Ngee Ann Polytechnic)和新跃社科大学(Singapore University of Social Sciences)。
这两所学府均为公立学府。
特别是新跃社科大学,是新加坡第六所公立大学,为社会科学领域培养专才。
此外,公寓附近1公里范围内还有国际学校Dimensions International College (Bukit Timah Campus)。
这样,附近的教育资源可为各年龄层的公寓居民提供全方位的服务。

楼盘特色
澳大利亚戴恩树国家公园(Daintree National Park)已被联合国教科文组织列为世界遗产名录自然保护区,是世界上最古老的热带雨林,拥有地球上最丰富的动植物种类。
这里郁郁葱葱、溪流清澈,充满神秘与野性,堪称世外桃源。
公寓以此名,与其设计理念“Lush side of life”相符,旨在营造一个鸟语花香、青葱翠绿的智能生活环境。
公寓外观时尚而富有雕塑感,让人想起采石场的地貌,创造出一种技术上前卫,但自然优雅、令人惊叹的观感享受。
Daintree Residence不仅是一座公寓,还是一个仙境般的社区。
居民们可以舒适地隐藏在宁静的雨林中。
阳光、空气、空间和绿色汇聚在一起,创造一个广阔的雨林树冠,一个远离世界的城市绿洲,但因公寓距离地铁站近在咫尺,因而拥有几乎所有的便利和设施。
公寓建造注重质量,采用品牌产品,并建造多达48类便利设施,如游泳池、按摩浴缸、脚底温泉、蒸汽房、烧烤亭、水上健身区、户外健身区、室内健身房和网球场等,满足不同年龄层公寓居民的各种需求。



公寓由获奖发展商S P Setia(实达)集团开发。
该集团拥有40多年的经验,是一家上市公司,业务遍及6个不同的国家包括马来西亚和新加坡。
迄今为止,实达是FIABCI世界优秀奖的获奖者,该奖项被认为是沃达尔房地产行业的“奥斯卡”奖。
公寓由新加坡甲艺建筑设计集团(ADDP ARCHITECTS)设计。
该集团创办于1986,多次荣膺国内和国际奖项。
甲艺在新加坡开展业务的同时,也积极致力于发展海外业务,先后为中国、马来西亚、印度、越南和印度尼西亚等国的客户提供设计和项目管理等专业服务。

智能家居
公寓采用最先进的智能家居系统,不仅可以满足您的家居需求,还可提升居家安全性和便利性。
生物识别门锁具有先进的指纹验证功能,您可以轻松地开锁居家大门,而IP摄像头可以让您了解家中发生的事情。
带有高清晰度摄像头的智能门铃,即使您不在家,也可让您远程验证来访客人。
居民可用应用程序SMART ASSIST预订设施、处理付款、注册客人,甚至允许他们安全地访问您的家。
公寓还提供扩展智能技术,让有需要的居民自行购置,提供更全面居家服务,如可以选择添加额外设备来控制空调和照明,并添加一个紧急按钮,还可安装电动窗帘、AV控制、亚马逊Alexa和谷歌之家等。

升值潜能
一套公寓的升值潜能可以通过该公寓所处的地理位置、四周的教育资源、便利设施、居住环境、公寓本身的设计和建造质量以及发展商定下的成交价等。
Daintree Residence位于武吉知马上段绝佳优选地段,属私密私宅地段,四周绿树成荫、郁郁葱葱,又靠近地铁站。
Daintree Residence位于市区边缘,属代表中档公寓的其他中央区(RCR)公寓,既靠近市区,而价格又明显低于核心中央区。
Daintree Residence四周购物商场林立,教育资源丰富,且拥有先进的智能家居系统。
Daintree Residence有著名发展商建造,有信誉和质量保障,所有的这一切为公寓的进一步升值提供了良好的基础,也为积极的租赁市场添砖加瓦。
我们再来分析一下4栋可比较公寓的成交价。
这4栋公寓分别是Mayfair Garden、Mayfair Modern、The Creek @ Bukit和Daintree Residence。
这4栋公寓均位于美世界地铁站附近500-800米。
Mayfair Garden、Mayfair Modern和Daintree Residence均为期房。
The Creek @ Bukit于去年TOP,它的最低价为S$1485,最高价为S$1884,平均价达S$1699。
Mayfair Garden的平均成交价高达S$2087,而Mayfair Modern的成交价将更高。根据发展商的预售价,其最低尺价已达S$1953。
相比之下,Daintre Residence的平均尺价为S$1693,是4栋公寓中最低的。
从这方面看,也可预计Daintre Residence公寓将有更大的升值空间。

房型欣赏
Daintree Residence公寓将建造12栋5层楼高建筑,合327个私宅单位,户型包括12个一卧室、10个一卧室+书房、131个两卧室、51个两卧室+书房、114个三卧室和9个四卧室单元。
单位面积介于517-1658平方尺(48-154平方米)。
其中的一卧室和四卧室单元已售罄。

二卧室或二卧室+书房,合182套,套内面积56平方米(603平方尺)至73平方米(786平方尺),整套售价从S$102万元起。
特点是户型方方正正,布局合理,采用开放式厨房,无浪费空间,客厅与餐厅共享空间,客厅配备阳台。
这样的户型非常适合夫妻情侣享受二人世界,以及专业人士和学生。
除了自住,也适合出租给高端专业人士。


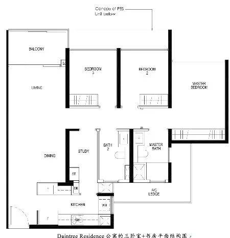
三卧室,合114套,套内面积93平方米(1001平方尺)至115平方米(1238平方尺),整套售价从S$1,624,500元起。
特点是户型方方正正,布局合理,厨房与餐厅分开,并有储物间。许多三卧室单元还有一个书房。
一些三卧室单元配备双钥匙。
所有三个房间均配备内置衣柜,客厅和其中二个房间还配备封闭式阳台。
这样的户型非常适合有孩子的夫妇,或与父母同住。
除了自住,也适合出租给相应的高端专业人士。


小结
Daintree Residence公寓取名于澳大利亚戴恩树国家公园(Daintree National Park),这个已被列为世界遗产名录的自然保护区,是世界上最古老的热带雨林,拥有地球上最丰富的动植物种类。
同样地,Daintree Residence公寓到处都是郁郁葱葱、溪流清澈,堪称世外桃源。
公寓以此名,与其设计理念“Lush side of life”相符,旨在营造一个鸟语花香、青葱翠绿的智能生活环境。
Daintree Residence公寓是仙境般的住宅。
居民们可以舒适地隐藏在宁静的雨林中。阳光、空气、空间和绿色汇聚在一起,创造一个广阔的雨林树冠,一个远离尘世的城市绿洲。
公寓位于RCR区,地铁站近在咫尺,因而拥有几乎所有的便利和设施。
公寓建造注重质量,采用品牌产品,并建造多达48类便利设施,如游泳池、按摩浴缸、脚底温泉、蒸汽房、烧烤亭、水上健身区、户外健身区、室内健身房和网球场等,满足不同年龄层公寓居民的各种需求。
同时,公寓也采用最先进的智能家居系统,让您的生活数码化、智能化、便利化。
在售价方面,该公寓与其它可比项目相比,价位也明显较低,具有显著的增值空间。
朋友们,果断拿起手中电话,联系吴洲,享受VIP级专业服务,享受低买房贷款利息,购买心仪房产。
如果觉得我的文章对您有用,请随意打赏。你的支持将鼓励我继续创作!