
项目要点:
· 只需5分钟可以步行到实龙岗地铁站和巴士转换站
· 5分钟步行到东北部最大的商场NEX Mall
· 方便连结两条地铁线,东北线和地铁环线 (参考地铁图)
· 1公里内有名校巴耶利峇美以美小学和养正小学
· 多达约60项公寓配套设施,其中包括150米的探险乐园,75米长的游泳池等
· 会所设有迎宾大厅,为业主保管邮寄包裹等贴心服务
· 采用国际一线品牌如Bosch厨房家具和Grohe卫浴
· 所有单位安装智能家居系统,科技感十足
· 灵活的户型选择,根据您的需求调整
· 新加坡品质发展商城市发展商有限公司旗下项目,多达50多年项目开发经验,新加坡最多BCA奖项的发展商。
基本信息介绍:
森涛苑地处生活配套设施成熟的实龙岗区域,共有7栋12层的小高楼,总共有519单位,占地14000平方米,算是中型公寓,包括有一房到四房的不同类型的户型,入住时间2021年5月之前完工,现在项目快要封顶,预计可能提前一年交房.
发展商使用高档品牌像Bosch厨房电器,Grohe卫浴等,多达60种公寓设施,包括长达75米的游泳池,150米探险乐园,像酒店大厅似的贵宾接待区,24小时开放的健身房,3层高的公寓会所,全部单位打造智能家居系统(Smart Home),实在太多,小编就不一一介绍了,看房时候了解更多详情哦.
卓越的地点
众所周知,对购买者来说,地点是最重要的因素之一,实龙岗地铁是黄线和紫线的转换站,还有实龙岗总巴士转换站,只需2站即可到达碧山地铁站,7站地铁到乌节路地铁站,别忘了实龙岗花园的美食区,想忠忠熟食中心,本地美食餐馆林立,如果您的预算200万以内的话,这个项目绝对是您的选择之一.

优质教育资源
众多名校围绕,是名副其实的学区房,本地知名学校如巴耶利峇美以美女子小学,养正小学,新加坡海星小学/中学,中华中学,巴耶利峇卫理小学/中学,圣加布里埃尔中学,大专学府南洋理工学院(NYP)等皆在几公里范围内,国际学校如史坦福美国国际学校、澳大利亚国际学校,博伟学校只需一站地铁。

交通便利
森涛苑(Forest Woods)位于成熟社区实龙岗,5分钟可到达实龙岗地铁站/Nex Mall商场,新加坡东北部最大的商场NEX Mall就在一步之遥,是实龙岗区域内多年来首个大型公寓项目,周边交通便利,通过中央快速公路CTE/KPE可以到达市区中央商业区,TPE前往机场等.


发展商的匠心打造
森涛苑(Forest Woods)体现了发展商的匠心独运,项目致力于打造温馨及高品质的居住环境,“森林公寓”概念提供自然适居。建筑师巧妙设计,充分利用每户空间,下面户型图介绍可以看出,户型可灵活设计,总有一款您会喜欢,独特的室内设计尽显奢华。凭借地理位置优势及开发商的匠心打造,森涛苑(Forest Woods)必将成为震撼力作。
项目由城市发展(CDL),丰隆实业有限公司(Hong Leong Holding)和TID Pte Ltd联合开发,绝对品质保证.城市发展有限公司为全球领先的房地产集团,足迹遍及28个国家和100个地点,涵盖的住宅、办公楼、酒店、酒店式公寓、综合发展项目及购物中心。

易租赁和升值潜质大
新加坡政府市区重建局正在进行分区域商业规划,实龙岗分区域中心将来会打造办公室,商场一体化步行5分钟范围内将有更多商场和办公楼纳入,靠近Paya lebar区域商业区,NEX商场旁边会建新办公楼。更多商家的进驻将从多方面提高实龙岗交通枢纽地位,同时周边学校众多,学生住房方面需求旺盛,也为项目提供了大批潜在租客,对投资客有出租方便保证和资产增值.

楼盘图片欣赏,让您大饱眼福
游泳池长达75米
150米的探险乐园

酒店似的迎宾大厅,Wifi上网,提供为业主保管邮寄包裹等贴心服务

高大上的健身房

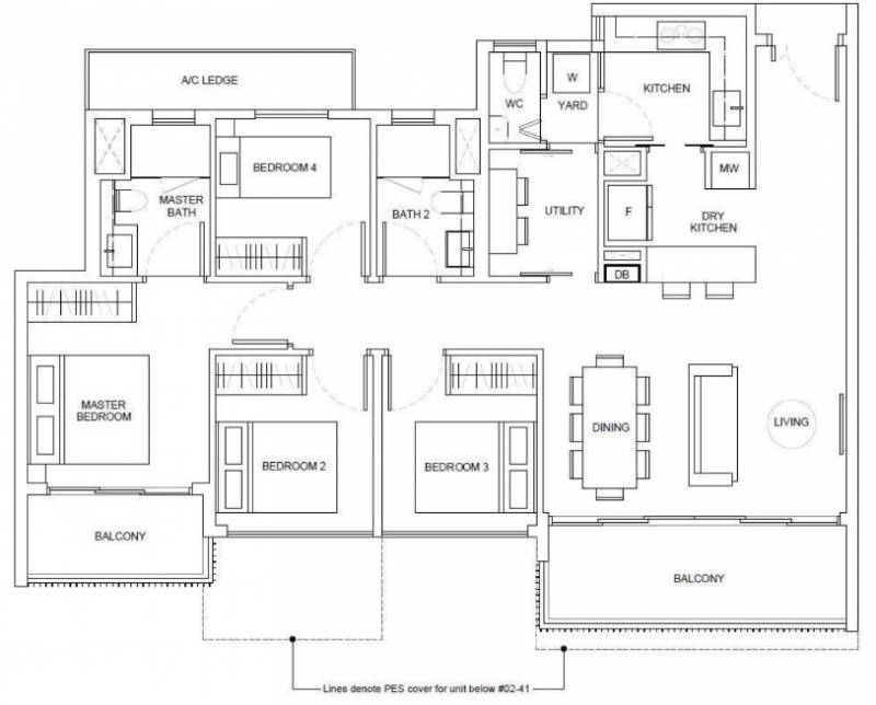
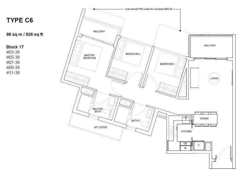
户型图介绍
3房户型,86平方米/926平方英尺,客厅和主卧带阳台,封闭式厨房,价格152.8万起
3房户型(优质)95平方米/1023平方英尺,带保姆房,封闭式厨房,适合家庭住,价格168.6万新币起

4房户型,有下图中两种不同户型,面积为116平方米/1249平方英尺,户型设计方正,适合大家庭住,游泳池朝向,价格为188.1万新币起


若您对新加坡任何房产感兴趣,请免费咨询我们的特约房产经纪人张琼/Linda,开发商直接代理销售团队,买公寓无任何中介费用,协助客户办理买房银行贷款,买房产业托管一条龙服务。
如果您喜欢这边文章,请分享在你的朋友圈或转发您需要的朋友,谢谢!
作者个人简历:
房产作者张琼(Linda),新加坡最大房产经纪公司Huttons市场部高级董事,拥有丰富的房产行业经验,已入行热爱的房地产行业约8年.全心全意为客户考虑,致力于协助国人新加坡置业,秉著细心周到的服务态度,以客户利益为出发点,诚信待人。服务过数百位中高档客户,广受客户们好评。包括企业家,企业高管,中小型公司老板,新移民,房地产发展商老板等等。
一个电话过来就了解全岛各地段的项目,总有一款适合您!不跟买家收取中介费,专车接送看房,公司代理全岛各地项目
为什么选择我?本人对市场项目很熟悉,可以更加专业帮您找到适合的单位,节省你看房所需花的时间,可以带您看全岛各地的项目,只选适合您的好项目.
协助您办理银行贷款(外国人可贷款),房屋推荐,律师咨询等,值得客户信赖的房屋经纪人。总以专业的眼光推荐适合客户需求的房屋项目,始终客户优先.
欢迎需要买房或者卖房的朋友添加我的微信号(扫描以下二维码)
微信号:zhangqiong046456 电话:65-93397258
如果觉得我的文章对您有用,请随意打赏。你的支持将鼓励我继续创作!