摘 要
Mayfair Gardens私人公寓位于新加坡第D21邮区,武吉知马区(Bukit Timah),属于新加坡的私宅高需求区。
Mayfair Gardens占地约116,121平方尺(10,788平方米),拥有99年地契,由知名发展商豪利Oxley控股开发,屡获大奖的DP Architects设计师精心设计,具有浓厚的英国伦敦梅费尔豪华建筑风格,完美再现其建筑艺术精髓。
Mayfair Gardens将建造4栋5层楼高住宅,合215个私宅单位,户型包括89个一卧室、86个两卧室、26个三卧室、8个四卧室和6个阁楼单元,面积介于495-1,733平方尺(46-161平方米)。
新公寓位于靠近杜尼安路(Dunearn Road)的射靶场路(Rifle Range Road),这一带主要为私宅地段。该公寓距离滨海市区地铁线(Downtown MRT Line)的阿尔柏王园(King Albert Park)地铁站仅400米。
3分钟步行抵达吉知马区购物中心(Bukit Timah Plaza)、4分钟美世界购物中心(Beauty World Plaza)、5分钟SIME DARBY Centre。
1公里范围内有名校培华小学和美以美小学。新公寓由Fermax打造现代智能家居系统,引领智慧国未来住宅数码化。
前 言
梅费尔(May Fair)这个名字已经有300多年的历史了,意即五月集市。在英国伦敦,May Fair隶属于Westminster,是一个时尚、昂贵的住宅和商务区,西到海德公园,北到牛津街,南到皮卡迪利街和格林公园,东到摄政街。
该地区有许多办公楼、著名建筑、住宅和酒店等,如位于格罗夫纳广场的美国驻英大使馆,皇家艺术学院、韩德尔故居博物馆、丽思大酒店、格罗夫纳酒店(Grosvenor House Hotel)、克拉瑞芝酒店(Claridge's)和都切斯特饭店(The Dorchester)等。
2008年全球金融危机之后,投资者为了寻求资产保值,将大量资金投入Mayfair的住宅,让那里的房价再次疯狂。如果您在40年前在Mayfair区买了一套价值25万英镑的房产,现在可以1,750万英镑成交,这样的涨幅在伦敦许多其它地区的楼盘是不可同日而论的,这让Mayfair成为伦敦最昂贵私宅地标已当之无愧。
这样的地标自然汇集了世界顶级的设计师为这里的建筑精心雕琢,一个又一个的顶级设计脱颖而出。而这里的设计理念自然成了世界许多国家的建筑设计典范。作为英联邦的新加坡也不另外,Mayfair Gardens就是其中的一个例子,其设计灵感源于伦敦梅费尔的豪华和著名建筑,下面向您一一道来。

Mayfair Gardens公寓效果图
Mayfair Gardens
公寓区位精华和楼盘卖点
5分钟步行至阿尔柏王园(King Albert Park)地铁站;
位于武吉知马上段,与高档公寓、优质洋房为邻,住宅密度低,环境清幽,绿意环绕;
3分钟步行抵达吉知马区购物中心(Bukit Timah Plaza)、4分钟美世界购物中心(Beauty World Plaza)、5分钟SIME DARBY Centre;
1公里范围内有名校培华小学和美以美小学;
由知名发展商豪利Oxley控股开发、DP Architects设计;
具有浓厚的伦敦梅费尔豪华建筑风格,完美再现其建筑艺术精髓;
由Fermax打造现代智能家居系统,引领智慧国未来住宅数码化。

Mayfair Gardens公寓位于阿尔柏王园(King Albert Park)地铁站旁
Mayfair Gardens公寓概述
Mayfair Gardens私人公寓位于新加坡第D21邮区,武吉知马区(Bukit Timah),属于新加坡的私宅高需求区,拥有99年地契。
新公寓位于靠近杜尼安路(Dunearn Road)的射靶场路(Rifle Range Road),这一带主要为私宅地段,私宅项目繁花园(The Blossomvale),帝景园(Gardenvista)和渣甸公寓(Jardin)就在四周。该公寓距离滨海市区地铁线(Downtown MRT Line)的阿尔柏王园(King Albert Park)地铁站仅400米。
Mayfair Gardens占地约116,121平方尺(10,788平方米),拥有99年地契。公寓由著名发展商豪利Oxley控股开发,引进全方位智能家居概念,让居民生活智能化。
Mayfair Gardens将建造4栋5层楼高住宅,合215个私宅单位,户型包括89个一卧室、86个两卧室、26个三卧室、8个四卧室和6个阁楼单元,面积介于495-1733平方尺(46-161平方米)。

Mayfair Gardens公寓泳池一角
Mayfair Gardens公寓
由著名发展商开发,名家设计,
感受历史魅力,享受现代奢华。
公寓由著名发展商豪利Oxley控股开发
Oxley是一家本土的新加坡房地产开发商,主要从事物业发展及物业投资业务。
Oxley拥有多元化投资组合,包括新加坡、英国、爱尔兰、塞浦路斯、柬埔寨、马来西亚、印度尼西亚、中国、缅甸、澳大利亚、日本及越南的发展及投资项目。
Oxley的专业知识不仅仅局限于房地产开发;该集团还在缅甸提供项目管理和咨询专业知识。Oxley的房地产开发项目包括住宅、商业和工业项目。集团选择发展的关键要素包括黄金地段、理想的生活方式特征和首选设计。
凭借对市场情绪和趋势的敏锐把握,Oxley自成立以来取得了显著的增长。2013年,Oxley收购英国领先房地产开发商Galliard(Group)Limited 20%股权。 Galliard(集团)是一家房地产开发,酒店和管理集团,负责监管伦敦和英格兰南部的各种开发项目。此后,Oxley还收购了Pindan Group Pty Ltd 40%股权,Pindan Group Pty Ltd是一家位于西澳大利亚的综合项目集团,并拥有United Engineers的15%股权,United Engineers是一家成立于1912年的新加坡房地产开发和工程公司。
公司荣获多个奖项,如Top 10 Developers BCI Asia Awards, Singapore for Novotel/Mercure on Stevens 2015、Development Of The Year RESI Awards, London for Royal Wharf 2015、Winner (Individual) Singapore Property Awards FIABCI-Singapore for Space @Tampines 2016、Winner (Residential) Wharf Property Award for Royal Wharf 2015、Winner (Individual) Singapore Property Awards FIABCI-Singapore for Oxley Bizhub 2015、Singapore Excellence Awards 2017 - Real Estate Personality Of The Year Award, Oxley Holdings Limited, CEO Ching Chiat Kwong、The Edge Billiondollar Club 2016 - Oxley Holdings Limited, Most Profitable Company、The Edge Billiondollar Club 2016 - Oxley Holdings Limited, Overall Sector Winners (Developers)、Winner 2017, Singapore Property Awards FIABCI-Singapore for Oxley Towers 2017、The Edge Billiondollar Club 2017 - Oxley Holdings Limited, Most Profitable Company和Real Estate Personality Of The Year 2017 - Oxley Holdings Limited, CEO Ching Chiat Kwong等。
Oxley控股今年已经在新加坡房地产市场推出了五个项目,迄今已售出1,130个单位,总销售额达到11.8亿元。控股副执行长Eric Low表示,“我们非常有信心,当推出所有即将推出的项目时,我们的年度总销量应达到2,000个单位。”
Mayfair Gardens公寓由DP Architects(缔博建筑师事务所) 操刀设计。该公司已成立40多年,是新加坡最大专业建筑师事务所之一,全球拥有1100多雇员,设有多家分公司,包括马来西亚、印度、印度尼西亚、泰国、阿联、越南、迪拜分公司及中国上海、深圳、北京分公司等。
公司设计范围涵盖城市设计和城区改造更新、各类写字楼、商业建筑、宾馆酒店、剧院、体育场馆、机场、大中专院校、中小学校以及各类别墅住宅等。
新加坡本部及海外分公司的多个项目亦荣膺知名专业奖项。单单在2018年,公司就荣获
BCI Asia Top Ten Architects、
BCI Asia Interior Design Awards (Winner)、
BCI Asia Interior Design Awards (Winner)、
BCI Asia Interior Design Awards (Merit)、
China Real Estate Design Awards (Merit)、
Melbourne Design Awards, Silver、
Melbourne Design Awards, Gold、
President's Design Award Design of the Year 2018、Global Architecture and Design Awards, Third Award和Global Architecture and Design Awards, Honourable Mention等。
该公寓的设计灵感来自伦敦威斯敏斯特市美丽的梅费尔Mayfair区。Mayfair区是世界上最昂贵的房地产地区之一。
Mayfair Gardens的建筑风格具有浓厚的伦敦梅费尔豪华建筑风格,其灵感来自位于伦敦梅费尔富裕的西区,优雅的乔治亚联排别墅,经过重新诠释,形成适合新加坡当地城市环境的独特设计。
4栋5层楼高的建筑具有典型的皇冠(Crown)、躯干(Torso)、基柱(Pedestal)结构,为整个庄园提供永恒,雄伟的外观。低层和低密度设计,以保持其独特性,这样的设计让居民可以感受历史魅力,享受现代奢华。
武吉知马自然保护区(Bukit Timah Reserve)和海德公园(Hyde Park)就在附近。Mayfair Gardens利用其自然和独特设计,享受周围青翠的景观、一览无余的景色,离家更近的地方,Ecoplan Asia将围绕Mayfair单元区,拥有独特的植物园景观。梅菲尔花园(Mayfair Gardens)郁郁葱葱的花园将采用现代风格,采用针叶树模仿温带气候的松树,修剪整齐的场地将成为休闲散步和朋友聚会的风景如画的景点。其他古色古香的花园设施包括棋牌室、迷宫花园和通往设施的美丽灯笼大道。
Mayfair Gardens也建造了一座根据伦敦Charing Cross 地铁站俯瞰Villiers 街的通道(桥)。连建造的观景台也似乎借鉴了横跨泰晤士河的伦敦塔桥的风貌。穿过清爽的水道,享受舒适和时尚的独立会所,而两个游泳池则是您放松身心的绝佳方式。公寓还配备了一些年轻化的特色配件,如温泉座椅,足部按摩点和冒泡流等,用于缓解疲劳、享受生活。
Mayfair Gardens公寓的通道桥

Mayfair Gardens公寓的停靠站
由Fermax打造现代智能家居系统,
引领智慧国未来住宅数码化
公寓将配备智能家居功能,该系统由Fermax公司提供,例如可与其他智能家居设备配合使用的Smarthome Gateway,以及向房主的智能设备发送警报的门铃。四卧室单元和顶层公寓还配有Amazon Echo Spot语音控制设备。
Smarthome Gateway系统:居民可以24小时监控自己的家园,图像和录像资料可上传至云储存或内置储存器储存。该系统可用来侦查住家内外的任何安全隐患,还配备夜视功能,以便能在夜间执行任务;还具有警铃功能,通过手机聆听家中发生的事情。
Yale电子锁和无钥匙信箱:采用Yale电子锁,居民可以有4种开门方式,如可以用门卡(Access Card)、密码(Pin Code)、钥匙和手机应用等进入住宅。居民也将采用密码收取信件,无须配备信箱钥匙。
三菱空调系统:除了遥控器,用户可以利用手机应用程序随时随地调控空调的开关、温度、风速和风向。
Amazon Echo Spot语音控制设备:利用该系统,住户可以设置一系列待做工作列表,如叫醒服务、播放音乐、日程安排、情景控制、阅读/收听新闻、巴士服务、天气预报等。

Mayfair Gardens公寓的智能家居系统
Mayfair Gardens公寓
享受宁静、享受繁华、享受便利
Mayfair Gardens公寓四周由三栋私宅项目繁花园(The Blossomvale),帝景园(Gardenvista)和渣甸公寓(Jardin)环绕。武吉知马自然保护区(Bukit Timah Reserve)和海德公园(Hyde Park)就在附近。这样,Mayfair Gardens公寓显得异常宁静。
令人惊叹的是,Mayfair Gardens公寓却位于繁华地段,距离阿尔柏王园地铁站(King Albert Park MRT)约400米,步行仅需5分钟,乘搭3个地铁站即可抵达植物园地铁站(Botanic Gardens MRT)。第4站是史蒂芬地铁转换站(Stevens MRT),在那里可乘坐于2021年通车的汤申-东海岸地铁线(Thomson-East Coast Line)。第5站是纽顿地铁转换站(Newton MRT),由此站可转搭到地铁南北线(North South MRT Line)。
此外,公寓200米范围内还有多路公交路线,如66、66B、67、74、77、151、154、157、174、170、171、852、970、961和961C等,通往全岛各地。Mayfair Gardens也靠近泛岛快速公路(PIE)和武吉知马高速公路(BKE),驾车人士只需约15和20分钟车程即可抵达乌节路和中央商业区(CBD)。
Mayfair Gardens不但交通方便,附近的购物、娱乐、美食场所也非常多。从公寓步行几分钟就可以抵达武吉知马中心。居民可以在该中心畅游4个商场:吉知马区大厦(Bukit Timah Plaza)、美世界购物中心(Beauty World Plaza)、美世界中心(Beauty World Centre)和吉知马区购物中心(Bukit Timah Shopping Centre),享受那里的购物、餐饮和娱乐设施。公寓附近还有格林花威高尔夫球场(Champions Golf Course and Driving Range),让居民一展身手。
Mayfair Gardens公寓附近的购物中心
Mayfair Gardens公寓
拥有得天独厚的教育资源
Mayfair Gardens公寓附近教育资源丰富,可谓名校林立。
附近1公里范围内的幼儿园就有4家,
包括Little Ones Kindergarten (Bukit Timah)、Nurturing Roots Montessori Preschool、Glory Kindergarten和Arise Kindergarten。
1公里范围内的小学有美以美女子小学(Methodist Girls’ Primary School)和培华长老会小学(Pei Hwa Presbyterian Primary School)。这两所小学均被认为是名校,是许多家长心目中的理想小学。
附近1公里范围内的中学有美以美女子中学(Methodists Girls’ Secondary School)。公寓也靠近义安理工学院(Ngee Ann Polytechnic)和新加坡第6所公立大学新跃社科大学(Singapore University of Social Sciences)。
公寓附近还有众多的国际学校,如博伟国际学校(Dimensions International School)、新加坡瑞士学校(Swiss School in Singapore)、荷兰学校(Hollandse School)、伊顿国际学校(武吉知马上段校园)(Etonhouse Pre-School (Upper Bukit Timah))、新加坡韩国学校(Singapore Korean International School)和新加坡德国欧洲人学校(German European School等。这样,丰富的教育资源可以满足各年龄段居民的要求,让居民们无后顾之忧。

Mayfair Gardens公寓1公里范围内的名校培华小学
Mayfair Gardens公寓的投资潜能
距离Mayfair Gardens最近的公寓是100米外的99年地契公寓帝景园(Gardenvista)。据房地产中介公司ERA分析,帝景园的成交价在过去的15年(2003-2018)增长108.32%,在过去的10年(2008-2018)增长41.73%,在过去的8年(2010-2018)增长24.10%。
让我们在分析一下整个武吉知马区私人公寓的成交情况。在过去的15年里,武吉知马区私人公寓的成交价上涨了170.29%,乌节商圈和牛顿区的私人公寓成交价分别上涨了157.61%和159.68%,而整个新加坡私人公寓的成交价则只上涨了157.50%。由此可见,武吉知马区私人公寓在过去15年里上涨的幅度最大,投资回报率也就较高。
我们再来分析一下租金回报率。我们分析了过去一年里位于武吉知马区6栋公寓的租金情况。这6栋公寓是,Nottinghill Suites、Kap Residences、The Ford @ Holland、The Siena、The Ford @ Holland和Parvis,它们的租金分别为每平方尺(psf)新元S$4.22、3.72、6.34、4.82、4.69和6.34。分析表明,武吉知马区的这些公寓,其租金回报率均超过每平方尺(psf)新元$S3.5,取得较高的租金收益。
分析投资潜能的另一个需要考虑的因素就是投资房产的价格走势。最新一轮的降温措施于7月5日推出以后,根据新加坡国立大学发布的最近两个月整体房地产价格指数(NUS SRPI)预估数据,7月份整体转售价格指数为154.4,环比下跌0.5%;但8月份非有地私宅转售价格指数为155.5,环比上扬0.5%。
事实上,自2011年以来,政府总共推出过3次提高额外买家印花税(ABSD)措施(分别在2011年12月、2013年1月和2018年7月),但这三次的ABSD的提高并没有改变房价的走势。就拿最近一次的ABSD来说,政府明确指出,这个降温措施是要确保房价增长能与经济增长基本面吻合。据8月份的有关媒体报道,新加坡贸工部把全年经济增长预测维持在2.5%至3.5%。据商业时报《The Business Times》报道,尽管全球有些贸易摩擦升级,全球经济今年的展望依然看好,这样,新加坡的房产依然还有升值空间。另一方面,ERA分析表明,去年和今年有大量私宅集体出售,总出售量超过S$180亿新元,至少有6000户家庭将需要搬家寻找新住址,这些家庭将平均拥有通过集体出售获得的S$300万新币的资产。
另外,新加坡人的家庭年收入也明显增加,如月收入介于S$10,000-S$11,999,
S$12,000-S$13,999,
S$14,000-S$17,499,
S$17,500-S$19,999
和月收入超过S$20,000的家庭从2005至2017年分别增长137%,189%,302%,416%和477%,家庭总数分别达到101,902, 79,974, 107,062, 52,886和171,557。
这些家庭的购房能力明显提高。所有的这些数据表明,新加坡的私宅市场依然有升值的空间,综合许多房产分析师的分析,今年的房产价格总体将会增长3-12%。
另一方面,武吉知马区是新加坡私宅的高需求区,集体重建项目也相对较多。让我们分析一下与Mayfair Gardens项目具有某种程度可比性的8栋最近两年集体出售项目的成交价。这8栋公寓包括Mayfair Gardens, Fourth Avenue, Royaville, Hollandia, Toho Mansion, The Estoril, Tulip Garden和Olina Lodge,它们的每平方尺容积率(psfppr)分别为S$1,244, S$1,540, S$1,960, S$1,703, S$1,805, S$1,654, S$1,780和S$1,712。它们的预期售价将分别为每平方尺S$1,850, S$2,300, S$2,900, S$2,500, S$2,700, S$2,500, S$2,600和S$2,600。可见,Mayfair Gardens的集体出售成交价是最低的,其预期的售价也是最低的。
综上所述,Mayfair Gardens位于增长潜能较高的武吉知马区,具有较高的潜在租金回报,较低的售价,是投资的较理想选择。
户型设计和雅居欣赏
Mayfair Gardens由和豪利控股开发,由屡获大奖的DP Architects设计,灵感来自英国乔治亚建筑,采用低楼、低密、低调、高雅、高贵、高质量设计。新加坡豪利控股的执行主席兼执行长Ching Chiat Kwong表示Mayfair Gardens是豪利控股十年的项目。他相信,项目开发在设计、细节、空间规划、设施和景观方面都是迄今为止最高档的开发项目。仅有215个单位,该项目有55个设施,包括一个75米的游泳池和三个天空露台。Mayfair Gardens项目无论在建筑设计、石材选择和家电配备,还是在设施配备、艺术雕琢上,均不吝成本,结合新加坡的本土特征,打造高端维多利亚风情,再现英伦建筑艺术风格。

Mayfair Gardens公寓的观景台
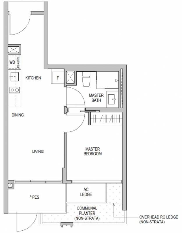
一卧室,合25套,套内面积46平方米(495平方尺)至60平方米(646平方尺),整套售价从S$938,000元起。特点是户型方方正正,布局合理,采用开放式厨房,无浪费空间,客厅相对独立,配备阳台。这样的户型非常适合夫妻情侣享受二人世界,以及专业人士和学生。除了自住,也适合出租给高端专业人士。

Mayfair Gardens公寓的一卧室平面结构图
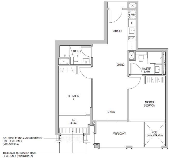
一卧室+书房,合64套,套内面积51平方米(549平方尺)至69平方米(743平方尺),整套售价从S$1,055,000元起。特点也是户型方方正正,布局合理,采用开放式厨房,无浪费空间。书房位于入口处,可充分利用空间,客厅配备阳台。这样的户型非常适合有一个孩子夫妇,以及专业人士和学生。除了自住,也适合出租给高端专业人士。
Mayfair Gardens公寓的一卧室+书房平面结构图
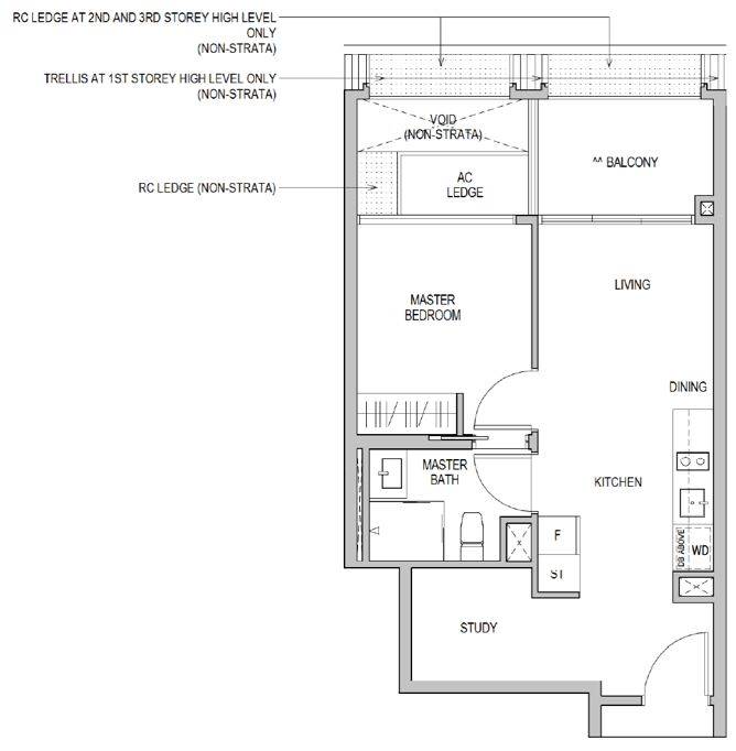
二卧室及二卧室+书房,合86套,套内面积65平方米(700平方尺)至90平方米(969平方尺),整套售价从S$1,395,000元起。特点也是户型方方正正,布局合理,采用开放式厨房,无浪费空间。两个房间均可放置双人床,客厅配备阳台。值得注意的是,有些户型采用封闭式阳台,增添了使用空间。书房位于入口处,可充分利用空间。这样的户型非常适合有一个孩子夫妇,以及专业人士和学生。除了自住,也适合出租给高端专业人士。

Mayfair Gardens公寓的二卧室平面结构图
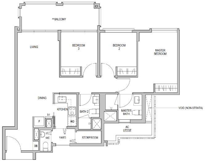
三卧室,合26套,套内面积93平方米(1001平方尺)至112平方米(1206平方尺),整套售价从S$1,928,000元起。特点是户型方方正正,布局合理,厨房与餐厅分开,并有储物间。三个房间均可放置双人床,主人房和客厅均配备阳台。这样的户型非常适合有二个孩子的夫妇,或与父母同住。除了自住,也适合出租给高端专业人士。

Mayfair Gardens公寓的三卧室平面结构图
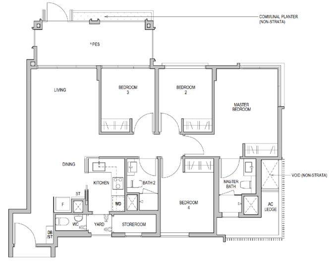
四卧室,合8套,套内面积113平方米(1216平方尺)至116平方米(1249平方尺),整套售价从S$2,308,000元起。特点是户型方方正正,布局合理,并有储物间。四个房间均可放置双人床,客厅和其中一间客房配备阳台。这样的户型非常适合有三个孩子的家庭,或与父母同住。除了自住,也适合出租给相应的专业人士及家庭。

Mayfair Gardens公寓的四卧室平面结构图
小 结
购买房产是新加坡乃至全世界的主要投资方式之一。长期而言,房产价格会随着经济增长而不断上升,其上升幅度受房产政策、国家发展规划、全球经济状况等影响。新加坡作为一个全球小红点,具有许多众所周知的优势,如稳定而高效的政府、和谐安定的社会环境、全球认可的教育体制等,其房产投资的增值潜能尤为显著。
Mayfair Gardens是一栋整体重建新公寓,沿用了原来公寓的名字,因为这个名字实在霸气,反映了新公寓的设计精髓,灵感来自英国乔治亚建筑,采用低楼、低密、低调、高雅、高贵、高质量设计。新加坡豪利控股的执行主席兼执行长Ching Chiat Kwong表示Mayfair Gardens是豪利控股十年的项目,在设计、细节、空间规划、设施和景观方面都是迄今为止最高档的。
仅有215个单位,该项目有55个设施,包括一个75米的游泳池和三个天空露台。Mayfair Gardens项目无论在建筑设计、石材选择和家电配备,还是在设施配备、艺术雕琢上,均不吝成本,结合新加坡的本土特征,打造高端维多利亚风情,再现英伦建筑艺术风格。
在售价方面,该公寓与其它可比项目相比,价位也明显较低,具有显著的增值空间。想要买房的朋友们,拿起手中电话,享受额外的VIP折扣。

如果觉得我的文章对您有用,请随意打赏。你的支持将鼓励我继续创作!