新加坡金融区里
万丈光辉,一抹清欢。
今天,新加坡金融区正经历一场革新与蜕变。许多著名工程项目如雨后春笋般冒起,如莱佛士码头一号、滨海湾金融中心和亚洲广场等相继矗立,正悄然改变周围环境与地貌。

果不其然,珊顿道五号将再度成为新加坡金融中心的枢纽,众人瞩目的焦点。傲然崛起的两栋大楼采取双峰建筑形式,分为二十三层的办公楼宇及五十四层的奢华宅邸,相互衬托,交相辉映。耀眼的建筑,独创的设计,傲视整个中央商业区,突显别样锋芒。

珊顿·云尚实践绿色家居建筑理念,把光线、空间和绿意完美融入其间。设计师从自然中获取灵感,结合五行元素的设计概念,巧妙运用源于大自然中鲜明形象与丰富结构,让建筑物宛如大自然的鬼斧神工,成功打造属于新时代的大都会高品质生活。
中心地带,枢纽所在。

中心地带
枢纽所在

珊顿·云尚位于新加坡滨海湾新商业金融区的中心位置,是打造世界级都市生活的理想聚点,亦是感受城市跳动脉搏的不二之选。其地理位置优越,处于由数百万新元打造的亚洲滨水城区 — 滨海湾中心。周围其他主要项目还包括将于2013年开业的五星级威斯汀酒店、滨海湾金沙、滨海湾游轮中心及滨海湾花园。
得天独厚的珊顿·云尚,交通条件四通八达,设有地下通道直通滨海湾环线广场和2013年开始通车的市中心地铁站。
此外,衔接全岛各地的莱佛士坊地铁转换站和丹戎巴葛地铁站也近在咫尺,为珊顿·云尚的便利交通锦上添花。中央高速公路、东海岸公园大道,以及计划在2013年启用的滨海高速公路,也将无隙贯穿珊顿·云尚的周边道路系统,确保交通便捷畅达。
如今,随着地铁汤申线珊顿道站的落成与启用,珊顿·云尚周围的未来交通将更为便利,无愧于市区黄金地段的美誉。

三个空中花园
一间健身房
一处释放身心灵的空间
珊顿·云尚倡导自然和谐的设计宗旨,设计师从大处着眼,由细节入手,从里至外将自然和谐主轴贯彻于设计理念。
其中,设在三个不同楼层的空中花园,以及位于第三十五层的海景健身房,就是最佳写照。
精心打造的空中花园层楼,以满足住户需求为前提,提供完善的设施,舒适的环境与轻松的氛围,是您松懈身心、健身娱乐、放空休憩或款待好友的理想聚点。在此俯瞰美丽的城市景观,感受宽敞的自我天地,让身心灵得到释放与慰藉。
LUXURI8(第8层)

人间天堂并非高高在上,而是触手可及,数步可抵。
踏上Luxuri8,纵身一跃入水畅游,享受温暖的阳光,消磨欢乐的时光。
周围环境闲适自在,设备齐全老少咸宜。这里,每处设计都别具匠心,每个转角都充满惊喜。


EPICURE (第24层)

珊顿·云尚与名厨兼美食顾问 Ryan Hong 通力合作,于精心开辟的 Epicure 楼层,重新诠释顶极生活。
筛选新鲜优质食材,打造户外用餐环境,让美食享受和身心感受,一再升华。从用餐选项的编排,厨房用具的挑选,到用餐空间的格局,一一流露无比的巧思与用心。品尝精致奢华餐饮,眼观城市风貌与无敌海景,人生如此,夫复何求?



名厨 RYAN HONG
美食烹饪顾问
名厨 Ryan Hong 倾其精湛厨艺与烹饪巧思,贴心打造 Epicure,予以住户非一般的生活品质。他身兼多职,凭一手好厨艺晋身电视名人、著名私厨和烹饪顾问。他对烹饪艺术十分坚持和讲究,对于烹饪环境、厨具用品和食材筛选具有严格的要求。且让 Ryan Hong 以他对食的热情和烹饪的用心,为您在“自家庭院”里带来美好的餐饮享受。
HAVEN on 34 (第34层)

位于第三十四层的空中花园,犹如喧嚣闹市中的一片幽谧净土。蔚蓝的天际,盎然的绿意,空中花园闹中取静,让您暂别城市生活的纷扰。
难得浮生半日闲,您或在此慵懒度日、或小憩片刻、或静心聆听,让飒飒风语和潺潺流水为您卸下一天的疲劳,达到身心灵的彻底放松。


ViTALIsE ON 35 (第35层)

高空健身房以全景落地窗设计为重点,采光充足,尽收美景。于此放松四肢,强健体魄,举目是一望无际的辽阔海景,为规律化的健身运动增添别样情趣。
此外,设有有氧运动区的健身室设备完善,让您通过各种器材活动全身筋骨,强健身体肌肉,在眺望四周美景的同时,练就健康身心和完美体态 。

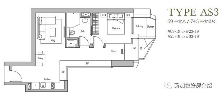
项目平面图
上阶(第36至 51层)

下阶(第9 至 23, 25 至 33层)

示意图
内容未完结,请点击“第2页”继续浏览。
套房





1 - 卧室


1 - 卧室 + 书房



2 - 卧室




2 - 卧室 + 书房





3 - 卧室









珊顿.云尚
内容未完结,请点击“第3页”继续浏览。

珊顿





如果觉得我的文章对您有用,请随意打赏。你的支持将鼓励我继续创作!