
靠近地铁站
女皇镇地铁站/ Queenstown MRT
占地面积
21,100平方米
房型
1房、2房、3房、4房
发展商
南山集团和龙光地产
预计交房时间
2022年
总共单位
1259个
配套公寓设施
80项
楼层
2栋40层和1栋38层
项目优势卖点:
(1) 优越的地点女皇镇,步行到地铁站只需3分钟,成熟住宅区,女皇镇的组屋市场很抢手的
(2) 由于项目被隔壁的公寓挡住,房子都是安静朝向同时可以享受地铁带来的交通便利
(3) 10分钟车程即可以到乌节路和中央商业区CBD
(4) 户型设计方正,善于利用空间的格局,连两房的带半封闭式厨房
(5) 项目采用大气的15米挑高设计,最低楼层单位高出地面5层左右,享受更好视野
(6) 平行建筑设计没有互相阻挡,享受180度漂亮景观,武吉知马山景、中央商业区景、或者海景朝向
(7) 公寓配套设施数量众多,多达81项,物业管理费低
(8) 发展商定价合理,入场价格好,适合投资兼自住
地理位置介绍
从尚景苑步行约3分钟就可以到女皇镇地铁站, 女皇镇地理位置优越,到乌节路和中央商业区只需约十分钟车程,搭乘地铁也只需10分钟左右,2-3站地铁到Buona Vista/One North商业办公区. 女皇镇是新加坡政府打造第一个政府组屋区,生活配套设施成熟,所以女皇镇一带的组屋转售价格在整个新加坡最高的,这一带新预购组屋经常是供不应求,出现一个单位有4-5个人抢的情况,多次成交新加坡组屋最高价格记录,最近早报新闻报道女皇镇组屋以价格110万售出,注意5房式组屋不是5个房间,而只是3个房间哦,买主全现金成交。


只需4站地铁到达中央商业区CBD, 2站地铁到波那维斯达站/BuonaVista MRT(地铁转换站,可转搭黄色的环线) ,3站地铁到达One North MRT,开车6分钟即可到达One North科技园,办公楼包括Biopolis, Fusionpolis和Mediapolis ,其中Biopolis办公楼主要是生物制药科技公司,主要集中医药研发这块。Fusionpolis是第一个在OneNorth一带推行“工作,居住,玩乐一起理念”的,主要是资讯科技的研发中心,Mediapolis办公楼是为国际市场提供顶级质量的数字传媒,潜在的租客需求哦.
生活便利、购物方便
有凯德旗下的大型商场TheStar Vista,驾车3分钟就可前往宜家/Ikea购物,Achorpoint Mall和Queensway ShoppingCentre(主打卖体育用品),还有Tiong BarhuPlaza ,8分钟车程即可到邓普西洋房区Dempsey Hill享受有特色的美食,酒吧喝酒打发休闲时间

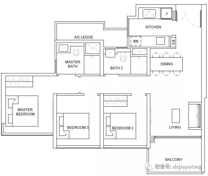
单位和户型分布:
从下图可以看出,总共1259个单位,有1房,1+书房,2房普通型,2房豪华型,2+书房,3放普通型,3房豪华型,4房,不同户型供大家选择,适合投资或者买来自住。
据说样板房最小普通房都有8.4平方米,房价宽敞舒适,可以轻松放双人床,相比一些项目的普通房才6.5平方米实在好多了。还有2房开始就有封闭式厨房,相比一般小区2房采用开放式的设计,该项目的2房带封闭式厨房是亮点。
项目设计介绍:
由于项目占地面积大,多达21100平方米,采用地面挑高的设计,这样保证80%地面都可以用来做小区配套设施、绿化等,多达80多种公寓配套设施供业主使用,拥有多达7个泳池和热带雨林景观。一共有三栋楼,所有单位都是南北向,采用平行的建筑设计,无呼吸阻挡,视野开阔,180度景观,有四种不同的景观,中央商业区景观,南部山脊景观,海景,武吉知马景观。










女皇镇的Dawson区大转变
政府一直继续不断打造新的生活配套设施,如下图中的Site A会建一个楼包括19个店铺,熟食中心,超市,建屋局女皇镇分行等。Site B会建一个楼包括迷你超市,3个店铺,小孩托儿所,老人联络所等。Site C,D,E也有很多店铺,托儿所等。由于Dawson这一带新建很多漂亮的新组屋,生活配套设施自然就会更完善.
4房样板房照片:




户型图介绍:
1房,41平方米/441平方英尺, 价格89.9多万起,已卖到高楼层24楼

1+书房户型,47平方米/506平方英尺,带一个小书房,价格96.9万起

2房普通型,面积介于624~872英尺,有三种不同户型,带封闭式厨房,价格111.2万起

2房豪华型,63平方米/678~904平方英尺, 有两种不同户型,居然带封闭式厨房,价格116.9多万起
2+书房,面积764~980平方英尺,厨房和卫生间居然带窗户,价格123.5万起

3房普通型,82平方米/883平方英尺,价格163.2万起(高楼单位)

3房豪华型,91平方米/980平方英尺,带保姆房,每个房间都可以双人床,户型设计方正,价格170.2万起,30楼高层单位

3房豪华型,98平方米/1055平方英尺,带保姆房,每个房间都可以双人床,价格162.9万起
4房豪华型,125平方米/1345平方英尺,房间够大都可以放双人床,有个小主人房在房子另外一侧,方便接待亲人或客人,价格217.9万起

最后来个投资小贴士:
现在名下有组屋的屋主,需要想办法在自己年轻时从组屋提升到公寓,政府一直不断强调组屋是来自住的。如果要投资的话,还是要学会在年轻时提升到买公寓,相当于给您自己以后养老时留了一个资产,或者是帮您储蓄。随着年龄增加,由于贷款年限缩短,贷款数目减少,难度会相应增大。要如何提升买公寓?组屋是该保留还是卖掉?如何合理避开额外印花税?欢迎加下面微信咨询我.
作者个人简历:
2002年拿新加坡政府奖学金来新加坡深造,已经定居新加坡15年多,熟悉中国和新加坡的国情,现任职于新加坡股票交易所SGX上市企业,新加坡最大的地产公司之一ERA地产公司担任高级营销总监,从事房屋经纪行业8年多,已经完成数百宗房地产交易,成交的房屋价值高达新币上亿元,服务过数百位中高档客户,广受客户们好评。包括企业家,企业高管,中小型公司老板,房地产发展商,新移民,教授,医生等等。
熟悉私人公寓,商业地产,组屋的交易流程,全面了解房屋贷款,协助顾客办理好贷款,律师办理房产相关手续等,代理全岛各地项目,提供新加坡任何公寓楼盘和商业地产买卖投资服务,买私宅无任何经纪费用。
感谢各位客户朋友的支持,本人在公司多次获得顶级销售奖,提供诚意十足,细心周到的为客户服务,所以收到客户们的广泛好评,服务好任何客户是我的最重要原则,欢迎买家或卖家联系我.
电话:65-91525858

如果觉得我的文章对您有用,请随意打赏。你的支持将鼓励我继续创作!