摘 要
MeyerHouse公寓位于新加坡东区第D15邮区的丹戎加东(Tanjong Katong),是罕见的位于代表中档公寓的其他中央区(RCR)的超豪华公寓。
MeyerHouse公寓占地109,630平方尺(17,709平方米),将建造1栋5层楼高低密度建筑,提供10套三卧室、40套四卧室和6套阁楼单元,合56套单位,面积介于1,862-5,587平方尺(173-519平方米)。该公寓位于私人住宅区,旁边就是公园游乐场,并紧靠东海岸,临海而居。
MeyerHouse私人公寓属罕见的新加坡东海岸超豪华永久地契新公寓,是东部的纳森华庭(The Nassim)升级版。
公寓位于市区边缘,6分钟步行至丹戎加东地铁站(Tanjong Katong MRT),周边购物娱乐设施齐全,如步行即可抵达加东购物中心(Katong Shopping Centre)、加东村(Katong Village)和I12加东(I12 Katong)等,附近美食唾手可得,如惹兰巴株大牌4A巴刹与熟食中心(Blk 4A Jalan Batu Market and Food Centre)等。
MeyerHouse公寓也是地道的学区房产,附近教育资源丰富,名校林立,如一公里范围内就有丹绒加东小学(Tanjong Katong Primary School)等。MeyerHouse公寓由著名发展商华业集团(UOL Group)和Kheng Leong Co合资共同开发,由享有国际声誉的名家设计,具质量和信誉保障。该公寓每个单元均宽敞舒适,均配备私人电梯,是东部豪宅的新地标。
前 言
最近,新加坡又榜上有名了。2019年QS世界大学排名公布,新加坡国立大学排名全球第11位,亚洲大学中卫冕冠军!
今年首季,Skytrax公布2019全球最佳机场排名,新加坡樟宜机场排名第一,连续七年荣登“世界最佳机场”的榜首,同时也是第10次获此殊荣。
另一个重磅新闻是,耗资17亿元,在第一搭客大厦旧停车场原址建造的星耀樟宜已于4月17日正式开业,首日就吸引了近26万人次顾客体验。星耀樟宜是一个集游乐胜地、购物休闲、住宿餐饮、花园景观和航空设施于一体的新加坡的又一个地标性建筑。这里有40米的世界最高室内瀑布“RAIN VORTEX”、有25米高的“天空之网”、有250米长的蹦跳网道、有游戏迷们最不能错过的“精灵宝可梦”首家海外专卖店、有全纽约最好吃的汉堡”SHAKE SHACK、有世界首家海鲜快餐Pink Fish、还有邵氏星耀樟宜电影院和客舱美容住宿等。
还有,新加坡综合度假胜地圣淘沙名胜世界和滨海湾金沙也将投入90亿新元,发展赌场以外的娱乐景点和会展设施包括1000间全套房塔楼、15000个座位的竞技场以及扩建新加坡环球影城等。
还有政府最近推出的城市规划愿景等,好消息永远说不完。但会告诉每一个人,新加坡永远是一个充满活力、吸引全球的小红点。这不,哈佛网红,Nas Daily的博客亚新(Nuseir Yassin,昵称Nas)来新加坡定居了。
事实告诉您,新加坡是世界富豪的首选居住地之一,新加坡已建造风格各异的优质豪宅吸引这些富豪们。这里就为您介绍一栋全新概念的豪宅,MeyerHouse公寓。这座公寓并非坐落于一般定义的豪宅地段,而是位于东海岸的第D15邮区。
豪宅卖点
永久地契,永恒保值;
在110,000平方尺(10,219平方米)的土地上,仅建造56套超大面积住宅,宽敞舒适;
所有单元均拥有私人电梯,由停车场直达豪宅;
附近的Meyer公园游乐场已由顶尖设计公司重新设计,将在公寓建成之时完工(TOP);
纳森华庭(The Nassim)豪宅升级版;
由顶尖建筑师、室内和景观专才设计,实现完美三创意的有机结合(Three Creative Minds);
公寓位于麦雅路区,是一个受本地和外国社群青睐的的高尚私宅区;
紧邻建设中的丹戎加东地铁站(Tanjong Katong MRT)和东海岸公园;
附近名校林立,教育资源丰富;
低密度、五层高建筑,展现英国景观的花园设计;
著名开发商UOL开发,有信誉和质量保证。

MeyerHouse豪宅公寓的效果图
豪宅位置剖析
MeyerHouse公寓属于新加坡第D15邮区的丹戎加东(Tanjong Katong),位于新加坡东区的麦雅路128号(128 Meyer Road)。公寓的旁边就是正在重建的Meyer公园游乐场。公寓位于私人住宅地段,如周围还有四个私宅围绕,包括Seven Crescent、The Makena、The Sovereign和The Meyerise。四周宁静舒适,绿意盎然。
公寓的位置非常优越,距离正在建设中的丹戎加东地铁站(Tanjong Katong MRT)不到500米,只有6分钟步行距离。经由此地铁站可直达珊顿道(Shenton Way)、乌节路(Orchard Road)以及未来新柔地铁(Johor Bahru-Singapore Rapid Transit System)的终点站兀兰北地铁站(Woodlands North MRT)。公寓200米范围内还有巴士路线12、14、14A、196和196A路等,协助居民出行。驾车人士可从东海岸公园大道(ECP),直通到滨海高速公路(MCE)和泛岛高速公路(PIE)。10分钟抵达中央商业区、12分钟抵达滨海湾、13分钟至樟宜商业园、14分钟到达抵达乌节商业圈、15分钟抵达樟宜机场、19分钟抵达纬壹科技园。

MeyerHouse豪宅位于建造中丹戎加东地铁站附近
(Tanjong Katong MRT)
MeyerHouse公寓附近商场林立。距离一公里左右的购物商场包括加东购物中心(Katong Shopping Centre)、加东村(Katong Village)、I12加东(I12 Katong)、Guilemard Village、Katong Plaza、Katong V和Roxy Square等,这些商场内还设有NTUC平价超市、巨人超市和冷藏超市等。项目附近也有众多主要的熟食中心如热兰巴株大牌4A巴刹与熟食中心(Blk 4A Jalan Batu Market and Food Centre)、老机场路51座巴刹与熟食中心(Old Airport Road Block 51 Market & Food Centre)、Kallang Estate Fresh Market & Food Centre、马林百列中心大牌84巴刹与熟食中心(Blk 84 Marine Parade Central Market and Food Centre)等,为居民提供多样化选择。

MeyerHouse豪宅附近商场林立、美食遍地

MeyerHouse豪宅位于东海岸公园附近,临海而居
学区豪宅
新加坡虽小,教育质量却在世界上名列前茅。高质量的大学教育源于高质量的小学和中学教育。MeyerHouse公寓是一个名副其实的的学区房。公寓附近1公里范围内的幼儿园就有5家。一公里范围内的小学有丹绒加东小学(Tanjong Katong Primary School),Kong Hwa小学也在附近。附近的中学有德明政府中学(Dunman High School)、中正总校(Chung Cheng High School (Main))和丹绒加东女子中学(Tanjong Katong Girls’ School)等。附近还有新加坡管理大学(Singapore Management University)、采士华国际学校(东区校园)(Chatsworth International School (East Campus))和加拿大国际学校(丹绒加东校园)(Canadian International School (Tanjong Katong Campus))等。这样,附近的教育资源可为各年龄层的公寓居民提供全方位的服务。另外,由于交通便利,居民还可享用较远地方的优质教育资源。
内容未完结,请点击“第2页”继续浏览。
MeyerHouse豪宅附近1公里范围内的小学
豪宅特色-引领东海岸豪华生活进入新时代
MeyerHouse公寓由华业集团(UOL Group)和Kheng Leong Co合资的Secure Venture Developments (No. 1)开发。华业集团创建于1963年,是新加坡乃至全球富有盛誉的房地产发展商之一,业迹跨越亚洲、北美和大洋洲。创立56年来,华业集团在国内外荣获众多奖项,如BCI Asia Top 10 Developer Awards (Singapore,2012, 2013, 2015)等。
华业集团和Kheng Leong曾经共同开发过一座顶级豪华公寓兰馨园居(Nassim Park Residences)。该公寓成功地将经典设计与现代生活气息融为一体,打造出时尚鲜明的线条,与周围不规则的自然轮廓形成鲜明对比。2015年4月,该公寓五楼的一间639平方米(6880平方尺)的单位以$2250万新元(每平方米$35208,每平方尺$3,271)成交。该公寓的单位尺价均保留在S$3,000元以上,成交价均超过千万。如今,这两家公司又强强合作,打造另外一间豪华住宅。

MeyerHouse豪宅入口

MeyerHouse豪宅的设计灵感来自这类建筑

MeyerHouse豪宅

MeyerHouse豪宅的停车大厅
MeyerHouse公寓的设计灵感来自城堡形式的建筑,凸显其庄严优雅和尊严。该公寓由新加坡最富国际名声的建筑师事务所WOHA Architects设计,由碧山-宏茂桥公园的景观设计师,德国风景建筑公司Ramboll Studio Dreisetl(RSD)负责景观设计,由多伦多创办的国际设计公司Yabu Pushelberg(设计纽约四季和Moxy时代广场)负责公寓的内部设计。也就是说,MeyerHouse公寓采用创造性思维三重奏(Three Creative Minds)模式来营造奢侈生活的新标准,迎接豪华生活新时代,创造出一个由三位世界知名大师设计的新作品。这是一个独一无二的艺术建筑。著名西方艺术家马塞尔·杜尚 (Marcel Duchamp,1887-1968)说,艺术永远是个性的问题(Art is always a matter of personality)。这句名言正是这座豪宅的设计精髓。

MeyerHouse豪宅通往地面层的花园式楼梯(I)

MeyerHouse豪宅通往地面层的花园式楼梯(II)
正如华业集团执行长Liam Wee Sin先生所说,麦雅路(Meyer Road)是一个非常吸引人的路段,而MeyerHouse又位于公园旁边,是一个发展豪华而宽敞住宅的好地方。在新加坡,位于乌节路附近的纳森华庭(The Nassim)属超豪华公寓,位于纳森路的黑白洋房区。纳森华庭结合了旧殖民时代黑白洋房的建筑特色和摩登的公寓设施所激发出的独一无二的风格。这个5层楼高的建筑,每个单位都选用高档的品牌电器,采用意大利卡拉拉大理石装饰起居室和用餐空间,橱柜采用永恒的高光乌木饰面,宽敞的主浴室配有同样的斜角卡拉拉大理石。而MeyerHouse公寓也将是5层楼高,采用高档精致材料和品牌家私,打造宽敞、豪华、私密的居住环境,因而被比喻成东部的纳森华庭。

MeyerHouse豪宅社交俱乐部
MeyerHouse豪宅社交俱乐部入新时代
事实上,MeyerHouse公寓附近近年来也推出了一些新公寓,但这些公寓均属于高密度公寓,大部分单元的面积偏小,较大面积的高档私宅并未推出,这与这个路段的优越地理位置不相匹配,而这个东部的纳森华庭的推出将弥补这个遗憾。该项目的卖点之一是景观设计。通过不同景观的多样化以及起伏的地型来设计花园,旨在诠释和唤起真正原创的英国风景。内部空间的设计注重豪华和高品位以及高度隐秘的私人空间。MeyerHouse公寓在饰面质量方面也表现出色,提供慷慨的生活空间。所有居民都可以通过私人电梯大厅进入他们的家。总之,所有的设计和努力,旨在打造一个全新的奢侈品牌,为新加坡奢侈品领域树立新的标杆。

MeyerHouse豪宅的休闲花园

MeyerHouse豪宅的私人电梯
升值潜力
作为一栋豪宅,公寓的升值潜能也是买家需要考虑的因素之一。豪宅的升值潜能与公寓本身的设计与建造质量有关,也与公寓的地理位置、地契类型以及出租回报率等有关。MeyerHouse公寓位于麦雅路(Meyer Road),是一个具有较长历史的路名,且旁边就是历史悠久的公园,是公认的发展豪华而宽敞住宅的好地方。该公寓距离地铁站也只有不到500米,四周购物、娱乐、健身等设施齐全、教育机构林立,资源丰富。另外,公寓由著名发展商开发,由顶尖园林设计师设计,由出类拔萃的室内设计师主刀,采用优质建材、品牌产品打造,是现代感十足的城堡型新公寓,开创了东部豪宅的新纪元,具备了进一步升值、保值的内在条件。我们再来与周边新公寓的建筑风格作一比较分析。可以看出,MeyerHouse周边的新公寓或在建公寓主要以紧凑型公寓为主,宽敞舒适的屈指可数,这在无形中提高了MeyerHouse的升值潜能。
另外,MeyerHouse公寓附近还有至少3辐地段已列入整体重建计划。它们是Parkway Mansion、Amber Park、和Albracca (One Meyer)。它们的每平方尺容积率(psf ppr)分别为新币S$1,536、S$1,515和S$1,409,除了One Meyer,其余两栋的每平方尺容积率均比MeyerHouse (S$1,429)的高,这也从另一个角度说明MeyerHouse公寓的增值潜能。最后,MeyerHouse拥有永久地契,也为保值、升值提供了强有力的保障。
户型设计与豪宅欣赏
MeyerHouse公寓由原来的Nanak Mansions发展而来。华业集团以S$2.01亿元买下这个项目作重新开发。该地段属于新加坡东区的第D15邮区,占地109,630平方尺(17,709平方米),将建造1栋5层楼高低密度建筑,提供10套三卧室、40套四卧室和6套阁楼单元,合56套单位,面积介于1,862-5,587平方尺(173-519平方米)。拥有85个停车位和2个供残障人士而设的停车位。公寓精心设计、采用高质量建材及高品位家私,让居民真正享受高档豪华生活。所有居民都可使用自己专用的大厅,从地下停车场通过私人电梯进入心仪的住所,确保安全,绝对拥有私密空间。
内容未完结,请点击“第3页”继续浏览。
MeyerHouse豪宅的客厅

MeyerHouse豪宅的卧室

MeyerHouse豪宅的卧室
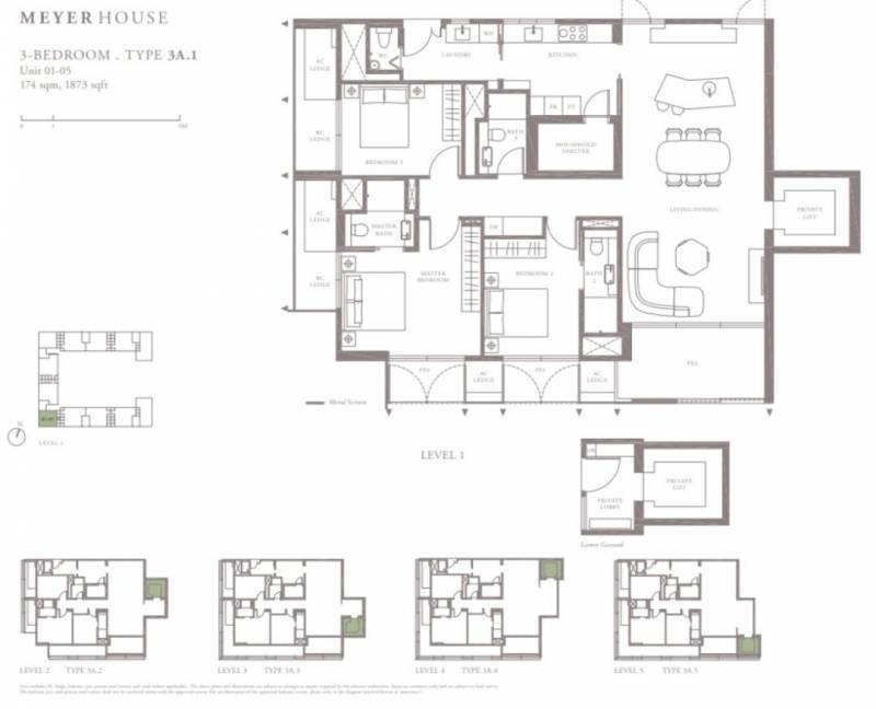
三卧室,套内面积174平方米(1873平方尺),特点是户型方正,布局合理,拥有私人电梯。三个房间均可放置双人床,每个房间均配备宽敞的衣柜。厨房宽敞,还有专门的洗衣间。客厅与餐厅共享空间,客厅还配备全封闭阳台(Private Enclosed Spaces, PES),主人房和其中一间普通房也配备PES。这样的户型非常适合有两个孩子的家庭,或希望与父母同住的家庭及相应的专业人士。

MeyerHouse豪宅的三卧室户型图
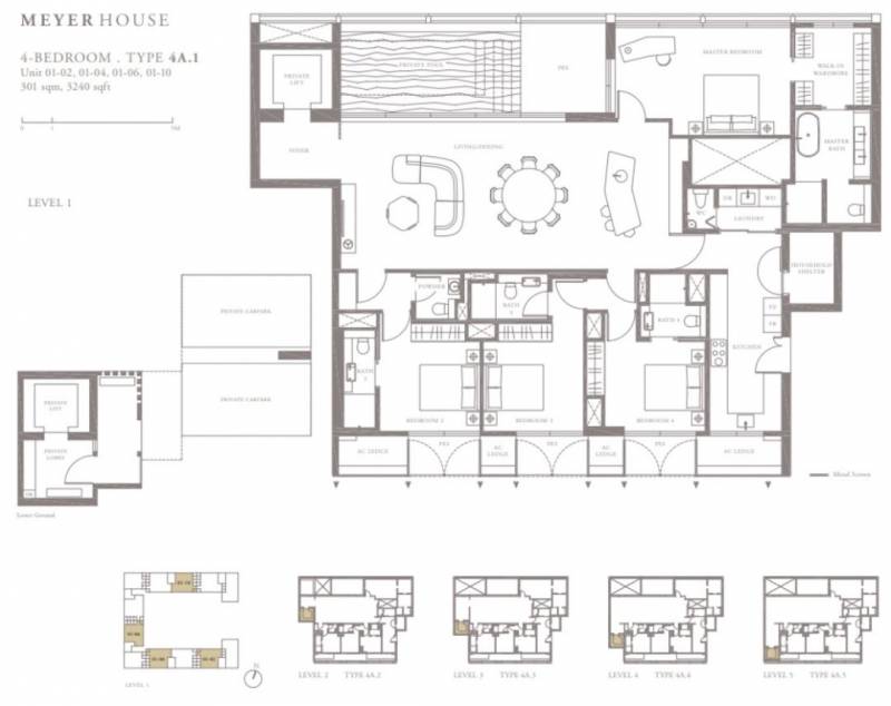
四卧室,套内面积301平方米(3,240平方尺),该户型是MeyerHouse公寓的主要房型,是一个超大气的设计,豪华四卧室配备私人电梯。厨房相对宽敞,并有专门的洗衣间和储藏间。餐厅与客厅相当宽敞,并配备私人泳池和阳台。主人房还配备一间步入式衣柜,其余三间房均配备一个内置衣橱,所有房间均配备独立卫生间,并有各自的全封闭式阳台(PES)。主人房配备大型浴缸。这样的户型很适合有多个孩子或与父母同住的家庭,或出租给相应的高端人士。

MeyerHouse豪宅的四卧室户型图
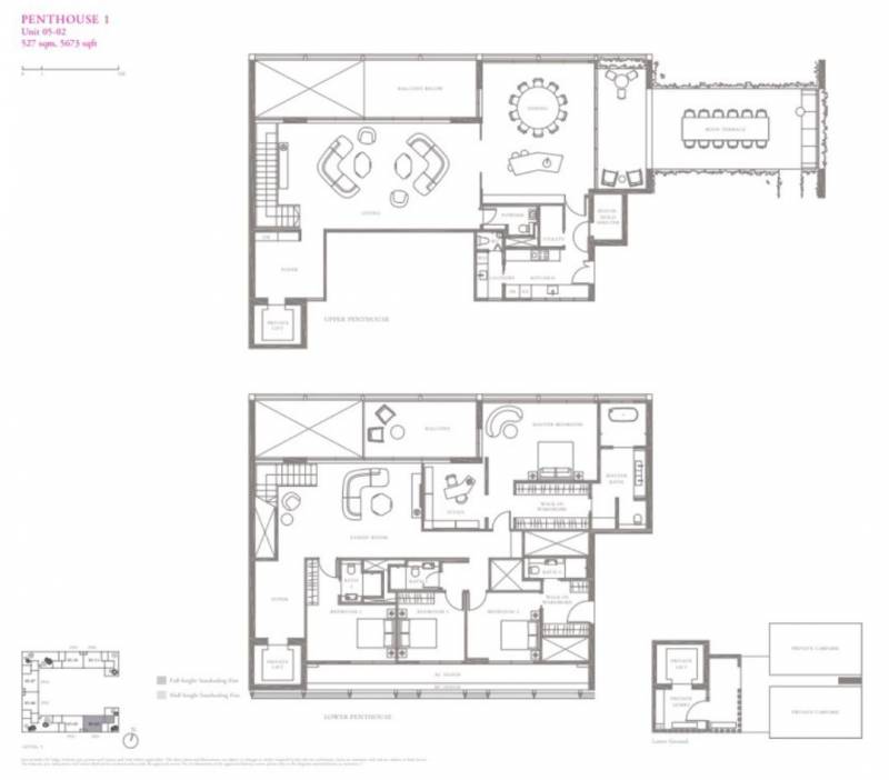
阁楼单元,套内面积527平方米(5,673平方尺),这也是一个超大气的设计,并配备私人电梯。分上下两层。底层用于住宿和家庭娱乐,顶层是厨房、客厅和餐厅。干湿厨房完全分开,厨房相当宽敞,还配备储藏间和卫生间。和4卧室单元一样,主人房还配备一间步入式衣柜,其余三间房均配备一个内置衣橱,所有房间均配备独立卫生间,主人房配备大型浴缸。住在阁楼单元,可欣赏全方位景色,在迷人的风景中看着天上星星就餐。这样的户型很适合有多个孩子或与父母同住的家庭,或出租给相应的高端人士家庭。

MeyerHouse豪宅的阁楼单元户型图
小结:


如果觉得我的文章对您有用,请随意打赏。你的支持将鼓励我继续创作!