位于第14区的友诺士区(Eunos),是属于新加坡的中央边缘区RCR。位置是坐落在沈氏道(Sims Avenue)。该项目的所在地正是在2017集体出售成功的私有化的中等入息公寓Eunosville。东景苑是由 MCL地产(MCL Land)所开发的,所处地段占地约34,997平方米,在新加坡属于面积大的地块,容积率为2.8,总共1399个单位,是属于99年地契。
东景苑项目简介 地址:900-916 Sims Avenue(900-916沈氏道) 发展商:MCL Land(MCL地产) 地契:99 年 预计完工:预期 2022年12月31日 总面积:约 34997平方米 总单位数:1339套私宅单位 和 5间商铺 户型: 1卧:41-51 平方米 1卧+书房:48-58 平方米 2卧:54-80 平方米 2卧+书房: 77-95 平方米 3卧:84-112 平方米 4卧:104-124 平方米 5卧:130-149 平方米 商铺:61 平方米

为什么要购买东景苑?有什么卖点呢?
1.交通便捷,四通八达
东景苑距离友诺士地铁站(Eunos MRT)非常靠近,步行约3分钟就能抵达。该地铁站营运的是地铁东西线,可直接通往西部的裕廊和在东部的巴西立。居民也只需乘搭一个站就能抵达巴耶利峇地铁转换站(PayaLebar)。居民可在巴耶利峇轻易转换到地铁环线(Circle Line)。这地铁线可以直接带住户到搭新加坡其他地区如荷兰村(HollandVillage)和港湾 (Harbourfront)地铁站。而对驾车人士,从东景苑到中央商业区或乌节路只需要10到15分钟的车程,也非常靠近加冷-巴耶利峇高速公路(KPE)和泛岛高速公路(PIE)。这两条高速公路可轻易通往其他高速公路,为居民带来交通方便。此外,EunosMRT旁边还有一个公共汽车转换站,为小区居民提供更多交通选择。


2. 购物商场聚集,满足日常生活所需,政府商业区规划,潜力巨大
坐落在巴耶利峇地铁转换站旁边的巴耶利峇中心(Paya Lebar Quarter)将会发展成为一个繁华和充满活力的商业中心。这里将会聚集办公、零售、酒店和便利的公共设施于一体成为辅助中央商业区的角色。这将为东景苑的居民带来许多购物、用餐和娱乐设施。
我们位于Paya Lebar区域中心的边缘,这是URA总体规划的一部分,旨在将该地区转变为新加坡的商业中心之一,以及一个即将到来的生活方式社区。Paya Lebar地铁站的巴耶利峇广场(Paya Lebar Square)已经开始复兴,从ParcEsta出发的一站地铁站。Paya Lebar Quarter将很快完工,并且非常希望成为最新的时尚和凉爽的地方,将城市风格的生活与东方氛围融为一体。
购物中心包括One KM Mall,PayaLebar Square,Singpost Center,i12Mall,Parkway Parade,Bedok Mall,Bedok Point


3. 学校云集,为您孩子的成才之路保驾护航
附近的学校如下
Eunos Primary 友诺小学— 700米
Haig Primary 海格女校— 750米
Maha Bodhi Primary学校菩提小学— 1060m
Tanjong Katong Primary 丹绒加东小学— 1488m
CHIJ Katong Primary 圣婴加东小学— 1565m
Kong Hwa School 光华小学— 1800m
Tan Nan Primary道南小学— 1810m
国际学校如查茨沃斯国际学校(东校区)(Chatsworth International School East Campus)
加拿大国际学校(丹绒加东校区)(Canadian International School (TanjongKatong Campus))
环球印度国际学校(东校区)(Global Indian International School (EastCoast Campus))也是投资者可考量的重要因素。
4.大型新加坡开发商旗下项目
MCL Land是新加坡领先的房地产集团,作为香港置地控股旗下怡和洋行集团的成员,我们在过去50年间在新加坡和马来西亚建立优质住宅的历史悠久。我们在新加坡和马来西亚拥有广泛的优质住宅物业组合,通过超过15家子公司和联营公司持有。
我们在新加坡完成了许多标志性项目,包括Margaret Ville。其他已完成的项目包括LakeVille,Lake Grande,J Gateway,Sol Acres,Hallmark Residences,Ripple Bay,Palms @ Sixth Avenue,Terrasse,Uber 388,Este Villa,TheEstuary,D’Mira,Parvis,The Peak @ Balmeg,D’Pavilion,Waterfall花园,Hillcrest别墅,Tierra Vue,Fernhill,Esta,Mera Springs,TheGrange,Calrose,Mera East和The Metz。
香港置地是一家上市的领先物业投资,管理及发展集团。香港置业成立于1889年,业务以卓越,诚信和合作为基础。集团拥有并管理超过850,000平方米。亚洲主要城市的优质写字楼和豪华零售物业,主要在香港,新加坡和北京。香港置地的物业吸引了世界上最重要的公司和奢侈品牌。
2. 项目采用高档品牌电器
发展商为了保证项目的质量,厨房电器如炉灶、油烟机、冰箱、洗衣机、酒柜都采用来自意大利的SMEG品牌,德国品牌Handsgrobe卫浴和水龙头,还有采用来自希腊的大理石地板。采用品牌电器,地板,品质保证,让您住得舒服、安心、省心,无后顾之忧。

漂亮小区图片大放送,供您欣赏:




漂亮样板房照片一览:
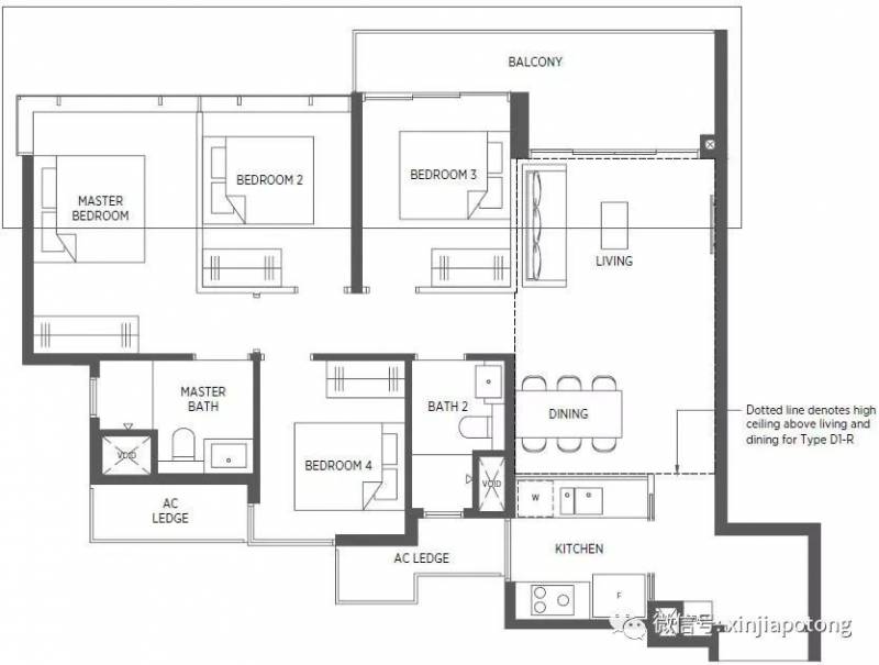
宽敞的客厅,户型布局很合理




连次卧的卫生间都这么潮流,爽!

东景苑的1399个豪华单位各具特色,一卧室至五卧室单位一应俱全,其中:
一卧室单位,套内面积39平方米/420平方英尺起,售价73.6万新币起
两卧室单位,套内面积59平方米/635平方英尺起,售价101.4万新币起

三卧室单位,套内面积84平方米/904平方英尺起,售价137.3万新币起

四卧室单位,套内面积104平方米/1119平方英尺起,售价175.3万新币起

五卧室单位,套内面积130平方米/1399平方英尺起,售价221.2万新币起
楼盘综合点评:
东景苑项目采用高档品牌电器和希腊的大理石地板,使得整个房子档次自然就高级,家门口就是友诺士地铁站,去市区或者去机场出国旅行都方便,靠近遛娃好去处东海岸公园,还有东海岸的美食区,餐馆林立,周围衣食住行都方便,房型户型选择范围广,从一卧室到五卧室,投资和自住皆宜,总有一款适合您。还有一点我觉得项目采用新加坡著名的建筑设计公司P&TConsultant PTE LTD和园林绿化设计公司Ecoplan,户型布局合理,本人最喜欢他的2+书房和3房的户型,每个房间够大,可轻松放下双人床,主卧室就更大气了,还可以放一个梳妆台。项目配套设施就更不用说了,有多达50多项公寓配套设施。有兴趣朋友,尽快加我微信预约看房时间哦。
新加坡房地产市场走势
9月份有数个新私宅项目推出市场带动买气,销量环比劲升51.1%至932个单位。市区重建局10月15日公布的新私宅销量数据显示,上个月的销量同比增加41.9%。新私宅销量上升一方面原因是因为集体出售屋主购买替代房子,而这些屋主受到贷款与估值比率(LTV)顶限的影响较小。另一个原因则可能是房地产降温措施引起的“反射性反应”(knee-jerk reaction)已逐渐消退,说明买家已逐步接受新措施并开始欣然进场。
微信号:zhangqiong046456 电话:65-93397258
房产作者介绍 张琼(Linda),新加坡最大房产经纪公司Huttons市场部高级董事,拥有丰富的房产行业经验,已入行热爱的房地产行业约8年.全心全意为客户考虑,致力于协助国人新加坡置业,秉著细心周到的服务态度,以客户利益为出发点,诚信待人。服务过数百位中高档客户,广受客户们好评。包括企业家,企业高管,中小型公司老板,新移民,房地产发展商老板等等。
一个电话过来就了解全岛各地段的项目,总有一款适合您!不跟买家收取中介费,专车接送看房,公司代理全岛各地项目
为什么选择我?本人对市场项目很熟悉,可以更加专业帮您找到适合的单位,节省你看房所需花的时间,可以带您看全岛各地的项目,只选适合您的好项目.
协助您办理银行贷款(外国人可贷款),房屋推荐,律师咨询等,值得客户信赖的房屋经纪人。
总以专业的眼光推荐适合客户需求的房屋项目,始终客户优先.
欢迎需要买房或者卖房的朋友添加我的微信号(扫描以下二维码)
如果觉得我的文章对您有用,请随意打赏。你的支持将鼓励我继续创作!