
国浩房地产有限公司,简称国浩房地产(英语:GuocoLand Limited,SGX:F17、OTCBB:GUOCY),属于香港上市公司的,国浩集团(0053.HK)旗下公司,
国浩房地产有限公司(简称为“国浩房地产”)于1978 年在新加坡证券交易所上市,作为一家首屈一指的亚洲房地产公司, 其经营业务地区包括新加坡、中国、马来西亚及越南。2017年国浩房地产标记其里程碑式的扩张。通过与绿盛世发展集团有限公司的战略合作伙伴关系,国浩房地产拓展至亚洲外的英国和澳大利亚新的市场。
总部位于新加坡,国浩房地产及其附属公司(简称为“集团”)的主要业务为房地产开发、房地产投资、酒店经营、物业管理以及与之相关的业务。国浩房地产专注于通过其房地产开发、投资及管理业务实现公司的可扩展性、可持续性及其在核心市场的增长。在亚洲区域,集团的业务主要包括住宅、酒店、商业、零销、以及综合体开发项目。截至2018年6月30日,集团的总资产达105.0亿新元。
在新加坡,集团已成功开发了35个住宅项目累计约1万间公寓和住宅和成功开发了其旗舰综合发展项目丹戎巴葛中心。这座雄心勃勃的“垂直城市”集商业、住宅、零售、酒店和市区公园于一身,作为全新的区域地标。在中国,集团已竣工和开发中的房地产项目遍布多个主要城市如北京、上海、南京和天津。在马来西亚,集团持有65% 股份的其中子附属公司 - 国浩房地产(马来西亚)有限公司是在马来西亚证券交易所上市的大型房地产公司,在总体城镇规划,高档住宅与商业项目开发等领域拥有丰富经验。
屡获殊荣的开发商
国浩房地产在新加坡与国际上已获得多个奖项和荣誉,标志着其在房地产领域的杰出表现及其在项目开发品质和创新领域所作的贡献。在环境可持续发展方面,集团所获奖项包括有新加坡建设局(BCA)绿色建筑标志奖、能源与环境设计认证(LEED)的白金预认证;在房地产开发方面,集团所获奖项包括有国际房地产大奖(International Property Awards)、世界不动产卓越建设奖(FIABCI Property Awards)、BCI 亚洲大奖(BCI Asia Awards)和东南亚地产大奖(South East Asia Property Awards)等。

华利世家
华利世家是新加坡最高的住宅单位,共拥有181套奢华私宅单位,其中包括一至四卧房单位,4套顶层豪宅和1套超级顶层豪宅。拥有海平面180米之上的绝佳视野,华丽世家的每套住宅均采用无可挑剔的顶级建筑装饰材料,彰显出华利世家的独特美学理念。
大厦设有四个专属的配套设施楼层和高端酒店服务标准的礼宾服务部。华利世家是如此的独一无二,不仅拥有一览城市美景的无敌高度,还为其居民提供绝无仅有的生活享受。住户可在空中花园的浓浓绿意里尽情放松身心,在美丽的无边际泳池里自在畅游,可以享受私人厨师精心准备的温馨晚餐,也可以在小剧院观赏您的独家放映。
华丽世家坐落于丹戎巴葛中心的39至64层,这座雄心勃勃的“垂直城市”必将成为丹戎巴葛地区的焦点所在。该综合发展项目拥有甲级写字楼、一间5星级商务酒店、种类繁多的零售和餐饮店面,以及150,000平方英尺的市区公园。市区公园中设有占地32,000平方英尺的公众休闲区,适宜民众在此聚会、休息,亦可举办展览和各类活动。


位于39 层至64 层的华利世家是新加坡最高的住宅单位。它包括181个奢华私宅单位,其中包含一至四卧房单位、4套顶层豪宅、1套超级顶层豪宅。每套住宅均采用无可挑剔的顶级建筑装饰材料,彰显出华利世家的独特美学理念。此外,大厦设有四个专属的配套设施楼层,包括酒店服务标准的华利礼宾服务部、令人惊叹的无边际泳池(39层)、私人图书馆(52层)和拥有屏息美景的观景台(62 层)。华利世家是如此独一无二,不仅拥有一览城市美景的无敌高度,还为其居民提供绝无仅有的生活享受。



除了Wallich Residence所在的优越地理位置以及其周围众多的酒吧和餐厅,同时毗邻日益流行的Duxton Hill,Club Street和Ang Siang Hill。 Wallich Residences坐落在新加坡全岛最高的建筑内,并且充分利用它的高度。作为181间豪华公寓的主人,都可以从特别建造的观景台上鸟瞰整个城市的壮丽景色。 并且从其巨大的无边泳池可以眺望180米外的大海。绝对在享受的同时,彰显尊贵!
1公里以内的学校
康达小学(Cantonment Primary School)
2公里以内的学校
圣婴女校(客乐)(CHIJ (Kellock))









A1-4户型 1室 646平方英尺 / 60平方米

A1-5户型 1室 614平方英尺 / 57平方米
新币 S$2,039,150起

A1-6户型 1室 646平方英尺 / 60平方米
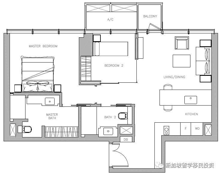
A2-1户型 2室 861平方英尺 / 80平方米

B2-2户型 2室 915平方英尺 / 85平方米
新币 S$3,560,650起

B2-1户型 2室 958平方英尺 / 89平方米

C2-1户型 2室+书房 1259平方英尺 / 117平方米
新币 S$6,627,450起
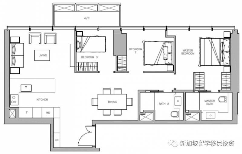
A3-4户型 3室 1098平方英尺 / 102平方米
新币 S$3,737,450起

A3-5户型 3室 1098平方英尺 / 102平方米

A3-1户型 3室 1313平方英尺 / 122平方米

A3-1户型 3室 1313平方英尺 / 122平方米
B3-1户型 3室 1195平方英尺 / 111平方米
新币 S$4,630,800起

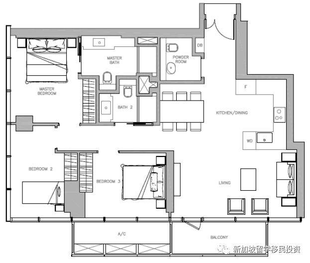
B4-1户型 4室 1658平方英尺 / 154平方米
新币 S$6,350,350起

C4-1户型 4室 1991平方英尺 / 185平方米

C4-2-61户型 4室+书房 1981平方英尺 / 184平方米
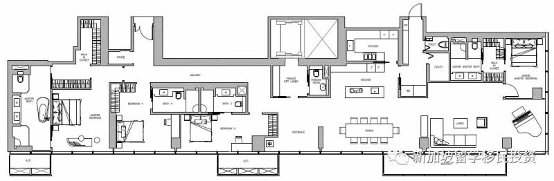
阁楼户型 4室 3509平方英尺 / 326平方米
新币 S$17,200,600起

豪华阁楼户型 5室 21108平方英尺 / 1962平方米







也欢迎各位朋友前往我们公司咨询
目前我的新加坡电话是65 8650 7264之后换这个电话65 9861 8509,因为这个电话好记一点。给您带来不便请您谅解,微信【jason-liu0065】。谢谢!!!
如果觉得我的文章对您有用,请随意打赏。你的支持将鼓励我继续创作!