新加坡东部地铁口新项目,东景苑开始预售
位于第14区的友诺士区(Eunos),是属于新加坡的中央区。 的位置是坐落在沈氏道(Sims Avenue)。该项目的所在地正是在2017集体出售成功的私有化的中等入息公寓Eunosville。Parc Esta (东景苑) 是由 MCL地产(MCL Land)所开发的。Parc Esta (东景苑) 的所处地段占地约34,997平方米,容积率为2.8,是属于99年地契。


Parc Esta (东景苑) 项目简介
地址:900-916 Sims Avenue(900-916 沈氏道)
发展商:MCL Land(MCL地产)
地契:99 年
预计完工:预期 2022年12月31日
总面积:约 34997平方米
总单位数:1339套私宅单位 和 5间商铺
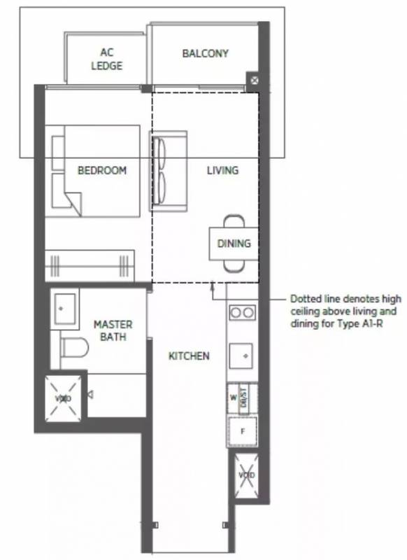
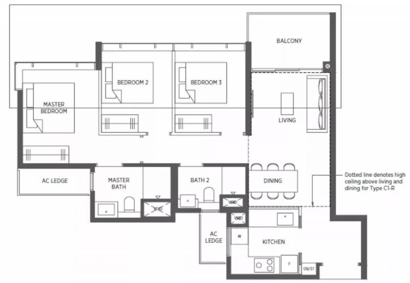
户型:
1卧:41-51 平方米
1卧+书房:48-58 平方米
2卧:54-80 平方米
2卧+书房: 77-95 平方米
3卧:84-112 平方米
4卧:104-124 平方米
5卧:130-149 平方米
商铺:61 平方米
项目规划图
为什么要购买东景苑???
交通便捷,四通八达
Parc Esta (东景苑) 距离友诺士地铁站(Eunos)非常靠近,步行约3分钟就能抵达。该地铁站营运的是地铁东西线,可直接通往西部的裕廊和在东部的巴西立。居民也只需乘搭一个站就能抵达巴耶利峇地铁转换站(Paya Lebar)。居民可在巴耶利峇轻易转换到地铁环线(Circle Line)。
这地铁线可以直接带住户到搭新加坡其他地区如荷兰村(Holland Village)和港湾 (Harbourfront)地铁站。而对驾车人士,从东景苑到中央商业区或乌节路只需要10到15分钟的车程,也非常靠近加冷-巴耶利峇高速公路(KPE)和泛岛高速公路(PIE)。这两条高速公路可轻易通往其他高速公路,为居民带来交通方便。此外,Eunos MRT旁边还有一个公共汽车转换站,为小区居民提供更多交通选择。


购物商场聚集,满足日常生活所需
政府商业区规划,潜力巨大,坐落在巴耶利峇地铁转换站旁边的巴耶利峇中心(Paya Lebar Quarter)将会发展成为一个繁华和充满活力的商业中心。这里将会聚集办公、零售、酒店和便利的公共设施于一体成为辅助中央商业区的角色。这将为Parc Esta (东景苑) 的居民带来许多购物、用餐和娱乐设施。
我们位于Paya Lebar区域中心的边缘,这是URA总体规划的一部分,旨在将该地区转变为新加坡的商业中心之一,以及一个即将到来的生活方式社区。Paya Lebar地铁站的巴耶利峇广场(Paya Lebar Square)已经开始复兴,从Parc Esta出发的一站地铁站。
Paya Lebar Quarter将很快完工,并且非常希望成为最新的时尚和凉爽的地方,将城市风格的生活与东方氛围融为一体。
购物中心包括One KM Mall,Paya Lebar Square,Singpost Center,Bedok Mall,i12 Mall,Parkway Parade,Bedok Point


学校云集,为您孩子的成才之路保驾护航
Eunos Primary 友诺小学--- 700米
Haig Primary 海格女校--- 750米
Maha Bodhi Primary学校菩提小学--- 1060m
Tanjong Katong Primary 丹绒加东小学--- 1488m
CHIJ Katong Primary 圣婴加东小学--- 1565m
Kong Hwa School 光华小学--- 1800m
Tan Nan Primary道南小学--- 1810m
国际学校如查茨沃斯国际学校(东校区)(Chatsworth International School East Campus)
加拿大国际学校(丹绒加东校区)(Canadian International School (Tanjong Katong Campus))
环球印度国际学校(东校区)(Global Indian International School (East Coast Campus))也是投资者可考量的重要因素。

大型新加坡开发商以及完成标志性项目
MCL Land是新加坡领先的房地产集团。作为香港置地控股旗下怡和洋行集团的成员,我们在过去50年间在新加坡和马来西亚建立优质住宅的历史悠久。我们在新加坡和马来西亚拥有广泛的优质住宅物业组合,通过超过15家子公司和联营公司持有。
我们在新加坡完成了许多标志性项目,包括Margaret Ville。其他已完成的项目包括LakeVille,Lake Grande,J Gateway,Sol Acres,Hallmark Residences,Ripple Bay,Palms @ Sixth Avenue,Terrasse,Uber 388,Este Villa,The Estuary,D'Mira,Parvis,The Peak @ Balmeg,D'Pavilion,Waterfall花园,Hillcrest别墅,Tierra Vue,Fernhill,Esta,Mera Springs,The Grange,Calrose,Mera East和The Metz。
香港置地是一家上市的领先物业投资,管理及发展集团。香港置业成立于1889年,业务以卓越,诚信和合作为基础。集团拥有并管理超过850,000平方米。亚洲主要城市的优质写字楼和豪华零售物业,主要在香港,新加坡和北京。香港置地的物业吸引了世界上最重要的公司和奢侈品牌。
样板房照片一览:




东景苑的1399个豪华单位各具特色,一至五卧室单位一应俱全,其中:
1. 一卧室单位,套内面积39平方米(420平方尺)起,售价$73.6万起。

2. 两卧室单位,套内面积54平方米(635平方尺)起,售价$101.4万新币起。

3. 三卧室单位,套内面积84平方米(904平方尺)起,售价$137.8万新币起。
4. 四卧室单位,套内面积104平方米(1119平方尺)起,售价$175.3万新币起。
.

5. 五卧室单位,套内面积130平方米(1399平方尺)起,售价$221.2万起。

新加坡房地产市场走势
9月份有数个新私宅项目推出市场带动买气,销量环比劲升51.1%至932个单位。市区重建局10月15日公布的新私宅销量数据显示,上个月的销量同比增加41.9%。新私宅销量上升一方面原因是因为集体出售屋主购买替代房子,而这些屋主受到贷款与估值比率(LTV)顶限的影响较小。另一个原因则可能是房地产降温措施引起的“反射性反应”(knee-jerk reaction)已逐渐消退,说明买家已逐步接受新措施并开始欣然进场。
您对新加坡任何房产感兴趣,请免费咨询我们的特约房产经纪人张琼/Linda,开发商直接代理销售团队,买公寓无任何中介费用,协助客户办理买房银行贷款,买房产业托管一条龙服务。
如果觉得我的文章对您有用,请随意打赏。你的支持将鼓励我继续创作!