
大家喜闻乐见的楼盘促销活动终于来了!
一来就来了个大的!
这次年终大促的楼盘,位于新加坡市中心核心地段:第10邮区,属于高端公寓范畴,距离繁华的乌节路商业区仅2公里,5分钟车程即可到达。
促销详情如下:
• 按照不同的促销户型,发展商提供总房价的15%,18%,20%三档折扣。
• 折价部分,将以现金折扣方式,返还屋主。
• 部分顶楼Penthouse单位设计师精装修,品牌家具电器全套配齐,可拎包入住。
• 可选择普通付款方式(NPS)或延迟付款方式(DPS)
这次推出大促销的公寓楼盘,叫作Mon Jervois。
名称来源自法语,意思是“我的家园”。

房价直接打八折,折扣力度可以说很大了。
为什么发展商会提供这么高的折扣,是不是货真价实的打折,这里简单说一下。
新加坡有两个针对发展商的限制条例。
一个是合格证书条例,一个是ABSD条例。
一句话概括,就是发展商被ABSD条例暴击,大削价求迅速卖完。
文章后面我会解释具体情况。
最新折后尺价,大部分促销单位介于1660新币-1800新币每尺之间,发展商2013年推出市场时的均价是2008新币每尺。今年上半年的成交价上到过2400新币每尺。
折扣幅度很惊人。
文章下面的篇幅,我会详细介绍楼盘细节,以供参考。

Mon Jervois楼盘具体位置在第十邮区内的东陵区(Tanglin),泽维士路 (Jervious Road) 。
东陵区是本地历史悠久的高尚居住地段,位于新加坡中南部,乌节路旁边,辖区面积约7.6平方公里,并不算大。
辖区内除了分布各处的高端住宅区以外,还包括了中国、英国、美国等众多国家的大使馆;四季酒店,香格里拉酒店等五星级酒店;以及一部分的植物园。著名的东陵俱乐部(Tanglin Club) 也坐落在这里。
毗邻乌节路繁华商圈的同时,东陵区的周边环境很安静,是一个闹中取静的地带,众多亿万富豪的后花园。
东陵区地段到底有多壕?
有媒体今年初报道了2017年度本地成交的最贵公寓排名。
总共11间上榜公寓,除了The Marq和吉宝湾丽珊景以外,其他9间豪宅都位于第十邮区。
这9间中,有5间位于东陵区。 (第2,3,5,7,8名)

图片来自早报网
Mon Jervious楼盘距离乌节路约2公里,短短5分钟车程即可到达乌节路商圈。
距离乌节路林荫道站(2021年建成)约1.2公里,距离乌节路地铁站约2公里。
世界城购物中心距离约1.5公里,这是个零售空间超过4万平米的大型购物中心,日常衣食住行,来这里足够了。
Mon Jervious距离多美歌市中心约3.5公里,丹戎巴葛金融区约4公里,看交通情况,5-10分钟车程可到达。
新加坡植物园距离约3公里,5分钟车程。周末可以和家人来这里散步、慢跑、用餐,享受流水淙淙的自然乐趣。

Mon Jervois 占地约9000平米,拥有99年地契(2012年算起),设计建造5栋五层高的低密度小楼,总共兴建109个一卧到四卧户型的豪华公寓单位,于2016年8月建成完工。
下图是实地拍摄的照片。

小区精心设计兴建了高尔夫场地,野餐草坪,泳池边的落地玻璃健身房,绿荫环绕的水力按摩池,烧烤庭院,儿童游乐场地等众多公寓设施。设施设计得非常漂亮,眼见为实。
普通户型的客厅挑高空间3.3米,一楼单位挑高4.7米,大气宽敞。
两卧+书房单位采用跃层复式设计,客厅挑高达6.7米。



前文介绍了楼盘情况,下面解释一下新加坡针对发展商的两大限制条例。
一个叫作合格证书条例(Qualifying Certificate),简称QC。
一个叫作额外印花税期限条例(ABSD)。对,就是大家知道的那个ABSD。一部分针对个人买家,一部分针对发展商。
QC条例:
凡拥有外国股东的发展商(包括上市公司),必须在五年内完成项目的发展,并在取得临时入伙证(TOP)后的两年内卖出所有单位,否则就得支付未售出单位地皮价的延长费。
ABSD期限条例:
发展商须在五年内完成私宅项目并把所有单位卖出,否则就得支付额外买家印花税,即地段地皮价的10-15%。(今年7月的降温措施,把针对发展商的税率进一步提高到25%)
Mon Jervois的地皮是政府售地计划(GLS)下拿的地,不受QC条例限制。
但是卖了五年,到目前截止,发展商UIC没有卖完全部的单位。
——ABSD期限条例中招。
这里重点解释一下,整个楼盘,只要剩1间单位没卖完,发展商就要支付整块地价的10%-15%。
是很大一笔罚款了。

发展商被两大条例暴击以后大削价清货是有传统的。
看看下面两篇写在2016年的早报旧新闻。
——熟悉的配方,熟悉的味道。

截图来自早报网
Mon Jervois的发展商是UIC旗下子公司Singland,UIC这家发展商削价促销的行为也是有传统的。
有间位于武吉知马区的高端楼盘Pollen & Bleu,去年2月推出15%的现金折扣,引发市场热议。萝卜写文章推荐过,不知道大家还有没有印象,就是UIC的盘。
——同一家发展商,同一个路数。
Pollen & Bleu楼盘促销了三个月,于去年5月100%售罄。
现在轮到Mon Jervois了。
按照不同的户型,现金折扣幅度分别是15%,18%,20%。
下面这篇市场分析文章发表于今年4月7日的EdgeProp。文章里详细列出了Mon Jervois在过去几年不同阶段的售价。
2013年开盘时:均价2008新币每尺。
2017年,均价2134新币每尺。
今年3月,一个三卧单位以2081新币的尺价成交。
另有URA数据显示,今年4月,另一个三卧单位以2449新币的尺价成交。

我们来看看最新的折后定价。
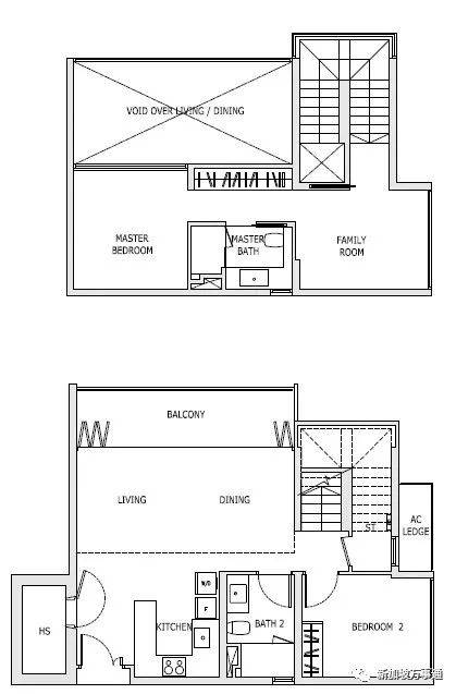
• 两卧+大家庭房,跃层复式户型(Loft)——房价折扣20%

• 两室一厅两卫+大家庭房+储藏间,上下复式跃层,面积143平米(1539平方尺)
• 客厅挑高6.7米
• 3楼单位原价:339万1千新币
• 20%现金折扣: 67万8200新币
• 折后净价:271万2800新币(1763新币每尺)
• 最后五间



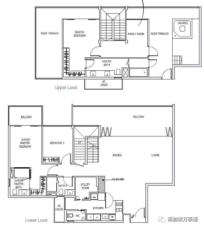
• 两个卧室套间+客房+大家庭房+工人房+顶楼露台+私人水力按摩池,面积264平米(2842平方尺)
• Penthouse原价:576万450新币
• 18%现金折扣: 103万6881新币
• 折后净价:472万3569新币(1662新币每尺)
• 最后两间


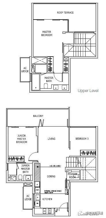
其他Penthouse户型 - 房价折扣15%
• 三卧户型,顶楼双层Penthouse 单位 -房价折扣15%

• 两个卧室套间+客房+补妆间+顶楼露台,面积137平米(1475平方尺)
• Penthouse原价:358万2600新币
• 15%现金折扣: 53万7390新币
• 折后净价:304万5210新币
• 最后一间


除了介绍的三个促销户型以外,还有其他几个顶楼Penthouse户型,总共12间豪华公寓待售。部分单位设计师精装修。
除了普通付款方式(NPS)以外,Mon Jervois楼盘还有两年延迟付款方式(DPS)可供选择。具体可以微信加我询问。
感谢阅读萝卜点评系列文章。
如果觉得我的文章对您有用,请随意打赏。你的支持将鼓励我继续创作!