
Affinity楼盘的基本信息:
总共单位
1052户和5间店铺
占地面积
约27583平方米/2.75公顷
公寓设施:
多达88项公寓设施
户型
2-4房和联排别墅单位
楼层
7栋14层高层单位和2-3层的联排别墅
交房时间:
预计2022年
发展商
豪利集团和联明集团等
地契
99年
单位分配介绍:

参考价格:
1房43平方米 价格68.5万起
1+书房50平方米 价格77.6万起
2房1卫 58平方米 价格98.1万起
2房2卫 68平方米 价格109.5万起
3房2卫 79平方米 价格135.9万起
3房豪华型 100平方米 价格155.8万起
4+书房 131平方米 价格208.1万起
联排别墅价格225万起 (外国人不可以购买,公寓可以)
生活交通便利
众所周知,实龙岗Serangoon属于成熟住宅区,约5分钟车程到实龙岗地铁站、高文地铁站、后港地铁站、罗弄泉地铁站,商场如东北部最大的NEX Mall, 有NTUC超市,商场,百货,银行,食阁,餐馆,电影院,图书馆等,还有Heartland Mall, Hougang Mall等。
优质教育资源
新加坡九所有天才班的小学之一乐赛小学Rosysh School在一公里内,还有中华小学/Zhong hua Primary school哦,中学包括如实勤中学、博文中学(Bowen Secondary Schol)、培才中学(Peicai Secondary School)、新民中学 (Xinmin Secondary School)、实龙港初级学院 (Serangoon Junior Colleague)和南洋初级学院 (Nanyang Junior Colleague)。国际学校这块有澳洲国际学校,美国史丹福国际学校。

完善的公寓配套设施
项目多达88项公寓设施,包括会所、50米的游泳池、休闲娱乐泳池、室内健身房、室外健身角、水下健身器材、SPA、空中烧烤区BBQ、多功能活动室、聚会草坪、水景花园、空中花园等等,完善的配套公寓设施让你在劳累的上班之后彻底放松自己,周末带小孩足不出户就可以在小区内玩耍,让您的远离城市的喧嚣,静心享受生活的美好。
投资角度分析
Affinity所在的第19邮区在过去15年内,房价增幅明显高于高于新加坡平均增幅。第19邮区的增幅75.95%对比新加坡平均的 52.04% ,可见第19邮区的投资价值高。Affinity公寓的收支平衡为$1295/平方英尺,隔壁地皮的收支平衡价格为$1443/平方英尺,所以Affinity的价格比隔壁地皮的价格便宜11.4%,换做话,你在购买Affinity房子已经比隔壁地皮的价格便宜不少。
在同为第19邮区的巴特立一带的被集体收购的Sun Roiser 预计收支平衡是$1856/平方英尺,How Sun Park预计的收支平衡价格是$1589/平方英尺,有对比就有发现,Affinity @Serangoon公寓是第19邮区开盘项目价格最便宜的.

品质保证,设计实用为主
采用Grohe和德国的Bosch品牌的电器,发展商采用新加坡知名的建筑设计公司DP Architect Pte Ltd,户型设计讲究实用,房间布局合理,每个普通房可以放1.5米宽双人床,主人房可以放1.8米宽的大双人床,每个房间有好的视野。等您跟我约时间看房时就知道我所说的。
周围环境好
靠近知名的实龙岗花园有地住宅区,可以周末去Chomp Chomp/忠忠熟食中心享受当地特色美食,高楼层的公寓单位可以享受有地住宅/洋房景观哦。

交通方便
东边的巴士站可以做43、43M、70、70M、73、76、103、109、109A、116、147、156 、NR6,小区提供巴士直达实龙岗地铁站/Serangoon MRT,2站地铁可以搭乘到碧山地铁站转红线地铁(南北线),从实龙岗地铁站只需5站地铁即可到达多美歌(总统府所在地/购物街乌节路)。对于驾车人士来说,开车约16分钟到乌节路,18分钟到达中央商业区CBD,约26分钟到樟宜机场.

公寓俱乐部会所和游泳池
夜色下的公寓全景

公寓户外用餐角落

联排别墅外景

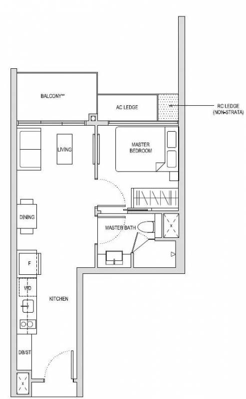
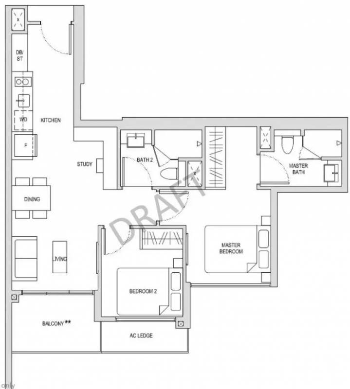
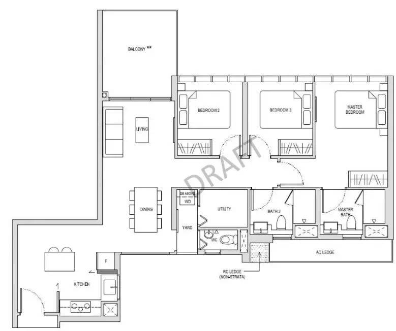
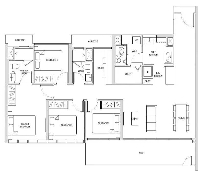
户型图:
1房,44平方米/474英尺,独立的房间,适合于年轻人或情侣

1+书房,56~64平方米/603~689平方英尺,主人房可以放置King Size大双人床

2房户型,可封闭式厨房, 主人房可放置King Size大双人床加书桌或者梳妆台

2+书房,58~68平方米/624~732平方英尺,主人房带1.9米长的衣帽间, 主人房可放置King Size大双人床

三房户型面积850~1249平方英尺,下面重点介绍几款好的户型
优质3房,100平方米/1076英尺,传统中式厨房,每个普通房可以放双人床,主人房可房大双人床,保姆房可改成书房用。
3房还有其他户型,具体户型看房时详细了解

优质3房,107平方米/1152英尺,灵活的中式/西式厨房,每个普通房可以放双人床,主人房可房大双人床,保姆房可改成书房用。

4房户型,135平方米/1453英尺,厨房分为干湿厨房,主人房可房大双人床,保姆房可改成书房用。(下面样板房图片户型)

样板房照片:




若您对新加坡任何房产感兴趣,请免费咨询我们的特约房产经纪人张琼/Linda,开发商直接代理销售团队,买公寓无任何中介费用,协助客户办理买房银行贷款,买房产业托管一条龙服务。
如果觉得我的文章对您有用,请随意打赏。你的支持将鼓励我继续创作!