城市中心地理位置
风华南岸府地处城市中心地段,交通极为便利,项目和楼下的滨海中心地铁站和政府大厦Cityhall地铁站巧妙的连接在一起,一流的地理位置同时连着几个新加坡著名的大型购物中心,如拥有财富喷泉的新达城(Suntec CityMall)就在风华南岸府马路对面,有超市,食阁,咖啡馆,各式各样餐馆,零售店,潮流服装店等等,全方位解决您的衣食住行方面需求,还有莱福士城购物中心(Raffles City Mall).

风华南岸府包括高档住宅、豪华的万豪酒店(新加坡南岸)、餐馆、咖啡馆、甲级办公室、地铁站为一体的综合项目,其中34层甲级办公室面积多达51万平方英尺,租客为国际大公司,项目和楼下的滨海中心地铁站直接无缝对接,恰到好处的和项目所在地的历史保留建筑融为一体。

风华南岸府是您的完美选择,全部单位为舒适大户型设计,有2卧室、3卧室、4卧室、顶层复式豪宅供您选择,不同房型拥有不同朝向,如漂亮的滨海湾朝向和海景朝向,从精致的室内设计到配套的高级家电厨具,精心为您打造符合您高尚品位的贴心住所。项目只有限量190套高档住宅,于2016年12月完工,高档住宅位于项目的23到45层,包括88套两卧室套房,61套三卧室套房,35套四卧室套房和6套顶层复式套房。


坐在家里就可以享受漂亮滨海湾夜景(如下图),360度无敌美景,中央商业区风景线和乌节路购物区尽收眼底。
每年滨海湾举办的新年倒数跨年烟花表演,中秋节享受灯会,国庆节庆祝烟花表演,每年举办的夜间一级方程式F1赛车,农历新年春到河畔表演,滨海文化中心灯展,圣诞节滨海湾花园灯展等。
家里就可直接观赏每年的新加坡国庆烟花表演

家里就可以观赏世界一级方程式F1比赛,想起来就爽极了!
地标建筑,尽收眼底
新加坡著名的地标,包括滨海湾金沙,滨海湾花园(Gardenby The Bay),可以俯瞰新加坡摩天观景轮,滨海湾艺术中心,国际艺术馆,维多利亚艺剧院等等

漂亮夜景如下图这样,看起来就是爽,爽,爽呆了

空中花园,俯瞰城市天际线
项目共有2个空中花园,分别在第22楼和32楼。位于第22楼的空中花园,有健身房,还有让您欣赏城市夜景的无边泳池,类似于金沙酒店无边泳池的设计,还有水流按摩池,蒸汽浴室,更衣室,室外活动区,按摩泳池等。第32楼的空中花园,有小孩玩耍区,小孩游泳池,室外就餐等候区等,您可以和孩子们一起水中嬉闹,可以在游乐场中玩耍,或者带孩子们到阅读室,给孩子们讲故事,培养小孩从小就爱好阅读好习惯。

32层空中游泳池,俯瞰滨海湾漂亮夜景(如下图)

为住户提供酒店式礼宾服务
从筹办私人晚会到为您预定餐厅、安排预定的士交通、洗衣家政服务、接收快递包裹、预定公寓设施等,让您完全放心,给您全方位的奢华享受。

配置高档厨具
德国高档厨厨具布尔托和美诺Miele顶级家电用品,精心挑选了符合您尊贵身份的品牌Sub-Zero的冰箱和酒柜,保管好您的珍贵收藏。
餐饮娱乐休闲为一体
从现代休闲餐厅到精致豪华的餐厅,这里绝对有满足您味蕾的用餐选择,如中餐,日本餐,西餐如牛排,星巴克咖啡馆,甜品店等等。

灵活付款流程:
主要分为两种,有正常付款计划和延迟付款计划12-24个月供您选择,延迟付款计划适合需要缓冲资金压力的朋友,可根据您的情况做出选择。
延期付款计划主要有两种:
第一种为12个月或24个月延迟付款,定金为1%,签订选购权合同OTP,然后两周内执行购买权交房款19%(非装修单位)或29%(装修单位),接下来支付剩下的房款。
第二种为22个月延迟付款,定金为5%,签订选购权合同OTP,OTP签订3周后,支付25%房款,22个月后签订执行购买合同,执行购买合同后8周再交房子余款,该计划适合在申请绿卡或公民的朋友,
参考价格:2房价格367.2万新币起,3房价格594.4万起,4房价格728万起(具体价格以看房时价格为准),和我预约看房时了解更多详情
户型图介绍:
由于篇幅有限,只能给出每个房型一个样板户型
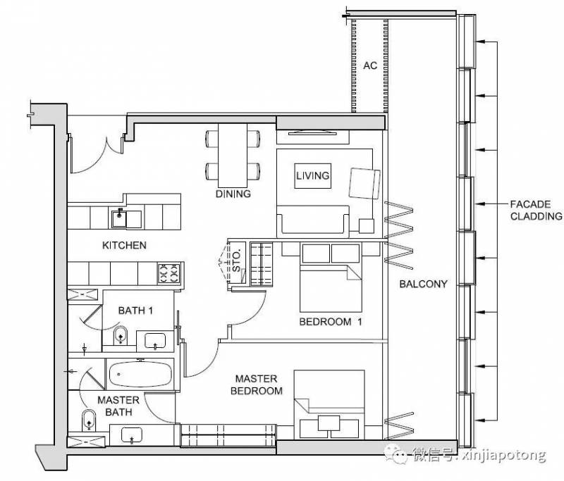
2房户型,87-167平方米/936-1798平方英尺,有很多不同户型,下图为面积113平方米/1216平方英尺

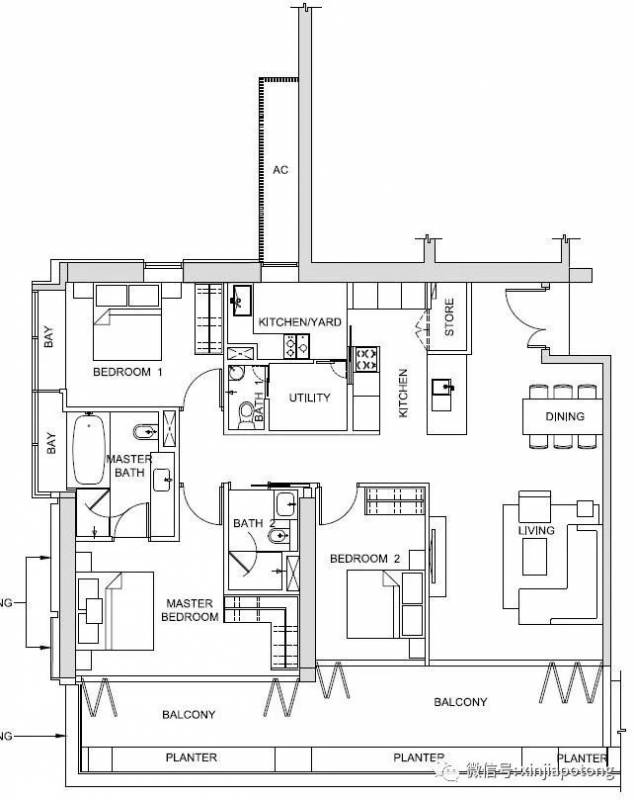
3房豪华户型,面积介于149-212平方米/1604-2282平方英尺,有很多不同户型,下图为面积178平方米/1916平方英尺,户型面积算大,按照豪宅面积标准,厨房分为干湿分区,大客厅和主卧可直通阳台,私人电梯直接入户。

4房户型,面积介于208-243平方米/2239-2616平方英尺,有很多不同户型,下图为面积243平方米/2616平方英尺,豪宅面积标准,厨房分为干湿分区,大客厅和主卧可直通阳台,私人电梯直接入户。

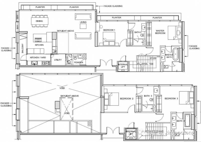
顶层阁楼/复式单位,面积介于362-625平方米,下图为面积471平方米/5070平方英尺

标注:部分图片和文字介绍引用发展商中文介绍
作者个人简历:
2002年拿新加坡政府奖学金来新加坡深造,已经定居新加坡15年多,熟悉中国和新加坡的国情,现任职于新加坡股票交易所SGX上市企业,新加坡最大的地产公司之一ERA地产公司担任高级营销总监,从事房屋经纪行业8年多,已经完成数百宗房地产交易,成交的房屋价值高达新币上亿元,服务过数百位中高档客户,广受客户们好评。包括企业家,企业高管,中小型公司老板,房地产发展商,新移民,教授,医生等等。
熟悉私人公寓,商业地产,组屋的交易流程,全面了解房屋贷款,协助顾客办理好贷款,律师办理房产相关手续等,提供新加坡任何公寓楼盘和商业地产买卖投资服务,买私宅无任何经纪费用。
买卖房产是专业的事情,专业的事情找专业的经纪做。
感谢各位客户朋友的支持,本人在公司多次获得顶级销售奖,提供诚意十足,细心周到的为客户服务,所以收到客户们的广泛好评,服务好任何客户是我的最重要原则,欢迎买家或卖家联系我。
微信号:297264931 电话:65-91525858
如果觉得我的文章对您有用,请随意打赏。你的支持将鼓励我继续创作!