项目简介
名称:
JUI Residences
开发商:
Selangor Dredging Berhad (SDB)
性质:
永久产权
类型:
1栋18层公寓
土地面积:
2908.71平方米
总单位:
117户
停车位:
每户送1停车位
容积率:
2.8
位置:
1177 Serangoon Road Balestier/Toa Payoh 实龙岗路上段 (D12)
主户型:
26个一卧房单位 40-43平方米
39个两卧房单位 61-66平方米
52个三卧房单位 82-93平方米
单价:
89500万人民币/平方米起
总价:
75.1万新币(约375.5万人民币)起
付款方式:
定金(签意向合同):房款的5%(1%+4%)
首付:房款的15%(签正式合同,定金交付后的8周内)
中期款:房款的40%(地基完成:10%,主体结构完成:10%,墙体:5%,天花板:5%,,窗户:5%,停车场:5%)
交房:房款的25%(拿钥匙)
尾款:房款的15%(交房法律流程完毕)
贷款:
可贷款,外国人最多可贷款到房款总额的70%
交付日期:
2022年
物业管理费:
1卧房->259新元
2卧房->296新元
3卧房->296新元
物业设施:
水中健身器械、游泳池、休闲场地、花园、24小时安保等
开发商随赠软装物品:
厨房天然气炉灶和油烟机
电冰箱
洗衣机烘干机
洗衣机
内置烤箱
项目介绍
项目亮点
1、永久地契,保值增值,钻石永恒,世代相传。
2、位于市区边缘,价格合理,增值潜力大。
3、位于新加坡中部心脏地带,交通方便,四通八达。
4、位于加冷河畔,临水而居,波光粼粼,尽享河川和热带雨林风景。
5、附近购物商场林立,拥有大量的休闲、娱乐设施。
6、一栋有历史的建筑,见证过去,展望未来。
7、由著名发展商开发,品质保障,享有盛誉的建筑师设计。
8、附近名校林立,靠近著名的国际学校,如新加坡史丹福美国国际学校。

JUI Residences位于新加坡第12区的实龙岗路上段(Upper Serangoon Road),属于新加坡的东北区,是市区边缘地区,公寓的西侧面对的是加冷河,可以看到优美的河滨风光,商业活动在加冷河一带迅速增加,给该项目和周边项目带来了更多转售商机,加冷河会修建一个连通新加坡核心休闲区的跑道和健身场所,便于附近的居民健身和放松心情。

Jui Residences的位置非常优越,项目距离波东巴西地铁站(Potong Pasir MRT)约600米,步行7分钟就可以到达,该地铁站营运的是地铁东北线(North East MRT Line),您只需前往港湾地铁转换站(Harbour Front MRT)的方向搭乘地铁,4站就可以到达位于乌节购物区的多美歌地铁转换站(Dhoby Ghaut MRT),在那个站也有地铁环线(Circle MRT Line)和南北地铁线(North South MRT Line)。

距离Jui Residences约900米还有芽笼峇鲁地铁站(Geylang Bahru MRT),您可在此搭乘到滨海市区地铁线(Downtown MRT Line),从Jui Residences出发,只需约13分钟的车程就可以到达中央商业区(CBD),仅15分钟车程即可到达新加坡最大的购物区---乌节路。
附近的主要道路有,泛岛高速公路(PIE)、加冷-巴耶利峇高速公路(KPE)和中央高速公路(CTE),为驾车人士带来许多方便。

Jui Residences所在的地段之前属于新中国汽水公司(National Aerated Water Company)的工厂,工厂在1954年落成,汽水厂于1990年代停止生产,之后就一直闲置。
该地皮在2016年时由马来西亚上市房地产公司雪兰莪铁船(Selangor Dredging Berhad)成功收购。
市区重建局表示,新中国汽水公司主楼(National Aerated Water Company)将获得保留,因为这栋大楼拥有重要的文化历史价值,是这一区的地标,也为不少人带来回忆,建筑外观的设计独特,散发着装饰艺术的风格,市建局还说,面向实龙岗路的L型建筑物将被保留,包括招牌设备,阳台等,受保留的这栋建筑物将融入Jui Residences项目中,它的周围不会设有围栏,方便人们近距离欣赏。

周边配套
周边购物及生活:
项目北边一站地有兀里地铁站(Woodleigh),它的比达达里新镇出口将会建设一个会聚了私宅和商业的综合项目,该项目预计将在2022年竣工,项目的商场名为桦丽商城(The Woodleigh Mall),桦丽商城的零售和商用总楼面积近2万8000平方米,将设有基本设施如,超级市场、零售和餐饮店等,商城还有一个面积为6000平方米的民众俱乐部,内设有一家托儿所,住户也可以选择到波东巴西地铁站(Potong Pasir MRT)旁的博雅中心(The Poiz Centre)或位于实龙岗地铁站(Serangoon MRT)(2个地铁站)的NEX商场,其中博雅中心面积约5万平方英尺,可以容纳84个零售单位,NEX 商场是在新加坡东北地区的大型商场,那里有非常多商铺、餐厅、电影院和24小时的超市,再往南4.5公里就可以到达新加坡最繁华的购物街--乌节路,住户不仅可以享受到丰富的美食,更能在那里购买到高档物品。
靠近项目(西侧)的熟食中心有,大巴窑7巷大牌22A巴刹与熟食中心(Kim Keat Palm Market & Food Centre)、大巴窑8巷大牌210巴刹与熟食中心(Lorong 8 Toa Payoh Block 210 Market And Food Centre)、大巴窑5巷大牌75巴刹与熟食中心(75 Toa Payoh Lorong 5 Market and Food Centre)、芽笼巴鲁大牌69巴刹与熟食中心(Geylang Bahru Block 69 Market And Food Centre)等,加冷河往北边和南边大约200米的距离,有几个小贩中心和食阁,那里有丰富的食品供住户选择。
与此同时,距离项目附近1-2公里还有几个大型的体育俱乐部,包括新加坡体育中心、新加坡板球协会、加冷海洋训练中心、华人娱乐中心等。
各个商场与项目的距离:
The Poiz Centre (在建) – 0.6km
The Venue Residences – 0.44km
Nex Shopping Centre – 2km
The Woodleigh Mall(在建)—1.6km
City Square Mall – 1.95km
Novena Square – 2.58km
Orchard Shopping Belt乌节路购物商圈—4.5km

周边教育资源:
公立小学
Bendemeer Primary School – 0.45km
St Andrew’s Junior School (圣安德烈小学)– 0.88km
Cedar Girl’s Primary School –1.3km
Pei Chun Public School (培群公立学校)– 1.14km
Maris Stella High School (Primary) (海星小学)– 2.23km
公立中学/初级学院
Bendemeer Secondary School -(中学)—0.45 km
Saint Andrews Junior School(高中/初级学院) -0.88 km
Hong Wen School—1.1km
Cedar Girl’s Secondary School (四德女中)- 1.3km
Saint Andrews Secondary School(中学) -1.5km
国际学校
Stamford American International School (史丹福美国学校) – 1.3km
Global Indian International School (印度国际学校) – 1.57km

周边医疗资源:
陈笃生医院所在的诺维娜区域,现在是新加坡的高档医疗中心,有各类私立医疗机构,有更专业的更昂贵的医疗服务,不仅是新加坡一流,也是东南亚一流,陈笃生医院拥有1200多张床位,下属40个临床及相关医学部门,16个专科中心,7000多名雇员,该院的强项包括:传染疾病科、老年病学科、复健医疗科、呼吸内科与风湿病学科,过敏与免疫学科。1981年成立的假肢中心是新加坡公立医院中唯一提供假肢定制服务的中心,1985年,传染病中心成立,该中心在2003年的非典型性肺炎和2009年的H1N1禽流感疫情中发挥了重要的作用,2000年,陈笃生医院成为了国立保健集团(National. Healthcare Group)的成员,2010年,南洋理工大学和伦敦帝国理工学院合作成立新加坡第三所医学院,陈笃生医院是该校的主要临床教学伙伴。
新加坡竹脚妇幼医院(简称KKH)是新加坡唯一一家专门为妇女和儿童提供专科医疗的医院,建于1942年,其妇科部分拥有12个专科,儿科部分拥有24个专科,共有床位900张,新加坡每年近三分之一的宝宝在该院出世,竹脚妇幼医院同时也是新加坡国立大学医学院的附属教学医院,目前拥有员工2594人,医生312人,护士1073人,医院承诺致力于病患安全及不断改善病患护理过程与结果,并于2005年获得美国国际医院评鉴联合会品质认证。
各个大型医院与项目的距离:
Tan Tock Seng Hospital(陈笃生综合医院) – 2.35km
National Skin Center(国家皮肤中心) – 2.04km
Thomson Medical Center(汤申医疗中心) – 2.76km
KK Women’s & Children’s Hospital(竹脚妇幼医院)—2.75km
项目环境
项目亲山近水,推窗可见水景的生活是很多新加坡置业人士的美好愿景,一方云水,碧水蓝天,可谓是健康绿意的生活景象,如果您一直梦想着这样的生活,那么,新加坡新公寓楼盘Jui Residences将成为您梦想的开始。

进入Jui Residences,您将有种世外桃源的既视感,社区内的绿化让您拥有静而悠远的意境。
临河而居,河流和湖泊代表着财源,象征着财富恒通,自古以来依山傍水的生活让许多文人志士心生羡慕,很多的社区内会有各种水流、假山环境的营造,以此来提升生活环境的品质,项目内您可以亲身体会到项目的优美风景。

项目有高达2.8的容积率,更是把得天独厚的天然环境发挥的淋漓尽致,再加上传承历史文化的黄金地段,可谓天时地利人和,羡煞旁人,
拥有水景的新加坡公寓Jui Residences是迷人的,是写满故事的,它充满灵气、散发韵味,就连难能可贵的风情,都一并揽入怀中。
Jui Residences紧靠加冷河,水景资源优越,远眺波光粼粼,近揽水波荡漾,优越的水景资源,能够丰富空间环境,增强居住的舒适感,有利于空气的净化,改善园区的气候环境。


户型设计
Jui Residences的土地面积约2945平方米,是属于永久地契,项目包括1栋18层高的建筑,项目共有117个私宅单位和3个商铺,户型包括26个一卧房单位、39个两卧房单位和52个三卧房单位。

Jui Residences的每个细节都力争完美,在保障居家实用性与美观性统一的同时,认真考量家庭的每个功能区,将客厅打造成空间艺术与舒适生活融合的场所。

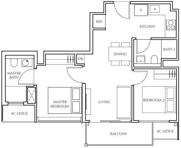
户型图
一卧房单位,套内面积40平方米(431平方尺)。

两卧房单位,套内面积61平方米(657平方尺)。

三卧房单位,套内面积82平方米(883平方尺)。
如果觉得我的文章对您有用,请随意打赏。你的支持将鼓励我继续创作!