萝卜点评,万事通说房事!

今天要介绍的新盘,是位于新加坡第7邮区-市区核心区(Downtown Core)的一处顶级豪宅。
这是一座矗立在滨海湾畔的商住综合摩天高楼,周围是繁华的中央商务区,21楼以下部分是JW万豪酒店,22楼以上属于豪华住宅公寓。
也因为这个特殊的配置,这间豪宅的词写得非常霸气:
天空之下,酒店之上。
滨海湾无遮挡壮丽海景,尽收眼底。
这座豪宅的名称,就是South Beach Residences (风华南岸府)。

风华南岸府楼盘于2016年建成,无论是地点还是设计,都是新加坡楼市的顶级豪宅配置。
发展商捂盘两年,终于在今年九月推出市场,公开发售。
下面的文章里,我会详细介绍有关项目细节,供大家参考。

South Beach Residences楼盘坐落于新加坡核心市区,具体位于政府大厦区域内的美芝路 (Beach Road) 。
楼盘内开设步行通道,直接连通滨海中心地铁站(Esplanade MRT) 和政府大厦地铁站(City Hall MRT) 两个地铁站。
距离分别为130米和410米,步行1分钟和5分钟即可到达。

新加坡著名的大型购物中心:拥有财富喷泉的新达城(Suntec City Mall),距离South Beach Residences楼盘仅200米。
莱佛士城高级购物中心(Raffles City Mall),距离楼盘仅250米。
历史悠久的莱佛士酒店,距离楼盘仅100米。

新加坡的两大地标景点:滨海湾金沙,距离楼盘约1公里;滨海湾花园距离约1.5公里。
包括维多利亚剧院,美术馆,亚洲文明博物馆,滨海艺术中心剧院在内的众多文化艺术设施,分布在住家一公里生活圈内。
JW万豪酒店就开设在楼下,酒店内的5间餐厅,酒吧,高级水疗中心等设施,向风华南岸府的住户开放。
屋主足不出户,可以尽享设施,放松心情。

South Beach Residences商住综合项目拥有99年地契,占地约3万5千平米,设计兴建一栋45层高的摩天高楼建筑,于2016年12月建成。
其中底楼到21楼部分是酒店,22楼到45楼部分是高级住宅公寓,包括两卧到四卧的各种户型,总共190个公寓单位。
全部单位采用舒适大户型设计,最小的两卧户型面积87平米,最大的顶层豪宅面积超过600平米。

承建发展商:城市发展(CDL),是新加坡市值最大的上市公司之一,旗下产业横跨住宅,办公,酒店,购物中心等核心业务,在新加坡、中国、英国、澳大利亚等国家都有产业投资。
负责楼盘整体设计的Foster + Partner 建筑事务所,是扎根于英国伦敦的著名国际建筑设计公司。过去的代表作品,包括了大英博物馆中庭,香港汇丰银行总部,北京国际机场第三航站楼,美国苹果公司园区等众多脍炙人口的建筑。
换个角度看South Beach Residences的整体设计。

高楼滨海180度全景,尽收眼底。

位于22楼和32楼的两个天际花园,精心设计了包括无边泳池,水疗池,健身房,休闲草坪,儿童游乐场地,多功能会所等多种公寓设施。
公寓内部装修,无论是选用材质还是空间设计,尽显低调奢华。
厨房配备米勒,Sub Zero等顶级品牌家电。卫浴采用Keoco, Duravit,Toto等高级品牌。
公寓内配备专属的礼宾服务人员,全天候提供私人化的礼宾服务,从预定餐厅,到安排交通,洗衣家政,一站式解决住户生活上的后顾之忧。




两卧豪华公寓单位,面积介于87-167平米之间(936-1798平方尺),户型选择很多。
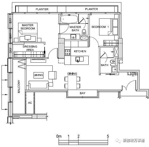
下图的两室一厅二卫户型,城市景观,户外大露台,面积113平米(1216平方尺)。
24层高楼单位定价342万4千新币。尺价2815新币每尺。

下图的两室一厅二卫户型,滨海湾景观,主卧内设计步入式衣帽间,面积同样是113平米(1216平方尺)。注意看户型标注的尺寸,主卧非常的宽敞。
40层超高楼单位定价436万8千新币。尺价3592新币每尺。

三卧豪华公寓单位,面积介于149-212平米之间(1604-2282平方尺),厨房干湿分区,户型设计包括工人房和储藏间,适合家里有年幼孩子,聘请女佣的家庭。
四卧豪华公寓单位,面积介于208-243平米之间(2239-2612平方尺),厨房干湿分区,户型设计包括工人房,储藏间,以及客人补妆间。主卧和次卧包含卫浴套间,适合家里有孩子有老人的大型家庭。
此外,还有六间位于顶楼的跃层复式Penthouse待售。
针对South Beach Residences楼盘的购买流程,有个关键词写在文章的最后,留给有兴趣看到这里的筒子们。
除了正常付款模式以外,发展商还额外提供两年延迟付款计划(Deferred Payment Scheme)。
延迟付款计划如下:
• 签订选购权合同(OTP):支付5%款项
• OTP签订三个星期后: 支付25%款项,即刻拿钥匙入住。
• 之后22个月:零付款,零月供。
• 22个月之后:支付1000新币,签订S&P购房合同
• S&P合同签订八周后:支付剩余70%尾款-1000新币
位于新加坡滨海湾畔的South Beach Residences豪宅楼盘,今天就介绍到这里。
感兴趣的读者可以微信联系我实地看房,了解发展商最新报价,并争取最优惠价格。
感谢阅读萝卜点评系列。

彭威
新加坡万事通房产专栏作者
彭威:毕业于南洋理工,后职任高级数据分析工程师多年,现任新加坡最大房产中介公司之一的Huttons的市场部董事近十载(CEA 注册号:R042525J)
初到坡,瘦高,好友称萝卜,岁月蹉跎,如今高而发福,好友依然称萝卜,萝卜点评,由此而来,萝卜点评,万事通说房事~
术业有专攻,萝卜不涉及留学移民开公司等等任何业务,只专注于房产,为买家处理银行贷款,房屋选购,联系律师,收房验收,房屋出租的一条龙服务,不向买家收取任何费用,十年磨一剑,深获买家好评!
给大家带来一个好消息!萝卜点评网站隆重上线!!
撒花!鼓掌~~
网址:www.luobodianping.com/
个人微信号:luobodianping
如果觉得我的文章对您有用,请随意打赏。你的支持将鼓励我继续创作!